Årvollveien 60F
6 300 000 kr
70 m²
2 soverom
Komplett salgsoppgave

ÅRVOLLSKOGEN
Delikat 3-roms med rekkehusfølelse. To solrike markterrasser på til sammen 35 kvm. Heis og garasjeplass m/EL
Prisantydning
6 300 000 krOmkostninger
168 540 krTotalpris
6 468 540 kr
Pris
Bruksareal
75 m²BRA-I (internt bruksareal)
70 m²BRA-E (eksternt bruksareal)
5 m²TBA (terrasse-balkongareal)
35 m²
Areal
Etasje
1Byggeår
2005Soverom
2 soveromBad
1 badType
EierleilighetEierform
EierseksjonFasiliteter
Garasje/P-plass, Heis og Balkong/TerrasseFellesutgifter
4 891 krEnergimerke
Rød D
Nøkkelinfo
Unngå doble boligrenter
Vi tilbyr gunstig forsikring.
Vurderer du utleie?
Få et tilbud fra Utleie KrogsveenHva koster lånet?
Sjekk estimert lånekostnadBeskrivelse
Kort om eiendommen
Innhold og byggemåte
Innhold og byggemåte
Eiendommen
Årvollveien 60F, 0590 OSLO
Kommunenummer 301, gårdsnummer 86, bruksnummer 997, seksjonsnummer 8, ideell andel 1/1
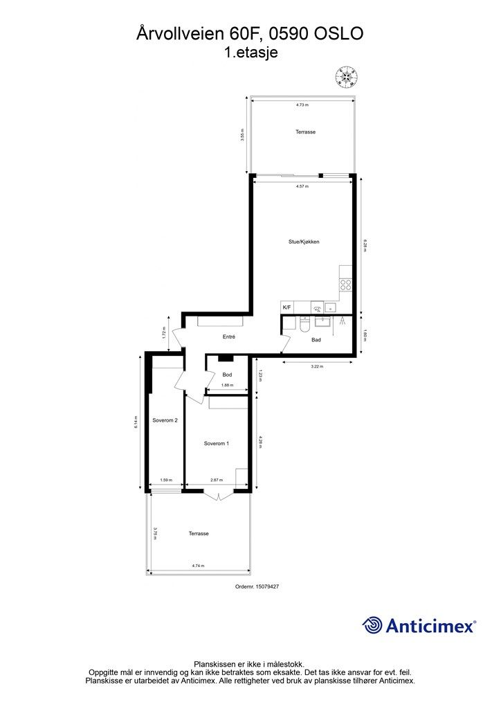
Innhold
Totalt bruksareal BRA: 75 kvm
BRA-i:
1. etasje 70 kvm: Entre, bad, stue/kjøkken, 2 soverom og bod.
BRA-e:
Kjeller 5 kvm: Bod.
Åpent areal:
1. etasje 17 kvm: Sydøstvendt terrasse.
1. etasje 18 kvm: Nordvestvendt terrasse.
Vedlagte plantegninger er ikke målbare. De oppgitte arealer er hentet fra rapport med befaringsdato 10.03.2026 utført av Torbjørn Sæbøe.
Byggemåte
Selger har innhentet en tilstandsrapport av boligen/eiendommen. Av rapporten fremgår det at flere bygningsdeler har fått tilstandsgrad ikke undersøkt/ikke tilgjengelig for undersøkelse (TG IU), 2 (TG2) og/eller 3 (TG3). Rapporten beskriver også avvik på undersøkte bygningsdeler uten tilstandsgrad. Kjøper overtar ansvaret for de opplysninger som fremkommer av salgsdokumentasjonen, og kan ikke gjøre gjeldende som mangel noe som burde vært kjent eller som ikke kan anses å ha betydning for avtalen.
Boligbygg over 6 etasjer med kjeller. Bygningen har støpt gulv mot grunn. Grunnmur, bærende konstruksjon og skillende dekker av betong. Fasader forblendet med trekledning. Tilnærmet flat takkonstruksjon tekket med tapapp, taket er ikke besiktiget. Entredør av tre med brannklasse B30 og lydklasse 35dB fra byggeår. Terrassedører og vinduer med karmer av tre og aluminium med to-lags glass fra byggeår.
Les for øvrig mer om byggemåte og den tekniske tilstanden i rapporten.
Det gjøres spesielt oppmerksom på:
Tilstandsgrad 2 - TG 2 Vesentlige avvik (alder, slitasje, skader mv.):
Våtrom - Bad:
- Vanntett sjikt / membran i gulv og vegger: Vanntett sjikt har en alder som tilsier at fremtidig funksjon er usikker. Konsekvensen er at bygningsdelen erfaringsmessig har risiko for nedsatt funksjon, utettheter eller andre aldersrelaterte problemer. Bygningsdelen er skjult, så den faktiske tilstanden og dagens tettefunksjon er ukjent.
- Sanitærutstyr og innredning: Servantskap har påbegynte svelleskader på begge sider, behov for utbedring.
Det er registrert stedvis riss i servanten. Konsekvensen er at slike forhold erfaringsmessig skyldes aldersrelatert slitasje eller lignende, men eksakt årsak kan ikke fastslås ved visuell inspeksjon.
Drenering fra innebygget toalettsisterne er ikke registrert. Konsekvens er at det derfor ikke kan verifiseres om installasjonen er utført slik at eventuelt lekkasjevann raskt blir synliggjort.
- Kontroll i tilliggende konstruksjon ikke utført: Med bakgrunn i at våtrommet er bygget som en prefabrikkert baderomskabin er det ikke utført hulltaking/fuktmåling i lukkede konstruksjoner. Konsekvens er at tilstanden inne i konstruksjonen derfor ikke er kjent. Det ble derimot gjennomført et overflatesøk med fuktindikator, som sett i sammenheng med andre symptomer (hull etter tidligere festemiddler) vurderes å ikke kunne utelukke skjulte fuktskader.
Terrasse/platting - Terrasse ved stue/kjøkken:
- Tilstand på rekkverk og overflatematerialer: Overflatematerialer på terrassen (levegger) viser tegn til slitasje, elde og begynnende fuktskader. Konsekvens er svekket beskyttelse av materialene, og pågående nedbrytning.
Terrasse / platting - Terrasse ved soverom 1:
- Tilstand på rekkverk og overflatematerialer: Overflatematerialer på terrassen (levegger) viser tegn til slitasje, elde og begynnende fuktskader. Konsekvens er svekket beskyttelse av materialene, og pågående nedbrytning.
TG IU Ikke undersøkt:
Terrasse/platting - Terrasse ved stue/kjøkken:
- Konstruksjon og fundamenter: Fundamentene og bærende var ikke tilgjengelige for undersøkelser, (skjult av tregulv) noe som gjorde at utførelsen/tilstanden ikke lot seg kontrollere.
Terrasse / platting - Terrasse ved soverom 1:
- Tilstand på rekkverk og overflatematerialer: Fundamentene og bærende var ikke tilgjengelige for undersøkelser, (skjult av tregulv) noe som gjorde at utførelsen/tilstanden ikke lot seg kontrollere.
Se utfyllende tekst i rapporten.
Tilstandsrapporten er inntatt i salgsoppgaven. Rapporten inneholder informasjon om avvikene og konsekvensen av disse. For avvik som er gitt TG3 har den bygningssakkyndige i tillegg gitt et anslag på hva det vil koste å utbedre disse avvikene. Ettersom kjøper regnes å være kjent med forhold som tydelig fremgår av tilstandsrapporten, oppfordres du til å sette deg grundig inn i rapporten i sin helhet.
Standard
Årvollskogen er for mange en av favorittene på Årvoll/Tonsenhagen. Sameiet har et flott parkområde og kort vei til marka, butikker og transport. Her er det et ungt, sporty og engasjert bomiljø. Dette er leiligheten for deg som ønsker kort vei til både byen og skogen. I markanære omgivelser, og med byens rauseste naboer, vil du finne deg godt til rette i Årvollskogen!
Ønsker du en bolig med rekkehusfølelse og store uteplasser rett ved inngangen til marka? Med to uteplasser, meget gode solforhold og trappefri adkomst er denne leiligheten perfekt for både unge, eldre og deg med hund eller katt. Det medfølger en garasjeplass med lader i oppvarmet, lukket garasjeanlegg. Boligen ligger i markagrensen, og bak sameiet starter turstiene inn i flotte Lillomarka.
ENTRÈ:
Lys og imøtekommende entré med plass til oppbevaring av sko og oppheng av tøy. God plass til garderobeskap samt sittebenk eller kommode.
INNVENDIG BOD:
Praktisk, innvendig bod på ca. 2,3 kvm. Boden er innredet med hyller og oppheng for klær, og har plass til ekstra kjøleskap eller fryser.
STUE MED ÅPEN KJØKKENLØSNING:
Romslig stue med store vindusflater som slipper inn rikelig med lys. Plass til TV-møblement, spisegruppe og sofagruppe.
Fra stuen er det utgang via skyvedør til en sydøstvendt markterrasse på 17 kvm.
Åpen kjøkkenløsning mot stuen skaper et luftig og sosialt rom. Kjøkkenet har godt med skap- og benkeplass.
Lekker kjøkkeninnredning med slette fronter og benkeplate i tre. Frontene ble lakkert i 2021. Oppvaskkum i kompositt med ettgreps armatur. Benkeskapsbelysning og stikkontakt under overskap.
Integrert kjøleskap, komfyr (2022), platetopp, oppvaskmaskin (2022) og kjøkkenventilator tilkoblet avtrekkskanal. Komfyrvakt og lekkasjestopper er etablert.
BAD:
Pent og romslig bad med varmekabler og opplegg for vaskemaskin. Vegghengt servantskap med ettgreps armatur. Vegghengt speilskap.
Dusjhjørne med glassdør og togreps armatur koblet til hånddusj og regndusj. Vegghengt toalett med innebygget sisternekasse.
SOVEROM I:
Romslig hovedsoverom med plass til dobbeltseng og nattbord samt garderobeskap. Utgang til nordvestvendt markterrasse på 18 kvm.
SOVEROM II:
Soverom som passer godt som barnerom, gjesterom eller kontor. Plass til seng, garderobeskap og skrivepult.
SYDØSTVENDT MARKTERRASSE:
Markterrasse på 17 kvm som vender inn mot indre gård. Terrassen er skjermet med hekk og levegger og oppleves som usjenert.
Gode solforhold med sol fra ca. kl. 08–15 sommerstid ifølge selger.
Port fra felles bakgård gir enkel tilgang til ski, sykkel og barnevogn. Terrassen har markise og utvendig stikkontakt.
NORDVESTVENDT MARKTERRASSE:
Markterrasse som vender mot nordvest. Selger opplyser om sol fra ca. kl. 15–21 sommerstid.
Terrassen er på 18 kvm og er skjermet med levegger og busker. Her er det god plass til flere sittegrupper og grill.
Utekjøkkenbenk med oppbevaring under – perfekt for utemiddager og hyggelige sammenkomster. Terrassen har utvendig stikkontakt.
DIVERSE:
- Varme i alle gulv med smartsystem.
- Heis til garasjeanlegg.
- Garasjeplass med elbillader.
- Kjellerbod på 5 kvm.
Løsøre og tilbehør
Vi viser til liste fra Norges Eiendomsmeglerforbund som gjelder fra 01.01.2020 angående løsøre og tilbehør.
Følgende hvitevarer følger med:
Kjøleskap (2020), oppvaskmaskin (2021), komfyr (2022) og platetopp (2020).
Det gjøres oppmerksom på at hvitevarene er kjøpt for noen år tilbake, og kjøper må forvente slitasje som følge alder og normal bruk.
Dette medfølger ikke:
- Vegg-garderobe: Klær/skohylle (String).
- Bokhylle i stue (String).
- Taklampe kjøkken.
- 2 stk knagger til klær, venstre for innebod i gangen.
- Elfa innredning garderobeskap soverom 2.
- Nattbord vegglamper hovedsoverom.
- Fryseskap i innebod.
- Vaskemaskin bad.
- Parasoll på markterrasse bak.
Oppvarming
Leiligheten er oppvarmet med elektrisk gulvvarme på bad (varmekabel), kombinert med elektrisk gulvvarme i øvrige rom (varmefolie).
Dersom beboelsesrom ikke har vegg- eller fastmonterte varmekilder ved visning, følger dette heller ikke med.
Ferdigattest/brukstillatelse
Det foreligger ferdigattest på eiendommen datert 06.10.2011. Denne kan fås ved henvendelse til megler.
Kjøper overtar eiendommen slik den framstår på visning.
Tinglyste heftelser og rettigheter
Leiligheten overdras fri for pengeheftelser.
Sameiet har legalpant for krav mot sameieren som følger av sameieforholdet iht. eierseksjonsloven § 31. Pantet er begrenset oppad til 2G, (G = folketrygdens grunnbeløp).
Eiendommen har to tinglyste rettigheter; Rett til bruk av fellesareal og Bestemmelse om felles bruk. Rettighetene er tinglyst på henholdsvis gnr. 86, bnr. 979 (fellesareal) med dagboknr. 503286, tinglyst 20.08.2008. og gnr. 86, bnr. 1008 (felles gjesteparkering) med dagboknr. 274648, tinglyst 26.03.2015.
Eventuell adgang til utleie
Leiligheten kan leies ut såfremt leiligheten har forsvarlige radonverdier. Leietaker må følge sameiets vedtekter og ordensregler på lik linje som eier. Leietaker skal godkjennes av styret.
Beliggenhet og tomteforhold
Beliggenhet og tomteforhold
Beliggenhet
Øverst på Årvoll, tett inntil markagrensen, ligger Årvollskogens tre boligsameier. Området er svært populært for mennesker med sans for trening, tur og friluft.
På baksiden av sameiet ligger inngangsporten til Lillomarka. Både varierte sykkelstier, koselige turstier, Oslo Skisenter og fantastiske skiløyper/lysløyper starter her! Alpinanlegget har bakker for både store og små. Hyppig preparering og lite folk i bakken, gir ofte nydelige skiforhold og til og med mulighet for pudderkjøring på de beste vinterdagene!
Inn til koselige betjente markastuer, som bl.a. Linderudkollen og Trollvannstua, er det kun 15-30 minutter enten du går på ski eller til fots. Hit kan du enkelt komme deg frem også med barnevogn.
Rusletur til Grefsenkollen hvor man kan nyte uteservering med spektakulær utsikt. Her arrangeres også musikkfestivalen "Over Oslo" i juni hvert år. Bor du i Årvollskogen er det perfekt å rusle hjem fra konsert i sommernatta.
Vakre Isdammen, kun 250 meter unna, er nærmeste lille badevann. Hit går turen for både barn som vil vasse i vannet, foreldre som vil ha seg en dukkert og for de som ønsker et idyllisk sted å grille pølser og drikke kaffe. Oppe på Isdammen ligger også en oppusset hytte, som kan leies i forbindelse med barnebursdager o.l.
Til tross for at Årvollskogen ligger ved markagrensen, er det kun 7 km til Grünerløkkas spennende fasiliteter og mindre enn 10 km til Oslo sentrum. Meget effektivt og godt kollektivtilbud fra Årvoll (Stig) til sentrum. (Buss nr. 25, 26 og 31). I tillegg går 31-bussen gjennom hele natten fra sentrum til Årvoll.
Setter du pris på umiddelbar nærhet til marka og enkel adkomst til sentrum? Da er Årvollskogen et fantastisk alternativ!
Barnehager, skoler og fritid
Skoler:
Tonsenhagen skole (1-7 kl.), ca. 1.2 km
Årvoll skole (1-10 kl.), ca. 1.2 km
Bjerke videregående skole, ca. 2.8 km
Kuben videregående skole, ca. 4.5 km
Barnehager:
Skytterbanen FUS barnehage 0.1 km - ny sommer 2021
Årvollskogen barnehage (10 mnd-6 år) 0.1 km
Kilden barnehage (1-6 år), ca. 0,5 km - ny i 2018
Sletta barnehage (1-6 år), ca. 0,5 km
Skauen barnehage (3-6 år) ca. 0.5 km
Tonsenhagen barnehage (1-6 år), ca. 1,0 km)
Kolåsbakken barnehage (1-6 år, ca. 1,0 km
Årvollveien 60F sogner til Tonsenhagen barneskole.
Informasjon om tilhørende skolekretser er hentet fra Prognosesenteret som dataleverandør og tilhørigheten kan årlig endres av kommunen. Dersom skole- og barnehagetilbud er av betydning for kjøpet, ber vi om at det rettes en særskilt henvendelse til kommunen/bydelsadministrasjonen for oppdatert informasjon.
Beskrivelse av tomt
Eiet tomt på 2 789 kvm som tilhører sameiet. Tomten er fellesareal.
Beboerne i Årvollskogen disponerer et stort og meget flott opparbeidet felles parkområde med plen, beplantning, idyllisk vannspeil, sittegrupper og lekeplass. De asfalterte internveiene inne i parken er bilfrie og fine til bruk når små barn skal lære å sykle/lære å bruke sparkesykkel. Parkarealet gir i det hele tatt mange muligheter for sosiale aktiviteter både for barn og voksne.
De deler av eiendommen som ikke inngår i de enkelte bruksenheter er fellesareal. Seksjonseieren har enerett til å bruke sin bruksenhet. Seksjonseieren har også rett til å bruke fellesarealene til det de er beregnet til eller vanligvis brukes til og til annet som er i samsvar med tiden og forholdene.
Parkering
Det medfølger en garasjeplass med elbillader i felles garasjeanlegg. Plassen er en ideell andel av Sameiet Årvollskogen Garasjeanlegg.
Det er mulig å selge/leie ut egen garasjeplass til andre i de tre sameiene i Årvollskogen.
På baksiden av Årvollveien 60 har de tre sameiene i Årvollskogen egen gjesteparkeringsplass som kan benyttes mot betaling. Ellers gateparkering etter områdets bestemmelser.
Vei, vann og avløp
Eiendommen har adkomst via kommunal vei (Årvollveien) og via privat vei, samt private innerveier med felles vedlikeholdsansvar for sameiet.
Eiendommen er tilknyttet kommunalt ledningsnett via private stikkledninger.
Sameiet er ansvarlig for private stikkledninger til bygningen.
Regulerings-og arealplaner
Eiendommen er regulert til boligformål i henhold til reguleringsplan S-3936 datert 06.11.2002 med tilhørende reguleringsbestemmelser.
Utsnitt av plan med tilhørende bestemmelser kan fås ved henvendelse til megler.
Tomten i Østreheimsveien 28 A (ridesentertomten som ligger mellom Årvollskogen og Grefsenkleiva) er i dag regulert til bygging av ridesenter. Ridesentertomten er for øvrig solgt til entreprenørselskapet Vedal AS. Eier av tomten ønsker å utvikle eiendommene gnr. 86, bnr. 1001 og deler av 458 til boligformål. Forslaget legger til rette for et boområde bestående av ca. 250 boenheter. Til sammen planlegges det for at Årvolltunet inneholder ca. 250 boenheter, og prosjektet vil i stor grad preges av større enheter og rause grøntarealer. En andel rekkehus vil i tillegg gi en god overgang fra småhusområdet og nabobebyggelsen. Prosjektet tilrettelegger for grendehus som er tilgjengelig for hele nærmiljøet samt en liten sykkelbane/skøytebane og tuftepark. For mer informasjon om prosjektet se https://www.vedal.no/prosjekt/arvolltunet/.
Fylkesmannen gav tillatelse til oppstart av planarbeid 25. september 2020 og på oppstartsmøtet som ble avholdt i august 2020 sier Plan- og Bygningsetaten at de er åpne for å se på en omregulering av tomten. Utbygger varslet oppstart av planarbeid 30.10.2020 og 06.01.2023 ble det sendt planforslag til offentlig ettersyn. P.t pågår det en oppdatering av planforslaget etter offentlig ettersyn.
For videre informasjon konferer megler eller se saksnummer 202003584 hos Plan- og Bygningsetaten.
Bymiljøetaten har startet et arbeid for å regulere dagens alpinanlegg i Trollvannskleiva og Grefsenkleiva. Det foreligger planer om ny stolheis, ny varmestue samt utvidelse av løypene. Planforslaget ble sendt til offentlig ettersyn 13.06.2025. Se saksnummer 201802070 hos Plan- og Bygningsetaten.
Vann- og avløpsetaten i Oslo kommune (VAV) ønsker å anlegge et omløp i tunnel forbi Årvollbassenget som ligger i Årvollåsen. Tiltaket er nødvendig for å få utført vedlikehold av bassenget. I tillegg ønskes det å regulere eksisterende overføringstunnel for drikkevann mellom Oset og Bredtvet/Rødtvet. Dette for å gi anlegget en planmessig beskyttelse. Årvollbassenget har i dag atkomsttunnel i begge ender via tunnelinnganger ved Tonsenhagen og nord for Isdammen. Disse atkomstene vil benyttes i arbeidet. Adkomsten ved Isdammen går via Årvollkrysset på rv. 4 og Årvollveien videre til
Isdammen og på Hadelandsveien i Marka videre. Det må forventes aktivitet med tungtrafikk i bygge- og anleggs perioden.
Planforslaget ble stadfestet 15.10.2025. Se saksnummer 202452124 og 2025/06797 hos Plan- og Bygningsetaten.
I Årvollveien 57 er det gitt tillatelse til tiltak for søknad om underbygg, innbygging av veranda og bruksendring fra tilleggsdel til hoveddel. Tillatelsen ble gitt 05.11.2025. Se saksnummer 2025/11691 hos Plan- og Bygningsetaten.
Økonomi
Økonomi
Boligens kostnader
Fellesutgiftene er kr 4 891,36,- pr. mnd. og inkluderer: varmtvann, garasjeplass, sportsbod, kabel-tv og internett fra Telia, felles bygningsforsikring, vaktmestertjeneste, trappevask, kommunale avgifter m.m.
Felleskostnadene justeres etter borettslagets faktiske utgifter, normalt en til to ganger årlig. Det tas forbehold om at felleskostnadene kan justeres fortløpende pga. renteøkninger etc.
Fellesutgiftene fordeles slik:
Felleskostnader kr 3 649,36,-
Sparing til vedlikehold kr 223,-
Ringeklokke kr 27,-
Kabel-TV kr 476,-
Garasje og sportsbod kr 516,-
Det er innført eiendomsskatt i Oslo kommune, men dette tilkommer ikke på denne boligen pt.
Nåværende eier har hatt et strømforbruk som tilsvarte kr 6.070,- / 5.569 kwh for 2025.
Selger har avtalt Norgespris på strøm på eiendommen ut oktober 2026, og denne er på 50 øre per kWh (inkl. mva). Nettleie, avgifter og påslag fra kraftleverandøren kommer i tillegg. Er det fjernvarme vil det også komme kostnader i tillegg. Denne avtalen vil følge eiendommen i den avtalte perioden.
Les mer om Norgespris her: https://www.regjeringen.no/no/aktuelt/legg-fram-lov-om-norgespris-pa-straum-og-fjernvarme/id3102642/
Boligen er tilknyttet Telia som leverandør av kabel-tv og internett (Bredbånd 1000/500 Mbps). Dekoder medfølger ikke.
Kjøper må selv tegne innboforsikring.
Formuesverdi
Ved hjelp av skatteetatens boligkalkulator er boligens formuesverdi beregnet til kr 1 414 810 ,- for fjoråret når boligen benyttes som primærbolig.
Formuesverdien er en gitt prosent av den beregnede markedsverdien. Beregnet markedsverdi er basert på Statistisk sentralbyrå (SSB) sine opplysninger om omsatte boliger. I beregningen tas det hensyn til boligens beliggenhet, areal, byggeår og boligtype.
Det er eier av boligen som fastsetter formuesverdien, jf. skatteforvaltningsloven § 9-1 første ledd, men skattemyndighetene kan kontrollere at verdien er satt riktig.
Formuesverdi skal ikke overstige:
Primærbolig: 25 % av beregnet eller dokumentert markedsverdi opp til kr. 10 000 000, og deretter 70 % av den overskytende markedsverdi.
Sekundærbolig: 100 % av beregnet eller dokumentert markedsverdi.
Formuesverdier som overstiger disse grensene, kan kreves nedjustert av eier.
Fra 2026 har Stortinget vedtatt en oppdatert modell for beregning av formuesverdi for primærbolig, så avvik kan forekomme.
For mer informasjon se skatteetaten.no.
Opplysninger om fellesgjeld
Andel formue er kr 21 494,- pr. 31.12.2025.
Det er ikke fellesgjeld i sameiet p.t.
Omkostninger
6 300 000,00 Prisantydning
Omkostninger
157 500,00 Dokumentavgift til staten (2,5% av kjøpesum)
9 950,00 Gjensidige Boligkjøperpakke (valgfri)
545,00 Tinglysing panterettsdokument
545,00 Tinglysing skjøte
--------------------------------------------------------
168 540,00 Omkostninger totalt
--------------------------------------------------------
6 468 540,00 Totalpris inkl. omkostninger
--------------------------------------------------------
Totalpris inkl. omkostninger forutsetter kjøp til prisantydning.
Det tas forbehold om endringer i avgifter og gebyrer.
Betalingsbetingelser
Kjøpesum inkludert omkostninger, samt pantedokument tilknyttet eventuelt lån, skal være disponibelt hos megler 2 virkedager før overtagelsen.
Annen viktig informasjon
Annen viktig informasjon
Eier
Sindre Habberstad og Marte Furset Søderlund
Informasjon om sameiet
Leiligheten er tilknyttet Årvollskogen boligsameie II, med sameiebrøk 78/9459.
Sameiet består av 105 leiligheter.
Forretningsfører er OBOS Eiendomsforvaltning AS, tlf. 22 86 55 00.
Forsikret hos: If Skadeforsikring Nuf med polisenr. 1241208.
Dugnad må påregnes.
Dyrehold er tillatt så lenge det ikke er til sjenanse for andre beboere.
Praktisk arbeid utført i 2025:
• Trappegangene har blitt bonet
• Utbedring av sti bak huset, frem til parkeringsplassen slutter. Dette med tanke på vedlikeholdsarbeid.
• Det er kjøpt inn robot gressklipper som skal iverksettes nå til sommeren
• Snøfreser er kjøpt inn slik at vi kan få sykebil, brannbil og søppelbilen frem, dersom vaktmester ikke har fått dette til i tide
• Det har vært nødvendig vedlikehold av heiser.
• Alle tak er sjekket. Dette pga. slitasje og værforhold. Det er foretatt noen reparasjoner rundt dette. Vil få inn priser på rehabilitering av takene og vil legge dette inn i vedlikeholds planen.
• Vifter på tak har blitt gått over 2 ganger pr. (34.stk)
• Dører har blitt fikset
• Alle hovedtavler/fellesanlegg (sikringsskap i kjeller) er oppdatert til nye jordfeilautomater, overspenningsvern, slik at brannsikkerheten er ivaretatt.
• Vaktmesteravtale er sagt opp for sameie 2 men ikke for felles områdene og vi har ute anbudskonkurranse for å få inn ny vaktmester/tjenester.
Planlagte påkostninger:
Styreleder bekrefter at det ikke er noen planlagt kostnader i sameiet, annet enn vanlig indeksregulering av felleskostnader.
Iht. sameiets vedtekter må kjøper godkjennes av styret som ny sameier. Det er kjøpers ansvar at styregodkjenning blir gitt, men styret kan ikke nekte godkjenning uten saklig grunn.
Vi gjør videre oppmerksom på at det iht. eierseksjonsloven ikke er anledning å erverve mer enn 2 seksjoner i sameiet, her teller også eierskap via. firma, nærstående og familie. Kjøper har risikoen for at overskjøting på denne bakgrunn kan nektes av Statens Kartverk. I så fall vil kjøper uansett være forpliktet til å gjennomføre handelen, og oppgjør til selger vil finne sted tross manglende overskjøting. Konferer med megler for mer informasjon.
Dokumenter for sameiet kan fås ved henvendelse til megler.
Overtakelse
Etter nærmere avtale.
Boligselgerforsikring
Selger har i forbindelse med salget tegnet boligselgerforsikring levert av Gjensidige.
Boligselgerforsikringen dekker selgers ansvar etter avhendingsloven begrenset oppad til kr 14 millioner. Dersom kjøper oppdager forhold ved eiendommen som hen mener utgjør en mangel ved eiendommen, vil Gjensidige behandle reklamasjonen på vegne av selger. Forsikringsvilkår kan fås ved henvendelse til megler.
Vedlagt salgsoppgaven følger selgers egenerklæringsskjema og tilstandsrapport. Interessenter må sette seg inn i dokumentene før bud inngis.
Boligkjøperforsikring
Innen kontraktsmøtet må kjøper ta stilling til om det ønskes å bestille Boligkjøperpakken gjennom Gjensidige. I denne gunstige pakken er boligen ferdig forsikret og inkluderer rettshjelpsforsikring, også kalt Boligkjøperforsikring. Rettshjelpsforsikring gir trygghet og tilgang på profesjonell juridisk hjelp dersom det oppdages uventede feil eller mangler det første året etter overtagelse. Forsikringsselskapet behandler i så fall ethvert mangelskrav kjøper måtte ha overfor selger.
Boligkjøperpakken inkluderer bygningsforsikring for hus og hytte, innboforsikring, flytteforsikring og dobbel rentedekning - i situasjoner hvor kjøper ikke får solgt nåværende primærbolig.
Kjøper mottar ingen særskilt faktura for Boligkjøperpakken da kostnaden det første året legges til kjøpesummen for boligen. Det gjøres oppmerksom på Krogsveen mottar et honorar for denne formidlingen.
Produktark for Boligkjøperpakken ligger vedlagt i salgsoppgaven.
Dersom ikke boligkjøperpakke ønskes kan kun rettshjelpsforsikring, også kalt boligkjøperforsikring, tegnes særskilt via megler. Rettshjelpsforsikringen varer i 5 år fra overtagelse og leveres gjennom Gjensidige. Ta kontakt med megler for ytterligere informasjon.
Selskap og privatpersoner som driver med kjøp/salg/utvikling som ledd i egen næringsvirksomhet kan ikke tegne boligkjøperpakke eller rettshjelpsforsikring.
Budgivning
Forbrukerinformasjon om budgivning er vedlagt denne salgsoppgaven og er også på vår hjemmeside Krogsveen.no. Alle bud og budforhøyelser må inngis skriftlig. I tillegg må legitimasjon være fremlagt sammen med signatur fra budgiver.
Vi oppfordrer til å gi bud elektronisk via GI BUD-knappen på eiendommens hjemmeside på Krogsveen.no. Da vil samtlige vilkår bli oppfylt.
Eventuelle forhøyelser eller endringer av budet kan bekreftes pr SMS eller på e-post. Vi oppfordrer alltid til å kontakte megler pr. telefon i tillegg da forsinkelser i SMS og e-post kan forekomme.
For at budene skal kunne bli behandlet og videreformidlet skriftlig til alle involverte parter, må alle bud ha en tilstrekkelig lang akseptfrist, jf. eiendomsmeglingsforskriften § 6-3.
Selger må også skriftlig akseptere budet før aksept kan formidles til budgiver. Akseptfrist bør derfor være på minimum 30 minutter, og budforhøyelser må derfor skje i god tid før fristens utløp.
Bud i forbrukerforhold kan uansett ikke settes med kortere frist enn kl. 12.00 første virkedag etter siste annonserte visning. I tillegg kan ikke budet ha forbehold om at det skal holdes hemmelig ovenfor øvrige interessenter. Megler har iht lov om eiendomsmegling ikke anledning til å videreformidle disse budene, og de vil dermed heller ikke bli journalført.
Etter at eiendommen er solgt vil kjøper og selger få tilsendt budjournal. Øvrige budgivere kan få utlevert kopi av budjournalen i anonymisert form.
Hvitvaskingsreglene
I henhold til lov om hvitvasking og terrorfinansiering har megler plikt til å gjennomføre kontrolltiltak overfor kunder, herunder fullmektiger. Dette innebærer bl.a. å bekrefte kunders og reelle rettighetshaveres identitet på bakgrunn av fremvist gyldig legitimasjon eller på annen godkjent måte, samt å innhente opplysninger om kundeforholdets formål og tilsiktede art.
Dersom slike kundetiltak ikke kan gjennomføres, kan megler ikke etablere kundeforholdet eller utføre transaksjonen.
Hvis kjøper ikke bidrar til gjennomføring av kundekontrollen og dette fører til at transaksjonen blir forsinket eller ikke kan gjennomføres, vil dette ansees som mislighold av avtalen og gi selger rettigheter etter avhendingslova kapittel 5. I tilfeller der selger ikke bidrar til gjennomføring av løpende kundekontroll underveis i oppdraget, er det selger som misligholder sine forpliktelser etter avtalen og gi kjøper rettigheter etter avhendingslovens kapittel 4. Partene er selv ansvarlige for eventuelle kostnader og ansvar dette kan medføre. Eiendomsmegleren eller eiendomsmeglingsforetaket kan ikke holdes ansvarlig for de konsekvenser dette vil kunne få for partene eller andre som har interesser i eiendomshandelen.
Kjøper oppfordres til å innbetale kjøpesummen som ikke kommer fra låneinstitusjon i én samlet innbetaling fra egen konto i norsk bank. Megler har plikt til å melde fra til Økokrim om eiendomshandler som fremstår som mistenkelige. Melding sendes Økokrim uten at partene varsles.
Personopplysningsloven
I henhold til personopplysningsloven gjør vi oppmerksom på at interessenter kan bli registrert for videre oppfølging.
Lovanvendelse
Generelle bestemmelser
Salgsoppgaven er basert på de opplysningene selger har gitt til megler, den bygningssakyndiges tilstandsrapport, samt opplysninger innhentet fra kommunen, Kartverket og andre tilgjengelige kilder. Det er viktig at kjøper setter seg grundig inn i alle salgsdokumentene, herunder salgsoppgave, tilstandsrapport og selgers egenerklæring. Kjøper anses kjent med forhold som er tydelig beskrevet i salgsdokumentene, og slike forhold kan ikke påberopes som mangler. Dette gjelder uavhengig av om kjøper har lest dokumentene. Alle interessenter oppfordres til å undersøke eiendommen nøye, gjerne sammen med fagkyndig før bud inngis. Kjøper som velger å kjøpe usett kan ikke gjøre gjeldende som mangel noe han burde blitt kjent med ved undersøkelsen.
Dersom det er behov for avklaringer, anbefaler vi at interessenter rådfører seg med eiendomsmegler eller egne rådgivere før det legges inn bud.
En bolig som har blitt brukt i en viss tid, har vanligvis blitt utsatt for slitasje og skader kan ha oppstått. Slik bruksslitasje må kjøper regne med, og det kan avdekkes enkelte forhold etter overtakelse som nødvendiggjør utbedringer. Normal slitasje og skader som nødvendiggjør utbedring, er innenfor hva kjøper må forvente og vil ikke utgjøre en mangel.
Kjøper og selgers rettigheter og plikter reguleres av avtalen mellom partene, samt informasjonen som har vært tilgjengelig for kjøperen i forbindelse med handelen. Avtalen utfylles av avhendingsloven, og det gjelder ulike avtalevilkår avhengig av om kjøper er forbrukerkjøper eller ikke. Dette er nærmere beskrevet nedenfor.
På grunn av ulike avtalevilkår kan selger vurdere bud fra en som ikke er forbruker, ulikt fra en forbrukers bud. Dersom kjøper ikke er forbruker, er selger sitt mulige mangelsansvar begrenset fordi eiendommen selges "som den er". Selger kan ikke ta «som den er»- forbehold overfor en forbrukerkjøper. Selv et lavere bud fra en som ikke er forbruker kan foretrekkes fordi begrensningen i mulig mangelsansvar kan ha egenverdi for selger. Selger står fritt til å forkaste eller akseptere ethvert bud, og er for eksempel ikke forpliktet til å akseptere høyeste bud.
Budgiver skal i budskjema avgi egenerklæring om budgiver er forbruker eller næringsdrivende/ person som hovedsakelig handler som ledd i næringsvirksomhet. Budgivere får informasjon dersom andre bud er inngitt av en som ikke er forbruker.
Forbrukerkjøp - definisjon
Med forbrukerkjøp menes kjøp av eiendom når kjøperen er en fysisk person som ikke hovedsakelig handler som ledd i næringsvirksomhet.
Forbruker – avtalevilkår
Eiendommen har en mangel dersom den ikke er i samsvar med kravene som følger av avtalen, eller det foreligger brudd på bestemmelsene i avhendingsloven §§ 3-2 til 3-8. Hvis eiendommen ikke er i samsvar med det kjøperen må kunne forvente ut ifra alder, type og synlig tilstand, kan det være grunnlag for mangelskrav. Det samme gjelder hvis det er holdt tilbake eller gitt uriktige opplysninger om eiendommen. Dette gjelder likevel bare dersom man kan gå ut ifra at det virket inn på avtalen at opplysningen ikke ble gitt eller at mangelskravet ikke blir rettet i tide på en tydelig måte.
Boligen kan ha en mangel etter avhendingsloven § 3-3 andre ledd, dersom det er avvik mellom opplyst og faktisk innvendig areal, forutsatt at avviket er på 2% eller mer og minimum 1 kvm.
Ved beregning av et eventuelt prisavslag eller erstatning må kjøper selv dekke tap/kostnader opptil et beløp på kr 10 000 (egenandel).
Ikke-forbruker (næringsdrivende) – definisjon
Hvis kjøper er en juridisk person, eller en fysisk person som hovedsakelig handler som ledd i næringsvirksomhet, vil kjøpet ikke anses som et forbrukerkjøp.
Ikke-forbruker – avtalevilkår
Eiendommen har en mangel dersom den ikke er i samsvar med kravene som følger av avtalen.
Eiendommen selges «som den er», og selgers ansvar utover det konkret avtalte er da begrenset etter avhendingsloven § 3-9, første ledd andre setning.
Avhendingsloven § 3-3 andre ledd fravikes, og hvorvidt boligens arealsvikt utgjør en mangel vurderes etter avhendingsloven § 3-8.
Informasjon om kjøpers undersøkelsesplikt, herunder oppfordringen om å undersøke eiendommen nøye, gjelder også for kjøpere som ikke anses som forbrukere.
Det forutsettes at hjemmel overføres til kjøper. Hvis kjøper ikke ønsker hjemmelsoverføring av eiendommen, må det tas forbehold om dette i budet.
Meglers vederlag
Meglers vederlag betales av selger og er avtalt til:
Vederlag: 1,00 % av salgssummen inkl. eventuell fellesgjeld.
Vederlag:
Kontroll av hjemmel og heftelser kr 3 900,00
Markedsføringspakke kr 30 900,00
Oppgjør kr 8 900,00
Tilrettelegging inkl. konsultasjon med stylist kr 2.200,- kr 19 900,00
Visninger pr stk / Overtagelse - 2 første til prisen av 1 kr 4 500,00
Utlegg:
Eierskiftegebyr forretningsfører kr 6 725,00
Innhenting av informasjon forretningsfører kr 4 000,00
Tinglysing sikring kr 545,00
Andre utgifter:
AX tilstandsrapport leilighet kr 9 950,00
Boligselgerforsikring - regnes av prisantydning (valgfri) kr 28 854,00
Foto kr 5 550,00
Vi er opptatt av verdiskapning, og har knyttet til oss samarbeidspartnere som skal sikre våre kunder de beste produkter og tjenester;
• I forbindelse med forberedelse av salget, innhenter vi informasjon om eiendommen hovedsakelig fra vår samarbeidspartner Ambita.
• Gjensidige leverer boligselgerforsikring og tilbyr bygningsforsikring
• Boligkjøperforsikring leveres av Hiscox og med Sedgwick som skadebehandler, og er formidlet gjennom Gjensidige.
• BN bank tilbyr finansieringsløsninger
• Vår avdeling Krogsveen Pluss tilbyr flyttetjenester som utvask, visningsvask, lager, tømming og transport av flyttelass, i tillegg til å formidle kontakt med Flip for overflateoppussing.
• I forbindelse med overtagelse av eiendommen tilbyr Overo avtale om strøm, alarm og bredbånd.
• Krogsveen er, sammen med øvrige bransjeaktører, medeier i den digitale annonseringsplattformen Hjem som eies av Bomega AS.
Opplysninger om oppdraget
Oppdragsnummer 39-0024/26
Eiendomsmegler Krogsveen AS, avd. Årvoll
Lofthusveien 66, 0588, OSLO
950 007 613
Oppdragets KR-kode KR39.2624
Dato
Sist oppdatert: 10. april 2026 kl. 19:36
Dokumenter
Dokumenter
PDF – 1003 KB
PDF – 627 KB
PDF – 3 MB
PDF – 2 MB
PDF – 953 KB
PDF – 1 MB
PDF – 3 MB
PDF – 456 KB
PDF – 312 KB
PDF – 29 KB
PDF – 127 KB
PDF – 392 KB
Område
Legg til steder som er viktige for deg
Visning
Unngå doble boligrenter
Vi tilbyr gunstig forsikring.
Vurderer du utleie?
Få et tilbud fra Utleie KrogsveenHva koster lånet?
Sjekk estimert lånekostnadVil du varsles om lignende boliger?
Ved å lagre ditt boligsøk hos oss får du beskjed når vi har en bolig som ligner denne, før den legges ut på markedet!

