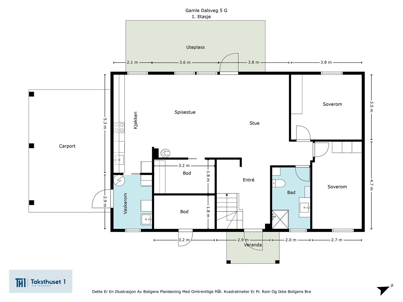
Gamle Dalsveg 5G
5 990 000 kr
154 m²
4 soverom
Solgt

Presenteres av
Christian Blenne LienMaura
Enebolig fra 2017 med god standard | Sentralt&Landlig |Barnevennlig | Stor og solrik hage | Carport | Buss rett ved
Prisantydning
5 990 000 krOmkostninger
170 740 krTotalpris
6 160 740 kr
Pris
Bruksareal
159 m²BRA-I (internt bruksareal)
154 m²BRA-E (eksternt bruksareal)
5 m²TBA (terrasse-balkongareal)
24 m²
Areal
Byggeår
2017Soverom
4 soveromBad
1 badTomteareal
780 m² (eiet)Type
Enebolig - FrittliggendeEierform
EietEnergimerke
Rød C
Nøkkelinfo
Unngå doble boligrenter
Vi tilbyr gunstig forsikring.
Vurderer du utleie?
Få et tilbud fra Utleie KrogsveenHva koster lånet?
Sjekk estimert lånekostnadBeskrivelse
Kort om eiendommen
Velkommen til Gamle Dalsveg 5G – En nyere og pen enebolig beliggende i naturskjønne omgivelser.
Carport
Boligen har en fin planløsning der arealet er godt utnyttet
Åpen kjøkkenløsning med plass til spisegruppe og stue med mye naturlig lys
To stuer som gir mulighet for ulike aktiviteter
4 soverom
Stort uteområde med markterrasse
Stille og barnevennlig område
Kort avstand til Maura sentrum med forretninger, barnehage og barneskole
Enkel tilgang til offentlig transport og kort vei til flyplassen
Idyllisk og solfylt beliggenhet med fine turmuligheter i nærheten
Kun 13 min med bil til Oslo lufthavn og E6-aksen - perfekt for pendling!
Kontakt megler for visning
Område
Legg til steder som er viktige for deg
På flyttefot? Tenk kjøp og salg samtidig.
Få din egen rådgiver gjennom hele kjøps- og salgsprosessen. Det starter med en verdivurdering.
Unngå doble boligrenter
Vi tilbyr gunstig forsikring.
Vurderer du utleie?
Få et tilbud fra Utleie KrogsveenHva koster lånet?
Sjekk estimert lånekostnadVil du varsles om lignende boliger?
Ved å lagre ditt boligsøk hos oss får du beskjed når vi har en bolig som ligner denne, før den legges ut på markedet!
På flyttefot? Slik gjør vi det enklere for deg
Skreddersydd flyttepakke
Vi fikser håndverkere, vask, pakking, lagring og transport, og legger ut for utgiftene underveis.
Hjelp med både kjøp og salg
Hos oss har du din egen rådgiver gjennom hele kjøps- og salgsprosessen.
Hjelp til finansiering
Vårt samarbeid med BN Bank sikrer deg rask og løsningsorientert hjelp, til konkurransedyktige betingelser.

