Stålverkskroken 14B
3 300 000 kr
50 m²
1 soverom
Komplett salgsoppgave
Ensjø
Attraktiv og romslig 2-R leilighet | Vestvendt balkong på 10kvm | Garasjeplass | IN-ordning | A-konto fyring/vv inkl.
Prisantydning
3 300 000 krAndel fellesgjeld
1 672 001 krOmkostninger
11 890 krTotalpris
4 983 891 kr
Pris
Bruksareal
55 m²BRA-I (internt bruksareal)
50 m²BRA-E (eksternt bruksareal)
5 m²TBA (terrasse-balkongareal)
10 m²
Areal
Etasje
5Byggeår
2014Soverom
1 soveromBad
1 badType
AndelsleilighetEierform
AndelFasiliteter
Garasje/P-plass, Heis og Balkong/TerrasseFellesutgifter
12 960 krEnergimerke
Lysegrønn B
Nøkkelinfo
Unngå doble boligrenter
Vi tilbyr gunstig forsikring.
Vurderer du utleie?
Få et tilbud fra Utleie KrogsveenHva koster lånet?
Sjekk estimert lånekostnadBeskrivelse
Kort om eiendommen
Innhold og byggemåte
Innhold og byggemåte
Eiendommen
Stålverkskroken 14B, 0661 OSLO
Kommunenummer 301, gårdsnummer 129, bruksnummer 101, ideell andel 1/1
Andelsnummer 30, Stålverksparken Borettslag, organisasjonsnummer 911845377
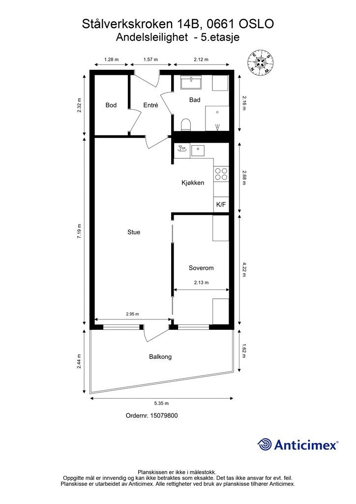
Innhold
Totalt bruksareal BRA: 55 kvm
BRA-i:
5. etasje 50 kvm: Entré, bad, bod, soverom og stue med åpen kjøkkenløsning.
BRA-e:
-1. etasje 5 kvm: Kjellerbod
Åpent areal:
5. etasje 10 kvm: Vestvendt balkong
Boligen disponerer en bod som befinner seg i kjelleretasjen. Det gjøres oppmerksom på at boligens eksterne boder tilhører borettslagets fellesareal, og at boden således ikke eies av den enkelte andelseier. Dette medfører at borettslaget i fellesskap beslutter bruken, og at man ikke selv har eierrett og rettsvern for boden. Borettslaget kan ved vedtak beslutte annet bruk av fellesarealet og disponering av bodarealet kan dermed opphøre.
Vedlagte plantegninger er ikke målbare. De oppgitte arealer er hentet fra rapport med befaringsdato 27.02.2026 utført av Anticimex v/ Lars Erik Bergersen.
Byggemåte
Selger har fått utarbeidet en tilstandsrapport, dvs. en teknisk gjennomgang av boligen hvor eventuelle avvik, risiko for kjøper og prisoverslag for hva som bør gjøres av oppgradering, er skissert. Se særskilt TGIU (tilstandsgrad ikke undersøkt), samt TG2 og TG3 som viser hva som er avvik fra boligens normale slitasje, alder og type, eller som bør/må utbedres. Rapporten og selgers egenerklæring er en del av salgsoppgaven og må leses nøye før bud inngis. Kjøper overtar ansvaret for de opplysninger som fremkommer av salgsdokumentasjonen, og kan ikke gjøre gjeldende som mangel noe som burde vært kjent eller som ikke kan anses å ha betydning for avtalen.
Bygningen er iht. tilstandsrapporten oppført i 2014. Grunnmur og bærende konstruksjoner i hovedsak av betong. Bygget er oppført med parkeringsanlegg i nederste etasje. Utvendige fasader av murpuss samt liggende trekledning. Etasjeskillere av betong. Flatt tak. Yttertak er vurdert tekket med takmembran/takpapp (ikke besiktiget). Leiligheten har glatt entrédør av tre med kikkhull. Brannklasse B30 og lydklasse 35db. Vinduer og balkongdør med karmer av tre og to-lags glass fra byggår. Boligen ventileres hovedsakelig gjennom et mekanisk balansert ventilasjonssystem.
Det gjøres spesielt oppmerksom på:
TG2:
- Det er ukjent om ventilatoren gir tilstrekkelig avtrekk. Det er foreslått tiltak med nærmere undersøkelser for å avklare behovet for eventuelle tiltak.
TGIU (tilstandsgrad ikke undersøkt)
- Hulltaking i vegg bak våtsone er ikke foretatt da det ikke er fysisk mulig pga. tilliggende konstruksjoner.
- Innvendig stakeluke er ikke påvist inne i boenheten, og er ikke undersøkt videre
Helse, miljø og sikkerhet: Rekkverkshøyden er under 1,2 meter (balkonghøyden er over 10 meter).
Øvrige kontrollpunkter er vurdert til TG0 (tilstandsgrad 0 - ingen avvik) og TG1 (tilstandsgrad 1 - i orden).
Ovennevnte er kun ment som et utdrag fra vedlagt tilstandsrapport. For fullstendige beskrivelser og forklaringer på tilstandsgradene samt kommentarer ellers utover dette henvises til rapporten.
Standard
Stine Thorvik v/ Krogsveen Hasle har gleden av å presentere Stålverkskroken 14B.
Flott og attraktiv 2-roms leilighet byggets femte etasje med vestvendt balkong på hele 10 kvm og en gjennomgående god standard fra byggeår.
Her bor du supersentralt i Oslo, men samtidig skjermet og tilbaketrukket. Det er gangavstand til god offentlig kommunikasjon, hyggelige spisesteder, et rikt servicetilbud og flotte parkområder - for å nevne noe. Det er kort avstand til Ensjø- og Hasle Torg.
Nærmere innhold:
ENTRÈ
Velkommen inn! Leilighetens entré er lys og innbydende og gir et meget godt førsteinntrykk av boligen. Her er det god plass til å henge fra seg yttertøyet og sette fra seg sko. Direkte callinganlegg til ytterdør. Videre har du adkomst til en innvendig bod fra entréen som sørger for ytterligere oppbevaringsplass i leiligheten.
STUE:
Stuen er romslig og ligger i en delvis åpen løsning med kjøkkenet. Her er det godt med plass til både sittegruppe med tilhørende møblement og tv-seksjon. Store vindusflater gir gode lys- og utsiktsforhold, samt en åpen og luftig atmosfære med masser av naturlig lys. Leiligheten er videre malt i tidsriktige og moderne nyanser. I direkte tilknytning til både kjøkken og stue er det god plass til spisebord - et naturlig samlingssted for venner og familie. At leiligheten befinner seg i byggets femte etasje sørger for lite innsyn og rolige omgivelser fra stuen og balkongen.
Kjøkken:
Sjarmerende kjøkken fra Sigdal med glatte fronter, laminat benkeplate, nedfelt rustfri oppvaskkum og ett-greps armatur. Kjøkkenet ligger i en delvis åpen løsning mot stuen, og sørger for god kommunikasjon med gjestene samtidig som kjøkkenet føles noe skjermet. En slik type kjøkkenløsning tilfredsstiller mange behov, for deg som ønsker mye benk- og skapplass og for deg som ønsker et åpent og sosialt rom.
Balkong:
Fra stuen er det direkte adkomst til romslig balkong på hele 10 kvm. Her er det god plass til utemøblement som både sittegruppe og grill. Fra balkongen er det blant annet utsyn mot nye Ensjøparken og det som skal bli et frodig parkdrag rett utenfor boligen. Balkongen er vendt mot vest og byr på deilig ettermiddag- og kveldssol - selger opplyser om sol fra ca. kl. 14:00-21:30. På årets varme dager fungerer balkongen naturligvis godt som en forlengelse av stuen. Et herlig uterom hvor en kan nyte fine dager vel som flotte kvelder. Videre på balkongen er det hyggelig utebelysning og stikkontakter montert på vegg.
Soverom:
Soverommet er av god størrelse og kan enkelt innredes med både dobbeltseng og tilhørende nattbord. Stort vindu gjør rommet lyst og luftig. Det er rikelig med oppbevaringsplass i romslige garderobeskap på begge sider av sengen.
Bad:
Romslig baderom med hvite fliser på vegg og grå fliser på gulv med varmekabler. Baderommet er utstyrt med skapinnredning med heldekkende servant og speilskap med belysning og stikkontakt. Opplegg for både vaskemaskin og tørketrommel. Videre er badet utstyrt med vegghengt toalett og dusjhjørne med innfellbare glassdører. Mekanisk avtrekk med ventil i himling.
Andre kvaliteter:
- Gode sol- og lysforhold
- Garasjeplass i lukket og oppvarmet kjeller (nr. 21)
- God romlayout og arealfordeling
- Balansert ventilasjonsanlegg
- Miljøvennlig oppvarming med fjernvarme
- Kjellerbod på 5 kvm for ytterligere oppbevaringsplass
Løsøre og tilbehør
Vi viser til liste fra Norges Eiendomsmeglerforbund som gjelder fra 01.01.2020 angående løsøre og tilbehør.
Oppvarming
Boligen varmes opp ved radiatorer tilknyttet felles varmesentral. Elektrisk gulvvarme på bad.
Dersom beboelsesrom ikke har vegg- eller fastmonterte varmekilder ved visning, følger dette heller ikke med.
Ferdigattest/brukstillatelse
Det foreligger ferdigattest på eiendommen datert 13.02.2015. Denne kan fås ved henvendelse til megler.
Kjøper overtar eiendommen slik den framstår på visning.
Tinglyste heftelser og rettigheter
Utover andel fellesgjeld overdras leiligheten fri for pengeheftelser.
Borettslaget har legalpant for forfalte felleskostnader og andre krav som følger av borettslagsforholdet iht. burettslagsloven § 5-20. Pantet er begrenset oppad til 2G (G = folketrygdens grunnbeløp).
Det er ingen tinglyste servitutter på eiendommen.
Eventuell adgang til utleie
Andelseier kan ikke uten samtykke fra styret i borettslaget overlate bruken av boligen til andre. Med samtykke kan andelseier overlate boligen til andre i inntil tre år hvis andelseier har bodd i boligen i minst ett av de to siste år. Utleie i andre tilfeller kan godtas ved særlige grunner, jf. burettslagslova § 5-6. Utleie forutsetter at leiligheten har forsvarlige radonverdier. Se også borettslagets vedtekter og konferer megler ved spørsmål.
Beliggenhet og tomteforhold
Beliggenhet og tomteforhold
Beliggenhet
Leiligheten ligger på attraktive og pulserende Ensjø, i bydel Gamle Oslo, og grenser til Tøyenparken, idylliske Kampen Hageby, Kampen, Vålerenga og Valle Hovin.
Nærområdet er betydelig oppgradert de senere år, både med hensyn til uterom og moderne bebyggelse.
Stille og rolig område med flotte grøntarealer med Tiedemannsparken og Hovinbekken rett utenfor døren.
Området er i stadig utvikling med utbygging av boliger, servicefunksjoner, friarealer og infrastruktur. På den gamle Teglverkstomta ved Hasle Torg er det oppført en stor skole med flerbrukshall. Tomten har fått flotte grøntområder med vannanlegg, gang- og sykkelvei, kunstgressbane samt broer med belysning.
Kollektivtilbudet er solid. Fra Ensjø T-banestasjon, under ti minutters gange fra leiligheten, tar det kun noen minutter før du er midt i Oslo sentrum (her går linje 1-4). Nærmeste bussholdeplass er Gladengveien, som gir ytterligere fleksibilitet. For den aktive finnes treningssentre som SATS Hasle og Fresh Fitness Ensjø i nærheten, og de mange grøntområdene og turstiene i området inviterer til gå- og løpeturer.
Store flotte grøntområder og rekreasjonsmuligheter med bl.a. Valle Hovin med andedammen, Hasleparken ved Hasle kirke, Tøyenparken, Kampen Park og Botanisk hage. For ikke å glemme Tiedemannsparken som i november 2022 ble kåret til Østlandets beste uterom. Restaureringen av Hovinbekken ble for øvrig tildelt Oslo bys arkitekturpris i oktober 2023. Gangavstand til sentrum samt kort avstand med sykkel, bil eller offentlig kommunikasjon til Oslos parker, kafeer, restauranter, forretninger m.m.
Kort vei til Ensjø og Hasle torg med treningssentre, butikker, vinmonopol, matforretninger, kaféer og annet nyttig. Rema 1000, Europris og Kiwi-butikk i umiddelbar nærhet. Det er også kort avstand til flere idretts-/fritidstilbud som fotballbane, svømmehall, skøytebane m.m. På Tøyen er det nye Tøyenbadet endelig ferdig! Dette er et moderne badeanlegg med fire bassenger innendørs og et stort utendørs badeanlegg. "Happis", områdets is-bar, har blitt en stor favoritt blant beboerne i området. Det samme gjelder Frøken Smillas som byr på en hyggelig atmosfære, dag som på kveld.
Her finner du et inkluderende og engasjert lokalmiljø som gjør områdets kafeer og spisesteder til trivelige møteplasser. I høyhuset på Marienfryd er det sushi restaurant, take-away restaurant (pizza og grill) og frisør/make up samt Thairestaurant. I området ved eiendommen finnes Petersborgkvartalet som har kafé og bakeri (Boulangerie M) med pizzaservering på kveldstid samt søndagsåpen Joker-butikk.
Kort vei Vinslottet, et ikonisk bygg og landemerke som tidligere huset Vinmonopolets tapperi. Det historiske bygget er bygget om og igjen fullt av liv. Det er ikke et ekte slott, men et sted du stikker innom for å gjøre unna ukeshandelen, shoppe litt, klippe håret og få legetime når du trenger det. Det er også stedet kolleger, venner og naboer samles til store og små «happenings», over en caffè latte, til en uhøytidelig søndagsmiddag eller musikkbingo!
For nærmere informasjon om Ensjøbyen, gå inn på følgende nettside: http://www.ensjobyen.no.
Det er også kort avstand til flere idrett/fritidstilbud som fotballbane, skøytebane og nye Jordal idrettspark m.m
Adkomst
Det vil bli skiltet med Krogsveen visningsskilt ved fellesvisninger.
Barnehager, skoler og fritid
Eiendommen sogner til Hasle skole. I Stålverkskroken barnehage, som ligger i første etasje i bygget, har de som bor i bygget prioritet plass om de søker der.
Se vedlagt nabolagsprofil for oversikt over skoler og barnehager i området. Informasjon om tilhørende skolekretser er hentet fra Prognosesenteret som dataleverandør og tilhørigheten kan årlig endres av kommunen. Dersom skole- og barnehagetilbud er av betydning for kjøpet, ber vi om at det rettes en særskilt henvendelse til kommunen/bydelsadministrasjonen for oppdatert informasjon.
Beskrivelse av tomt
Eiet tomt på 2.660 kvm som tilhører borettslaget. Eiendommen er opparbeidet og beplantet, felles asfaltert adkomst og opparbeidet uteareal på en side av bygget. Diverse lekeapparater.
Parkering
Det medfølger bruksrett til en parkeringsplass (plass nr. 21) i lukket og oppvarmet garasjeanlegg. Det er mulig å etablere elbillader.
Bruksretten til parkeringsplassen kan kun overføres/selges sammen med borettslagsandelen den er knyttet til.
Det er innført beboerparkering i dette området (indre by). Dette betyr at du kan parkere fritt døgnet rundt på parkeringsplassene regulert til beboerparkering i området rundt din bolig for kun kr. 3.850- pr. år for fossile biler, dieselbil, hybridbil, ladbar hybrid.
Har du el-bil så betaler du kr. 1.300,- pr år, hydrogenbil og el-varebil er gratis.
Motorsykkel og moped kr 1.925,- pr år.
El-motorsykkel og el-moped kr 650,- pr år.
Se Oslo kommune sine nettsider for mer informasjon og priser for ytre by.
Vei, vann og avløp
Eiendommen har adkomst via privat vei med felles vedlikeholdsansvar for borettslaget.
Eiendommen er tilknyttet kommunalt ledningsnett via private stikkledninger. Borettslaget er ansvarlig for private stikkledninger til bygningen.
Regulerings-og arealplaner
Eiendommen er regulert til byggeområde for bolig, kontor, bevertning og offentlig bygning/allmennyttig formål (barnehage) i henhold til reguleringsplan S-4317 datert 20.06.2007 med tilhørende reguleringsbestemmelser.
Utdrag av plan og byggesaker i området:
- Saksnummer 202551641 - Byggesak. Gladengveien 16 - Bruksendring fra bilverksted til bilvaskehall. Det ble sendt søknad om tillatelse 26.02.2025.
- Saksnummer 202008625 - Reguleringssak. Gladengveien 16 og 18 (Vestre bekkedrag) - utarbeidelse av planforslag. Hensikten med prosjektet er gjenåpning av Hovinbekken gjennom planområdet i tråd med VPOR for Ensjø.
- Saksnummer 202114852: Stålverkskroken 6 - 12 - Oppføring av boliger - Hus A-D, felt C11 og D11 - Tidligere adresse: Gladengveien 8. Det ble gitt rammetillatelse 19.08.2022 og igangsettingstillatelse 04.07.2024. Tiltaket omfatter oppføring av fire frittliggende boligbygg i lamellstruktur på felt C11 og D11 med adresse Gladengveien 8, på Ensjø i bydel Gamle Oslo. Det etableres en sammenhengende underliggende etasje for parkeringskjeller og bodareal. Planlagt overtakelse er satt til Q1/Q2 2025. Sjekk ut hvordan det skal blir her: https://www.profier.no/prosjekter/ensjoparken-oslo/
- Saksnummer 202214130: Gjelder Grenseveien 65 - Bestilling av oppstartsmøte - Oppføring av ny ungdomsskole på Ensjø. Oppstartsmøte ble bestilt 27.09.2022 og det fremkommer her at formålet med reguleringen er å legge til rette for ny 8 parallell ungdomsskole på Lilleberg. Nybygg etableres langs Grenseveien i 4-5 etasjer (tilsvarende 5-7 boligetasjer, ny bygningskropp skjermer uteareal i syd mot støy fra Grenseveien. Oppdatert planforslag er planlagt å legges ut for høring 19.06.2026.
- Saksnummer 202460006: Plankunngjøring. Grenseveien mellom Økernveien og Grensesvingen. Hovedhensikten med planen er å etablere et eget anlegg for syklende og legge bedre til rette for gående. Tilretteleggingen innebærer at vegarealet får større total bredde enn i dag. Dette kan påvirke tilstøtende arealer.
- Saksnummer 201906491: Grenseveien 71 - Detaljregulering - Boliger. Innsending av planforslag ble gjort 05.09.2024. For at boligkvartalet skal bidra til et variert arkitektonisk uttrykk foreslås varierende høyder, fra 3-7 etg, som bryter opp skala og muliggjør attraktive takterrasser tilrettelagt for urban dyrking mellom byggene, samtidig med at boligkvaliteten øker ved større andel fasader. I Innsending av planforslag til 2. gangsbehandling er høyder i nord og sør redusert. Mot Grenseveien holdes etasjene til 7 etasjer tilsvarende Grenseveien 69.
- Saksnummer 202460842: Hovinveien 43 A - Hovinveien 43 A - Bestilling av oppstartsmøte - Boliger. Oppstartsmøte ble bestilt 14.10.2024. Bebyggelsen består av et L-formet lamellbygg, og ett mindre leilighetsbygg som står oppå en felles base/ 1. etasje. Lamellbygge ligger i den østre delen av bebyggelsen, åpner seg mot vest og slipper sollys inn på det hevede gårdsrommet. De lave leilighetsbygget ligger i det nord-vestlige hjørnet av bebyggelsen, og hindrer støy inn i gårdsrommet. Prosjektet har 6 etasjer på det meste, og trapper seg ned mot tilgrensende bygg og gate-/byrom.
- Saksnummer 201918011: Gladengveien 1 og Ensjøveien 14 - oppdatering av planforslag etter offentlig ettersyn. Ensjøhjørnet AS, ved Selmer Eiendom AS foreslår å omregulere Gladengveien 1 og Ensjøveien 14 fra forretning, kontor, bevertning og allmennyttig formål (kultur, helse, trim og undervisning), bolig, industri til bolig, forretning, bevertning, annen offentlig eller privat tjenesteyting. Det foreslås i hovedsak boligbebyggelse i en kvartalsstruktur med opptil 8 etasjer + takoppbygg. Det legges opp til næringsarealer i 1. etasjer plassert i en base.
- Saksnummer 202209626: Ensjøveien 16 - 22 - utarbeidelse av planforslag. Hensikten med prosjektet og planforslaget er å tilrettelegge for en utvikling av eiendommene som åpner for ny og mer hensiktsmessig bruk, bedre utnyttelse og høyere kvalitet. Ambisjonen er å få inn flere publikumsrettede tilbud og næringslokaler som både kan benyttes til produksjon og til kontorer. Etter samråd med PBE kan det også undersøkes om området er egnet for boliger eller eventuelt hotellkonsepter med langtidsleie/leilighetshotell.
- Saksnummer 202118619: Grenseveien 73, 91 og 95 - utarbeidelse av planforslag - Regulering til barneskole og park. Oppstartsmøte ble bestilt 26.11.2021. Langs Grenseveien foreslås opp til 5 etasjer hvor idrettshall med tilhørende arealer legges i 4-5. etasje. Dette er for å beholde så mye uteareal på terreng som mulig til skolen, samtidig som Grenseveien godt kan tåle høyere og bymessig bebyggelse.
- Saksnummer 202202903 - Plankunngjøring - Ensjøveien 3-15 med flere. Norsk rikskringkasting AS (NRK) foreslår å etablere nytt hovedkontor på Ensjøveien 3, 5 og 7. Det foreslås en byggehøyde på inntil 42 meter og 50 000 m2 BRA over terreng samlet i et bygg. Ensjøveien, 9, 11, 13, 15A og 15B omreguleres for å legge til rette for 20 000 m2 BRA til næringsvirksomhet, samt nye viktige offentlige rom og forbindelser. Forslaget åpner for etablering av cirka 3000 arbeidsplasser. Bemerkningsmøte ble utført 05.03.2025
- Saksnummer: 200404446 - Reguleringssak: Ensjøområdet - Veiledende prinsipplan for det offentlige rom - VPOR Ensjø - vedtatt av bystyret 28.2.2007
Det offentlige rom på Ensjø skal framstå som levende, attraktivt og tilgjengelig for alle, med et “naturbant” preg (samspillet mellom det grønne, det blå og de harde flatene). Levende og trygge møteplasser, torg, gater og parker med betydelig innslag av grønt skal kjennetegne det nye Ensjø.
Samt;
- Saksnummer 201604970 - Reguleringssak: Hasle - Valle Hovin - Planprogram med veiledende plan for offentlige rom - VPOR - Forslag til politisk behandling. Planprogrammet skal vise et forslag til fremtidig byutvikling innenfor planområdet, med anbefalinger for blant annet bystruktur, arealformål, torg, parker og grøntområder. Planprogram og veiledende plan for offentlig rom (VPOR) skal gi rammer for fremtidige reguleringsplaner innenfor planområdet. Valle Hovin skal videreutvikles som det viktigste arealet for idrett og rekreasjon i Hovinbyen.
Området er under stor utvikling og byggearbeid må påregnes. Opplistingen er ikke uttømmende og interessenter oppfordret til å sette seg inn i reguleringsplaner for området.
Utsnitt av plan med tilhørende bestemmelser kan fås ved henvendelse til megler.
Opplistingen er ikke uttømmende og interessenter oppfordres til å sette seg inn i relevante reguleringsplaner. Dette kan gjøres via Oslo kommune planinnsyn. Utsnitt av plan med tilhørende bestemmelser kan fås ved henvendelse til megler.
Økonomi
Økonomi
Boligens kostnader
Felleskostnadene er kr 12 960,- pr. mnd. og inkluderer: A-konto fyring, A-konto varmtvann, Internett, nedbetaling av fellesgjeld, drift, vedlikehold, kommunale avgifter, felles forsikring, forretningsførsel, styrehonorar m.m.
Kostnader for fjernvarme avregnes årlig etter forbruk og ved eierskifte, dette betales som et månedlig á-konto beløp. Det er installert målere slik at avgiftene vil variere etter forbruket i leiligheten.
Felleskostnadene justeres normalt en til to ganger årlig i forhold til borettslagets faktiske utgifter.
Felleskostnadene fordeles slik:
Oppvarming: kr. 322,00
Lån nr: 9820737515; IN lån 1 - Akonto renter: kr. 7 138,80
Lån nr: 9820737515; IN lån 1 - Akonto avdrag: kr. 2 198,80
Internett: kr. 199,00
Garasje: kr. 200,00
Felleskostnader: kr. 2 901,00
Det er vedtatt eiendomsskatt i Oslo kommune. Pt. faller det ikke eiendomsskatt for boligen.
Nåværende eier har et strømforbruk som tilsvarer ca. kr 8.400,- pr. år. Selger har avtalt Norgespris på strøm på eiendommen for perioden 31.12 og denne er pt på 50 øre inkl mva. Nettleie, avgifter og påslag fra kraftleverandøren kommer i tillegg. Er det fjernvarme vil det også komme kostnader i tillegg.
Denne avtalen vil følge eiendommen i den avtalte perioden.
Les mer om Norgespris her: https://www.regjeringen.no/no/aktuelt/legg-fram-lov-om-norgespris-pa-straum-og-fjernvarme/id3102642/
Boligen er tilknyttet GlobalConnect som leverandør av internett der avgiften er inkludert i felleskostnader. Tv-tuner/dekoder medfølger ikke.
Borettslaget har en avtale med Allente, Strim og Riks-TV om rabatterte priser på lineær TV. Kostnader på dette kommer ved siden av felleskostnader.
Utgiftene er basert på nåværende eiers forbruk. Kjøper må selv tegne innboforsikring.
Formuesverdi
Ved hjelp av skatteetatens boligkalkulator er boligens formuesverdi beregnet til kr. 1.413.775,- for fjoråret når boligen benyttes som primærbolig.
Formuesverdien er en gitt prosent av den beregnede markedsverdien. Beregnet markedsverdi er basert på Statistisk sentralbyrå (SSB) sine opplysninger om omsatte boliger. I beregningen tas det hensyn til boligens beliggenhet, areal, byggeår og boligtype.
Det er eier av boligen som fastsetter formuesverdien, jf. skatteforvaltningsloven § 9-1 første ledd, men skattemyndighetene kan kontrollere at verdien er satt riktig.
Formuesverdi skal ikke overstige:
Primærbolig: 25 % av beregnet eller dokumentert markedsverdi opp til kr. 10 000 000, og deretter 70 % av den overskytende markedsverdi.
Sekundærbolig: 100 % av beregnet eller dokumentert markedsverdi.
Formuesverdier som overstiger disse grensene, kan kreves nedjustert av eier.
Fra 2026 har Stortinget vedtatt en oppdatert modell for beregning av formuesverdi for primærbolig, så avvik kan forekomme.
For mer informasjon se skatteetaten.no
Eiendomsskatt
Det er vedtatt eiendomsskatt i Oslo kommune, men det faller p.t ikke eiendomsskatt for denne eiendommen.
Opplysninger om fellesgjeld
Andel formue er kr 15 195,- pr. 31.12.2025
Andel fellesgjeld er kr 1 672 001,- pr. 25.02.2026
Total fellesgjeld for boligselskapet er kr. 30.381.891,- pr. 25.02.2026.
OBOS-banken AS
Lånenummer: 98207375152
Rentebetingelser: Annuitetslån, 5,13% flytende rente
Totalsum gjeld: kr. 30.381.891,-
Andel fellesgjeld: kr. 1.672.001,-
Lånets løpetid: 30.04.2054
IN-avtale: Ja
Dette borettslaget har tilrettelagt for individuell nedbetaling av andel fellesgjeld (IN-ordning). Det vil si at hver enkelt andelseier helt eller delvis kan velge å nedbetale sin andel av borettslagets fellesgjeld til boligbyggelaget. Dette vil i så fall medføre en reduksjon av de månedlige felleskostnadene (andel av renter og avdrag på fellesgjelden). Nedbetalt andel av fellesgjeld knyttes til andelen og følger andelen ved et eventuelt salg.
kr 1.672.001,- av fellesgjelden kan innløses. Dette vil medføre en reduksjon i felleskostnadene med kr. 9.337,-
Det er mulig å innbetale på lånet to ganger i året, den 20.05 og 20.11.
Omkostninger
3 300 000,00 Prisantydning
1 672 001,00 Andel av fellesgjeld
--------------------------------------------------------
4 972 001,00 Pris inkl. fellesgjeld
Omkostninger
850,00 Garasjeplass Eierskifte
9 950,00 Gjensidige Boligkjøperpakke* (valgfritt)
545,00 Tinglysing hjemmel
545,00 Tinglysing panterettsdokument
--------------------------------------------------------
1 940,00 (Omkostninger totalt (uten Gjensidige Boligkjøperpakke))
11 890,00 Omkostninger totalt (med Gjensidige Boligkjøperpakke))
--------------------------------------------------------
4 973 941,00 Totalpris inkl. omkostninger
4 983 891,00 Totalpris inkl. omkostninger (med Gjensidige Boligkjøperpakke)
--------------------------------------------------------
Tilbud om lånefinansiering
Megler formidler gjerne kontakt med rådgiver hos vår samarbeidspartner BN Bank. De har konkurransedyktige betingelser samt rask og løsningsorientert behandling av din lånesøknad. Krogsveen mottar et honorar dersom lån opprettes.
Betalingsbetingelser
Kjøpesum inkludert omkostninger, samt pantedokument tilknyttet eventuelt lån, skal være disponibelt hos megler 2 virkedager før overtagelsen.
Annen viktig informasjon
Annen viktig informasjon
Eier
Filip Haugan
Informasjon om borettslaget
Leiligheten er tilknyttet Stålverksparken Borettslag.
Borettslaget består av 44 leiligheter.
Forretningsfører er Obos, tlf. 22 86 59 99
Forsikret hos: Tryg Forsikring - polisenummer 6648137
Revisor for borettslaget er PricewaterhouseCoopers AS
Dugnad må påregnes.
Det er tillatt å holde dyr så lenge dyreholdet ikke er til sjenanse for de øvrige beboerne.
Dyrehold tillates kun etter søknad til styret og undertegning av borettslagets dyreholdserklæring.
Foretatt påkostninger de senere år:
- I forbindelse med en lekkasje fra vannspeilet på utsiden og ned i garasjeanlegget valgte styret å reklamere ovenfor utbygger. Utbygger har siden den gang undersøkt og utbedret situasjonen.
- Styret gikk i 2015 til anskaffelse av utstyr til kameraovervåking av garasje og indre fellesarealer.
- Det ble i april 2016 installert nye varmepumper i varmesentralen for fjernvarme.
Planlagte saker/kostnader:
- Uteplassen foran bygget har setningsskader som må utbedres, samt utbedring av uteplassen med nødvendige arbeid på pergolaen. Styret har undersøkt med flere entreprenører, og har etter videre undersøkelser fått anbefalt å velge Guthorm Hoff AS som hovedentreprenør. Med alle detaljer på plass ser det ut som totalrammen på prosjektet vil være rundt kr. 5,3 mnok. For denne leiligheten vil det bety en økning i fellesgjeld på kr. 88.000,- og en økning i månedlige kostnader på ca. kr. 1.120,- Lånet vil da ha en nedbetalingstid på 8 år for å holde kostnadene nede. Endelige tall og kostnader per leilighet vil først bli fastsatt når prosjektet er ferdigstilt og alle faktiske utgifter er kjent. Oppstart på prosjektet og fremdriftsplan vil komme når endelig valg er tatt.
- Ved årsmøtet ble det vedtatt å bytte leverandør til GlobalConnect. Da vil alle beboerne få en 1000/1000 Mbps linje til kr. 199,- pr. mnd. (pakken i dag ligger rett i underkant av 600,- pr mnd.) De som ønsker lineær-TV kan velge mellom pakker fra RiksTV, Allente og Strim til rabatterte priser.
I henhold til borettslagets vedtekter må kjøper godkjennes av styret som ny andelseier. Det er kjøpers ansvar at styregodkjenning blir gitt, men styret kan ikke nekte godkjenning uten saklig grunn. Iht. burettslagslova kan man bare eie en andel i borettslaget. Kun fysiske personer kan være andelseiere.
Øvrige andelseiere i borettslaget og eventuelt medlemmer av boligbyggelaget har forkjøpsrett. Dersom boligen tas på forkjøpsrett løses kjøper fra avtalen.
For å dekke eventuell manglende innbetaling av fellesutgifter fra øvrige andelseiere, er borettslaget tilknyttet et sikringsfond gjennom OBOS. Borettslaget har en avtale med OBOS Factoring om garantert betaling av felleskostnader. OBOS Factoring garanterer for overførsel til borettslaget hver måned og overtar deretter alt ansvar og risiko for eventuell manglende innbetaling av felleskostnader. Avtale om sikring av felleskostnader varer til den blir sagt opp av en av partene. Oppsigelsestiden er seks - 6 - måneder regnet fra oppsigelsesdato.
Dokumenter for borettslaget kan fås ved henvendelse til megler.
Overtakelse
Etter nærmere avtale. Overtakelse kan tidligst skje etter at forkjøpsretten for øvrige andelseiere i borettslaget og eventuelt medlemmer av boligbyggelaget er avklart, samt at styrets godkjennelse er avklart.
Boligselgerforsikring
Selger har i forbindelse med salget tegnet boligselgerforsikring levert av Gjensidige.
Boligselgerforsikringen dekker selgers ansvar etter avhendingsloven begrenset oppad til kr 14 millioner. Dersom kjøper oppdager forhold ved eiendommen som hen mener utgjør en mangel ved eiendommen, vil Gjensidige behandle reklamasjonen på vegne av selger. Forsikringsvilkår kan fås ved henvendelse til megler.
Vedlagt salgsoppgaven følger selgers egenerklæringsskjema og tilstandsrapport. Interessenter må sette seg inn i dokumentene før bud inngis.
Boligkjøperforsikring
Innen kontraktsmøtet må kjøper ta stilling til om det ønskes å bestille Boligkjøperpakken gjennom Gjensidige. I denne gunstige pakken er boligen ferdig forsikret og inkluderer rettshjelpsforsikring, også kalt Boligkjøperforsikring. Rettshjelpsforsikring gir trygghet og tilgang på profesjonell juridisk hjelp dersom det oppdages uventede feil eller mangler det første året etter overtagelse. Forsikringsselskapet behandler i så fall ethvert mangelskrav kjøper måtte ha overfor selger.
Boligkjøperpakken inkluderer bygningsforsikring for hus og hytte, innboforsikring, flytteforsikring og dobbel rentedekning - i situasjoner hvor kjøper ikke får solgt nåværende primærbolig.
Kjøper mottar ingen særskilt faktura for Boligkjøperpakken da kostnaden det første året legges til kjøpesummen for boligen. Det gjøres oppmerksom på Krogsveen mottar et honorar for denne formidlingen.
Produktark for Boligkjøperpakken ligger vedlagt i salgsoppgaven.
Dersom ikke boligkjøperpakke ønskes kan kun rettshjelpsforsikring, også kalt boligkjøperforsikring, tegnes særskilt via megler. Rettshjelpsforsikringen varer i 5 år fra overtagelse og leveres gjennom Gjensidige. Ta kontakt med megler for ytterligere informasjon.
Selskap og privatpersoner som driver med kjøp/salg/utvikling som ledd i egen næringsvirksomhet kan ikke tegne boligkjøperpakke eller rettshjelpsforsikring.
Budgivning
Forbrukerinformasjon om budgivning er vedlagt denne salgsoppgaven og er også på vår hjemmeside Krogsveen.no. Alle bud og budforhøyelser må inngis skriftlig. I tillegg må legitimasjon være fremlagt sammen med signatur fra budgiver.
Vi oppfordrer til å gi bud elektronisk via GI BUD-knappen på eiendommens hjemmeside på Krogsveen.no. Da vil samtlige vilkår bli oppfylt.
Eventuelle forhøyelser eller endringer av budet kan bekreftes pr SMS eller på e-post. Vi oppfordrer alltid til å kontakte megler pr. telefon i tillegg da forsinkelser i SMS og e-post kan forekomme.
For at budene skal kunne bli behandlet og videreformidlet skriftlig til alle involverte parter, må alle bud ha en tilstrekkelig lang akseptfrist, jf. eiendomsmeglingsforskriften § 6-3.
Selger må også skriftlig akseptere budet før aksept kan formidles til budgiver. Akseptfrist bør derfor være på minimum 30 minutter, og budforhøyelser må derfor skje i god tid før fristens utløp.
Bud i forbrukerforhold kan uansett ikke settes med kortere frist enn kl. 12.00 første virkedag etter siste annonserte visning. I tillegg kan ikke budet ha forbehold om at det skal holdes hemmelig ovenfor øvrige interessenter. Megler har iht lov om eiendomsmegling ikke anledning til å videreformidle disse budene, og de vil dermed heller ikke bli journalført.
Etter at eiendommen er solgt vil kjøper og selger få tilsendt budjournal. Øvrige budgivere kan få utlevert kopi av budjournalen i anonymisert form.
Hvitvaskingsreglene
I henhold til lov om hvitvasking og terrorfinansiering har megler plikt til å gjennomføre kontrolltiltak overfor kunder, herunder fullmektiger. Dette innebærer bl.a. å bekrefte kunders og reelle rettighetshaveres identitet på bakgrunn av fremvist gyldig legitimasjon eller på annen godkjent måte, samt å innhente opplysninger om kundeforholdets formål og tilsiktede art.
Dersom slike kundetiltak ikke kan gjennomføres, kan megler ikke etablere kundeforholdet eller utføre transaksjonen.
Hvis kjøper ikke bidrar til gjennomføring av kundekontrollen og dette fører til at transaksjonen blir forsinket eller ikke kan gjennomføres, vil dette ansees som mislighold av avtalen og gi selger rettigheter etter avhendingslova kapittel 5. I tilfeller der selger ikke bidrar til gjennomføring av løpende kundekontroll underveis i oppdraget, er det selger som misligholder sine forpliktelser etter avtalen og gi kjøper rettigheter etter avhendingslovens kapittel 4. Partene er selv ansvarlige for eventuelle kostnader og ansvar dette kan medføre. Eiendomsmegleren eller eiendomsmeglingsforetaket kan ikke holdes ansvarlig for de konsekvenser dette vil kunne få for partene eller andre som har interesser i eiendomshandelen.
Kjøper oppfordres til å innbetale kjøpesummen som ikke kommer fra låneinstitusjon i én samlet innbetaling fra egen konto i norsk bank. Megler har plikt til å melde fra til Økokrim om eiendomshandler som fremstår som mistenkelige. Melding sendes Økokrim uten at partene varsles.
Personopplysningsloven
I henhold til personopplysningsloven gjør vi oppmerksom på at interessenter kan bli registrert for videre oppfølging.
Lovanvendelse
Generelle bestemmelser
Salgsoppgaven er basert på de opplysningene selger har gitt til megler, den bygningssakyndiges tilstandsrapport, samt opplysninger innhentet fra kommunen, Kartverket og andre tilgjengelige kilder. Det er viktig at kjøper setter seg grundig inn i alle salgsdokumentene, herunder salgsoppgave, tilstandsrapport og selgers egenerklæring. Kjøper anses kjent med forhold som er tydelig beskrevet i salgsdokumentene, og slike forhold kan ikke påberopes som mangler. Dette gjelder uavhengig av om kjøper har lest dokumentene. Alle interessenter oppfordres til å undersøke eiendommen nøye, gjerne sammen med fagkyndig før bud inngis. Kjøper som velger å kjøpe usett kan ikke gjøre gjeldende som mangel noe han burde blitt kjent med ved undersøkelsen.
Dersom det er behov for avklaringer, anbefaler vi at interessenter rådfører seg med eiendomsmegler eller egne rådgivere før det legges inn bud.
En bolig som har blitt brukt i en viss tid, har vanligvis blitt utsatt for slitasje og skader kan ha oppstått. Slik bruksslitasje må kjøper regne med, og det kan avdekkes enkelte forhold etter overtakelse som nødvendiggjør utbedringer. Normal slitasje og skader som nødvendiggjør utbedring, er innenfor hva kjøper må forvente og vil ikke utgjøre en mangel.
Kjøper og selgers rettigheter og plikter reguleres av avtalen mellom partene, samt informasjonen som har vært tilgjengelig for kjøperen i forbindelse med handelen. Avtalen utfylles av avhendingsloven, og det gjelder ulike avtalevilkår avhengig av om kjøper er forbrukerkjøper eller ikke. Dette er nærmere beskrevet nedenfor.
På grunn av ulike avtalevilkår kan selger vurdere bud fra en som ikke er forbruker, ulikt fra en forbrukers bud. Dersom kjøper ikke er forbruker, er selger sitt mulige mangelsansvar begrenset fordi eiendommen selges "som den er". Selger kan ikke ta «som den er»- forbehold overfor en forbrukerkjøper. Selv et lavere bud fra en som ikke er forbruker kan foretrekkes fordi begrensningen i mulig mangelsansvar kan ha egenverdi for selger. Selger står fritt til å forkaste eller akseptere ethvert bud, og er for eksempel ikke forpliktet til å akseptere høyeste bud.
Budgiver skal i budskjema avgi egenerklæring om budgiver er forbruker eller næringsdrivende/ person som hovedsakelig handler som ledd i næringsvirksomhet. Budgivere får informasjon dersom andre bud er inngitt av en som ikke er forbruker.
Forbrukerkjøp - definisjon
Med forbrukerkjøp menes kjøp av eiendom når kjøperen er en fysisk person som ikke hovedsakelig handler som ledd i næringsvirksomhet.
Forbruker – avtalevilkår
Eiendommen har en mangel dersom den ikke er i samsvar med kravene som følger av avtalen, eller det foreligger brudd på bestemmelsene i avhendingsloven §§ 3-2 til 3-8. Hvis eiendommen ikke er i samsvar med det kjøperen må kunne forvente ut ifra alder, type og synlig tilstand, kan det være grunnlag for mangelskrav. Det samme gjelder hvis det er holdt tilbake eller gitt uriktige opplysninger om eiendommen. Dette gjelder likevel bare dersom man kan gå ut ifra at det virket inn på avtalen at opplysningen ikke ble gitt eller at mangelskravet ikke blir rettet i tide på en tydelig måte.
Boligen kan ha en mangel etter avhendingsloven § 3-3 andre ledd, dersom det er avvik mellom opplyst og faktisk innvendig areal, forutsatt at avviket er på 2% eller mer og minimum 1 kvm.
Ved beregning av et eventuelt prisavslag eller erstatning må kjøper selv dekke tap/kostnader opptil et beløp på kr 10 000 (egenandel).
Ikke-forbruker (næringsdrivende) – definisjon
Hvis kjøper er en juridisk person, eller en fysisk person som hovedsakelig handler som ledd i næringsvirksomhet, vil kjøpet ikke anses som et forbrukerkjøp.
Ikke-forbruker – avtalevilkår
Eiendommen har en mangel dersom den ikke er i samsvar med kravene som følger av avtalen.
Eiendommen selges «som den er», og selgers ansvar utover det konkret avtalte er da begrenset etter avhendingsloven § 3-9, første ledd andre setning.
Avhendingsloven § 3-3 andre ledd fravikes, og hvorvidt boligens arealsvikt utgjør en mangel vurderes etter avhendingsloven § 3-8.
Informasjon om kjøpers undersøkelsesplikt, herunder oppfordringen om å undersøke eiendommen nøye, gjelder også for kjøpere som ikke anses som forbrukere.
Det forutsettes at hjemmel overføres til kjøper. Hvis kjøper ikke ønsker hjemmelsoverføring av eiendommen, må det tas forbehold om dette i budet.
Meglers vederlag
Meglers vederlag betales av selger og er avtalt til:
Vederlag: 40.000,- fastpris
Tilrettelegging fra kr 19.900,-
Oppgjør: kr 8.900,-
Markedsføringspakke: kr 30.900,-
Visninger: alle visninger inkl.
Oppslag eiendomsregister: kr 3.900,-
Megler har i tillegg krav på dekning av følgende utlegg:
Innhenting av informasjon forretningsfører kr 3.175,-
Innhenting av erklæring kr 260,- pr. stk.
Tinglysning av sikring kr 545,-
Eierskiftegebyr OBOS kr 6.725,-
Foto kr 6.250,-
Tilstandsrapport: kr. 9.000,-
Gratis rådgivningstime stylist: -2.500,- kr
Valgfri Boligselgerforsikring Gjensidige (2,69 promille av prisant kr. 3,3 mnok): kr. 8.877,-
Vi er opptatt av verdiskapning, og har knyttet til oss samarbeidspartnere som skal sikre våre kunder de beste produkter og tjenester;
• I forbindelse med forberedelse av salget, innhenter vi informasjon om eiendommen hovedsakelig fra vår samarbeidspartner Amibita.
• Gjensidige leverer boligselgerforsikring og tilbyr bygningsforsikring
• Boligkjøperforsikring leveres av Hiscox og med Sedgwick som skadebehandler, og er formidlet gjennom Gjensidige.
• BN bank tilbyr finansieringsløsninger
• Vår avdeling Krogsveen Pluss tilbyr flyttetjenester som utvask, visningsvask, lager, tømming og transport av flyttelass, i tillegg til å formidle kontakt med Flip for overflateoppussing.
• I forbindelse med overtagelse av eiendommen tilbyr Overo avtale om strøm, alarm og bredbånd.
• Krogsveen er, sammen med øvrige bransjeaktører, medeier i Bomega AS som tilbyr den digitale annonseringsplattformen Hjem.
Opplysninger om oppdraget
Oppdragsnummer 37-0091/26
Eiendomsmegler Krogsveen AS, avd. Hasle
Valle View, Innspurten 11D, 0663, OSLO
950007613
Oppdragets KR-kode KR37.2691
Dato
Sist oppdatert: 20. april 2026 kl. 19:13
Dokumenter
Dokumenter
PDF – 940 KB
PDF – 627 KB
PDF – 69 KB
PDF – 463 KB
PDF – 2 MB
PDF – 312 KB
PDF – 29 KB
PDF – 127 KB
PDF – 392 KB
Område
Legg til steder som er viktige for deg
Visning
Unngå doble boligrenter
Vi tilbyr gunstig forsikring.
Vurderer du utleie?
Få et tilbud fra Utleie KrogsveenHva koster lånet?
Sjekk estimert lånekostnadVil du varsles om lignende boliger?
Ved å lagre ditt boligsøk hos oss får du beskjed når vi har en bolig som ligner denne, før den legges ut på markedet!




