Kolstien 45
7 900 000 kr
183 m²
4 soverom
Solgt

Presenteres av
Thomas HaugeLANDÅS/KOLSTIEN
Oppussingsobjekt - Unik arkitekttegnet enebolig med dobbel garasje og hage. Fantastisk panoramautsikt over Bergensdalen!
Prisantydning
7 900 000 krOmkostninger
201 090 krTotalpris
8 101 090 kr
Pris
Bruksareal
212 m²BRA-I (internt bruksareal)
183 m²BRA-E (eksternt bruksareal)
29 m²TBA (terrasse-balkongareal)
35 m²
Areal
Etasje
3Byggeår
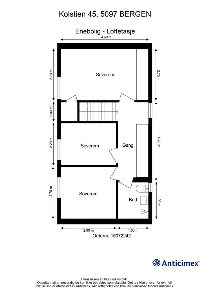
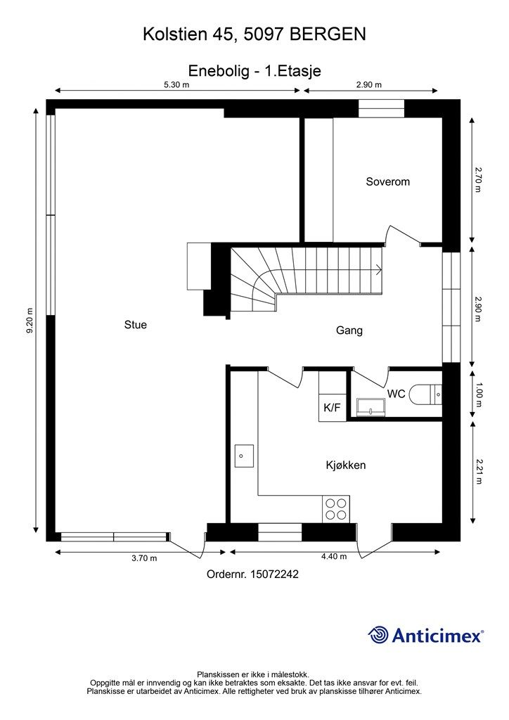
1962Soverom
4 soveromBad
1 badTomteareal
590 m² (festet)Type
Enebolig - FrittliggendeEierform
EietFasiliteter
Garasje/P-plass og Balkong/TerrasseEnergimerke
Oransje F
Nøkkelinfo
Unngå doble boligrenter
Vi tilbyr gunstig forsikring.
Vurderer du utleie?
Få et tilbud fra Utleie KrogsveenHva koster lånet?
Sjekk estimert lånekostnadBeskrivelse
Kort om eiendommen
Krogsveen Eiendomsmegling v/Thomas Hauge presenterer Kolstien 45
Enebolig med en god beliggenhet i Kolstien. Her har du sol fra morgen til kveld.
Skap ditt drømmehjem på en fantastisk utsiktstomt!
Høydepunkter:
Dobbel garasje.
Usjenert hage rundt boligen.
Boligen går over 3 plan med god planløsning.
Fantastisk beliggenhet i attraktivt og veletablert nabolag.
Kort vei til butikk og offentlig kommunikasjon. Det er også kort avstand til både barnehage og skole.
Rekreasjonsmuligheter rett utenfor døren.
Husk påmelding til visning, vel møtt.
Område
Legg til steder som er viktige for deg
På flyttefot? Tenk kjøp og salg samtidig.
Få din egen rådgiver gjennom hele kjøps- og salgsprosessen. Det starter med en verdivurdering.
Unngå doble boligrenter
Vi tilbyr gunstig forsikring.
Vurderer du utleie?
Få et tilbud fra Utleie KrogsveenHva koster lånet?
Sjekk estimert lånekostnadVil du varsles om lignende boliger?
Ved å lagre ditt boligsøk hos oss får du beskjed når vi har en bolig som ligner denne, før den legges ut på markedet!
På flyttefot? Slik gjør vi det enklere for deg
Skreddersydd flyttepakke
Vi fikser håndverkere, vask, pakking, lagring og transport, og legger ut for utgiftene underveis.
Hjelp med både kjøp og salg
Hos oss har du din egen rådgiver gjennom hele kjøps- og salgsprosessen.
Hjelp til finansiering
Vårt samarbeid med BN Bank sikrer deg rask og løsningsorientert hjelp, til konkurransedyktige betingelser.

