Lillebergsvingen 16
4 500 000 kr
43 m²
1 soverom
Komplett salgsoppgave
Lilleberg
Oppgradert og delikat 2-roms på populære Lilleberg med solrik, sydvestvendt balkong og nytt kjøkken. Varmtvann inkl.
Prisantydning
4 500 000 krAndel fellesgjeld
58 402,63 krOmkostninger
27 658 krTotalpris
4 586 060,63 kr
Pris
Bruksareal
53 m²BRA-I (internt bruksareal)
43 m²BRA-E (eksternt bruksareal)
10 m²TBA (terrasse-balkongareal)
7 m²
Areal
Etasje
2Byggeår
1953Soverom
1 soveromBad
1 badType
AndelsleilighetEierform
AndelFasiliteter
Balkong/TerrasseFellesutgifter
3 982 kr
Nøkkelinfo
Unngå doble boligrenter
Vi tilbyr gunstig forsikring.
Vurderer du utleie?
Få et tilbud fra Utleie KrogsveenHva koster lånet?
Sjekk estimert lånekostnadBeskrivelse
Kort om eiendommen
Innhold og byggemåte
Innhold og byggemåte
Eiendommen
Lillebergsvingen 16, 0662 OSLO
Kommunenummer 301, gårdsnummer 122, bruksnummer 139
Andelsnummer 185, Lilleberg Borettslag, organisasjonsnummer 950 156 384
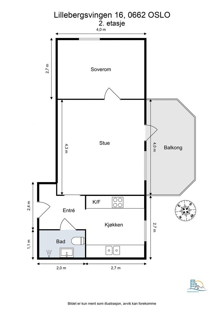
Innhold
Totalt bruksareal (BRA) 53 kvm
BRA-i:
Andelsleilighet:
2. etasje 43 kvm: Entré, bad, soverom, kjøkken, og stue.
BRA-e:
Underetasje 4 kvm: Bod.
Kjeller 6 kvm: 2 boder.
Åpent areal:
2. etasje 7 kvm: Balkong.
Det gjøres oppmerksom på at boligens eksterne boder tilhører borettslagets fellesareal, og at boden således ikke eies av den enkelte andelseier. Dette medfører at borettslaget i fellesskap beslutter bruken, og at man ikke selv har eierrett og rettsvern for boden. Borettslaget kan ved vedtak beslutte annet bruk av fellesarealet og disponering av bodarealet kan dermed opphøre.
Vedlagte plantegninger er ikke målbare. De oppgitte arealer er hentet fra rapport med befaringsdato 16.04.2026 utført av Takstkonsulent1 AS v/Ole-Christian Eng. Arealene er beregnet og rom er definert etter dagens faktiske bruk, uavhengig av hva som er godkjent av bygningsmyndighetene.
Byggemåte
Selger har innhentet en tilstandsrapport av boligen/eiendommen. Dersom det er registrert avvik, er disse klassifisert med tilstandsgrader (TGIU, TG2 og/eller TG3). Kjøper overtar ansvaret for de opplysninger som fremkommer av salgsdokumentasjonen, og kan ikke gjøre gjeldende som mangel noe som burde vært kjent eller som ikke kan anses å ha betydning for avtalen.
Bygningen er iht. tilstandsrapport oppført i 1952. Bygningen er en boligblokk som antas fundamentert med betong til stedlige masser, med grunnmur og gulv mot grunn av betong. Etasjeskillere er av betong. Yttervegger antas oppført med betong og utfyllende bindingsverk av tre, utvendig forblendet med teglstein og kledd med liggende kledning. Takkonstruksjonen er en sperrekonstruksjon av tre, antatt tekket med asfalttakbelegg/takfolie, men taket er ikke besiktiget. Leiligheten har vinduer med 2-lags isolerglass fra 2013, og en malt balkongdør med 2-lags glass fra samme år. Entrédøren er brann- og lydklassifisert, og de innvendige dørene er glatte. Det er en sydvestvendt balkong på ca. 7 m² med terrassebord og rekkverk i stål. I 2021 ble det lagt nye kurser og stikkontakter i stue og soverom, nye spotter i stue og på bad, og nytt sikringsskap. I 2026 ble det installert nytt kjøkken og helt nytt elektrisk anlegg på kjøkken.
Sikringsskapet har automatsikringer og er plassert på gangen rett utenfor leiligheten. Det er fremvist samsvarserklæring for arbeid utført i 2021 og 2026. Bygningssakkyndig har ikke elektrokompetanse, og anlegget er derfor ikke faglig vurdert. Det anbefales en utvidet el-kontroll da det er ukjent hva som er gjort av tidligere eiere.
Følgende bygningsdeler er gitt Tilstandsgrad 2 (TG2) — Avvik som kan kreve tiltak:
Innvendig
- Etasjeskille/gulv mot grunn: Det er målt høydeforskjell på mellom 15-30 mm gjennom hele rommet. Tilstandsgrad 2 gis med bakgrunn i standardens krav til godkjente måleavvik. Det ble målt ca. 17 mm høydeforskjell i entréen.
Tekniske installasjoner
- Vannledninger: Det er påvist at eventuelt lekkasjevann fra rør i rør system ikke ledes til sluk eller annen kompenserende løsning. Mer enn halvparten av forventet brukstid er passert på innvendige vannledninger.
2. Etasje Bad
- Overflater vegger og himling: Det er påvist at noen fliser har bom (hulrom under).
- Overflater Gulv: Det er påvist at høydeforskjell fra topp slukrist til gulv/synlig topp membran ved dørterskel er mindre enn 25 mm.
- Sluk, membran og tettesjikt: Mer enn halvparten av forventet brukstid er passert på membranløsningen.
- Sanitærutstyr og innredning: Det er ikke påvist tilfredsstillende løsning for å synliggjøre lekkasje fra innebygget sisterne.
- Ventilasjon: Rommet har kun naturlig ventilasjon.
2. Etasje Kjøkken
- Avtrekk: Det er kun kullfilterventilator på kjøkkenet og heller ikke andre forserte/mekaniske avtrekksløsninger fra kokesonen.
Følgende bygningsdeler er ikke undersøkt (TGIU):
Tekniske installasjoner
- Varmtvannstank: Sentralt varmtvannsberedning.
2. Etasje Bad
- Tilliggende konstruksjoner våtrom: Hulltaking er ikke foretatt da det ikke er fysisk mulig pga tilliggende konstruksjoner.
Helse, miljø og sikkerhet
Rekkverkshøyde balkong
Rekkverket på balkong eller terrasse er for lavt i forhold til dagens krav. Rekkverkshøyden ble målt til 0,90 m. Høyden på rekkverket tilfredsstiller ikke dagens krav. "Høyde på rekkverk ved balkonger, tribuner, passasjer og lignende skal være minimum 1,0 m".
Tilstandsrapporten er inntatt i salgsoppgaven. Rapporten inneholder informasjon om eventuelle avvik og konsekvensen av disse. Dersom det er registrert avvik med TG3, har den bygningssakkyndige i tillegg gitt et anslag på hva det vil koste å utbedre disse. Ettersom kjøper regnes å være kjent med forhold som tydelig fremgår av tilstandsrapporten, oppfordres du til å sette deg grundig inn i rapporten i sin helhet.
Moderniseringer og påkostninger
Følgende moderniseringer er foretatt de senere år:
2026:
- Nytt kjøkken
- Nytt elektrisk anlegg på kjøkken, utført av OVEL AS
2021:
- Nye kurser og stikkontakter i stue og soverom, nye spotter i stue og på bad, samt nytt sikringsskap
2002:
- Oppgradert bad
Vedlikeholdshistorikk borettslaget:
2017:
- To leiligheter har kjøpt ut og innlemmet loftsboder i sine boenheter.
Standard
Leiligheten ligger i byggets 2. etasje i et veletablert og attraktivt borettslag på Hovin. Boligen er oppgradert de senere årene med blant annet nytt kjøkken og nymalte overflater, og fremstår som lys, moderne og innbydende. Fra stuen er det direkte utgang til en solrik, sydvestvendt balkong på ca. 7 m² med gode solforhold.
Entré:
Velkommen inn! Du møtes av en innbydende entré med plass til yttertøy og sko. Et praktisk og ryddig inngangsparti som fungerer som et naturlig bindeledd til resten av leiligheten.
Stue:
Lys og luftig stue med god takhøyde på ca. 2,58 meter og stilrene downlights. Rommet har en fleksibel planløsning med god plass til både sofagruppe og spiseplass. Store vindusflater slipper inn rikelig med dagslys og gir en behagelig romfølelse. Fra stuen er det direkte utgang til balkongen, som utvider oppholdsrommet i de varme månedene.
Balkong:
Solrik, sydvestvendt balkong på ca. 7 m² med gode solforhold fra midt på dagen til kvelden. Her er det god plass til sittegruppe – et perfekt sted for rolige morgener eller lange sommerkvelder.
Kjøkken:
Moderne og stilrent kjøkken fra IKEA med glatte fronter og laminat benkeplate. Kjøkkenet er godt utnyttet med integrerte hvitevarer som kjøl-/fryseskap, stekeovn, platetopp og oppvaskmaskin. Det er også installert kombinert vaske/tørkemaskin. Komfyrvakt og vannstoppsystem gir økt trygghet. Fra kjøkkenvinduet kan du ane et lite glimt av sjøen.
Soverom:
Rolig og behagelig soverom med plass til dobbeltseng og garderobeløsning. Vinduet sørger for naturlig lys og en luftig atmosfære.
Bad:
Flislagt bad med elektrisk gulvvarme og praktisk planløsning bestående av vegghengt toalett, servant og dusjhjørne. Badet er av eldre dato, og modernisering må påregnes.
Overflater:
Gulv: Laminat
Vegger: Malt betong
Himling: Malt betong
Lagring:
Leiligheten disponerer tre boder med svært gode lagringsmuligheter: én bod i underetasjen på ca. 3,5 m² og to kjellerboder på ca. 4 m² og 2 m².
For fullstendig teknisk informasjon, se punktet Byggemåte i salgsoppgaven.
Løsøre og tilbehør
Når ikke annet er avtalt, overdras eiendommen med innredninger og utstyr som etter lov, forskrift eller annet offentlig vedtak skal følge med, jf. avhendingsloven. Det samme gjelder varig innredning og utstyr som enten er fastmontert eller er særskilt tilpasset bygningen. Loven inneholder ingen detaljert oversikt over hva som omfattes av «innredning og utstyr», og over hva som skal regnes som «fastmontert eller særskilt tilpasset». Partene kan fritt avtale hva som skal følge eiendommen ved salg. Bransjens liste over løsøre og tilbehør som skal følge med eiendommen, er en del av avtalen mellom kjøper og selger dersom ikke annet er opplyst i salgsoppgaven, kjøper har tatt forbehold i bud eller annen måte er inngått. Er ikke annet avtalt, vil løsøre og tilbehør medfølge slik dette fremkommer av avhendingsloven og bransjens tilbehørsliste inntatt i salgsoppgaven. Følgende medfølger i tillegg:
- Kombimaskin (vaskemaskin/tørketrommel) på kjøkken medfølger
- Modem fra OBOS
Oppvarming
Elektrisk oppvarming. Det er elektrisk gulvvarme på bad.
Dersom beboelsesrom ikke har vegg- eller fastmonterte varmekilder ved visning, følger dette heller ikke med.
Tinglyste heftelser og rettigheter
Utover andel fellesgjeld overdras leiligheten fri for pengeheftelser
Borettslaget har legalpant for forfalte felleskostnader og andre krav som følger av borettslagsforholdet iht. burettslagsloven § 5-20. Pantet er begrenset oppad til 2G (G = folketrygdens grunnbeløp).
Det er tinglyst 7 servitutter på borettslagets eiendom. Disse omhandler blant annet bestemmelse om bebyggelse, garasje/parkering, rett for kommunen til å anlegge og vedlikeholde ledninger, dispensasjon fra veigloven vedrørende traktorgarasje, dispensasjon fra bygningsloven vedrørende traktorgarasje, rett til å sette opp busskur og bestemmelse om vann/kloakk.
Servituttene vil følge eiendommen. Kjøpers bank vil få prioritet etter ovennevnte heftelser og servitutter.
Eventuell adgang til utleie
Andelseier kan ikke uten samtykke fra styret i borettslaget overlate bruken av boligen til andre. Med samtykke kan andelseier overlate boligen til andre i inntil tre år hvis andelseier har bodd i boligen i minst ett av de to siste år. Utleie i andre tilfeller kan godtas ved særlige grunner, jf. burettslagslova § 5-6. Utleie forutsetter at leiligheten har forsvarlige radonverdier. Se også borettslagets vedtekter og konferer megler ved spørsmål.
I tillegg til de generelle reglene for utleie i borettslag, gjelder følgende spesifikke bestemmelser ifølge borettslagets vedtekter: Andelseier som bor i boligen selv, kan overlate bruken av deler av den til andre uten godkjenning. Ved korttidsutleie skal ikke retten til å bruke fellesvaskeriet være en del av leieavtalen. Leid parkeringsplass følger ikke bruksoverlating, og sies opp den første i måneden etter bruksoverlating trer i kraft, med unntak for bruksoverlating på 6 måneder eller kortere.
Diverse
Tilbud av produkter og tjenester fra våre samarbeidspartnere
Vi er opptatt av verdiskapning, og har knyttet til oss samarbeidspartnere som skal sikre våre kunder de beste produkter og tjenester;
• Gjensidige leverer boligselgerforsikring og tilbyr bygningsforsikring
• Boligkjøperforsikring leveres av Hiscox og med Sedgwick som skadebehandler, og er formidlet gjennom Gjensidige.
• BN bank tilbyr finansieringsløsninger
• Vår avdeling Krogsveen Pluss tilbyr flyttetjenester som utvask, visningsvask, lager, tømming og transport av flyttelass, i tillegg til å formidle kontakt med Flip for overflateoppussing.
• I forbindelse med overtagelse av eiendommen tilbyr Overo avtale om strøm, alarm og bredbånd.
• Krogsveen er, sammen med øvrige bransjeaktører, medeier i den digitale annonseringsplattformen Hjem som eies av Bomega AS.
Energimerking
Denne boligen er energimerket. På en skala fra A til G, der A er best, har denne boligen oppnådd D (en normalbolig vil gjerne ligge i området C-F). Kopi av energiattest ligger vedlagt i salgsoppgaven eller kan fås ved henvendelse til megler.
Beliggenhet og tomteforhold
Beliggenhet og tomteforhold
Beliggenhet
Leiligheten ligger attraktivt til på Hovin, i det etablerte og populære Lilleberg borettslag i Lillebergsvingen. Området kjennetegnes av en fin kombinasjon av velholdte boligblokker, store grøntområder og kort vei til byens puls – noe som gjør dette til et perfekt utgangspunkt for deg som ønsker en urban livsstil med naturen rett utenfor døren.
Like ved finner du de flotte grøntområdene på Valle Hovin, med andedam, turstier og åpne parkarealer som innbyr til både rolige spaserturer og mer aktive dager ute. Borettslaget disponerer også store opparbeidede grøntområder med parkpreg, hvor man blant annet finner basketbane, tennisbane og gode rekreasjonsmuligheter.
For den aktive er beliggenheten ideell. Hovedtur- og sykkelveien fra Groruddalen mot sentrum passerer rett utenfor, og gir enkel tilgang til både Grefsenkollen, Lillomarka og Østmarka. I nærområdet finner du også flere populære parker som Kampenparken, Tøyenparken, Botanisk hage og Tiedemannsparken – sistnevnte kåret til Østlandets beste uterom i 2022. Oslo sentrum ligger omtrent en halvtimes spasertur unna.
Området byr også på et rikt tilbud av kaféer, restauranter og servicetilbud. Kort vei unna ligger Hasle Torg med blant annet Baker Hansen, Coop Mega, Jernia, Vinmonopolet, Vitusapotek og SATS treningssenter. Vinslottet på Hasle har utviklet seg til et levende møtepunkt i bydelen med butikker, serveringssteder og ulike servicetilbud. I tillegg finnes flere hyggelige nabolagssteder som Boulangerie M i Petersborgkvartalet og populære spisesteder på Ensjø og Helsfyr.
For et enda større utvalg av restauranter, barer og butikker ligger Grünerløkka kun rundt 20 minutters gange unna. Her finner du et rikt byliv med markedsdager på Olaf Ryes plass, bruktmarked i Birkelunden og et stort utvalg av kaféer, barer og spennende butikker.
Offentlig kommunikasjon er svært god. Det er kort vei til T-bane på Hasle, Helsfyr og Ensjø, samt busstopp i Gladengveien kun få minutters gange fra boligen med blant annet buss 21 og flybuss. Fra Helsfyr går også et omfattende kollektivtilbud til resten av byen.
Adkomst
Det vil bli skiltet med Krogsveen visningsskilt ved fellesvisninger.
Barnehager, skoler og fritid
Se vedlagt nabolagsprofil for oversikt over skoler og barnehager i området. Informasjon om tilhørende skolekretser er hentet fra Prognosesenteret som dataleverandør, og tilhørigheten kan årlig endres av kommunen. Dersom skole- og barnehagetilbud er av betydning for kjøpet, ber vi om at det rettes en særskilt henvendelse til kommunen/bydelsadministrasjonen for oppdatert informasjon.
Beskrivelse av tomt
Eiertomt på 70 333 m² som tilhører borettslaget. Felles tomt for borettslaget opparbeidet med blant annet asfalterte internveier, parkeringsplasser, gressplen, trær, prydbusker og diverse beplantning. Borettslagets fellesarealer har også lekeområde, sykkelparkering og sittegrupper.
Parkering
Borettslaget har 166 parkeringsplasser, hvorav ti har uttak for lading av elbil. Parkeringsplass tildeles etter venteliste. Selger opplyser å ha fått tildelt plass etter én måneds ventetid. Parkeringsleie er kr 210,- per måned.
Det er innført beboerparkering i dette området (indre by). Dette betyr at du kan parkere fritt døgnet rundt på parkeringsplassene regulert til beboerparkering i området rundt din bolig for kun kr. 3.850- pr. år for fossile biler, dieselbil, hybridbil, ladbar hybrid.
Har du el-bil så betaler du kr. 1.300,- pr år, hydrogenbil og el-varebil er gratis.
Motorsykkel og moped kr 1.925,- pr år.
El-motorsykkel og el-moped kr 650,- pr år.
Se Oslo kommune sine nettsider for mer informasjon og priser for ytre by.
Vei, vann og avløp
Eiendommen har adkomst via kommunal vei og private stikkveier med felles vedlikeholdsansvar for borettslaget.
Eiendommen er tilknyttet kommunalt ledningsnett via private stikkledninger. Borettslaget er ansvarlig for private stikkledninger til bygningen.
Regulerings-og arealplaner
Eiendommen er regulert til boligformål med tilhørende anlegg i henhold til reguleringsplan S-2864 datert 14.05.1986 med tilhørende reguleringsbestemmelser.
Etter gjennomført områdeanalyse er det ikke avdekket alvorlige risikoforhold på eiendommen. Det anbefales likevel å være oppmerksom på flomfare, mulig forurenset grunn, forekomst av kvikkleire samt at området kan være utsatt for radon. Se vedlagte områdeanalyse for nærmere informasjon.
Området er under omfattende utvikling og byggearbeider må påregnes.
Eiendommen er en del av Hovinbyen og det er utarbeidet en strategisk plan for området. Se for øvrig kommunens hjemmeside: https://www.oslo.kommune.no/slik-bygger-vi-oslo/hovinbyen/#gref.
Utdrag av planer iht. planinnsyn på Plan- og bygningsetatens hjemmeside:
- Saksnummer 202460006 - Reguleringssak: Grenseveien mellom Økernveien og Grensesvingen - bestilling av oppstartsmøte ble gjort 19.09.2024. Prosjektet innebærer en helhetlig opprustning av Grenseveien, som inkluderer trygge og attraktive ferdseslsarealer for myke trafikanter; ivaretakelse av fremkommelighet for kollektiv og oppdaterte holdeplasser; og trafikksikre løsninger som reduserer konfliktpunkter mellom ulike trafikantgrupper. Det tas sikte på å bryte ned Grenseveien som barriere, med gode krysningsmuligheter for gående som følger opp grønndrag og turveier definert i VPOR Ensjø.
- Saksnummer 202214130: Gjelder Grenseveien 65 - Bestilling av oppstartsmøte - Oppføring av ny ungdomsskole på Ensjø. Oppstartsmøte ble bestilt 27.09.2022 og det fremkommer her at formålet med reguleringen er å legge til rette for ny 8 parallell ungdomsskole på Lilleberg. Nybygg etableres langs Grenseveien i 4-5 etasjer (tilsvarende 5-7 boligetasjer, ny bygningskropp skjermer uteareal i syd mot støy fra Grenseveien. Plansaken er planlagt å legges ut for høring 16.01.2026.
- Saksnummer 201906491: Grenseveien 71 - Detaljregulering - Boliger. Innsending av planforslag ble gjort 05.09.2024. For at boligkvartalet skal bidra til et variert arkitektonisk uttrykk foreslås varierende høyder, fra 3-7 etg, som bryter opp skala og muliggjør attraktive takterrasser tilrettelagt for urban dyrking mellom byggene, samtidig med at boligkvaliteten øker ved større andel fasader. I Innsending av planforslag til 2. gangsbehandling er høyder i nord og sør redusert. Mot Grenseveien holdes etasjene til 7 etasjer tilsvarende Grenseveien 69. De er klagefrist 04.08.2025.
- Saksnummer 202118619: Grenseveien 73, 91 og 95 - utarbeidelse av planforslag - Regulering til barneskole og park. Oppstartsmøte ble bestilt 26.11.2021. Langs Grenseveien foreslås opp til 5 etasjer hvor idrettshall med tilhørende arealer legges i 4-5. etasje. Dette er for å beholde så mye uteareal på terreng som mulig til skolen, samtidig som Grenseveien godt kan tåle høyere og bymessig bebyggelse. Prosjektet er fortsatt i en avklaringsfase pr. 23.06.2025.
- Saksnummer 202460842: Hovinveien 43 A - Bestilling av oppstartsmøte - Boliger. Oppstartsmøte ble bestilt 14.10.2024. Prosjektet har 6 etasjer på det meste, og trapper seg ned mot tilgrensende bygg og gate-/byrom. Byggehøyden er tilpasset høyden på omkringliggende bebyggelse.
- Saksnummer 201609364: Like øst for Intility Arena bygges det i Innspurten 11-13. Det er planlagt oppføring av totalt fire bygg for kontor, forretning og bevertning med parkeringskjeller. Tre av bygningene er oppført og det vil være arbeider på tomten for videre oppføringer av det siste på hhv. 9 etasjer.
Det gjøres oppmerksom på at opplistingen ikke er uttømmende og interessenter oppfordres til å sette seg inn i relevante reguleringsplaner. Dette kan gjøres via Oslo kommune planinnsyn. Utsnitt av plan med tilhørende bestemmelser kan fås ved henvendelse til megler.
Økonomi
Økonomi
Boligens kostnader
Felleskostnadene er kr 3 982,- pr. mnd. og inkluderer: Internett (fiber), varmtvann, trappevask, honorarer, kommunale avgifter, felles boligforsikring, personalkostnader, drift og vedlikehold mm. Månedlige felleskostnader som ikke er spesifiserte, dekker boligselskapets driftskostnader.
Felleskostnadene er fordelt slik:
- Vinduslån: kr 320,-
- Trappevask: kr 90,-
- Strøm for varmtvann: kr 362,-
- Internett: kr 139,-
- Felleskostnader: kr 3 071,-
Felleskostnadene justeres normalt en til to ganger årlig i forhold til borettslagets faktiske utgifter.
Nåværende eier har et strømforbruk som tilsvarer ca. kr 5 000,- pr. år / 5264 kwh. pr. år.
Styret har fått et vedtak fra generalforsamlingen om å ta opp et behovsprøvd lån på inntil kr 10 000 000 for fremtidig vedlikehold. Tidspunkt og sum vil avhenge av når vedlikeholdet må gjennomføres.
Utgiftene er basert på nåværende eiers forbruk. Kjøper må selv tegne innboforsikring.
Kommunale utgifter
Kommunale avgifter faktureres boligselskapet og er dekket gjennom de månedlige felleskostnadene.
Formuesverdi
Ved hjelp av skatteetatens boligkalkulator er boligens formuesverdi beregnet til kr. 1.149.036 ,- for fjoråret når boligen benyttes som primærbolig.
Formuesverdien er en gitt prosent av den beregnede markedsverdien. Beregnet markedsverdi er basert på Statistisk sentralbyrå (SSB) sine opplysninger om omsatte boliger. I beregningen tas det hensyn til boligens beliggenhet, areal, byggeår og boligtype.
Det er eier av boligen som fastsetter formuesverdien, jf. skatteforvaltningsloven § 9-1 første ledd, men skattemyndighetene kan kontrollere at verdien er satt riktig.
Formuesverdi skal ikke overstige:
Primærbolig: 25 % av beregnet eller dokumentert markedsverdi opp til kr. 10 000 000, og deretter 70 % av den overskytende markedsverdi.
Sekundærbolig: 100 % av beregnet eller dokumentert markedsverdi.
Formuesverdier som overstiger disse grensene, kan kreves nedjustert av eier.
Fra 2026 har Stortinget vedtatt en oppdatert modell for beregning av formuesverdi for primærbolig, så avvik kan forekomme.
For mer informasjon se skatteetaten.no
Opplysninger om fellesgjeld
Andel formue er kr 26 011,- pr. 31.12.2025.
Andel fellesgjeld er kr 58 403,- pr. 13.04.2026.
Total fellesgjeld for borettslaget er kr 24 543 020,- pr. 13.04.2026 og lånevilkårene er:
Bank: OBOS Boligkreditt AS
Lånenummer: 98208201832
Type: Annuitetslån, 12 terminer per år.
Restsaldo pr. 13.04.2026: kr 64 271,-
Andel av saldo: kr 0,-
Innfrielsesdato: 30.05.2026
Type Rente: Flytende rente
Rente: 5,19%
Bank: Husbanken
Lånenummer: 11417751 2
Type: Annuitetslån, 2 terminer per år.
Restsaldo pr. 13.04.2026: kr 17 172 131,-
Andel av saldo: kr 36 081,37
Innfrielsesdato: 01.11.2033
Type Rente: Flytende rente
Rente: 4,08%
Bank: OBOS-banken AS
Lånenummer: 98208201824
Type: Annuitetslån, 12 terminer per år.
Restsaldo pr. 13.04.2026: kr 6 976 479,-
Andel av saldo: kr 14 604,01
Innfrielsesdato: 30.04.2035
Type Rente: Flytende rente
Rente: 5,19%
Bank: OBOS-banken AS
Lånenummer: 98208201840
Type: Annuitetslån, 12 terminer per år.
Restsaldo pr. 13.04.2026: kr 330 139,-
Andel av saldo: kr 7 717,25
Innfrielsesdato: 30.05.2028
Type Rente: Flytende rente
Rente: 5,19%
Mulighet for individuell nedbetaling på hele eller deler av fellesgjeld (IN-lån): Nei.
Omkostninger
4 500 000,00 Prisantydning
58 402,63 Andel av fellesgjeld
--------------------------------------------------------
4 558 402,63 Pris inkl. fellesgjeld
Omkostninger
8 212,00 Forkjøpsrett- benyttet OBOS (kjøper)
8 406,00 Gebyr forhåndsavklaring forkjøpsrett
9 950,00 Gjensidige Boligkjøperpakke* (valgfritt)
545,00 Tinglysing hjemmel
545,00 Tinglysing panterettsdokument
--------------------------------------------------------
17 708,00 (Omkostninger totalt (uten Gjensidige Boligkjøperpakke))
27 658,00 Omkostninger totalt (med Gjensidige Boligkjøperpakke))
--------------------------------------------------------
4 576 110,63 Totalpris inkl. omkostninger
4 586 060,63 Totalpris inkl. omkostninger (med Gjensidige Boligkjøperpakke)
--------------------------------------------------------
Dersom kjøper ikke er medlem av boligbyggelaget, må det påregnes en innmeldingsavgift og årlig medlemsgebyr pr. ny andelseier. Dette faktureres direkte fra boligbyggelaget.
Dersom borettslaget har fellesgjeld, vil leilighetens andel av fellesgjelden komme i tillegg til kjøpesummen. Denne gjelden skal ikke innbetales i oppgjøret, men følger leiligheten.
Det tas forbehold om endringer i avgifter og gebyrer.
Tilbud om lånefinansiering
Megler formidler gjerne kontakt med rådgiver hos vår samarbeidspartner BN Bank. De har konkurransedyktige betingelser samt rask og løsningsorientert behandling av din lånesøknad. Krogsveen mottar et honorar dersom lån opprettes.
Betalingsbetingelser
Kjøpesum inkludert omkostninger, samt pantedokument tilknyttet eventuelt lån, skal være disponibelt hos megler 2 virkedager før overtagelsen.
Annen viktig informasjon
Annen viktig informasjon
Eier
John-Olav Storvold
Informasjon om borettslaget
Leiligheten er tilknyttet Lilleberg Borettslag.
- Borettslaget består av 373 leiligheter.
- Første innflytting skjedde i 1953. Tomten ble kjøpt i 1986.
- Forretningsfører er OBOS Eiendomsforvaltning AS.
- Dugnad må påregnes.
- Det er fellesvaskeri i borettslaget mot betaling.
- Det er tillatt å ha hund i Lilleberg Borettslag på visse betingelser. Det er også tillatt å ha katt, forutsatt at det er å betrakte som innekatt. Se husordensreglene om regler for dyrehold. Dyrehold skal meldes skriftlig til styret.
- Det er tillatt med bruk av elektrisk grill og gassgrill på balkong.
- Borettslaget har egen hjemmeside: www.lillebergbl.no og Vibbo.no.
- Styret kan kontaktes per e-post: styret@lillebergbrl.no.
Utdrag av påkostninger foretatt i borettslaget:
2024/25: Bytte av internettleverandør
2022/2023: Pipeløp ble byttet i regi av borettslaget
2022: Brannvarslingsanlegget er ferdig installert, og kobles opp mot vaktselskap. Skiftet alle lyspunkter i borettslagets fellesarealer til LED.
2021: Pipeløp ble undersøkt på enkelte adresser.
2020: Oppussing grunnmur alle blokker.
2019: Nye ytterdører i oppganger med dørautomatikk.
2019: Oppussing av oppganger, samt nye postkasser.
2018-2019: Nye dørtelefoner, nytt låssystem og nye dører.
2018: Tiltak brannsikkerhet. Sjekket trykk i alle borettslagets brannslokkere, samt skiftet batteri i alle røykvarslere.
2017: Nytt varmtvannsanlegg. Alle sentrale varmtvannsberedere i blokkene ble skiftet til OSO beredere. Det ble montert vannstoppere der hvor berederrom ligger i tilknytning til kjeller.
2016: Vaskeriet i Lillebergveien 2 fikk ny vaskemaskin og tørketrommel.
2015: Alle husstander fikk røykvarsler og pulverslukkerapparat. Utvidet parkering med ytterligere 3 plasser for el-biler.
2012: Maling av garasjerekker. Oppgradering vaskeriet Lillebergveien 7, 14 og 17 med nye vaskemaskiner og tørketromler.
2009-2011: Drenering.
2010: Opprettet 22 nye parkeringsplasser. Nytt avfallsanlegg.
2003: Våtromsrehabilitering: Utskifting av vann- og avløpsrør m/sluk i samtlige leiligheter og kjellere. Sanering av småberedere, bygging av nye felles berederanlegg. Rehabilitering av badene med nye membraner, varmekabler, fliser, veggmonterte WC m.m.
1998: Rehabilitering av el-anlegg. Stigeledninger, sikringsskap, omtrekk. Nye stigeledninger, innmat i sikringsskap og nytt gårdslysanlegg. Inntrekking av nye ledninger i borettslagets samtlige 373 leiligheter.
1995-1997: Ny taktekking, isolasjon av yttervegger samt ny kledning.
Planlagte aktiviteter 2024 - 2026:
- Vedlikehold rekkehus - råte fasade og tak.
- Skifte alle dører inn til bodområder til brannsikre dører ut fra sikkerhet og brannfare der det er mye treverk.
- Oppgradering av strømnettet - infrastruktur om økt behov for elektrisitet til lading av el -og hybridbiler.
- Vurdere om behov for alle syv vaskerier fremover.
- Vurdere skifte av forsikringsselskap og rørleggerleverandør
- Garasjelaget planlegger fornyelse av 2 garasjeanlegg
- Videreføre låsesystemet til å gjelde alle dører til fellesarealer som kjeller og loft.
Styret har fått et vedtak fra generalforsamlingen om å ta opp behovsprøvet lån på inntil kr 10 000 000 for fremtidig vedlikehold. Tidspunkt og sum vil avhenge av når vedlikeholdet må gjennomføres. Øking av andel fellesgjeld må påregnes.
Styret informerer at det ikke foreligger planer om økning av felleskostnader eller fellesgjeld utover dette.
Det følger blant annet av vedtektene at man ved endring i egen bolig som berører bygningskonstruksjon, som bærevegger eller faste installasjoner som for eksempel flytte kjøkken, som påvirker rørsystemet som går gjennom blokken, skal tiltaket i forkant søkes styret. Styret kontaktes for å byggemelde og få søknadskjema.
Øvrige andelseiere i borettslaget og medlemmer av boligbyggelaget har forkjøpsrett. Forkjøpsretten parallellavklares. Dersom boligen tas på forkjøpsrett løses kjøper fra avtalen.
I henhold til borettslagets vedtekter må kjøper godkjennes av styret som ny andelseier. Det er kjøpers ansvar at styregodkjenning blir gitt, men styret kan ikke nekte godkjenning uten saklig grunn. Iht. burettslagslova kan man bare eie en andel i borettslaget. Kun fysiske personer kan være andelseiere.
For å dekke eventuell manglende innbetaling av fellesutgifter fra øvrige andelseiere, er borettslaget tilknyttet et sikringsfond gjennom OBOS. Dette innebærer at OBOS innbetaler samtlige felleskostnader til borettslaget hver måned og dermed overtar ansvar og risiko for eventuell inndrivelse av utestående fellesutgifter. Avtalen om sikringsfond gjennom OBOS er gyldig til den sies opp av en av partene. Oppsigelsesfrist er 12 måneder.
Dokumenter for borettslaget kan fås ved henvendelse til megler. Vedtekter og husordensregler er vedlagt.
Overtakelse
Etter nærmere avtale. Overtakelse kan tidligst skje etter at forkjøpsretten for øvrige andelseiere i borettslaget og eventuelt medlemmer av boligbyggelaget er avklart, samt at styrets godkjennelse er avklart.
Boligselgerforsikring
Selger har i forbindelse med salget tegnet boligselgerforsikring levert av Gjensidige.
Boligselgerforsikringen dekker selgers ansvar etter avhendingsloven begrenset oppad til kr 14 millioner. Dersom kjøper oppdager forhold ved eiendommen som hen mener utgjør en mangel ved eiendommen, vil Gjensidige behandle reklamasjonen på vegne av selger. Forsikringsvilkår kan fås ved henvendelse til megler.
Vedlagt salgsoppgaven følger selgers egenerklæringsskjema og tilstandsrapport. Interessenter må sette seg inn i dokumentene før bud inngis.
Boligkjøperforsikring
Innen kontraktsmøtet må kjøper ta stilling til om det ønskes å bestille Boligkjøperpakken gjennom Gjensidige. I denne gunstige pakken er boligen ferdig forsikret og inkluderer rettshjelpsforsikring, også kalt Boligkjøperforsikring. Rettshjelpsforsikring gir trygghet og tilgang på profesjonell juridisk hjelp dersom det oppdages uventede feil eller mangler det første året etter overtagelse. Forsikringsselskapet behandler i så fall ethvert mangelskrav kjøper måtte ha overfor selger.
Boligkjøperpakken inkluderer bygningsforsikring for hus og hytte, innboforsikring, flytteforsikring og dobbel rentedekning - i situasjoner hvor kjøper ikke får solgt nåværende primærbolig.
Kjøper mottar ingen særskilt faktura for Boligkjøperpakken da kostnaden det første året legges til kjøpesummen for boligen. Det gjøres oppmerksom på Krogsveen mottar et honorar for denne formidlingen.
Produktark for Boligkjøperpakken ligger vedlagt i salgsoppgaven.
Dersom ikke boligkjøperpakke ønskes kan kun rettshjelpsforsikring, også kalt boligkjøperforsikring, tegnes særskilt via megler. Rettshjelpsforsikringen varer i 5 år fra overtagelse og leveres gjennom Gjensidige. Ta kontakt med megler for ytterligere informasjon.
Selskap og privatpersoner som driver med kjøp/salg/utvikling som ledd i egen næringsvirksomhet kan ikke tegne boligkjøperpakke eller rettshjelpsforsikring.
Budgivning
Forbrukerinformasjon om budgivning er vedlagt denne salgsoppgaven og er også på vår hjemmeside Krogsveen.no. Alle bud og budforhøyelser må inngis skriftlig. I tillegg må legitimasjon være fremlagt sammen med signatur fra budgiver.
Vi oppfordrer til å gi bud elektronisk via GI BUD-knappen på eiendommens hjemmeside på Krogsveen.no. Da vil samtlige vilkår bli oppfylt.
Eventuelle forhøyelser eller endringer av budet kan bekreftes pr SMS eller på e-post. Vi oppfordrer alltid til å kontakte megler pr. telefon i tillegg da forsinkelser i SMS og e-post kan forekomme.
For at budene skal kunne bli behandlet og videreformidlet skriftlig til alle involverte parter, må alle bud ha en tilstrekkelig lang akseptfrist, jf. eiendomsmeglingsforskriften § 6-3.
Selger må også skriftlig akseptere budet før aksept kan formidles til budgiver. Akseptfrist bør derfor være på minimum 30 minutter, og budforhøyelser må derfor skje i god tid før fristens utløp.
Bud i forbrukerforhold kan uansett ikke settes med kortere frist enn kl. 12.00 første virkedag etter siste annonserte visning. I tillegg kan ikke budet ha forbehold om at det skal holdes hemmelig ovenfor øvrige interessenter. Megler har iht lov om eiendomsmegling ikke anledning til å videreformidle disse budene, og de vil dermed heller ikke bli journalført.
Etter at eiendommen er solgt vil kjøper og selger få tilsendt budjournal. Øvrige budgivere kan få utlevert kopi av budjournalen i anonymisert form.
Hvitvaskingsreglene
I henhold til lov om hvitvasking og terrorfinansiering har megler plikt til å gjennomføre kontrolltiltak overfor kunder, herunder fullmektiger. Dette innebærer bl.a. å bekrefte kunders og reelle rettighetshaveres identitet på bakgrunn av fremvist gyldig legitimasjon eller på annen godkjent måte, samt å innhente opplysninger om kundeforholdets formål og tilsiktede art.
Dersom slike kundetiltak ikke kan gjennomføres, kan megler ikke etablere kundeforholdet eller utføre transaksjonen.
Hvis kjøper ikke bidrar til gjennomføring av kundekontrollen og dette fører til at transaksjonen blir forsinket eller ikke kan gjennomføres, vil dette ansees som mislighold av avtalen og gi selger rettigheter etter avhendingslova kapittel 5. I tilfeller der selger ikke bidrar til gjennomføring av løpende kundekontroll underveis i oppdraget, er det selger som misligholder sine forpliktelser etter avtalen og gi kjøper rettigheter etter avhendingslovens kapittel 4. Partene er selv ansvarlige for eventuelle kostnader og ansvar dette kan medføre. Eiendomsmegleren eller eiendomsmeglingsforetaket kan ikke holdes ansvarlig for de konsekvenser dette vil kunne få for partene eller andre som har interesser i eiendomshandelen.
Kjøper oppfordres til å innbetale kjøpesummen som ikke kommer fra låneinstitusjon i én samlet innbetaling fra egen konto i norsk bank. Megler har plikt til å melde fra til Økokrim om eiendomshandler som fremstår som mistenkelige. Melding sendes Økokrim uten at partene varsles.
Personopplysningsloven
I henhold til personopplysningsloven gjør vi oppmerksom på at interessenter kan bli registrert for videre oppfølging.
Lovanvendelse
Generelle bestemmelser
Salgsoppgaven er basert på de opplysningene selger har gitt til megler, den bygningssakyndiges tilstandsrapport, samt opplysninger innhentet fra kommunen, Kartverket og andre tilgjengelige kilder. Det er viktig at kjøper setter seg grundig inn i alle salgsdokumentene, herunder salgsoppgave, tilstandsrapport og selgers egenerklæring. Kjøper anses kjent med forhold som er tydelig beskrevet i salgsdokumentene, og slike forhold kan ikke påberopes som mangler. Dette gjelder uavhengig av om kjøper har lest dokumentene. Alle interessenter oppfordres til å undersøke eiendommen nøye, gjerne sammen med fagkyndig før bud inngis. Kjøper som velger å kjøpe usett kan ikke gjøre gjeldende som mangel noe han burde blitt kjent med ved undersøkelsen.
Dersom det er behov for avklaringer, anbefaler vi at interessenter rådfører seg med eiendomsmegler eller egne rådgivere før det legges inn bud.
En bolig som har blitt brukt i en viss tid, har vanligvis blitt utsatt for slitasje og skader kan ha oppstått. Slik bruksslitasje må kjøper regne med, og det kan avdekkes enkelte forhold etter overtakelse som nødvendiggjør utbedringer. Normal slitasje og skader som nødvendiggjør utbedring, er innenfor hva kjøper må forvente og vil ikke utgjøre en mangel.
Kjøper og selgers rettigheter og plikter reguleres av avtalen mellom partene, samt informasjonen som har vært tilgjengelig for kjøperen i forbindelse med handelen. Avtalen utfylles av avhendingsloven, og det gjelder ulike avtalevilkår avhengig av om kjøper er forbrukerkjøper eller ikke. Dette er nærmere beskrevet nedenfor.
På grunn av ulike avtalevilkår kan selger vurdere bud fra en som ikke er forbruker, ulikt fra en forbrukers bud. Dersom kjøper ikke er forbruker, er selger sitt mulige mangelsansvar begrenset fordi eiendommen selges "som den er". Selger kan ikke ta «som den er»- forbehold overfor en forbrukerkjøper. Selv et lavere bud fra en som ikke er forbruker kan foretrekkes fordi begrensningen i mulig mangelsansvar kan ha egenverdi for selger. Selger står fritt til å forkaste eller akseptere ethvert bud, og er for eksempel ikke forpliktet til å akseptere høyeste bud.
Budgiver skal i budskjema avgi egenerklæring om budgiver er forbruker eller næringsdrivende/ person som hovedsakelig handler som ledd i næringsvirksomhet. Budgivere får informasjon dersom andre bud er inngitt av en som ikke er forbruker.
Forbrukerkjøp - definisjon
Med forbrukerkjøp menes kjøp av eiendom når kjøperen er en fysisk person som ikke hovedsakelig handler som ledd i næringsvirksomhet.
Forbruker – avtalevilkår
Eiendommen har en mangel dersom den ikke er i samsvar med kravene som følger av avtalen, eller det foreligger brudd på bestemmelsene i avhendingsloven §§ 3-2 til 3-8. Hvis eiendommen ikke er i samsvar med det kjøperen må kunne forvente ut ifra alder, type og synlig tilstand, kan det være grunnlag for mangelskrav. Det samme gjelder hvis det er holdt tilbake eller gitt uriktige opplysninger om eiendommen. Dette gjelder likevel bare dersom man kan gå ut ifra at det virket inn på avtalen at opplysningen ikke ble gitt eller at mangelskravet ikke blir rettet i tide på en tydelig måte.
Boligen kan ha en mangel etter avhendingsloven § 3-3 andre ledd, dersom det er avvik mellom opplyst og faktisk innvendig areal, forutsatt at avviket er på 2% eller mer og minimum 1 kvm.
Ved beregning av et eventuelt prisavslag eller erstatning må kjøper selv dekke tap/kostnader opptil et beløp på kr 10 000 (egenandel).
Ikke-forbruker (næringsdrivende) – definisjon
Hvis kjøper er en juridisk person, eller en fysisk person som hovedsakelig handler som ledd i næringsvirksomhet, vil kjøpet ikke anses som et forbrukerkjøp.
Ikke-forbruker – avtalevilkår
Eiendommen har en mangel dersom den ikke er i samsvar med kravene som følger av avtalen.
Eiendommen selges «som den er», og selgers ansvar utover det konkret avtalte er da begrenset etter avhendingsloven § 3-9, første ledd andre setning.
Avhendingsloven § 3-3 andre ledd fravikes, og hvorvidt boligens arealsvikt utgjør en mangel vurderes etter avhendingsloven § 3-8.
Informasjon om kjøpers undersøkelsesplikt, herunder oppfordringen om å undersøke eiendommen nøye, gjelder også for kjøpere som ikke anses som forbrukere.
Det forutsettes at hjemmel overføres til kjøper. Hvis kjøper ikke ønsker hjemmelsoverføring av eiendommen, må det tas forbehold om dette i budet.
Meglers vederlag
Meglers vederlag betales av selger og er avtalt til:
Vederlag: 1,00 % av salgssummen inkl. eventuell fellesgjeld. Minimumsprovisjon er kr 50 000,00
Vederlag:
Kunderabatt SELGER; Boligstylist kr -1 950,00
Markedsføringspakke kr 28 250,00
Oppgjør kr 7 500,00
Tilrettelegging kr 13 000,00
Visninger (Betaler kun for 2 visninger) / Overtagelse kr 4 000,00
Utlegg:
Eierskiftegebyr forretningsfører - OBOS kr 6 570,00
Innhenting av informasjon forretningsfører kr 2 650,00
Tinglysing sikring kr 545,00
Andre utgifter:
Boligselgerforsikring Gjensidige Andel - regnes av prisant.(12 105,00 ) kr 0,00
Boligstyling/rådgivning kr 1 950,00
Foto kr 4 500,00
Innhenting av offentlige opplysninger Ambita kr 313,00
Tilstandsrapport fra bygningssakkyndig kr 9 000,00
Opplysninger om oppdraget
Oppdragsnummer 37-0479/25
Eiendomsmegler Krogsveen AS, avd. Hasle
Valle View, Innspurten 11D, 0663, OSLO
950007613
Oppdragets KR-kode KR37.25479
Dato
Sist oppdatert: 21. april 2026 kl. 20:30
Dokumenter
Dokumenter
PDF – 917 KB
PDF – 627 KB
PDF – 2 MB
PDF – 312 KB
PDF – 29 KB
PDF – 127 KB
PDF – 392 KB
Område
Legg til steder som er viktige for deg
Visning
Unngå doble boligrenter
Vi tilbyr gunstig forsikring.
Vurderer du utleie?
Få et tilbud fra Utleie KrogsveenHva koster lånet?
Sjekk estimert lånekostnadVil du varsles om lignende boliger?
Ved å lagre ditt boligsøk hos oss får du beskjed når vi har en bolig som ligner denne, før den legges ut på markedet!






































