Hilton 38G
3 890 000 kr
128 m²
3 soverom
Solgt

Kløfta/Hilton
Rekkehus på enden over tre plan med 3 soverom | Attraktiv beliggenhet | Garasje m/ el-bil lader | Barnevennlig
Prisantydning
3 890 000 krAndel fellesgjeld
174 527 krOmkostninger
11 040 krTotalpris
4 075 567 kr
Pris
Bruksareal
146 m²BRA-I (internt bruksareal)
128 m²BRA-E (eksternt bruksareal)
18 m²TBA (terrasse-balkongareal)
25 m²
Areal
Etasje
2Byggeår
1969Soverom
3 soveromBad
1 badType
AndelsleilighetEierform
AndelFasiliteter
Garasje/P-plass og Balkong/TerrasseFellesutgifter
4 479 krEnergimerke
Oransje G
Nøkkelinfo
Unngå doble boligrenter
Vi tilbyr gunstig forsikring.
Vurderer du utleie?
Få et tilbud fra Utleie KrogsveenHva koster lånet?
Sjekk estimert lånekostnadBeskrivelse
Kort om eiendommen
Velkommen til Hilton 38G!
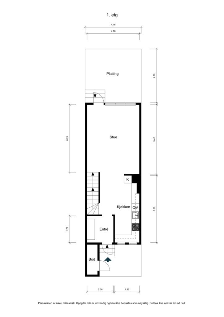
Hilton 38G er et tiltalende rekkehus som strekker seg over tre plan med en familievennlig planløsning. I 1. etasje finner man entré, tiltalende stue og kjøkken med åpen løsning til stua. Videre finner man tre gode soverom og et bad i 2. etasje. U. etasjen fungerer perfekt som kjellerstue.
Flott uteplass med markterrasse på 24 kvm og hageareal med boltreplass for familien. I tillegg er det parkeringsplass i garasjerekke med elbil-lader og en praktisk utvendig bod. Barnevennlig boområde med kort vei til barnehage, barneskole og offentlig kommunikasjon samt flotte tur- og rekreasjonsmuligheter.
Husk visningspåmelding.
Område
Legg til steder som er viktige for deg
På flyttefot? Tenk kjøp og salg samtidig.
Få din egen rådgiver gjennom hele kjøps- og salgsprosessen. Det starter med en verdivurdering.
Unngå doble boligrenter
Vi tilbyr gunstig forsikring.
Vurderer du utleie?
Få et tilbud fra Utleie KrogsveenHva koster lånet?
Sjekk estimert lånekostnadVil du varsles om lignende boliger?
Ved å lagre ditt boligsøk hos oss får du beskjed når vi har en bolig som ligner denne, før den legges ut på markedet!

