Hystadveien 13B
7 600 000 kr
111 m²
2 soverom
Solgt

Sentrum Vest
BUD INNKOMMET! Sjelden anledning i Bjørvikkvartalet! Toppleilighet med solrike uteplasser - Heis & garasje
Prisantydning
7 600 000 krOmkostninger
201 040 krTotalpris
7 801 040 kr
Pris
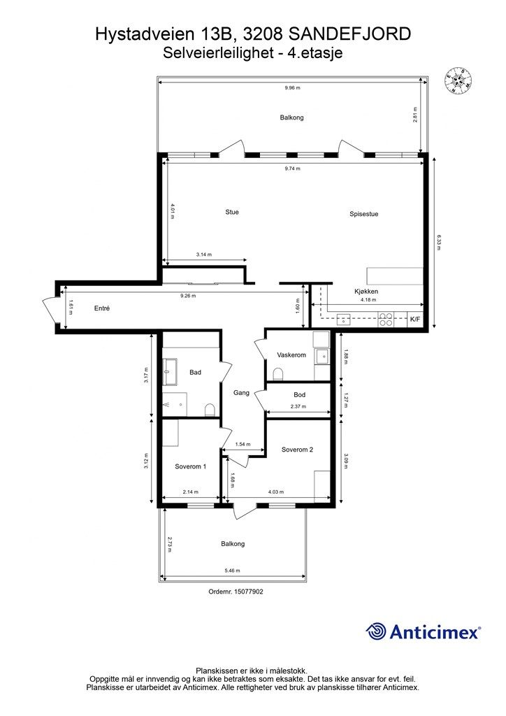
Bruksareal
118 m²BRA-I (internt bruksareal)
111 m²BRA-E (eksternt bruksareal)
7 m²TBA (terrasse-balkongareal)
43 m²
Areal
Etasje
4Byggeår
2015Soverom
2 soveromBad
1 badType
EierleilighetEierform
EierseksjonFasiliteter
Garasje/P-plass, Heis og Balkong/TerrasseFellesutgifter
5 359 krEnergimerke
Lysegrønn B
Nøkkelinfo
Unngå doble boligrenter
Vi tilbyr gunstig forsikring.
Vurderer du utleie?
Få et tilbud fra Utleie KrogsveenHva koster lånet?
Sjekk estimert lånekostnadBeskrivelse
Kort om eiendommen
Krogsveen v/Vindum har gleden av å presentere denne lekre toppleiligheten i Hystadveien 13B!
* Romslig og lys toppleilighet med to soverom, delikat flislagt bad, vaskerom/toalettrom, bod, lys og luftig stue med delvis åpen kjøkkenløsning
* Leiligheten har to usjenerte, høyt beliggende balkonger med gode solforhold. Balkongen mot sør har sol fra tidlig morgen til ettermiddag, mens balkongen mot nordvest har sol fra ettermiddag til solnedgang
* Det medfølger en bod samt parkeringsplass i garasjekjeller med muligheter for oppsett av El-bil lader
* Leiligheten er uten fellesgjeld og har lave felleskostnader
* Her bor man rolig og sentralt med gangavstand til både sentrum og fine turområder
* Flytt rett inn i stor og innbydende leilighet og nyt lettvinte dager!
Område
Legg til steder som er viktige for deg
På flyttefot? Tenk kjøp og salg samtidig.
Få din egen rådgiver gjennom hele kjøps- og salgsprosessen. Det starter med en verdivurdering.
Unngå doble boligrenter
Vi tilbyr gunstig forsikring.
Vurderer du utleie?
Få et tilbud fra Utleie KrogsveenHva koster lånet?
Sjekk estimert lånekostnadVil du varsles om lignende boliger?
Ved å lagre ditt boligsøk hos oss får du beskjed når vi har en bolig som ligner denne, før den legges ut på markedet!
















































