Elgefaret 74D
8 500 000 kr
125 m²
3 soverom
Solgt

Hosle
Innholdsrikt rekkehus over 3 plan med markterrasse og hage med gode solforhold - Rolig og trygt område - P-plass m/el
Prisantydning
8 500 000 krAndel fellesgjeld
93 126 krOmkostninger
235 810 krTotalpris
8 828 936 kr
Pris
Bruksareal
125 m²BRA-I (internt bruksareal)
125 m²TBA (terrasse-balkongareal)
21 m²
Areal
Byggeår
1987Soverom
3 soveromType
RekkehusEierform
EierseksjonFasiliteter
Balkong/TerrasseFellesutgifter
4 584 krEnergimerke
Gul D
Nøkkelinfo
Unngå doble boligrenter
Vi tilbyr gunstig forsikring.
Vurderer du utleie?
Få et tilbud fra Utleie KrogsveenHva koster lånet?
Sjekk estimert lånekostnadBeskrivelse
Kort om eiendommen
Eiendomsmegler Cecilie Muri ved Krogsveen Bærum har gleden av å ønske velkommen til Elgefaret 74D, og et innholdsrikt og hyggelig rekkehus på Hosle. Boligen har en attraktiv og populær beliggenhet med nærhet til barnehager, skoler, butikker, T-bane og buss, samtidig som det er nærhet til marka med flotte turområder, sommer som vinter.
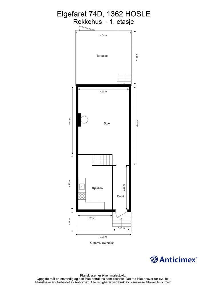
Denne flotte familieboligen går over 3 plan, og har en praktisk planløsning bestående av entré, stue og kjøkken i 1. etasje, soveromsavdeling med tre gode soverom, garderobe/bod og bad i 2. etasje, og kjellerstue, vaskerom og bod i kjelleretasjen. Utvendig er det en nydelig og lun vestvendt markterrasse på 21 kvm hvor late dager kan nytes, samt en hyggelig hage med frukttrær og bærbusker.
Område
Legg til steder som er viktige for deg
På flyttefot? Tenk kjøp og salg samtidig.
Få din egen rådgiver gjennom hele kjøps- og salgsprosessen. Det starter med en verdivurdering.
Unngå doble boligrenter
Vi tilbyr gunstig forsikring.
Vurderer du utleie?
Få et tilbud fra Utleie KrogsveenHva koster lånet?
Sjekk estimert lånekostnadVil du varsles om lignende boliger?
Ved å lagre ditt boligsøk hos oss får du beskjed når vi har en bolig som ligner denne, før den legges ut på markedet!

































