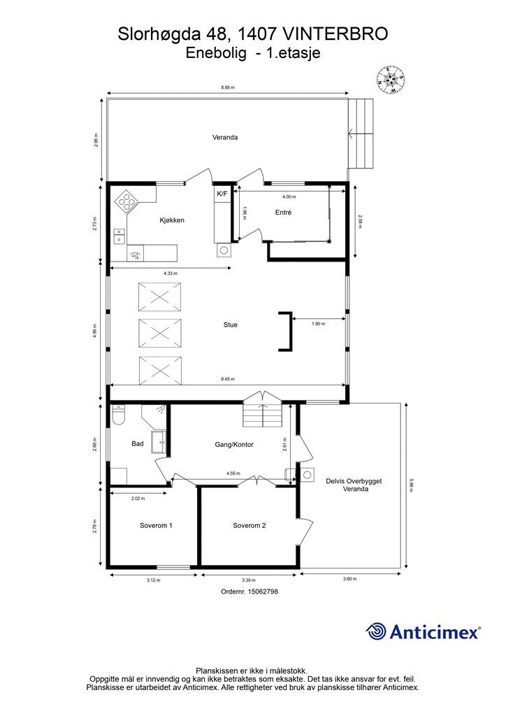
Slorhøgda 48
5 900 000 kr
104 m²
2 soverom
Solgt
Vinterbro
Enebolig med stor tomt og barnevennlig beliggenhet. Kjøkken fra 2020. Skjermet til i rolig område nær skole og natur.
Prisantydning
5 900 000 krOmkostninger
168 490 krTotalpris
6 068 490 kr
Pris
Bruksareal
122 m²BRA-I (internt bruksareal)
104 m²BRA-E (eksternt bruksareal)
18 m²TBA (terrasse-balkongareal)
48 m²
Areal
Etasje
1Byggeår
1992Soverom
2 soveromBad
1 badTomteareal
1 978 m² (eiet)Type
Enebolig - FrittliggendeEierform
EietFasiliteter
Balkong/TerrasseEnergimerke
Rød G
Nøkkelinfo
Unngå doble boligrenter
Vi tilbyr gunstig forsikring.
Vurderer du utleie?
Få et tilbud fra Utleie KrogsveenHva koster lånet?
Sjekk estimert lånekostnadBeskrivelse
Kort om eiendommen
Velkommen til Slorhøgda 48!
Sjarmerende, arkitekttegnet enebolig med god planløsning, solrike uteplasser. Boligen ligger på en stor, eiet tomt i barnevennlige omgivelser med kort vei til skole, barnehage og flotte turområder. Lys og romslig stue, kjøkken fra 2020 med integrerte hvitevarer og to romslige soverom med plass til dobbeltseng. Mellom soverommene ligger en lun kontor-/lesekrok med vedovn som effektivt kan varme opp hele huset. Fra både kjøkken og hovedsoverom er det direkte utgang til hver sin veranda - perfekt for morgenkaffe og sommerkvelder. Bad med gulvvarme, samt gode lagringsmuligheter i både bolig og frittstående bod. Boligen kombinerer nyere oppgraderinger med klassisk sjarm - et hjem du kan sette ditt preg på!
Område
Legg til steder som er viktige for deg
På flyttefot? Tenk kjøp og salg samtidig.
Få din egen rådgiver gjennom hele kjøps- og salgsprosessen. Det starter med en verdivurdering.
Unngå doble boligrenter
Vi tilbyr gunstig forsikring.
Vurderer du utleie?
Få et tilbud fra Utleie KrogsveenHva koster lånet?
Sjekk estimert lånekostnadVil du varsles om lignende boliger?
Ved å lagre ditt boligsøk hos oss får du beskjed når vi har en bolig som ligner denne, før den legges ut på markedet!




