Kanonhallveien 24 D
9 400 000 kr
96 m²
3 soverom
Komplett salgsoppgave

Løren
Populær oppgradert 4-roms townhouse-/familieleilighet over 2 plan. 2 balkonger. Bad + WC. Garasjeplass. Barnevennlig.
Prisantydning
9 400 000 krAndel fellesgjeld
41 121 krOmkostninger
246 040 krTotalpris
9 687 161 kr
Pris
Bruksareal
102 m²BRA-I (internt bruksareal)
96 m²BRA-E (eksternt bruksareal)
6 m²TBA (terrasse-balkongareal)
10 m²
Areal
Etasje
3Byggeår
2006Soverom
3 soveromBad
1 badType
EierleilighetEierform
EierseksjonFasiliteter
Garasje/P-plass, Heis og Balkong/TerrasseFellesutgifter
6 133 krEnergimerke
Lysegrønn B
Nøkkelinfo
Unngå doble boligrenter
Vi tilbyr gunstig forsikring.
Vurderer du utleie?
Få et tilbud fra Utleie KrogsveenHva koster lånet?
Sjekk estimert lånekostnadBeskrivelse
Kort om eiendommen
Innhold og byggemåte
Innhold og byggemåte
Eiendommen
Kanonhallveien 24 D, 0585 OSLO
Kommunenummer 301, gårdsnummer 124, bruksnummer 206, seksjonsnummer 73, ideell andel 1/1
Innhold
Totalt bruksareal BRA: 102 m²
BRA-i:
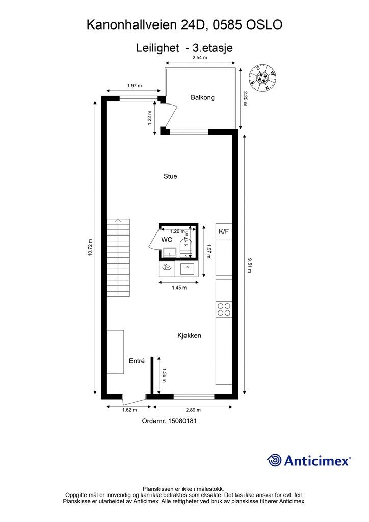
3. etasje 48 m²: Entré, kjøkken, stue og wc-rom
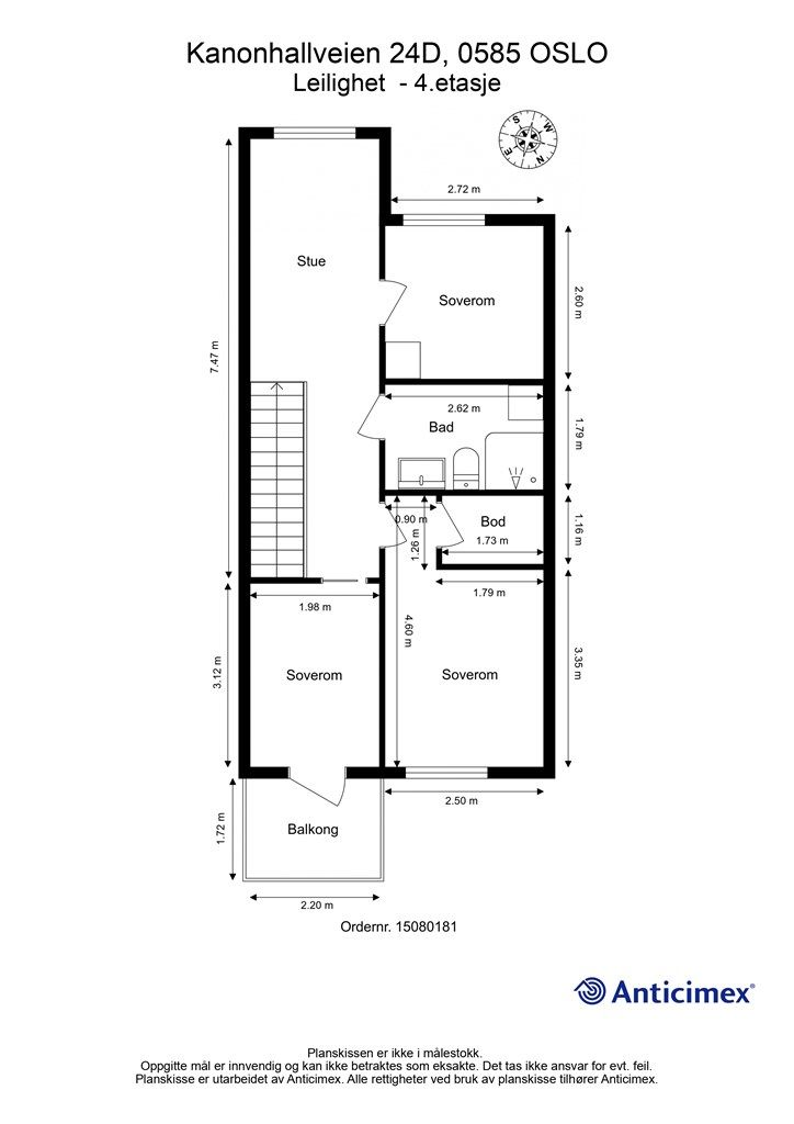
4. etasje 48 m²: Stue, tre soverom, bad og bod
BRA-e:
-1.etasje 6 m²: Sportsbod
Åpent areal:
3. etasje 6 m²: Balkong
4. etasje 4 m²: Balkong
Boligen har enerett til bruk av 1 sportsbod som ligger i kjelleren i rekke 3. Boden er tinglyst som en tilleggsdel til seksjonen.
De oppgitte arealer er hentet fra rapport med befaringsdato 09.03.2026 utført av Anticimex v/Espen Hansen Amundsen.
Byggemåte
Selger har fått utarbeidet en tilstandsrapport, dvs. en teknisk gjennomgang av boligen hvor eventuelle avvik, risiko for kjøper og prisoverslag for hva som bør gjøres av oppgradering, er skissert. Se særskilt TGIU (tilstandsgrad ikke undersøkt), samt TG2 og TG3 som viser hva som er boligens normale slitasje, alder og type, hva som er avvik fra dette og hva som bør/må utbedres. Rapporten og selgers egenerklæring er en del av salgsoppgaven og må leses nøye før bud inngis. Kjøper overtar ansvaret for de opplysninger som fremkommer av salgsdokumentasjonen, og kan ikke gjøre gjeldende som mangel noe som burde vært kjent eller som ikke kan anses å ha betydning for avtalen.
Bygningen er iht. tilstandsrapporten oppført i tre/betong. Grunnmur og bærende konstruksjoner i hovedsak av betong. Yttervegger av bindingsverk utvendig kledd med liggende trepanel og fasadeplater. Flatt tak utvendig tekket med takpapp/membran. Ytterdør av tre med glassfelt. Balkongdører og vinduer med karmer av tre med tre-lags glass. Les for øvrig mer om byggemåte og den tekniske tilstanden i rapporten.
Det gjøres spesielt oppmerksom på TG2:
Bad:
- Vanntett sjikt / membran i gulv og vegger: alder som tilsier at fremtidig funksjon er usikker. Konsekvensen er at bygningsdelen erfaringsmessig har risiko for nedsatt funksjon, utettheter eller andre aldersrelaterte problemer. Bygningsdelen er skjult, så den faktiske tilstanden og dagens tettefunksjon er ukjent.
- Tettesjiktets tilslutning til sluk: overgang mellom sluk og vanntett sjikt er uoversiktlig. Konsekvensen er at det derfor ikke kan verifiseres at utførelsen er korrekt, eller at lekkasjesikkerheten er ivaretatt.
Tekniske anlegg, herunder mekaniske ventilasjonsanlegg: alder som tilsier at fremtidig funksjon er usikker. Konsekvensen er at bygningsdelen erfaringsmessig har risiko for nedsatt funksjon, funksjonssvikt eller andre aldersrelaterte problemer. Synlige tegn til at ventilasjonens anlegget med ventilasjonskanaler har behov for kontroll og service.
Nåværende eiere opplyser om at det ikke er opplevd lekkasje i sluk i deres eiertid.
Andre rom:
- Overflate vegg: aldersrelatert slitasje og enkelte mindre skader.
- Overflate gulv: deler av gulvets overflatemateriale bærer preg av slitasje med enkelte riper og hakk. Forholdet vurderes i hovedsak til å være av estetisk betydning, men riper og hakk av en viss dybde kan gjøre at fuktighet som for eksempel fra rengjøring forårsaker misfarging eller lignende konsekvenser. Synlige deler av gulvets overflatemateriale har stedvise åpninger/gliper i skjøter og overganger. Konsekvensen er at fuktighet, for eksempel fra rengjøring, lettere trenger inn i gulvmaterialet og forårsaker misfarging og lignende fuktskader.
- Innerdører: enkelte innerdører bærer preg av skader/slitasje.
- Annet: 4.etasje har himling med lukket konstruksjon mot yttertak. Slike konstruksjoner betraktes erfaringsmessig som fuktrisikokonstruksjoner. Konsekvens er risiko for skjulte feil og skader. Det gjøres oppmerksom på at det ikke er observert symptomer på fuktskader.
Innvendige trapper, herunder tilstand: bærer samlet sett preg av aldersrelatert slitasje og enkelte skader. Konsekvens/foreslått er lokale tiltak eller komplett utskiftning hvis dette vurderes som nødvendig.
Yttertak - Hovedtak, herunder helhetsvurdering: taket er ikke fysisk inspisert grunnet is og snø (sikkerhetsmessige forhold). Konsekvens er at taket kan være utsatt for slitasje, skader eller feil utførelse som ikke lar seg registrere på grunn av forholdene på befaringsdagen. På bakgrunn av at ventilasjonen av takkonstruksjonen ikke kan kartlegges og undersøkes fra innsiden, foreligger det en usikkerhet om hvordan/om denne funksjonen er ivaretatt. Taktekkingen (med tilhørende beslag) viser begynnende tegn til slitasje og elde. Ikke registrert synlige skader av vesentlig betydning, men taktekkingen har nådd en alder og tilstand der fremtidig funksjon vurderes som usikker. Konsekvens er at usikker fremtidig funksjon betyr at bygningsdelen erfaringsmessig har risiko for nedsatt funksjon, funksjonssvikt eller andre aldersrelaterte problemer. Undertaket (inkluderer sløyfer, lekter, innfestninger og lignende) med tilhørende komponenter har en alder som tilsier at fremtidig funksjon er usikker. Konsekvens er at usikker fremtidig funksjon betyr at bygningsdelen erfaringsmessig har risiko for nedsatt funksjon, funksjonssvikt eller andre aldersrelaterte problemer. Bygningsdelen er skjult, så den faktiske tilstanden er ukjent.
Balkonger, herunder tilstand på rekkverk og overflatematerialer: overflatematerialer på balkongen viser tegn til slitasje. Konsekvens er svekket beskyttelse av materialene, noe som kan forkorte levetiden og øke risikoen for fuktrelaterte skader på sikt.
TGIU:
Tekniske anlegg, herunder innvendig stakeluke: Innvendig stakeluke er ikke påvist inne i boenheten. Ikke kjent om stakeluker eller tilsvarende stakepunkter er prosjektert og etablert i bygningens fellesarealer. Det vurderes at boenheten likevel har tilgjengelige stakepunkter gjennom sluk og øvrige komponenter tilknyttet avløpssystemet, men hvordan disse vil fungere i en faktisk brukssituasjon er ikke kjent.
Yttervegger inkl. fasader:
- Lufting av ytterkledning: ikke mulig å kontrollere om ytterkledningen har tilstrekkelig lufte- og drensspalte, ettersom det aktuelle inspeksjonsområdet er skjult av andre bygningsdeler. Konsekvens av eventuell mangelfull lufting er at konstruksjonens evne til å tørke ut eventuell fuktighet reduseres, noe som kan øke faren for skjulte fuktskader. Foreslått tiltak er videre undersøkelser og kartlegging av dagens utførelse og tilstand.
- Gnagersikring: ikke mulig å kontrollere om ytterkledningen er sikret mot inntrekk av gnagere.
Balkonger, herunder konstruksjon og fundamenter: fundamentene var ikke tilgjengelige for undersøkelser grunnet balkongens plassering i 3.etasje, noe som gjorde at utførelsen/tilstanden ikke lot seg kontrollere.
Se supplerende tekst i tilstandsrapporten om bad/tekniske anlegg/andre rom/innvendige trapper/yttertak/balkonger/yttervegger. Kjøper overtar ansvar og risiko for dette.
Det ble påvist forekomst av skjeggkre i flere seksjoner i 2020. Det ble gjort felles sanering i regi av sameiet. Styreleder opplyser om at det ikke har vært rapportert den senere tiden. Det har ikke blitt observert skjeggkre etter felles sanering, ikke noen i feller satt ut i flere rom i 2022. Skjeggkre kan ifølge skadedyrfirmaene bekjempes ved sanering av skadedyrfirmaer, bruk av limfeller samt regelmessig støvsuging/rengjøring. Kjøper overtar risikoen for dette forholdet. Konferer med megler for ytterligere informasjon.
Moderniseringer og påkostninger
Boligen er modernisert/påkostet i 2016.
Veggflisene ble helsparklet med våtromssparkel og heftgrunn. Deretter slipt og malt med våtromsmaling & sparkel. Fliser er lagt oppå opprinnelige fliser på gulv, våtromsheftgrunn, flislim og deretter fliser. Italienske og kostbare fliser. Taket er senker med spiler (malt sort). Limt fast med våtromslim. Baderomsinnredning fra Unoform. Egenmontert. Egenmonterte dusjvegger.
Ny kjøkkeninnredning fra Unoform
Nytt Dinesen gulv i heltre gran
Standard
1. E T A S J E:
Vindfang / entré / gang:
Lys entré med adkomst til alle rom i denne etasjen og videre til trapp som fører til 2.etasje. God plass til oppheng av tøy og oppbevaring av sko i garderobeskap. Romslige sokkelskuffer under garderobeskapene til oppbevaring av sko, i tillegg til et separat skoskap som medfølger.
Toalettrom:
Praktisk, separat toalettrom. Toalettrommet består av vegghengt servantskap fra Unoform med heltstøpt Corian heldekkende servant og ett-greps armatur. Speil over servant med overlys og gulvmontert toalett. Vegghengt Montana baderomsskap, samt vegglampe fra VIPP medfølger.
Stue / Kjøkken:
Stue med plass til blant annet sofagruppe og tv-møblement. Store vindusflater slipper inn rikelig med lys. God takhøyde og spiler med downlights i deler av himlingen gir "townhouse"-følelsen. Flott Dinesen gulv i heltre gran. Fra stuen er det adkomst til balkong.
Delvis åpen kjøkkenløsning mot stue. Pen og nordisk kjøkkeninnredning fra Unoform med profilerte fronter, Corian helstøpt benkeplate og underlimt oppvaskkum med ett-greps armatur. Integrerte hvitevarer som komfyr, nedfelt induksjonstopp, oppvaskmaskin og to kjøleskap hvorav ene er kombiskap med kjøl/frys. Mekanisk kjøkkenventilator. På kjøkkenet er det god plass til spisebord og spisestoler. Flott Dinesen gulv i heltre gran.
Balkong:
Adkomst fra stue til balkong på 6 m². Balkongen fungerer som er forlengelse av stuen på sommerstid. Plass til blant annet utemøbler og bord. Bærende konstruksjoner av betong belagt med spaltegulv. Rekkverk av stål. Utebelysning og stikkontakter. Selger opplyser om solfylt balkong og sol mesteparten av dagen.
2. E T A S J E:
Badeværelse:
Romslig bad med flislagt gulv med gulvvarme. Sparklede veggfliser malt med våtromsmaling. Himlingsflate kledd med trepanel. Downlights i himling. Badet består av vegghengt servantskap fra Unoform med heltstøpt Corian heldekkende servant og ett-greps armatur, speil over servant med overlys, dusjnisje med innfellbare og dusjarmatur, samt vegghengt toalett. Plass og opplegg til vaskemaskin og tørketrommel.
Allrom / Tv-stue:
Tidligere åpning fra stuen og opp i leilighetens 2. etasje er tettet igjen. Rommet i dag er innredet som allrom / tv-stue. Plass til blant annet sofa, bord og tv-benk. Ved behov, kan det med enkle grep settes opp en lettvegg for innredning av ekstra soverom / kontor.
Soverom 1 / Hovedsoverom:
Hovedsoverom med plass til dobbeltseng og nattbord. God plass til ytterligere møblement som for eksempel skap, kommode m.m. Praktisk innvendig bod med plass til diverse.
Soverom 2 / Barnerom:
Soverom med plass til enkeltseng, skrivebord, kontorstol og skap. Fra rommet er det adkomst til balkong.
Soverom 3 / Barnerom / Gjesterom / Kontor:
Soverom som passer godt som et ekstra barnerom, gjesterom eller kontor. Plass til enkeltseng, kontorbord, skrivebord og kommode.
Balkong:
Adkomst fra soverom til balkong på 4 m². Plass til blant annet utemøbler. Bærende konstruksjoner av betong belagt med spalte gulv. Rekkverk av stål. Utebelysning og stikkontakter.
Løsøre og tilbehør
Følgende medfølger ikke: Montana skap i stuen, Montana sengegavl med nattbord på soverommet, veggmonterte lamper, noen taklamper og stringhyllene i 2. etg i gangen utenfor soverommene og på det minste soverommet.
Følgende medfølger: vaskemaskin, tørketrommel, alle hvitevarer på kjøkken, skoskap i entré, Montana baderomsskap og vegglampe fra VIPP på toalettrom.
Det gjøres oppmerksom på at hvitevarene er kjøpt for noen år tilbake, og kjøper må forvente slitasje som følge alder og normal bruk.
For øvrig viser vi til liste fra Norges Eiendomsmeglerforbund som gjelder fra 01.01.2020 angående løsøre og tilbehør.
Oppvarming
Oppvarming med vannbåren varme til radiatorer. Gulvvarme på bad.
Dersom beboelsesrom ikke har vegg- eller fastmonterte varmekilder ved visning, følger dette heller ikke med.
Ferdigattest/brukstillatelse
Det foreligger ferdigattest på eiendommen, datert 30.03.2012. Denne kan fås ved henvendelse til megler.
I henhold til seksjonering var det tidligere åpent fra deler av stuen og opp til 4.etasje. Dette er nå tettet igjen.
Kjøper overtar alt ansvar, kostnad og risiko for dette videre.
Tinglyste heftelser og rettigheter
Leiligheten overdras fri for pengeheftelser med unntak av fellesgjeld.
Sameiet har legalpant for krav mot sameieren som følger av sameieforholdet iht. eierseksjonsloven § 31. Pantet er begrenset oppad til 2G, (G = folketrygdens grunnbeløp).
I tillegg har sameiet tinglyst panterett som nevnt over.
Det er tinglyst 8 servitutter på sameiets eiendom. Disse omhandler blant annet 3 bestemmelser om adkomstrett og 5 erklæringer/avtaler (bruksrett - gjensidig rett til bruk av grunn for reparasjon og vedlikehold, bestemmelse vedr. gassledninger og tilhørende rørføringer i grunnen/bestemmelser vedr. ledningsnett/rett til adkomst for reparasjon og vedlikehold, bestemmelse vedr. fjernvarme/bestemmelse om anlegg og vedlikehold av ledninger m.m., bestemmelser vedr. vedlikehold av grøntarealer og lekeplass og erklæring/avtale om tilleggsdel - bygning.
Servituttene vil følge eiendommen.
Eiendommen har tinglyst rett til garasje/parkering på gnr. 424 bnr. 1, benyttelse på gnr. 124 mfl. bnr., vann/kloakkledning på gnr. 124 mfl. bnr., vaktmesterlag på gnr. 424 bnr. 1, årlig vedlikeholdskostnader med flere bestemmelser og parkering på gnr. 424 bnr. 1, samt felles avkjørsel på gnr. 124 bnr. 302.
Eventuell adgang til utleie
Leiligheten kan leies ut såfremt leiligheten har forsvarlige radonverdier. Leietaker må følge sameiets vedtekter og ordensregler på lik linje som eier. Sameiets styre skal underrettes om alle leieforhold. Seksjonseieren er forpliktet å gjøre leietakerne godt kjent med både vedtektene og husordensreglene. Seksjonseieren har ansvaret for at vedtektene og husordensreglene foreligger på et for leietakeren forståelig språk. Kortidsutleie av seksjonen, f. eks. AirBNB, må forhåndsvarsles styret på styrets mailadresse, styret@lorenparken.no. Kortidsutleie av hele boligseksjonen i mer enn 60 døgn i året er ikke tillatt. Som kortidsutleie regnes utleie eller utlån i inntil 30 døgn sammenhengende.
Beliggenhet og tomteforhold
Beliggenhet og tomteforhold
Beliggenhet
Leiligheten ligger rett ved Lørenparken i Bydel Grünerløkka. Det er lagt vekt på attraktive uterom for beboerne med blant annet egen skulpturpark. Forretninger, kafeer og restauranter innen gangavstand. Peppes Pizza, den indiske restauranten Sanjay's, Baker Hansen, Baker Nordby og Kaffebrenneriet er hyggelige møtesteder. Småbarnsforeldre trives og barna har det gøy på kafé-lekerommet Titt-tei! og leke- og læringssenteret Lille Lab/Mini slottet. Ved Krydderhagen finner du WB Samson, Sugar & Spice, 8 Fish Sushi, Smoothie Zone og Stykke Pizza. Hasle Linie Gastropub på Vinslottet frister også. Borterst i Lørenveien finner du Noa, og Tiffany's (burgers and bowls) i Peter Møllers vei. Phin restaurant frister med vietnamesisk mat i Lørenveien. Gastropuben Fryd og Kammis Grill finner du på Løren Torg. Nabolaget har to nye hotell: Quality Hotel Hasle Linie med Bistro X og Bar X ved Vinslottet og Radisson RED-hotell i Økern Portal, hvor du også finner Studio Jobbsprek samt et utvalg av spisesteder.
Dagligvarer handler du hos Meny, Rema 1000 eller Kiwi. Joker og Løren Frukt & Grønt som ligger ca. 5 min unna har begge søndagsåpent. Domino's Pizza og UMai Sushi har også mye godt i diskene sine. Bokhandler Norli tilbyr skrivesaker og lesestoff. I tillegg finnes frisør, hudpleie, fysioterapeut, kiropraktor, Empet Løren Dyreklinikk, Green Kids second hand, Friperie, Blomsterpikene, renseri, Squeeze, Europris, Apotek 1 og Sinsenklinikken legesenter og STERK treningsstudio for den som vil noe mer med treningen sin. EVO Løren ligger like ved.
På Vinslottet finner du Spar Mat, Norex Market, Apotek 1, frisører, Jysk, Synsam, Claire Woman, Sterk Legevakt Øst, Elsykkelbutikken og du kan stikke innom Kitch'n og interiørbutikken Houz for å få hjelp til å pynte opp hjemme. Barna har det gøy på leke- og læringssenteret Lille Lab/Mini slottet.
Kort vei til Oslos nye legevakt på Aker Sykehus. Post-i-butikk hos Bunnpris i Grenseveien og pakkeutlevering på Rema 1000 på Løren. Vinmonopolet finner du på Carl Berner. Hasle Torg bidrar også til et enda større servicetilbud i nabolaget. Fint med mini-gjenbruksstasjon i Peter Møllers vei.
Det er et stort aktivitetstilbud for store og små i nabolaget. Kanonhallen som brukes til kulturarrangementer som julemesse, konserter og utstillinger ligger like ved. Det er en rekke aktiviteter på Løren. Løren aktivitetspark og flerbrukshall på 2.500 kvm åpnet i september. Hasle-Løren IL holder til ved Lørenhallen og har et bredt tilbud og tilbyr fotball, ishockey, sykkel, ski, multisport, innebandy og håndball. Sinsen-Refstad (SRIL), driver aktivitetstilbud for barn og unge i området Sinsen, Refstad, Løren, Frydenberg og Hasle.
Det er også Taekwon-Do, Wushu og andre kampsportklubber i området. Sinsen Tennisklubb har fire grusbaner og sandvolleyballbane, samt Tennis Arena hall på Hasle med 11 tennisbaner inne. Danseskolen Danseløvene med mange spennende kurs, samt Sinsen Musikkorps som tilbyr fine aktiviteter for beboerne på Løren. Aktivitetsskolen er også en fin møteplass for barna.
Løren Velforening er dyktig til å få fokus på Løren og har fått inn flere midler som bidrar til utvikling av området. I løpet av året arrangeres det flere kulturbegivenheter: karneval for de minste, Quiz-kvelder, utendørs kino i parken, Lørendagen og Hallo-Venn om høsten, tenning av julegrana på Løren Torg, julemarked og juletrefest som alle samler naboene.
Løren er ikke langt unna sentrum og har godt kollektivtilbud. Ca. 500 m til Løren t-banestasjon og ca. 1 km til Hasle med t-bane og buss, bl.a. 21-bussen som tar deg til Tjuvholmen og Helsfyr, via Grünerløkka, St. Hanshaugen og Carl Berners plass. Økern t-bane er også i gangavstand. Buss stopper på Sinsen og på ring 3. Flybussen stopper ca. 700 m unna i Dag Hammarskjölds vei samt ringveisbussene 23 og 24. Fra Sinsenterrassen kan du også reise med trikk. Bysyklene er også et fint alternativ i sommerhalvåret. Gangavstand til Carl Berner, Sinsen, Aker Sykehus, Storo, Økern, Hasle, mm.
Fra Løren er det også kort vei til fantastiske Grefsenkollen hvor du finner en av de beste utsiktene i byen over Oslo og Oslofjorden. Det er også et av de mest populære turmålene i Lillomarka, enten du kommer hit for utsikten eller planlegger å overnatte i hengekøye.
Nærmeste nabolag, Økernområdet er i stadig utvikling, og er spådd til å bli et av Oslos viktigste knutepunkter. Økern Sentrums hovedfokus er å ta et helhetsgrep om stedsutviklingen og skape et moderne og integrert bysentrum med mangfold. Målet er å etablere et totalt tilbud for befolkningen. Økern skal utvikles til å bli en levende og spennende by for alle. Stikkord: Rekreasjon, kunst, kultur – og fritidstilbud, spennende arkitektur og utsmykning, alternativ utforming av bomiljøer, kaféliv, kunst og designerbutikker, bevaring av historiske spor, osv.
Les mer om Løren på www.loren.no og "nye" Økern på https://vimeo.com/523755815
Adkomst
Med t-bane:
Linje 4 til t-banestoppet Løren T. Boligen er ca. 5 minutters gange unna.
Med buss:
Linje FB3, 23 og 24 til bussholdeplassen Sinsenveien. Boligen er ca. 4 minutters gange unna.
Med trikk:
Linje 17 til trikkestoppet Sinsenkrysset. Boligen er ca. 11 minutters gange unna.
Med tog:
Linje R31 og RE30 til togstasjonen Grefsen stasjon. Boligen er ca. 16 minutters gange unna.
Det vil bli skiltet med Krogsveen visningsskilt ved fellesvisninger.
Barnehager, skoler og fritid
Det er kort vei til skoler og barnehager i området.
Skoler:
Sinsen skole (1-7 kl.): 0.6 km
Løren skole (1-7 kl.): 1 km
Refstad skole (1-7 kl.): 1.4 km
Frydenberg skole (8-10 kl.): 0.6 km
Wang Ung Oslo (8-10 kl.): 0.8 km
Kuben videregående skole: 1.9 km
Valle Hovin videregående skole: 2.3 km
Barnehager:
Kanonen barnehage (1-6 år): 0.2 km
Sinsen menighetsbarnehage (1-6 år): 0.3 km
Barnehagen Vår Løren (0-6 år): 0.3 km
Informasjon om tilhørende skolekretser er hentet fra Prognosesenteret som dataleverandør og tilhørigheten kan årlig endres av kommunen. Dersom skole- og barnehagetilbud er av betydning for kjøpet, ber vi om at det rettes en særskilt henvendelse til kommunen/bydelsadministrasjonen for oppdatert informasjon.
Beskrivelse av tomt
Eiertomt på 10.989 m² som tilhører sameiet. Felles tomt opparbeidet med blant annet asfalterte internveier, plenarealer, prydbusker, trær og diverse beplantning.
Tomten og alle deler av bebyggelsen som ikke etter oppdelingen omfattes av bruksenheter, er fellesarealer. Den enkelte seksjonseier har eksklusiv bruksrett til balkong/terrasse/markterrasse/uteareal.
Parkering
Boligen har bruksrett til garasjeplass i felles, lukket og videoovervåket garasjeanlegg.
Felleskostnader for garasjeplass er p.t. kr 295,- pr. mnd.
Det er mulighet for etablering av ladepunkt for elbil for egen kostnad. Abonnement til ladeanlegg + strømforbruk kommer i tillegg.
Garasjeplassen kan bare overdras med leiligheten og er ikke fritt omsettelig. Det er ikke tillat å leie ut/fremleie bruksretter til garasjeplasser til andre enn medlemmer i Løren Velforening.
Innendørs gjesteparkering med betalingsautomat i garasjeanlegget.
Vei, vann og avløp
Eiendommen har adkomst via kommunal vei og via privat vei med felles vedlikeholdsansvar for sameiet.
Eiendommen er tilknyttet kommunalt ledningsnett via private stikkledninger. Sameiet er ansvarlig for private stikkledninger til bygningen.
Regulerings-og arealplaner
Eiendommen er regulert til byggeområde for boliger i henhold til reguleringsplan S-4083 datert 26.05.2004 med tilhørende reguleringsbestemmelser V270605 datert 27.06.2005.
Utsnitt av plan med tilhørende bestemmelser kan fås ved henvendelse til megler.
Eiendommen inngår i kommunedelplan KDP-15, kommunedelplan KDP-17, veiledende plan for offentlig rom - Løren/Økern (forslag til politisk behandling) og strategisk plan for Hovinbyen (oppfølging av KDP-15).
Løren er et område i utvikling og byggeaktivitet må påregnes. Pågående prosjekter:
- Det sprenges ny kabeltunell under Løren. Flere har hatt besøk av Multiconsult i sine boliger, som har gjort en kartlegging (filming) av tilstanden. Det er bare berørte boliger som har fått invitasjon til besøk, og det er langt fra alle i vårt sameie. Etter hva vi kjenner til foregår arbeidet omlag 90 meter under sameiet (opplyst av Multiconsult). Ønsker du å følge med på arbeidet, finner du informasjon her: https://www.statnett.no/vare-prosjekter/region-ost/sogn-ulven/nyhetsarkiv/folg-med-pa-status-for-tunnelarbeidene/ fbclid=IwY2xjawI28fNleHRuA2FlbQIxMQABHYA2BRNUWOxxaYzgYBF4HObnbZOwRUAZViqy-V53dNRrWMpCt7mlAKLsMg_aem_zDaI3uYC-6bsTdNaSB0R5w
Saksnr. 201509417 og 202506853, reguleringssak: Lørenvangen 22 - Peter Møllers vei 13: Planforslag om omregulering av tomten fra næring til bolig. Selvaag ønsker å omregulere to eiendommer til boligbebyggelse med åpen kvartalsstruktur i 4–8 etasjer, park, torg, barnehage, fortau og gang- og sykkelvei. Det kan bli opptil 320 boliger. Planforslaget regulerer området fra industri og næring til boligbebyggelse med små næringsarealer, barnehage for 4 avdelinger, park, fortau, gang- og sykkelveier og 3 offentlige torg. Ny bebyggelse innenfor planområdet blir vesentlig høyere enn den eksisterende bebyggelsen. Planforslaget åpner for å bygge ca. 320 nye boliger, med en tomteutnyttelse på TU = 182 %. Den bakre fløyen av den bevaringsverdige Tranfabrikken foreslås revet for å gi plass til ny bebyggelse inne i kvartalet, utearealene for foreslått barnehage blir 19 m2, altså 5 m2 mindre per barn enn føringene i statlige normer, deler av utearealene til nabolagsbarnehagen blir skyggelagt, og renovasjon løses på offentlig grunn. I tillegg rives bebyggelsen i Vekslerveien/ Lørenvangen, som utgjør en vesentlig bygningsmasse. Planen tillater at 9 leiligheter har fasadetiltak for å oppnå stille side, i strid med kommuneplanen. Deler av Tranfabrikken foreslås regulert til bevaring, og 300 m2 av de to nederste etasjene kan brukes til utadrettede funksjoner. Bygningshøydene varierer mellom 4-8 etasjer for boligene og 2 etasjer for barnehagen. Alle takflater får grønne tak i form av takhager eller sedumtak. Alle flater i gårdsrom blir grønne med variert terreng og vegetasjon. På torgene skal det etableres grønne soner med åpen overvannshåndtering og arealer for å plante trær og andre vekster. Grønn mobilitet fremmes ved å legge til rette for mange sykkelparkeringsplasser og gode gangforbindelser til kollektivtilbudet. Gjennom planforslaget sikres universell utforming av byrommene og forbindelsene i planområdet. Videre sikres åpen og lokal overvannshåndtering og det plantes 50 nye trær. Plan- og bygningsetaten anbefaler ikke planforslaget og har utarbeidet et alternativ med lavere utnyttelse og høyder (3-8 et.) i tråd med overordnete føringer som gir ca. 195 boliger, større park som blir sikret opparbeidet før boligene kan tas i bruk, og bevaring og gjenbruk av den gamle Tranfabrikken i sin helhet. Per 11.06.2025 ble detaljregulering egengodkjent av bystyret. I Lørenvangen 22 planlegges det 195 boliger i prosjektet Telekvartalet. Se mer: https://www.selvaagbolig.no/oslo/telekvartalet/
Saksnr. 201909046, reguleringssak: Lørenvangen 25 mfl.: Lørenvangen Utvikling AS foreslår å omregulere Lørenvangen 25 fra industri til boliger, næring og park. Eiendommen Lørenvangen 25 reguleres til bolig med noe næring / utadrettet virksomhet mot Lørenvangen. Det legges til rette for oppføring av to boligblokker med opptil 7800 m2 BRA. Det er planlagt 87 leiligheter pluss ca. 83 m2 fellesrom, og ca. 173 m2 forretninger, næring og/ eller publikumsrettede formål mot Lørenvangen. Bebyggelsen er planlagt med variert utforming og varierte høyder i 5-7 etasjer. Blokken mot Lørenvangen (hus A) trappes ned mot rekkehusbebyggelsen i nord, og den bakenforliggende blokken (hus B) gis også en liten nedtrapping mot nord. Mellom blokkene etableres et uteoppholdsareal som tilfredsstiller både krav til størrelse og solforhold med god margin. Bilparkering og sykkelparkering til beboerne skjer i underetasje med atkomst fra Lørenvangen. I tillegg skal det etableres noe sykkelparkering for besøkende nær innganger og i 1. etasje i hus A. Planforslaget omfatter også Lørenfaret i nord og en del av tilliggende eiendom gnr. 124 bnr. 1 i øst. Arealet i øst reguleres til grøntområde og er tatt med etter anmodning fra PBE for å muliggjøre etablering av pensjonsparken som en del av «den grønne ringen», i henhold til VPOR Løren og Økern. Etter offentlig ettersyn er planforslaget endret ved at høydene i hus A er redusert med én etasje, det samme gjelder for nordre del av hus B. Per 20.11.2024 ble detaljregulering egengodkjent av bystyret.
Økonomi
Økonomi
Boligens kostnader
Fellesutgiftene er kr 6.133,- pr. mnd. og inkluderer: Fjernvarme og varmtvann a-konto, kabel-tv, fibernett, nedbetaling av fellesgjeld, vaktmester, felles bygningsforsikring, kommunale avgifter, drift, vedlikehold, forretningsførsel m.m.
Fellesutgiftene justeres normalt en til to ganger årlig i forhold til sameiets faktiske utgifter og ble sist justert 01.02.2026 med en økning på kr 34,- i kategorien Altibox Flex.
Felleskostnadene fordeles slik:
Altibox Flex kr 403,-
Avdrag lån kr 502,-
Felleskostnader kr 3.634,-
Fjernvarme à konto kr 1.383,-
Renter lån kr 211,-
I tillegg kommer felleskostnader for garasjeplass på kr 295,- pr. mnd.
Fjernvarme blir fakturert à konto sammen med felleskostnadene, og avregnes 1 gang pr år, senest i løpet av 2 kvartal påfølgende år. Avregningen for perioden avregnes eier av seksjonen på det tidspunkt avregningen sendes ut.
Nåværende eier har et strømforbruk som tilsvarer ca. kr 10.000,- pr. år. / 5.555 kwh. pr. år.
Boligen er tilknyttet VikenFiber som leverandør av kabel-tv og fibernett. Sameiet har en fellesavtale Altibox Flex M som gir tre valgmuligheter. Ruter og TV-dekoder er inkludert i avtalen.
Alternativ 1:
Fiberbredbånd 250/250 og Altibox’ nye TV-løsning med 25 poeng til valgfritt innhold, 50t opptak og programarkiv
Alternativ 2:
Fiberbredbånd 100/100 og Altibox’ nye TV-løsning med 100 poeng til valgfritt innhold, 500t opptak og programarkiv
Alternativ 3:
Fiberbredbånd 1000/1000 internett uten TV
Utgiftene er basert på nåværende eiers forbruk. Kjøper må selv tegne innboforsikring.
Formuesverdi
Formuesverdi for 2024 var kr 2.055.604,- ifølge selgers skattemelding. Beløpet forutsetter at eier bor fast i boligen (primærbolig).
Ved eventuell øvrig bruk av eiendommen (f.eks. fritidsbolig, pendlerbolig, utleieobjekt) var formuesverdien for 2024 kr 8.222.414,-.
Fra 2026 har Stortinget vedtatt en oppdatert modell for beregning av formuesverdi for primærbolig, så avvik kan forekomme.
For mer informasjon se skatteetaten.no
Eiendomsskatt
Eiendomsskatten utgjør kr 2.000,- pr år. ifølge selger.
Opplysninger om fellesgjeld
Andel formue er kr 19.420,- pr. 31.12.2025
Andel fellesgjeld er kr 41.121,- pr. 12.03.2026
Total fellesgjeld for sameiet er kr 6.262.677,- pr. 12.03.2026 og lånevilkårene er:
Bank: BOLIGBANKEN ASA
Type lån: Annuitet
Rente: 7,15% p.t.
Lånets løpetid: 11.09.24 - 25.10.34
Antall terminer: 12
Omkostninger
9 400 000,00 Prisantydning
Omkostninger
235 000,00 Dokumentavgift til staten (2,5% av kjøpesum)
9 950,00 Gjensidige Boligkjøperpakke (valgfri)
545,00 Tinglysing panterettsdokument
545,00 Tinglysing skjøte
--------------------------------------------------------
246 040,00 Omkostninger totalt
--------------------------------------------------------
9 646 040,00 Totalpris inkl. omkostninger
--------------------------------------------------------
Dersom sameiet har fellesgjeld, vil leilighetens andel av fellesgjelden komme i tillegg til kjøpesummen. Denne gjelden skal ikke innbetales i oppgjøret, men følger leiligheten.
Totalpris inkl. omkostninger forutsetter kjøp til prisantydning.
Det tas forbehold om endringer i avgifter og gebyrer.
Tilbud om lånefinansiering
Megler formidler gjerne kontakt med rådgiver hos vår samarbeidspartner BN Bank. De har konkurransedyktige betingelser samt rask og løsningsorientert behandling av din lånesøknad. Krogsveen mottar et honorar dersom lån opprettes.
Betalingsbetingelser
Kjøpesum inkludert omkostninger, samt pantedokument tilknyttet eventuelt lån, skal være disponibelt hos megler 2 virkedager før overtagelsen.
Annen viktig informasjon
Annen viktig informasjon
Eier
Per Thomas Fagernes og Mona Næss
Informasjon om sameiet
Eiendommen er seksjonert, og leiligheten er tilknyttet Lørenparken Boligsameie, med sameiebrøk 91/13859.
- Sameiet består av 10 bygninger med til sammen 200 boligseksjoner.
- Forretningsfører er Bori Boligbyggelag.
- Vaktmesteravtale med Bygårdservice AS. Alle henvendelser som omfattes av avtalen skal gå via styret.
- Styrets e-postadresse er styret@lorenparken.no.
- Sameiet har egen hjemmeside: www.lorenparken.no.
- Dugnad må påregnes.
- Husdyr er tillatt, men skal ikke være til sjenanse eller ulempe for andre beboere. Lufting av dyr må gjøres i samsvar med bestemmelsene gitt av Løren velforening.
- Grilling med gass og elektrisk grill på balkonger/terrasser og fellesarealer er tillatt, under forutsetning av at gjeldende sikkerhetsforskrifter følges og det ikke er til sjenanse eller ulempe for andre seksjonseiere.
- Alle seksjonene har pliktig medlemskap i Løren Velforening og alle husstander i sameiet er automatisk medlemmer i velforeningen. Velforeningen jobber for en positiv utvikling av nærmiljøet på Løren, og har også forvaltningsansvar for bl.a. Lørenparken, felles rammeavtale for alle medlemmer med Bygårdsservice og Vikenfiber/Altibox-avtale m.m. Kostnadene til drift og vedlikehold av parken dekkes av samtlige seksjonseiere i de omkringliggende eiendommer, inkludert seksjonene i Lørenparken. Dette betales gjennom felleskostnadene. Seksjonseiere kan lese mer om hva medlemskontingenten dekker, hvilke rammeavtaler og rabattavtaler man kan dra nytte av m.m. på www.lorenvel.no.
Foretatte påkostninger senere år:
2025: Kontroll av ventilasjon (beboere bekostet selv og tiltaket var frivillig. Totalt er 154 leiligheter kontrollert). Utbedring av brudd i varmekablene i øverste del av trappen utendørs ved blokk 5. Arbeid med utskiftning av balkongdører på takterrasser der det er behov. Tilbud av lignende valgfri justering av terrassedør som for boligdør. Rengjøring av trapper og svalganger. Lokale utbedringer i bedene mellom blokkene og beskjæring av alle bed.
2024-2025: Løpende service og mindre reparasjoner av feil på heis. Innhentet og formidlet tilbud for valgfri justering av boligdører, gjennomført service og justering av ytterdører (dette var et frivillig tiltak og bekostet av beboere. Totalt ble 27 dører gjennomgått). Vannlekkasjen fra sameiets eiendom (ute) ned i garasjeanlegget ved bokk 1 ble funnet og utbedret. Det ble også gravd opp mellom 4/5 for å identifisere den andre lekkasjen, men årsaken ble ikke funnet. Styret skal vurdere videre tiltak i dette området.
2024: Nytt ladeanlegg. Sirkulasjonspumpen som forsyner blokk 3, 4 og 5 byttet ut. Flere av nedløpsrennene/drensrør fra tak på svalganger spylt. To vannlekkasjer fra sameiets eiendom ned i garasjeanlegget. Beskjæring/vårstell. Byttet kledning og malt på de gule «ventilasjonshusene» som befinner seg på taket. Nye svakheter på takene reparert. Byttet spilene/lamellene på branntrappene og på øverste svalgang.
2023: Utbedring av håndløperne på svalgangene. Fasadevask. Tiltak rundt varmesentralen. Vedlikehold av alle tak. Reparasjoner av rustskader i heisbrønnen til blokk 4. Varmekablene i dreneringsrenner mellom blokk 2 og 3 ble byttet. Sirkulasjonspumpen for varme til blokk 1 og 2 skiftet ut. Spylt øvre brønnen ved blokk. Legionellaskylling. Beskjæring/vårstell. Kontroll av avløpsrør. Brannvernkontroll.
2022/2023: Ombyggingen av hovedtavlen og installasjon av AMS-målerne i alle boligene. Det er GK Elektro som har oppdraget med å tilrettelegge for installasjon av nye strømmålere. Elvia (OneCo) skal stå for installasjon av selve måleren. Strømregningen vil bestå av to deler. Den ene delen er kostnaden for nettleie fra Elvia (som du ikke kan bytte leverandør på), og den andre delen er selve strømkostnaden. Vær også oppmerksom på at strømstøtten reguleres av nettselskapet (Elvia) og ikke strømselskapet, og det innebærer at strømstøtten trekkes ifra nettleien.
2022: Nytt sikringsskap. Ventilasjonsanlegg renset. Garasjevask.
2021: Fasaderengjøring. Vask og impregnering av skjoldete fasadeplater, samt betongdekket på svalgangene.
2020: Fasaderehabilitering. Utbedring av fjernvarme/forbruksvann. Kartlegging av skjeggkre, omfanget ble avdekket og det ble sanert i de seksjonene hvor dette ble funnet.
2018: Generell fasadevask. Maling av alle vinduer og balkongdører. Maling av gult panel på sydvegger, gavlvegger og tak. Beising av skillevegger på terrasser og balkonger.
2017: Byttet vannmålerne i hver leilighet.
2016: Montert elektronisk oppslagstavler i oppgangene.
2014: Malt oppganger fra underetasje til og med første etasje og muren ved trappene mellom blokkene.
Planlagte påkostninger:
- Heiser: Styret har gjennomgått vedlikeholdsplan fra OTIS hvor de informerer om nødvendig vedlikehold/oppgradering av heisene. Dette inkluderer ny maskin, nye belter (bæremidler) dørdrift heisstol, nye styre skap med kabling, og bytte av trykk-knapper inne/ute. Vedlikeholdet hadde planlagt oppstart i 2026, men kan forskyves til 2027. Dette er en større kostnad på 600- 800TNOK pr heis som må planlegges i tide.
- Balkonger: Etter snart 20 år begynner platene på balkonger å bære preg av slitasje, og noen plater har mindre skader eller sprekker. Platene er gått ut av produksjon, men sameiet har tatt vare på enkelte gamle fasadeplater som eventuelt kan skjæres til hvor bytte er strengt nødvendig.
Det ville være et stort løft for sameiet å få byttet ut alle balkongplater, men samtidig er dette et kostbart prosjekt. Styret vil innhente et estimat på bytte av platene inkl. alternative løsninger for å få et første kostnadsbilde slik at dette kan planlegges i løpet av de kommende årene. Eventuell utskiftning vil fremlegges årsmøtet for beslutning.
Etter e-post fra styret 16.01.2026 opplyses det om at det ikke er planlagt større kostander pr i dag og eiendommen er godt vedlikeholdt, men den nærmer seg 20 år så det vil bli behov for større vedlikehold i årene som kommer.
Vi gjør videre oppmerksom på at det iht. eierseksjonsloven ikke er anledning å erverve mer enn 2 seksjoner i sameiet, her teller også eierskap via. firma, nærstående og familie. Kjøper har risikoen for at overskjøting på denne bakgrunn kan nektes av Statens Kartverk. I så fall vil kjøper uansett være forpliktet til å gjennomføre handelen, og oppgjør til selger vil finne sted tross manglende overskjøting. Konferer med megler for mer informasjon.
Dokumenter for sameiet og kopi av seksjonsbegjæringen kan fås ved henvendelse til megler.
Overtakelse
Etter nærmere avtale.
Boligselgerforsikring
Selger har i forbindelse med salget tegnet boligselgerforsikring levert av Gjensidige.
Boligselgerforsikringen dekker selgers ansvar etter avhendingsloven begrenset oppad til kr 14 millioner. Dersom kjøper oppdager forhold ved eiendommen som hen mener utgjør en mangel ved eiendommen, vil Gjensidige behandle reklamasjonen på vegne av selger. Forsikringsvilkår kan fås ved henvendelse til megler.
Vedlagt salgsoppgaven følger selgers egenerklæringsskjema og tilstandsrapport. Interessenter må sette seg inn i dokumentene før bud inngis.
Boligkjøperforsikring
Innen kontraktsmøtet må kjøper ta stilling til om det ønskes å bestille Boligkjøperpakken gjennom Gjensidige. I denne gunstige pakken er boligen ferdig forsikret og inkluderer rettshjelpsforsikring, også kalt Boligkjøperforsikring. Rettshjelpsforsikring gir trygghet og tilgang på profesjonell juridisk hjelp dersom det oppdages uventede feil eller mangler det første året etter overtagelse. Forsikringsselskapet behandler i så fall ethvert mangelskrav kjøper måtte ha overfor selger.
Boligkjøperpakken inkluderer bygningsforsikring for hus og hytte, innboforsikring, flytteforsikring og dobbel rentedekning - i situasjoner hvor kjøper ikke får solgt nåværende primærbolig.
Kjøper mottar ingen særskilt faktura for Boligkjøperpakken da kostnaden det første året legges til kjøpesummen for boligen. Det gjøres oppmerksom på Krogsveen mottar et honorar for denne formidlingen.
Produktark for Boligkjøperpakken ligger vedlagt i salgsoppgaven.
Dersom ikke boligkjøperpakke ønskes kan kun rettshjelpsforsikring, også kalt boligkjøperforsikring, tegnes særskilt via megler. Rettshjelpsforsikringen varer i 5 år fra overtagelse og leveres gjennom Gjensidige. Ta kontakt med megler for ytterligere informasjon.
Selskap og privatpersoner som driver med kjøp/salg/utvikling som ledd i egen næringsvirksomhet kan ikke tegne boligkjøperpakke eller rettshjelpsforsikring.
Budgivning
Forbrukerinformasjon om budgivning er vedlagt denne salgsoppgaven og er også på vår hjemmeside Krogsveen.no. Alle bud og budforhøyelser må inngis skriftlig. I tillegg må legitimasjon være fremlagt sammen med signatur fra budgiver.
Vi oppfordrer til å gi bud elektronisk via GI BUD-knappen på eiendommens hjemmeside på Krogsveen.no. Da vil samtlige vilkår bli oppfylt.
Eventuelle forhøyelser eller endringer av budet kan bekreftes pr SMS eller på e-post. Vi oppfordrer alltid til å kontakte megler pr. telefon i tillegg da forsinkelser i SMS og e-post kan forekomme.
For at budene skal kunne bli behandlet og videreformidlet skriftlig til alle involverte parter, må alle bud ha en tilstrekkelig lang akseptfrist, jf. eiendomsmeglingsforskriften § 6-3.
Selger må også skriftlig akseptere budet før aksept kan formidles til budgiver. Akseptfrist bør derfor være på minimum 30 minutter, og budforhøyelser må derfor skje i god tid før fristens utløp.
Bud i forbrukerforhold kan uansett ikke settes med kortere frist enn kl. 12.00 første virkedag etter siste annonserte visning. I tillegg kan ikke budet ha forbehold om at det skal holdes hemmelig ovenfor øvrige interessenter. Megler har iht lov om eiendomsmegling ikke anledning til å videreformidle disse budene, og de vil dermed heller ikke bli journalført.
Etter at eiendommen er solgt vil kjøper og selger få tilsendt budjournal. Øvrige budgivere kan få utlevert kopi av budjournalen i anonymisert form.
Hvitvaskingsreglene
I henhold til lov om hvitvasking og terrorfinansiering har megler plikt til å gjennomføre kontrolltiltak overfor kunder, herunder fullmektiger. Dette innebærer bl.a. å bekrefte kunders og reelle rettighetshaveres identitet på bakgrunn av fremvist gyldig legitimasjon eller på annen godkjent måte, samt å innhente opplysninger om kundeforholdets formål og tilsiktede art.
Dersom slike kundetiltak ikke kan gjennomføres, kan megler ikke etablere kundeforholdet eller utføre transaksjonen.
Hvis kjøper ikke bidrar til gjennomføring av kundekontrollen og dette fører til at transaksjonen blir forsinket eller ikke kan gjennomføres, vil dette ansees som mislighold av avtalen og gi selger rettigheter etter avhendingslova kapittel 5. I tilfeller der selger ikke bidrar til gjennomføring av løpende kundekontroll underveis i oppdraget, er det selger som misligholder sine forpliktelser etter avtalen og gi kjøper rettigheter etter avhendingslovens kapittel 4. Partene er selv ansvarlige for eventuelle kostnader og ansvar dette kan medføre. Eiendomsmegleren eller eiendomsmeglingsforetaket kan ikke holdes ansvarlig for de konsekvenser dette vil kunne få for partene eller andre som har interesser i eiendomshandelen.
Kjøper oppfordres til å innbetale kjøpesummen som ikke kommer fra låneinstitusjon i én samlet innbetaling fra egen konto i norsk bank. Megler har plikt til å melde fra til Økokrim om eiendomshandler som fremstår som mistenkelige. Melding sendes Økokrim uten at partene varsles.
Personopplysningsloven
I henhold til personopplysningsloven gjør vi oppmerksom på at interessenter kan bli registrert for videre oppfølging.
Lovanvendelse
Generelle bestemmelser
Salgsoppgaven er basert på de opplysningene selger har gitt til megler, den bygningssakyndiges tilstandsrapport, samt opplysninger innhentet fra kommunen, Kartverket og andre tilgjengelige kilder. Det er viktig at kjøper setter seg grundig inn i alle salgsdokumentene, herunder salgsoppgave, tilstandsrapport og selgers egenerklæring. Kjøper anses kjent med forhold som er tydelig beskrevet i salgsdokumentene, og slike forhold kan ikke påberopes som mangler. Dette gjelder uavhengig av om kjøper har lest dokumentene. Alle interessenter oppfordres til å undersøke eiendommen nøye, gjerne sammen med fagkyndig før bud inngis. Kjøper som velger å kjøpe usett kan ikke gjøre gjeldende som mangel noe han burde blitt kjent med ved undersøkelsen.
Dersom det er behov for avklaringer, anbefaler vi at interessenter rådfører seg med eiendomsmegler eller egne rådgivere før det legges inn bud.
En bolig som har blitt brukt i en viss tid, har vanligvis blitt utsatt for slitasje og skader kan ha oppstått. Slik bruksslitasje må kjøper regne med, og det kan avdekkes enkelte forhold etter overtakelse som nødvendiggjør utbedringer. Normal slitasje og skader som nødvendiggjør utbedring, er innenfor hva kjøper må forvente og vil ikke utgjøre en mangel.
Kjøper og selgers rettigheter og plikter reguleres av avtalen mellom partene, samt informasjonen som har vært tilgjengelig for kjøperen i forbindelse med handelen. Avtalen utfylles av avhendingsloven, og det gjelder ulike avtalevilkår avhengig av om kjøper er forbrukerkjøper eller ikke. Dette er nærmere beskrevet nedenfor.
På grunn av ulike avtalevilkår kan selger vurdere bud fra en som ikke er forbruker, ulikt fra en forbrukers bud. Dersom kjøper ikke er forbruker, er selger sitt mulige mangelsansvar begrenset fordi eiendommen selges "som den er". Selger kan ikke ta «som den er»- forbehold overfor en forbrukerkjøper. Selv et lavere bud fra en som ikke er forbruker kan foretrekkes fordi begrensningen i mulig mangelsansvar kan ha egenverdi for selger. Selger står fritt til å forkaste eller akseptere ethvert bud, og er for eksempel ikke forpliktet til å akseptere høyeste bud.
Budgiver skal i budskjema avgi egenerklæring om budgiver er forbruker eller næringsdrivende/ person som hovedsakelig handler som ledd i næringsvirksomhet. Budgivere får informasjon dersom andre bud er inngitt av en som ikke er forbruker.
Forbrukerkjøp - definisjon
Med forbrukerkjøp menes kjøp av eiendom når kjøperen er en fysisk person som ikke hovedsakelig handler som ledd i næringsvirksomhet.
Forbruker – avtalevilkår
Eiendommen har en mangel dersom den ikke er i samsvar med kravene som følger av avtalen, eller det foreligger brudd på bestemmelsene i avhendingsloven §§ 3-2 til 3-8. Hvis eiendommen ikke er i samsvar med det kjøperen må kunne forvente ut ifra alder, type og synlig tilstand, kan det være grunnlag for mangelskrav. Det samme gjelder hvis det er holdt tilbake eller gitt uriktige opplysninger om eiendommen. Dette gjelder likevel bare dersom man kan gå ut ifra at det virket inn på avtalen at opplysningen ikke ble gitt eller at mangelskravet ikke blir rettet i tide på en tydelig måte.
Boligen kan ha en mangel etter avhendingsloven § 3-3 andre ledd, dersom det er avvik mellom opplyst og faktisk innvendig areal, forutsatt at avviket er på 2% eller mer og minimum 1 kvm.
Ved beregning av et eventuelt prisavslag eller erstatning må kjøper selv dekke tap/kostnader opptil et beløp på kr 10 000 (egenandel).
Ikke-forbruker (næringsdrivende) – definisjon
Hvis kjøper er en juridisk person, eller en fysisk person som hovedsakelig handler som ledd i næringsvirksomhet, vil kjøpet ikke anses som et forbrukerkjøp.
Ikke-forbruker – avtalevilkår
Eiendommen har en mangel dersom den ikke er i samsvar med kravene som følger av avtalen.
Eiendommen selges «som den er», og selgers ansvar utover det konkret avtalte er da begrenset etter avhendingsloven § 3-9, første ledd andre setning.
Avhendingsloven § 3-3 andre ledd fravikes, og hvorvidt boligens arealsvikt utgjør en mangel vurderes etter avhendingsloven § 3-8.
Informasjon om kjøpers undersøkelsesplikt, herunder oppfordringen om å undersøke eiendommen nøye, gjelder også for kjøpere som ikke anses som forbrukere.
Det forutsettes at hjemmel overføres til kjøper. Hvis kjøper ikke ønsker hjemmelsoverføring av eiendommen, må det tas forbehold om dette i budet.
Meglers vederlag
Meglers vederlag betales av selger og er avtalt til:
Vederlag: 0,80 % av salgssummen inkl. eventuell fellesgjeld. Minimumsprovisjon er kr 60 000,00
Vederlag:
Kontroll av hjemmel og heftelser kr 4.500,-
Markedsføringspakke kr 30.900,-
Oppgjør kr 8.900,-
Tilrettelegging kr 19.900,-
Visning / Overtagelse kr 3.990,-
Utlegg:
Eierskiftegebyr forretningsfører - BORI BBL kr 6.725,-
Innhenting av informasjon forretningsfører (liten pakke) - BORI BBL. kr 2.340,-
Tinglysing sikring kr 545,-
Andre utgifter:
Boligens visittkort kr 600,-
Foto kr 5.500,-
Tilstandsrapport inkl. målsatt plantegning fra takstmann kr 9.950,-
Vi er opptatt av verdiskapning, og har knyttet til oss samarbeidspartnere som skal sikre våre kunder de beste produkter og tjenester;
• I forbindelse med forberedelse av salget, innhenter vi informasjon om eiendommen hovedsakelig fra vår samarbeidspartner Ambita.
• Gjensidige leverer boligselgerforsikring og tilbyr bygningsforsikring
• Boligkjøperforsikring leveres av Hiscox og med Sedgwick som skadebehandler, og er formidlet gjennom Gjensidige.
• BN bank tilbyr finansieringsløsninger
• Vår avdeling Krogsveen Pluss tilbyr flyttetjenester som utvask, visningsvask, lager, tømming og transport av flyttelass, i tillegg til å formidle kontakt med Flip for overflateoppussing.
• I forbindelse med overtagelse av eiendommen tilbyr Overo avtale om strøm, alarm og bredbånd.
• Krogsveen er, sammen med øvrige bransjeaktører, medeier i Bomega AS som tilbyr den digitale annonseringsplattformen Hjem.
Opplysninger om oppdraget
Oppdragsnummer 54-0026/26
Eiendomsmegler Krogsveen AS, avd. Løren
Lørenveien 50, 0585, OSLO
950 007 613
Oppdragets KR-kode KR54.2626
Dato
Sist oppdatert: 12. april 2026 kl. 12:38
Dokumenter
Dokumenter
PDF – 971 KB
PDF – 3 MB
PDF – 166 KB
PDF – 312 KB
PDF – 29 KB
PDF – 127 KB
PDF – 392 KB
Visning
Unngå doble boligrenter
Vi tilbyr gunstig forsikring.
Vurderer du utleie?
Få et tilbud fra Utleie KrogsveenHva koster lånet?
Sjekk estimert lånekostnadVil du varsles om lignende boliger?
Ved å lagre ditt boligsøk hos oss får du beskjed når vi har en bolig som ligner denne, før den legges ut på markedet!


