Lekeplassveien 8
15 000 000 kr
365 m²
4 soverom
Solgt

Presenteres av
Jan Robert OttesenHAGEIDYLL PÅ RISLØKKA!
Hel tomannsbolig med en av Risløkkas største hager. Grenser til stort parkområde. Oppussingsobjekt med unik beliggenhet!
Prisantydning
15 000 000 krOmkostninger
395 990 krTotalpris
15 395 990 kr
Pris
Bruksareal
414 m²BRA-I (internt bruksareal)
365 m²BRA-E (eksternt bruksareal)
49 m²TBA (terrasse-balkongareal)
60 m²
Areal
Byggeår
1954Soverom
4 soveromBad
4 badTomteareal
1 499 m² (eiet)Type
Hel 2-mannsboligEierform
EietFasiliteter
Garasje/P-plass og Balkong/TerrasseEnergimerke
Oransje F
Nøkkelinfo
Unngå doble boligrenter
Vi tilbyr gunstig forsikring.
Vurderer du utleie?
Få et tilbud fra Utleie KrogsveenHva koster lånet?
Sjekk estimert lånekostnadBeskrivelse
Kort om eiendommen
Drømmer du om å skape din egen boligdrøm, med tilhørende drømmehage? Her kan du gjøre akkurat det!
Boligen går over tre etasjer, har behov for oppussing og er fullspekket av muligheter!
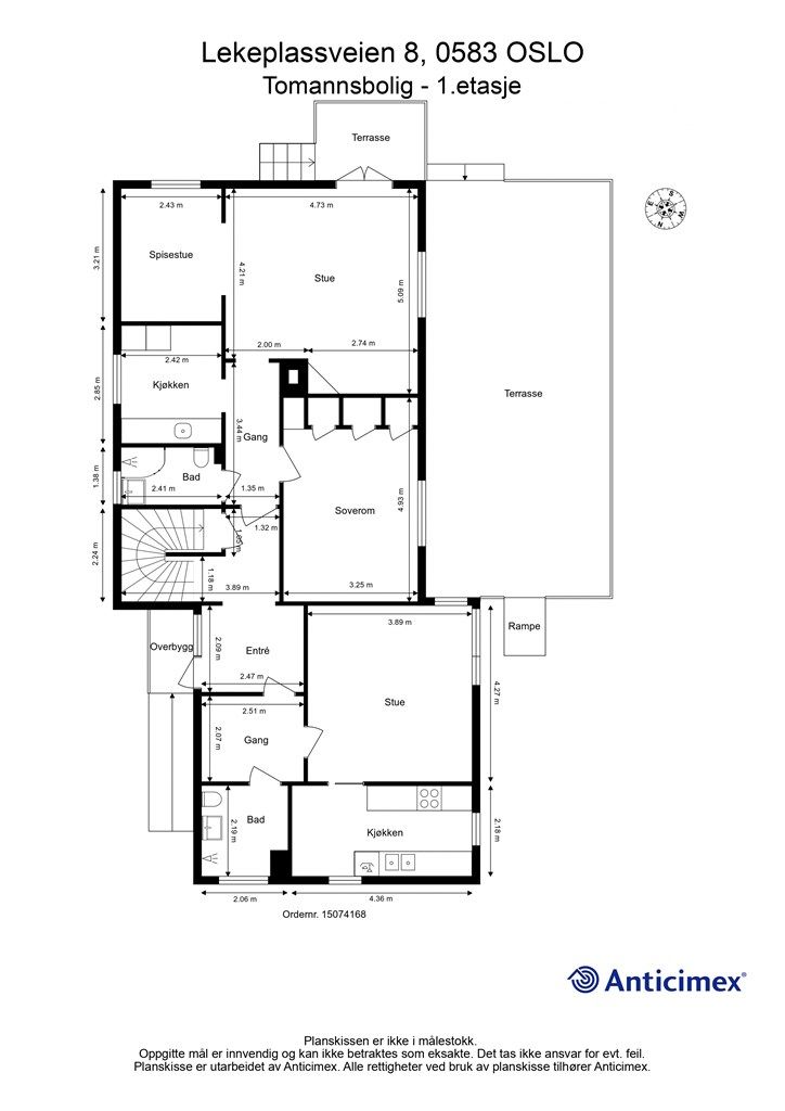
Romslig tomannsbolig fra 1954 og med tilbygg fra 1975 som går over tre plan med 4 soverom, 3 stuer, 3 kjøkken, 4 baderom, samt kjeller med vaskerom, 6 boder og råkjeller.
Godt skjermet for trafikk og trafikkstøy oppleves boligen som usjenert - beliggende i et svært populært, skjermet og idyllisk villaområde med kort vei til off. kommunikasjon, skole- og barnehager samt ulike servicetilbud.
Oppussingsobjekt med enormt potensiale
Eiertomt på hele 1 499 kvm som grenser mot park og byr på mye boltreplass
Lukket garasje med med mulighet for elbilalder
Grenser mot friområde/park
Område
Legg til steder som er viktige for deg
På flyttefot? Tenk kjøp og salg samtidig.
Få din egen rådgiver gjennom hele kjøps- og salgsprosessen. Det starter med en verdivurdering.
Unngå doble boligrenter
Vi tilbyr gunstig forsikring.
Vurderer du utleie?
Få et tilbud fra Utleie KrogsveenHva koster lånet?
Sjekk estimert lånekostnadVil du varsles om lignende boliger?
Ved å lagre ditt boligsøk hos oss får du beskjed når vi har en bolig som ligner denne, før den legges ut på markedet!
På flyttefot? Slik gjør vi det enklere for deg
Skreddersydd flyttepakke
Vi fikser håndverkere, vask, pakking, lagring og transport, og legger ut for utgiftene underveis.
Hjelp med både kjøp og salg
Hos oss har du din egen rådgiver gjennom hele kjøps- og salgsprosessen.
Hjelp til finansiering
Vårt samarbeid med BN Bank sikrer deg rask og løsningsorientert hjelp, til konkurransedyktige betingelser.

