Trondheimsvegen - Kløfta 96
6 690 000 kr
124 m²
4 soverom
Solgt

Kløfta
Enebolig med stor tomt på ca. 1192 kvm. i hjertet av Kløfta | Utleiepotensial | Kort vei til mye | Dobbeltgarasje |
Prisantydning
6 690 000 krOmkostninger
188 240 krTotalpris
6 878 240 kr
Pris
Bruksareal
205 m²BRA-I (internt bruksareal)
124 m²BRA-E (eksternt bruksareal)
81 m²TBA (terrasse-balkongareal)
28 m²
Areal
Etasje
2Byggeår
1913Soverom
4 soveromBad
2 badTomteareal
1 193 m² (eiet)Type
Enebolig med utleiedelEierform
EietFasiliteter
Garasje/P-plass og Balkong/TerrasseEnergimerke
Rød G
Nøkkelinfo
Unngå doble boligrenter
Vi tilbyr gunstig forsikring.
Vurderer du utleie?
Få et tilbud fra Utleie KrogsveenHva koster lånet?
Sjekk estimert lånekostnadBeskrivelse
Kort om eiendommen
Velkommen til Trondheimsvegen 96 - enebolig i hjertet av Kløfta.
Enebolig over to plan med gjennomgående normalt god standard og med stort potensial. Boligen er delvis pusset opp i senere tid med blant annet to nye bad, kjøkken, elektrisk arbeid, drenering, asfaltering og opparbeidet uteområdet. Boligen har en svært sentral beliggenhet, perfekt for deg som ønsker å bo midt i sentrum med kort vei til det meste eller et godt utleieobjekt!
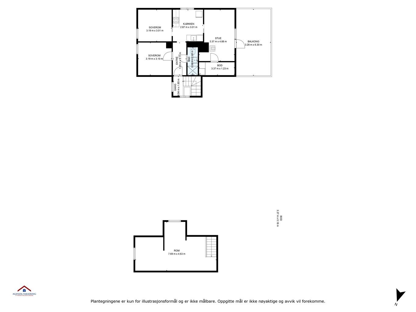
Boligen går over to plan, og begge etasjene kan leies ut separat, og har følgende rominndeling:
- 1.etasje: Entré, kjøkken, stue, bad, gang, og to soverom.
- 2. etasje: Gang, kjøkken, stue, bad og to soverom.
Godt med parkering på asfaltert gårdsplass og i dobbeltgarasje. Garasjen er innredet med kjøkken og bad, ikke godkjent for varig oppphold.
Område
Legg til steder som er viktige for deg
På flyttefot? Tenk kjøp og salg samtidig.
Få din egen rådgiver gjennom hele kjøps- og salgsprosessen. Det starter med en verdivurdering.
Unngå doble boligrenter
Vi tilbyr gunstig forsikring.
Vurderer du utleie?
Få et tilbud fra Utleie KrogsveenHva koster lånet?
Sjekk estimert lånekostnadVil du varsles om lignende boliger?
Ved å lagre ditt boligsøk hos oss får du beskjed når vi har en bolig som ligner denne, før den legges ut på markedet!

