Arøy 9 og 10
6 500 000 kr
130 m²
5 soverom
Komplett salgsoppgave
Kragerø - Arøy
Tidløs idyll bestående av to hytter, flere uthus, egen strandparsell med sjøbod og brygge.
Prisantydning
6 500 000 krOmkostninger
183 490 krTotalpris
6 683 490 kr
Pris
Bruksareal
161 m²BRA-I (internt bruksareal)
130 m²BRA-E (eksternt bruksareal)
31 m²TBA (terrasse-balkongareal)
116 m²
Areal
Byggeår
1984Soverom
5 soveromTomteareal
6 881 m² (eiet)Type
Fritidseiendom ved sjøenEierform
EietEnergimerke
Rød G
Nøkkelinfo
Vurderer du utleie?
Få et tilbud fra Utleie KrogsveenHva koster lånet?
Sjekk estimert lånekostnadBeskrivelse
Kort om eiendommen
En solid brygge og en gammel sjøbod møter deg når du kommer i land på Arøy. En koselig sti fører opp til eiendommene med hovedhytta fra 1984, som og er bygget på den gamle grunnmuren til huset som før hadde stått der i mange år. I gamle dager var dette et småbruk omsluttet av vakker natur og en åkerlapp. Omgivelsene og hovedhytta ser ut som det har stått der i en årrekke og har en sjarmerende og landlig stil. Ovenfor hytta ligger en egen hytte, som ble bygget i 1989 i en mer moderne stil. Herfra har du fin utsikt utover sjøen. Begge hyttene ligger solrikt og usjenert til. På Arøy er det fine turstier og i Arøybukta er det pent og idyllisk. Skjærgården i området er variert og vakker og det er kort båttur til både Valle og Kragerø.
Innhold og byggemåte
Innhold og byggemåte
Eiendommen
Arøy 9 og 10, 3783 KRAGERØ SKJÆRGÅRD
Kommunenummer 4014, gårdsnummer 27, bruksnummer 73, ideell andel 1/1
Kommunenummer 4014, gårdsnummer 27, bruksnummer 76, ideell andel 1/1
Kommunenummer 4014, gårdsnummer 27, bruksnummer 92, ideell andel 1/1
Kommunenummer 4014, gårdsnummer 27, bruksnummer 115, ideell andel 1/1
Kommunenummer 4014, gårdsnummer 27, bruksnummer 86, ideell andel 1/1
Innhold
Totalt bruksareal BRA: 161 kvm
BRA-i:
Hytte Arøy 9:
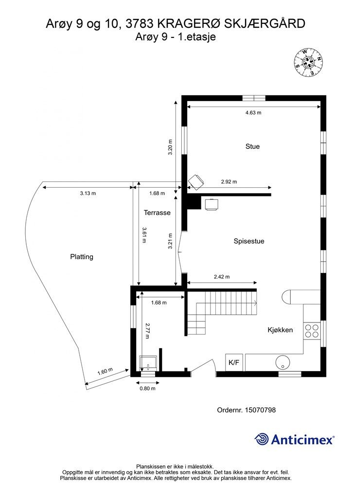
1. etasje 48 kvm: Kjøkken, stue og spisestue.
2. etasje 28 kvm: Loftstue og to soverom.
Hytte - Arøy 10:
1. etasje 54 kvm: Kjøkken, stue og tre soverom.
BRA-e:
6 kvm: Bod og utedo
2 kvm: Vedbod
2 kvm: Utedo
9 kvm: Uthus med to boder
Naust:
11 kvm: Bod
1 kvm: Utedo
Terrasseareal:
5 kvm: Platting ved bod/utedo
11 kvm: Inngangsparti og terrasse ved Arøy 10.
24 kvm: Terrasse/platting ved Arøy 9.
76 kvm - To brygger
Arøy 9:
2. etasje har et totalt gulvareal (GUA) på 43 kvm., men grunnet skråtak/lav takhøyde er kun 28 kvm av arealet måleverdig som bruksareal. De delene
av arealene som har lav himlingshøyde (ALH) utgjør 15 kvm.
Arøy 10:
Arealet på hemsen måles til 22 kvm. (ALH), men grunnet lav takhøyde er ingen deler av arealet måleverdig som bruksareal.
Vedbod/utedo måles til 3 kvm. (ALH), men grunnet lav takhøyde er ingen deler av arealet måleverdig som bruksareal.
Brygger og enkelte terrasser grenser til fjell og er derfor skjønnsmessig oppmålt. Avvik kan forekomme.
Vedlagte plantegninger er ikke målbare. De oppgitte arealer er hentet fra rapport med befaringsdato 08.05.2025 utført av Anticimex AS Sandefjord. Arealene er beregnet og rom er definert etter dagens faktiske bruk, uavhengig av hva som er godkjent av bygningsmyndighetene.
Se mer om dette i punkt om ferdigattest.
Byggemåte
Selger har fått utarbeidet en tilstandsrapport, dvs. en teknisk gjennomgang av boligen hvor eventuelle avvik, risiko for kjøper og prisoverslag for hva som bør gjøres av oppgradering, er skissert. Se særskilt TGIU (tilstandsgrad ikke undersøkt), samt TG2 og TG3 som viser hva som er boligens normale slitasje, alder og type, hva som er avvik fra dette og hva som bør/må utbedres. Rapporten og selgers egenerklæring er en del av salgsoppgaven og må leses nøye før bud inngis. Kjøper overtar ansvaret for de opplysninger som fremkommer av salgsdokumentasjonen, og kan ikke gjøre gjeldende som mangel noe som burde vært kjent eller som ikke kan anses å ha betydning for avtalen.
Arøy 9 er iht. tilstandsrapporten oppført på grunnmur i betong- og naturstein, med bærende bjelkelag i tre. Yttervegger, etasjeskiller og tak i trekonstruksjoner. Fasader
med stående trekledning. Saltak tekket med betongtakstein. Vinduer av ulike alder og type. Det er kjøpt inn en del visner som kan medfølge i handelen. Disse er plassert i stua.
Arøy 10 er iht. tilstandsrapporten oppført på søylefundamenter i lettklinkerblokker, med bærende bjelkelag i tre. Yttervegger, etasjeskiller og tak i trekonstruksjoner.
Fasader med stående profilert trekledning. Saltak tekket med takshingel. Vinduer med enkelt glass og på vegg ut mot terrassen er det byttet til vinduer og dør med to-lags isolerglass.
Les for øvrig mer om byggemåte og den tekniske tilstanden i rapporten.
Det gjøres spesielt oppmerksom på:
Himling i stue på Arøy 9 har fuktskade ved skorstein og har fått TG3. Det antas at det er bakenforliggende skader. Dette bør undersøkes videre og utbedres.
Ellers er det stort sett forhold med TG2 på grunn av alder, etterslep på vedlikehold og slitasje.
-Kjøkkeninnredning i begge hytter bør påregnes utskiftet/oppgradert.
-Bedre ventilasjon bør etableres i begge hytter.
-Skade i himling på hemsen på Arøy 10.
-Det er observert tegn til gnagere på hemsen på Arøy 10.
-Det er målt fukt i bjelkelag i krypkjeller på Arøy 9.
-Fuktmerker på skorstein i Arøy 9.
-Skjevhet er registrert i etasjeskiller på Arøy 9.
-Felles elektrisk anlegg for Arøy 9 og Arøy 10. Sikringsskap er på soverom i Arøy 9 med egne kurser på kjøkkenet i Arøy 10.
-Det er fuktmerker påvist i takvindu på Arøy 9.
-Enkelte steiner i grunnmur på Arøy 9 har glidd ut.
-Vannledninger fra anslagsvis 1998 fra privat borehull. Det er ikke lagt frem dokumentasjon på vannkvalitet.
-Det anbefales utbedringer på alle de frittstående bodene/utedoer.
-Det anbefales også utbedringer på naust.
-2. etasje på Arøy 9 har ikke tilstrekkelige rømningsveier ved brann, det samme gjelder fra hems på Arøy 10.
TGIU:
-Takkonstruksjoner, takgjennomføringer og skorstein over tak er ikke undersøkt. Det samme gjelder fundamenter på plattinger/terrasser. Dette gjelder begge hyttene.
Se supplerende tekst i tilstandsrapporten om det ovennevnte, samt alle andre forhold. Det oppfordres til å lese tilstandsrapporten nøye. Kjøper overtar ansvar og risiko for dette.
Standard
Bebyggelsen har enkel standard. Hovedhuset (Arøy 9) har belegg på gulv i hovedetasjen, panelte vegger og himlinger og en enkel L formet kjøkkeninnredning med god arbeidsbenk. I annen etasje er det tregulv på to soverom, med gang mellom der du kommer opp. Hytta på oversiden blir kalt for "dukkestua" (Arøy10) og har gjennomført materialbruk, tregulv og panel på vegger og i himlingene. Hytta har god planløsning med stue og kjøkken i åpen løsning, 3 soverom, hvorav to med plassbygde køyer og et med plass til dobbeltseng. I tillegg har hytta hems og utgang til terrasse fra stua.
Løsøre og tilbehør
Vi viser til liste fra Norges Eiendomsmeglerforbund som gjelder fra 01.01.2020 angående løsøre og tilbehør.
Oppvarming
I Arøy 9 er det vedovn og peis i stua og i Arøy 10 er det en moderne peisovn. Ellers elektrisk oppvarming. Arøy 10 har ikke eget strømabonnement og det er ført ledning fra Arøy 9. Dersom beboelsesrom ikke har vegg- eller fastmonterte varmekilder ved visning, følger dette heller ikke med.
Ferdigattest/brukstillatelse
Eiendommen har vært brukt til opphold/bolig siden før 1950 tallet. Fritidsboligene ble bygget i 1984/89.
Kommunen opplyser at det ikke var krav til ferdigattest eller midlertidig brukstillatelse på den tiden eiendommen ble oppført.
Et tilbygg som ikke vises på originaltegningene til Arøy 9, er sendt inn og stemplet godkjent av kommunen i 1995.
Det finnes ikke dokumentasjon på naust, boder eller brygge.
Kjøper overtar alt ansvar, kostnad og risiko for dette videre.
Det gjøres oppmerksom på at det ikke lenger utstedes ferdigattest på tiltak det er søkt om før 1998 jf. plan- og bygningsloven § 21-10. Kommunen vil ikke kreve ferdigattest for disse tiltakene og vil avvise eventuelle søknader. Bestemmelsen innebærer ikke at tiltak med manglende søknad blir lovlige, men at man ikke trenger å avslutte gamle byggesaker. Normalt sett kreves ferdigattest for alle søknadspliktige tiltak som gjøres etter plan- og bygningsloven.
Tinglyste heftelser og rettigheter
Eiendommen overdras fri for pengeheftelser.
Det er tinglyst følgende servitutter på eiendommene.
Gnr. 27, bnr. 115:
Dagboknr. 967, tinglyst 11.04.1991, jordskiftesak - grensegang for gnr. 27, bnr. 1
Gnr. 272, bnr. 86:
Dagboknr. 694475, tinglyst 10.06.2021, jordskiftesak -bnr. 143 har rett til å gå over strandparsellen med bnr. 86.
Eiendommen har følgende rettigheter:
Gnr. 27, bnr. 73:
Dagboknr 18-2, tinglyst 03.01.1957, type rettighet: Bestemmelse om veg/vannrett. Rettigheten hefter i gnr. 27, bnr. 40. Rett til brønn og vei ned til sjøen over bnr. 40.
Gnr. 27, bnr. 92:
Dagboknr. 00591, tinglyst 27.02.1984, type rettighet: Disp til å sette opp bryggerhus inntil tomtegrense på bnr. 40.
Servituttene vil følge eiendommen. Kjøpers bank vil få prioritet etter ovennevnte heftelser og servitutter.
Diverse
Eiendommen selges som et tvangssalg og i henhold til Lov om tvangsfullbyrdelse og ikke etter avhendingslova. Dette innebærer vesentlig avvik fra et normalt salg ved at kjøper har en større risiko for eiendommens tekniske tilstand, og kjøper må være innforstått med at det kan være svært vanskelig å nå fram med en mangels klage etter kjøp av tvangssalgsbolig. Samtidig avviker tidsfrister for bud og rutiner for oppgjør fra et normalt salg.
Det vises for øvrig til "Orientering til kjøpere om tvangssalg ved medhjelper" som er vedlagt salgsoppgaven. Ta kontakt med megler dersom noe er uklart.
Beliggenhet og tomteforhold
Beliggenhet og tomteforhold
Beliggenhet
Eiendommen ligger idyllisk til i en fredlig bukt. Med en liten trehusklynge av gamle fiskerboliger og spredt hyttebebyggelse. Nede ved sjøen er det fine sandstrender, brygger og sjarmende rødmalte naust. Det er fine turområder på øya med flere stier. Helt frem til 60 tallet var det tollstasjon ytterst på Arøy og på toppen av øya står fremdeles hytta hvor tollerne speidet utover havet. Hit går det sti opp og utsikten herfra er fantastisk. Skjærgården i området er variert og vakker. Det er kort båttur både til Valle og Kragerø eller til kjente øyer som Jomfruland eller Skåtøy, Arøy tilhørte Skåtøy kommune før kommunesammenslåingen.
Adkomst
Med båt fra Valle, Kragerø eller andre fastlandsforbindelser i området. Det er også gode taxibåtforbindelser i området.
Beskrivelse av tomt
Eiet tomt på totalt 6881 kvm. bestående av 5 parseller. Strandparsellen med brygge, sjøbod og en gammel utedo. En ubebygd tomt med gresslette og naturtomt, samt en mindre parsell med et gammelt uthus. Til hovedhuset er det en tomt som fra gammelt av er opparbeidet med frukttrær, gressplen og ellers en del naturtomt. Ovenfor denne ligger Arøy 10, som har vært benyttet som gjestehytte. Denne har naturtomt og fin sjøutsikt.
Vei, vann og avløp
Eiendommen har adkomst via sjøveien med egen båt, evt. taxibåt fra Valle eller Kragerø.
Eiendommen er tilknyttet sommervann fra felles privat borehull. Vannet er lagt inn i Arøy 9, dette er ikke søkt om og det er avløp ut i grunnen.
Avtale om borehull ble inngått skriftlig 16.06.2000, med tre hyttenaboer og inneholder bestemmelser om bruk, dette for å sikre at alle har vann. Naust og Arøy 10 har ikke vann, men det er to gamle brønner på eiendommen. Det er ikke tatt vannprøver av vann fra borehull eller brønn. Det tas derfor forbehold om vannkvalitet og brønnens tilstand.
Eiendommen har utedo /biologisk toalett med ukjent funksjon.
Regulerings-og arealplaner
Eiendommen ligger i et uregulert område, men er i kommuneplan datert 12.02.2019, avsatt til: Spredt boligbebyggelse i LNF område. For fritidsboliger vil dette bety det samme som at den ligger i LNF-område. Deler av bruksnr. 115 ligger delvis i LNF og delvis i spredt boligbebyggelse.
Utsnitt av plan med tilhørende bestemmelser kan fås ved henvendelse til megler.
Økonomi
Økonomi
Kommunale utgifter
Kommunale avgifter er kr 23 701,- for inneværende år for begge hytter. I dette inngår gebyr for fritidsrenovasjon (avtale med Bamble kommune), eiendomsskatt og feiing/tilsyn.
Strøm til felles vannpumpe utgjør kr. 300,- pr. år.
Eier har ikke gitt megler opplysninger om øvrige løpende kostnader, og megler har derfor ikke kjennskap til hvor store kostnader dagens eier har til strømforbruk, forsikring, tv, internett m.v.
Formuesverdi
Formuesverdi for Arøy 10 var i 2023 kr 2 516 250,- ifølge skatteetaten. Det ble ikke funnet formuesverdi på Arøy 9 i skatteetatens register.
Omkostninger
6 500 000,00 Prisantydning
Omkostninger
162 500,00 Dokumentavgift til staten (2,5% av kjøpesum)
545,00 Tinglysing panterettsdokument
545,00 Tinglysing skjøte
19 900,00 Tryg Boligkjøperpakke (valgfri)
--------------------------------------------------------
183 490,00 Omkostninger totalt
--------------------------------------------------------
6 683 490,00 Totalpris inkl. omkostninger
--------------------------------------------------------
Tilbud om lånefinansiering
Megler formidler gjerne kontakt med rådgiver hos vår samarbeidspartner BN Bank. De har konkurransedyktige betingelser samt rask og løsningsorientert behandling av din lånesøknad. Krogsveen mottar et honorar for denne formidlingen.
Betalingsbetingelser
Kjøpesum inkludert omkostninger, samt pantedokument tilknyttet eventuelt lån, skal være disponibelt hos megler 2 virkedager før overtagelsen.
Annen viktig informasjon
Annen viktig informasjon
Selger
Nedre Telemark Tingrett, Jorunn Blackmore og Ragnhild Vik
Konsesjon
Eiendommen er ikke konsesjonspliktig, men det er boplikt i Kragerø kommune. For at eiendommen skal kunne overskjøtes må kjøper signere på egenerklæring om konsesjonsfrihet om at boplikten ikke gjelder for denne eiendommen.
Overtakelse
Etter nærmere avtale.
Boligselgerforsikring
Det kan ikke tegnes boligselgerforsikring ved tvangssalg da kontraktspart er Tingretten og salget skjer etter reglene i tvangsfullbyrdelsesloven. Interessenter oppfordres til å sette seg inn i regelverket og lese salgsdokumentasjonen nøye før bud inngis. Det gjøres oppmerksom på at kjøpers muligheter for reklamasjon er redusert ved kjøp av bolig etter tvangsfullbyrdelsesloven.
Boligkjøperforsikring
Det gjøres oppmerksom på at det ikke er mulig å tegne Boligkjøperforsikring i forbindelsen med tvangssalg.
Budgivning
Det gjelder egne budregler for tvangssalg, og disse er beskrevet i «Orientering til kjøpere av tvangssalg». Budgivere må sette seg inn i orienteringen før man inngir bud.
Alle bud og budforhøyelser må inngis skriftlig. I tillegg må budet være signert og legitimasjon må være fremlagt. På grunn av de spesielle reglene for tvangssalg er det dessverre ikke mulig å inngi bud elektronisk via Krogsveen.no. Eventuelle forhøyelser eller endringer på budet kan skje pr sms eller på e-post.
Kjøper vil som vanlig få tilsendt budjournal etter at eiendommen er solgt. Budgiver kan også få utlevert en kopi av budjournalen i anonymisert form.
Hvitvaskingsreglene
I henhold til lov om hvitvasking og terrorfinansiering har megler plikt til å gjennomføre kontrolltiltak overfor kunder, herunder fullmektiger. Dette innebærer bl.a. å bekrefte kunders og reelle rettighetshaveres identitet på bakgrunn av fremvist gyldig legitimasjon eller på annen godkjent måte, samt å innhente opplysninger om kundeforholdets formål og tilsiktede art.
Dersom slike kundetiltak ikke kan gjennomføres, kan megler ikke etablere kundeforholdet eller utføre transaksjonen.
Hvis kjøper ikke bidrar til gjennomføring av kundekontrollen og dette fører til at transaksjonen blir forsinket eller ikke kan gjennomføres, vil dette ansees som mislighold av avtalen og gi selger rettigheter etter avhendingslova kapittel 5. I tilfeller der selger ikke bidrar til gjennomføring av løpende kundekontroll underveis i oppdraget, er det selger som misligholder sine forpliktelser etter avtalen og gi kjøper rettigheter etter avhendingslovens kapittel 4. Partene er selv ansvarlige for eventuelle kostnader og ansvar dette kan medføre. Eiendomsmegleren eller eiendomsmeglingsforetaket kan ikke holdes ansvarlig for de konsekvenser dette vil kunne få for partene eller andre som har interesser i eiendomshandelen.
Kjøper oppfordres til å innbetale kjøpesummen som ikke kommer fra låneinstitusjon i én samlet innbetaling fra egen konto i norsk bank. Megler har plikt til å melde fra til Økokrim om eiendomshandler som fremstår som mistenkelige. Melding sendes Økokrim uten at partene varsles.
Personopplysningsloven
I henhold til personopplysningsloven gjør vi oppmerksom på at interessenter kan bli registrert for videre oppfølging.
Lovanvendelse
Salget av denne eiendommen er et tvangssalg gjennom medhjelper, og selges etter Tvangsfullbyrdelsesloven kapittel 11.
Dette innebærer at kjøper har begrensede muligheter til å fremsette eventuelle mangelskrav.
Mangel kan foreligge hvis eiendommen ikke svarer til gitte opplysninger om vesentlige forhold, eller det er forsømt å gi opplysninger om vesentlige forhold som medhjelper måtte kjenne til, eller den er i vesentlig dårligere stand enn kjøperen hadde grunn til å regne med. Manglende/feil opplysninger må ha innvirket på kjøpet. Det vises til tvangsfullbyrdelseslovens §11-39 for nærmere informasjon og alle vilkår. Dersom eiendommen har mangler, kan det kreves prisavslag, men kjøpet kan ikke heves. Det kan også forekomme at boligen overleveres uten normal rydding og rengjøring, samt at nøkkelsett ikke er komplett. Omkostninger må i så tilfeller dekkes av kjøper.
Meglers vederlag
Meglers vederlag betales av oppdragsgiver og er avhengig av kjøpesummens størrelse, og beregnes i henhold til satser i Forskrift om tvangssalg ved medhjelper, kap. 3.
I tillegg mottar megler oppgjørshonorar kr 6.385,- samt dekning av utlegg.
Opplysninger om oppdraget
Oppdragsnummer 28-0041/25
Eiendomsmegler Krogsveen AS, avd. Bamble og Porsgrunn
Strandgata 22, 3960, STATHELLE
950 007 613
Oppdragets KR-kode KR28.2541
Dato
Sist oppdatert: 24. februar 2026 kl. 17:21
Dokumenter
Dokumenter
PDF – 656 KB
PDF – 656 KB
PDF – 1 MB
PDF – 1 MB
Område
Legg til steder som er viktige for deg
Visning
Ta kontakt med megler for avtale om privatvisning.
Ønsker du kun å bli holdt orientert, kan du fra eiendommens hjemmeside få varsel om solgtpris, eller kontakte megler.
Lurer du på noe?
Vurderer du utleie?
Få et tilbud fra Utleie KrogsveenHva koster lånet?
Sjekk estimert lånekostnad




















































