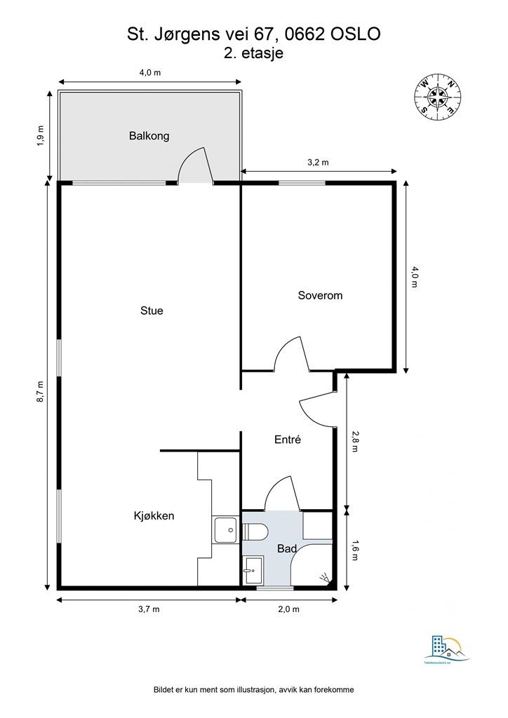
St. Jørgens vei 67
4 800 000 kr
56 m²
1 soverom
Solgt
Hovin
Stilren og attraktiv 2-roms topp-og endeleilighet med herlig balkong - Vinduer 2017 - Peis - Ettertraktet beliggenhet
Prisantydning
4 800 000 krAndel fellesgjeld
273 000 krOmkostninger
19 252 krTotalpris
5 092 252 kr
Pris
Bruksareal
65 m²BRA-I (internt bruksareal)
56 m²BRA-E (eksternt bruksareal)
9 m²TBA (terrasse-balkongareal)
8 m²
Areal
Etasje
2Byggeår
1953Soverom
1 soveromBad
1 badType
AndelsleilighetEierform
AndelFellesutgifter
4 796 krEnergimerke
Rød G
Nøkkelinfo
Unngå doble boligrenter
Vi tilbyr gunstig forsikring.
Vurderer du utleie?
Få et tilbud fra Utleie KrogsveenHva koster lånet?
Sjekk estimert lånekostnadBeskrivelse
Kort om eiendommen
Simen Istre Grevskott v/ Krogsveen har gleden av å presentere St. Jørgens vei 67! En lys og attraktiv 2-roms topp- og endeleilighet med sentral og populær beliggenhet på Hovin. Beliggenhet sørger for rikelig med lysinnslipp fra vinduer på flere veggflater. Leiligheten er holdt i moderne og delikate nyanser som harmonerer fint med hverandre og gir et helhetlig inntrykk.
Kvaliteter:
Delikat og stilrene overflater
Nordvestvendt balkong på hele 8 kvm
Sentral og attraktiv beliggenhet
God og arealeffektiv planløsning
Vinduer fra 2017
Internett inkl.
God oppbevaringsplass i 3 boder
Loftsbod med gulvareal på 11 kvm.
Peisovn i stuen
Flotte og grønne uteområder
Joker med søndagsåpent midt i borettslaget
Område
Legg til steder som er viktige for deg
På flyttefot? Tenk kjøp og salg samtidig.
Få din egen rådgiver gjennom hele kjøps- og salgsprosessen. Det starter med en verdivurdering.
Unngå doble boligrenter
Vi tilbyr gunstig forsikring.
Vurderer du utleie?
Få et tilbud fra Utleie KrogsveenHva koster lånet?
Sjekk estimert lånekostnadVil du varsles om lignende boliger?
Ved å lagre ditt boligsøk hos oss får du beskjed når vi har en bolig som ligner denne, før den legges ut på markedet!
På flyttefot? Slik gjør vi det enklere for deg
Skreddersydd flyttepakke
Vi fikser håndverkere, vask, pakking, lagring og transport, og legger ut for utgiftene underveis.
Hjelp med både kjøp og salg
Hos oss har du din egen rådgiver gjennom hele kjøps- og salgsprosessen.
Hjelp til finansiering
Vårt samarbeid med BN Bank sikrer deg rask og løsningsorientert hjelp, til konkurransedyktige betingelser.




