Parkveien 6
2 220 000 kr
65 m²
1 soverom
Solgt

Presenteres av
Turid BorgersenMjøndalen
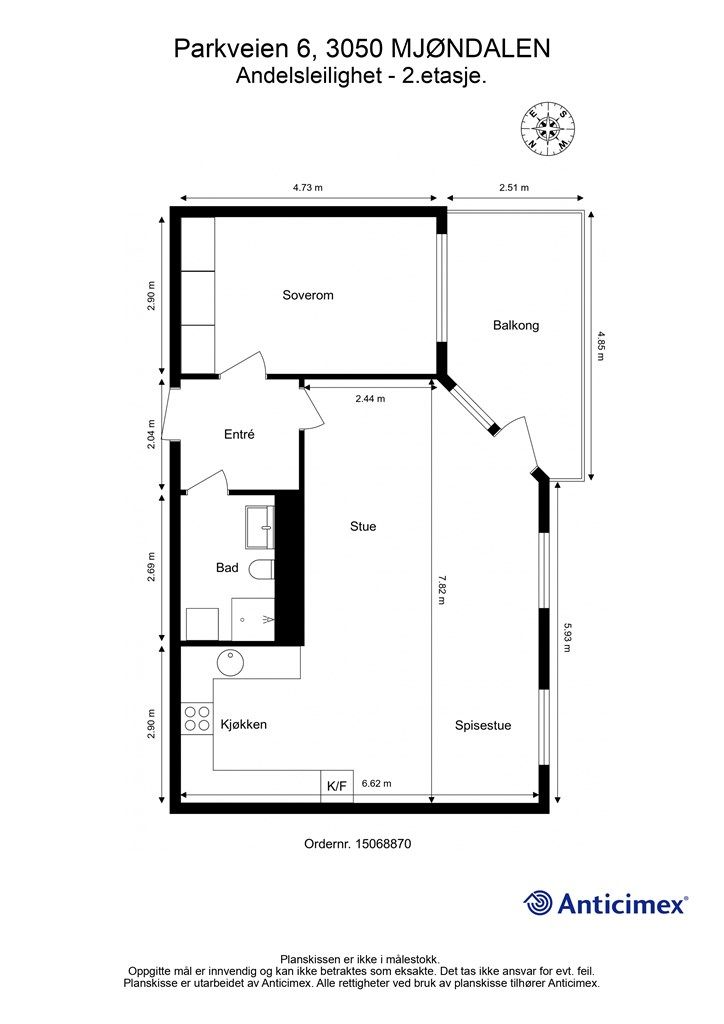
Meget pen to-rom andelsleilighet beliggende i Mjøndalen sentrum. Balkong på 10 kvm. Garasje. Fellesgjeld kan innfris.
Prisantydning
2 220 000 krAndel fellesgjeld
1 975 000 krOmkostninger
19 252 krTotalpris
4 214 252 kr
Pris
Bruksareal
73 m²BRA-I (internt bruksareal)
65 m²BRA-E (eksternt bruksareal)
8 m²TBA (terrasse-balkongareal)
10 m²
Areal
Etasje
2Byggeår
2023Soverom
1 soveromBad
1 badType
AndelsleilighetEierform
AndelFasiliteter
Garasje/P-plass, Heis og Balkong/TerrasseFellesutgifter
14 283 krEnergimerke
Grønn A
Nøkkelinfo
Unngå doble boligrenter
Vi tilbyr gunstig forsikring.
Vurderer du utleie?
Få et tilbud fra Utleie KrogsveenHva koster lånet?
Sjekk estimert lånekostnadBeskrivelse
Kort om eiendommen
Meget pen to-rom andelsleilighet i Mjøndalen sentrum
- Her får du kort vei til alt du trenger i hverdagen, samtidig som du kan nyte livet i en ny, romslig og moderne leilighet
- P-kjeller - en plass følger
- Borettslaget har tilrettelagt for individuell nedbetaling av andel fellesgjeld (medfører redusert felleskostnad)
- Ved innfrielse av andel fellesgjeld blir felleskostnad (dagens nivå) kr 4.675,- per måned
- Sørvendt overbygget balkong på ca. 10 kvm
- Oppvarming med fjernvarme via vannbåren gulvvarme i entre, stue og kjøkken
- Flislagt bad med gulvvarme
- Lekker og påkostet Designa kjøkken med integrerte hvitevarer
- En bod i kjeller og en i gang 2.etasje
- Umiddelbar nærhet til togstasjon, spisesteder, idrettsanlegg og treningssentre
Område
Legg til steder som er viktige for deg
På flyttefot? Tenk kjøp og salg samtidig.
Få din egen rådgiver gjennom hele kjøps- og salgsprosessen. Det starter med en verdivurdering.
Unngå doble boligrenter
Vi tilbyr gunstig forsikring.
Vurderer du utleie?
Få et tilbud fra Utleie KrogsveenHva koster lånet?
Sjekk estimert lånekostnadVil du varsles om lignende boliger?
Ved å lagre ditt boligsøk hos oss får du beskjed når vi har en bolig som ligner denne, før den legges ut på markedet!
På flyttefot? Slik gjør vi det enklere for deg
Skreddersydd flyttepakke
Vi fikser håndverkere, vask, pakking, lagring og transport, og legger ut for utgiftene underveis.
Hjelp med både kjøp og salg
Hos oss har du din egen rådgiver gjennom hele kjøps- og salgsprosessen.
Hjelp til finansiering
Vårt samarbeid med BN Bank sikrer deg rask og løsningsorientert hjelp, til konkurransedyktige betingelser.

