Sankt Hansveien 30
2 790 000 kr
78 m²
2 soverom
Komplett salgsoppgave

Tangen
Innbydende 3-roms selveierleilighet. Veletablert boligområde. Beliggende i blindvei.
Prisantydning
2 790 000 krOmkostninger
80 790 krTotalpris
2 870 790 kr
Pris
Bruksareal
97 m²BRA-I (internt bruksareal)
78 m²BRA-E (eksternt bruksareal)
19 m²TBA (terrasse-balkongareal)
20 m²
Areal
Etasje
2Byggeår
1868Soverom
2 soveromBad
1 badType
Halvpart horisontaldelt boligEierform
EierseksjonFasiliteter
Garasje/P-plassEnergimerke
Rød G
Nøkkelinfo
Unngå doble boligrenter
Vi tilbyr gunstig forsikring.
Vurderer du utleie?
Få et tilbud fra Utleie KrogsveenHva koster lånet?
Sjekk estimert lånekostnadBeskrivelse
Kort om eiendommen
Innhold og byggemåte
Innhold og byggemåte
Eiendommen
Sankt Hansveien 30, 3040 DRAMMEN
Kommunenummer 3301, gårdsnummer 112, bruksnummer 462, seksjonsnummer 2
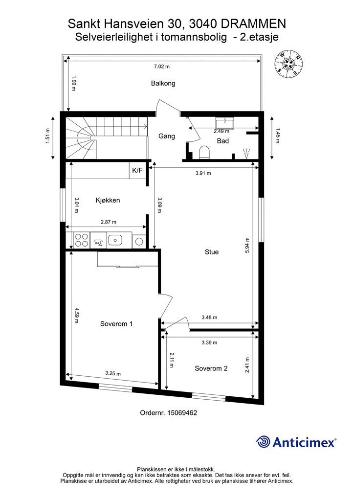
Innhold
BRA (totalt bruksareal): 97 kvm.
BRA-i (internt bruksareal)
1. etasje:
7 kvm: Entré
2. etasje:
71 kvm: Stue, kjøkken, bad, gang og to soverom.
BRA-e (eksternt bruksareal)
1. etasje:
19 kvm: Garasje
TBA (terrasse- og balkongareal)
1. etasje:
6 kvm: Støpt platting
2. etasje:
14 kvm: Balkong
Seksjonen inkluderer garasje, kjeller og loft i henhold til seksjoneringsbegjæringen.
Arealet i kjeller måles til 25 kvm (ALH), men grunnet lav takhøyde er ingen deler av arealet måleverdig som bruksareal.
De oppgitte arealer er hentet fra rapport med befaringsdato 04.03.2026 utført av Anticimex v/Amund Edvin Kjeldsaas. Arealene er beregnet og rom er definert etter dagens faktiske bruk, uavhengig av hva som er godkjent av bygningsmyndighetene.
Byggemåte
Selger har fått utarbeidet en tilstandsrapport for eiendommen, dvs. en teknisk gjennomgang av boligen hvor eventuelle avvik, risiko for kjøper og prisoverslag for hva som bør gjøres av oppgradering, er skissert. Se særskilt TGIU (tilstandsgrad ikke undersøkt), samt TG2 og TG3 som viser hva som er avvik fra boligens normale slitasje, alder og type, eller som bør/må utbedres. Rapporten og selgers egenerklæring er en del av salgsoppgaven og må leses nøye før bud inngis. Kjøper overtar ansvaret for de opplysninger som fremkommer av salgsdokumentasjonen, og kan ikke gjøre gjeldende som mangel noe som burde vært kjent eller som ikke kan anses å ha betydning for avtalen.
Bygningen er iht. tilstandsrapport, oppført med støpt gulv mot grunn. Yttervegger av trekonstruksjoner. Utvendige fasader er kledd med stående trekledning. Etasjeskillere av trekonstruksjoner. Saltak i trekonstruksjoner. Yttertak er belagt med takplater av metall. Entrédør med glassfelter. Vinduer med karmer av tre. Balkongdør med karmer av tre. Les forøvrig mer om byggemåte og den tekniske tilstanden i rapporten.
I rapporten fremkommer det som takstmannen mener kjøper må være særskilt oppmerksom på, dette gjelder blant annet (se utfyllende tekst i rapporten):
Følgende kontrollpunkter/forhold har blitt tildelt TG3:
- Yttervegger inkl. fasader: Det er ikke montert tilstrekkelig gnagersikring bak hjørnebord (ytterhjørner).
- Drenering: Det er valgt å vurdere dreneringen med en samlet helhetsvurdering. Følgende hovedmomenter er lagt til grunn for vurderingen: Boligen viser tegn til fuktgjennomslag og fuktproblematikk fra innsiden, som tyder på funksjonssvikt i dreneringen. Alderen på dreneringen underbygger denne konklusjonen. Stedvis lite terrengfall vekk fra grunnmuren. Det kan ikke verifiseres at grunnmuren har utvendig fuktsperre.
Følgende kontrollpunkter/forhold har blitt tildelt TG2:
- Våtrom (bad): Det er valgt å vurdere våtrommet (og tilhørende bygningsdeler) med en samlet helhetsvurdering. Følgende hovedmomenter er lagt til grunn for vurderingen: Det er registrert bom (hulrom med påfølgende riss/sprekker i flisfuger) i enkelte gulvfliser. Lokalfallet i sluksonen er mindre enn anbefalt. Fallforhold utenfor sluksonen vurderes ikke til å være tilstrekkelig for å lede eventuelt lekkasjevann til sluk, og det er ikke påvist at vanntett sjikt har tilstrekkelig oppkant ved dørterskel for å kompensere for dette. Vanntett sjikt har en alder som tilsier at fremtidig funksjon er usikker. Overgang mellom sluk og vanntett sjikt er uoversiktlig. Vannrør av kobber (og tilhørende komponenter) har en alder som tilsier at fremtidig funksjon er usikker. Sluket er isolert inne i dusjsonen. Tilluftsspalte eller lignende er ikke etablert. Det foreligger lite informasjon om arbeidet er gjort i våtrommet. Det bærer ikke preg av faglig god utførelse. Konsekvensen er at dette erfaringsmessig medfører risiko for andre skjulte feil og mangler, som ikke lar seg registrere ved visuell inspeksjon.
- Kjøkken: Vannrør av kobber (og tilhørende komponenter) har en alder som tilsier at fremtidig funksjon er usikker. Innredningen bærer samlet sett preg av slitasje og enkelte skader.
- Teknisk anlegg: Boligens vannrør av kobber (og tilhørende komponenter) har en alder som tilsier at fremtidig funksjon er usikker. Innvendig stoppekran er ikke lett tilgjengelig for betjening (plassert i kjeller). På bakgrunn av varmtvannsberederens alder vurderes det at fremtidig funksjon er usikker.
- Andre rom: Sprekker i plateskjøter på soverom 1. Synlige deler av gulvets overflatemateriale bærer preg av slitasje med enkelte riper og hakk. Innerdører ved bad bærer preg av skader/slitasje. Ventilasjonen vurderes som utilstrekkelig.
- Loft - uinnredet/kaldt loft: Det er valgt å vurdere boligens uinnredede loft (og tilhørende bygningsdeler) med en samlet helhetsvurdering. Følgende hovedmomenter er lagt til grunn for vurderingen: Kaldtloftets tilstand sett i sammenheng med alder på yttertaket tilsier at oppfølging med jevnlig ettersyn er nødvendig slik at tiltak kan iverksettes ved behov.
- Innvendige trapper: Trappen bærer samlet sett preg av aldersrelatert slitasje og enkelte skader.
- Etasjeskiller og gulv på grunn (skjevhetsmåling): På kjøkkenet er det på tilfeldige punkter målt lokale høydeforskjeller opptil 35 mm.
- Yttervegger inkl. fasader: Det er stedvis slitasje på ytterkledningens overflatebehandling. Ytterkledningens materialer viser stedvise tegn til begynnende nedbrytning og elde.
- Vinduer og ytterdører: Enkelte vinduer viser begynnende tegn til slitasje på overflatebehandling. Døren viser begynnende tegn til utvendig slitasje. Vinduer med karmer/ramme av tre fra 1997 og 1998.
- Yttertak: Taket er ikke fysisk inspisert grunnet sikkerhetsmessige forhold. Taktekking (med tilhørende beslag) viser begynnende tegn til slitasje og elde. Takrenner og nedløp viser begynnende tegn til slitasje og elde. Snøfangerutstyr er ikke etablert.
- Balkonger: Det er valgt å vurdere balkongen (og tilhørende bygningsdeler) med samlet helhetsvurdering. Følgende hovedmomenter er lagt til grunn for vurderingen: Overflatemateriale på balkongen viser tegn til slitasje.
- Terrasse/platting: Det er registrert bom (hulrom og riss/sprekker i flisfuger) i enkelte gulvfliser.
- Grunnmur, fundament: Det registreres enkelte moderate tegn til riss i overflaten til grunnmuren.
- Stikkledninger og tanker: Det er ikke kjent når boligens utvendige vannledninger ble skiftet ut. Ukjent alder tilsier også at fremtidig funksjon er usikker.
Følgende kontrollpunkter/forhold har blitt tildelt TGIU (tilstandsgrad ikke undersøkt):
- Yttertak: Undertak (inkludert sløyfer, lekter og innfestninger), vannbord, vindskier, gemisskasser og lignende, takgjennomføringer og skorsteiner er ikke besiktiget grunnet sikkerhetsmessige årsaker.
Det anbefales ytterligere undersøkelser av disse punktene.
Helse, miljø og sikkerhet
- Rekkverk og håndløper (innvendig trapp): Trappen har ikke håndløper på begge sider. Trappen vurderes som smal. Basert på ovennevnte forhold oppfyller ikke trappen dagens krav til sikkerhet.
- Balkonger: Rekkverkshøyden er under 1,0 meter.
- Forstøtningsmur: Det mangler rekkverk. Basert på ovennevnte forhold oppfyller ikke rekkverket dagens krav til sikkerhet. Om rekkverket oppfylte kravene som var gjeldende på påføringstidspunktet eller ikke, er ikke tatt stilling til.
I tillegg opplyses det om følgende i tilstandsrapporten:
- Forenklet vurdering av elektrisk anlegg: Det er gjennomført en forenklet vurdering av det elektriske anlegget, uten at det er registrert åpenbare avvik. Selger opplyser at oppvaskmaskinen har en defekt knapp.
- Branntekniske forhold: Det er ikke funnet åpenbare feil eller mangler ved boligens branntekniske forhold. Det er derfor ikke indikasjoner på behov for at en person med brannfaglig spesialkompetanse foretar en utvidet vurdering.
Se vedlagt tilstandsrapport for supplerende informasjon vedrørende boligens tilstand.
Tilstandsrapporten og selgers egenerklæring er vedlagt salgsoppgaven. Interessenter må sette seg inn i dokumentene før bud inngis.
Standard
Løsøre og tilbehør
Hvitevarer på kjøkkenet medfølger i handelen, dette gjelder kombiskap, komfyr og oppvaskmaskin (defekt).
Lite fryseskap (plassert i gang i 1. etasje), vaskemaskin, hjørnesofa, salongbord, vitrineskap, veggskap, støvsuger og sengeramme medfølger også i handelen.
Videre vises det til liste fra Norges Eiendomsmeglerforbund angående løsøre og tilbehør. Produkter og installasjoner som medfølger overdras uten noen form for garantier, utover eventuell gjenværende leverandørgaranti.
Oppvarming
Boligen har elektrisk oppvarming ved evt. panelovner.
Boligen har pipe, men det er ikke tilkoblet ildsted per dags dato. Det gjøres oppmerksom på at dersom ildsted skal etableres, bør man undersøke pipens tilstand og kapasitet for nytt ildsted med fagfolk. Installasjon av ildsted forutsetter melding til Feiervesenet.
Dersom det ikke er vegg- eller fastmonterte varmekilder i rom ved visning, følger dette heller ikke med.
Ferdigattest/brukstillatelse
Eiendommen har ifølge kommunen antatt opprinnelse fra ca. 1868.
Kommunen opplyser at det ikke var krav til ferdigattest eller midlertidig brukstillatelse på den tiden eiendommen ble oppført. Det finnes ikke tegninger av eiendommens bebyggelse fra opprinnelig oppføring, og det finnes ingen plantegninger som beskriver byggets opprinnelige tiltenkte og godkjente bruk. Det har derfor ikke lykkes megler å verifisere godkjent bruk av bygningen, eller godkjent bruk for de enkelte rom i bygningen. Byggets fasade fremstår som tilbygget og ombygget, uten at man kjenner til utviklingens tidslinje.
Eier av leiligheten har hatt en lengere dialog med Drammen kommune, spesielt for å avklare hvorvidt bygget lovlig benyttes som tomannsbolig. Kommunen har skriftlig redegjort følgende: "Bygninger oppført før 1924 har ofte manglende tegninger, og det ble på et tidspunkt gjort en "masseregistrering". Det er mest sannsynlig gjort en vurdering, og man har kommet frem til at sannsynligheten er stor for at boligen fra gammelt av var en tomannsbolig". Megler legger således kommunens uttalelse til grunn, og behandler eiendommen som en tomannsbolig. Det foreligger godkjent seksjoneringssøknad for eiendommen, datert 24.11.1997. Det er uklart hvor lenge bygningen har hatt to boenheter, og kjøper må således påregne at dagens krav til bl.a. støy-/og brannsikring ikke er ivaretatt.
Det foreligger godkjente byggetegninger for garasje datert 22.08.1985. Det foreligger ikke midlertidig brukstillatelse eller ferdigattest på tiltaket. I forbindelse med søknad og godkjennelse av garasjen, som står delvis på naboens tomt er det innhentet avstandserklæring og rett til plassering av garasjen fra gnr.112/bnr.229.
Det gjøres oppmerksom på at det ikke lenger utstedes ferdigattest på tiltak det er søkt om før 1998 jf. plan- og bygningsloven § 21-10. Kommunen vil ikke kreve ferdigattest for disse tiltakene og vil avvise eventuelle søknader. Bestemmelsen innebærer ikke at tiltak med manglende søknad blir lovlige, men at man ikke trenger å avslutte gamle byggesaker. Normalt sett kreves ferdigattest for alle søknadspliktige tiltak som gjøres etter plan- og bygningsloven.
Gjennom dialog med kommune for redegjørelse om lovlighet ved eiendommen, fremkommer følgende avvik.
- Veranda i 1. etasje (naboens veranda) er ikke byggesøkt eller godkjent.
- Altan/balkong i 2.etg. er ikke byggesøkt eller godkjent. Altan/balkongen kan ikke påregnes godkjent pga. plassering utenfor tomtegrense, og over V/A-ledninger. Arealet er heller ikke tinglyst til seksjonen.
Kjøper overtar alt ansvar, kostnad og risiko for uavklarte lovlighetsforhold, og ulovlige verandaer videre.
Kjøper overtar eiendommen slik den framstår på visning.
Tinglyste heftelser og rettigheter
Leiligheten overdras fri for pengeheftelser.
Sameiet har legalpant for krav mot sameieren som følger av sameieforholdet iht. eierseksjonsloven § 31. Pantet er begrenset oppad til 2G, (G = folketrygdens grunnbeløp).
Tinglyst seksjoneringsbegjæring
Dagboknummer: 19560
Tinglysningsdato: 24.11.1997
Omhandler seksjonering av eiendommen.
Seksjonsnummer 2, boligformål, sameiebrøk 75/145.
Dagboknummer: 15676
Tinglysningsdato: 26.09.2000
Servitutten omhandler: Snr. 2 disponerer garasje, kjeller og loft og at Snr. 1 disponerer bod innenfor garasje og kjellerrom/bod under garasje.
Servituttene vil følge eiendommen. Kjøpers bank vil få pant etter ovennevnte heftelser og servitutter som ikke skal slettes ved overdragelse.
Eventuell adgang til utleie
Leiligheten kan leies ut såfremt leiligheten har forsvarlige radonverdier.
Energimerking
Komplett energiattest inkludert oppvarmingskarakter fås ved henvendelse til megler eller lastes ned fra www.krogsveen.no.
Beliggenhet og tomteforhold
Beliggenhet og tomteforhold
Beliggenhet
Eiendommen ligger i et veletablert boligområde. Det er et hyggelig nærmiljø med eldre småhusbebyggelse. Beliggende i en blindvei, som medfører ingen gjennomgangstrafikk. Kort gangavstand til park/lekeplass og barnehager. Det er også kort gangavstand til bussholdeplass med gode forbindelser. Kort vei ned til fjorden fra eiendommen. Nærområdet forventes løftet betraktelig i forbindelse med igangsettelse av utviklingsprosjekt på fremforliggende industrieiendom langs fjorden, det planlegges etablering av et moderne boligområde, offentlig fjordpromenade og allment tilgjengelige utearealer.
Ca. 10 minutters kjøring til Drammen sentrum med bystranda, elveparken, flere kjøpesentre samt servicetilbud, bussknutepunkt og togstasjon. Gågatene i sentrum kan friste med et stort utvalg av sentrumsfasiliteter som caféer, dagligvareforretninger, restauranter, nisjébutikker m.m., i tillegg er det kino, minigolf, skøytebane (vinterstid) og teater.
De fleste fritidstilbud i Drammen. Kort vei til Marienlyst med friluftsbad/svømmehall, fotballbaner, friidrettsanlegg og skøytebane. Drammenshallen. Strømsgodset IF og Skiold ski og ballklubb er aktive idrettsforeninger i nærheten. De har eget treningsanlegg med kunstgressbane på Gulskogen og Marienlyst, samt naturisbane og kunstisbane på vinterstid. Kort vei til elveparken med tur og sykkelstier rundt elven. Drammen turnforening med egen hall og mange aktiviteter, for mer informasjon se www.drammenturn.no. Drammen slalåmklubb i Haukåsløypa slalåmbakke med egentrening og kurstilbud. Drammensbadet sentralt på Marienlyst har helårsanlegg med badeland og treningstilbud.
Kort gangavstand til bussholdeplass langs Havnegata (Drammen Slip) med forbindelser mot Svelvik/Berger, Kniveåsen, Rundtom og Drammen sentrum, se www.brakar.no for rutetider. Kort vei til Bangeløkka hvor det er bussholdeplass for ekspressbuss retning Oslo, Kongsberg og Kristiansand. Gode togforbindelser mot Kongsberg, Oslo og Sandefjord fra Drammen sentrum, tidsmessig tar det ca. 30 minutter til Oslo se www.vy.no for avganger.
Adkomst
Det vil bli skiltet med Krogsveen visningsskilt ved fellesvisninger. Se kart i nettannonse eller Google Maps for nærmere veibeskrivelse. Velkommen til visning!
Barnehager, skoler og fritid
Godt sammensatt tilbud av private og offentlige barnehager.
Barnehager: Hedensrud barnehage (0,4 km), Baltazar menighetsbarnehage (0,5 km), St. Hansberget barnehage (0,8 km).
Skoler: Brandengen barneskole (1,1 km) og Marienlyst ungdomsskole (3,9 km).
Drammen kommune har tre private barne- og ungdomsskoler, Drammen Realfagsskole Heltberg, Norlights Montessoriskole Drammen og Rosendal skole (Mjøndalen).
Det ligger flere videregående skoler i Drammen og Lier, samt Universitetet i Sørøst-Norge som har campus på Papirbredden i Drammen, for mer informasjon se www.usn.no.
Dersom skole- og barnehagetilbud er av betydning for kjøpet, ber vi om at det rettes en særskilt henvendelse til kommunen for oppdatert informasjon.
Beskrivelse av tomt
Eiertomt på 195 kvm som tilhører sameiet. Tomten er fellesareal.
Tomten er ikke oppmålt i nyere tid og har usikre grenser. Kommunens grunnkart viser eiendommens grenser med et beregnet normalavvik på 31-200 cm, se kartutsnitt for tomtegrenser. Ved nøyaktig oppmåling kan avvik forekomme, og kjøper aksepterer dette.
Tomten er opparbeidet med asfalterte veier, grus, diverse støttemurer og forskjellig beplantninger.
Deler av trapp (ned til inngangsparti) og altan/balkong er opparbeidet på på gnr. 112/bnr. 397 (kommunaleid),se kartutsnitt for tomtegrenser. Kjøper påtar seg risikoen for fortsatt bruk og fremtidig bruk samt eventuelle pålegg fra grunneier.
Deler av garasje er opparbeidet på gnr. 112 / bnr. 229 (som eies av et sameie), se kartutsnitt for tomtegrenser. Kjøper påtar seg risikoen for fortsatt bruk og fremtidig bruk samt eventuelle pålegg fra grunneier/kommunen.
Parkering
Leiligheten disponerer parkering i garasje.
Selger opplyser at garasjetaket er skiftet ut i nyere tid.
Vei, vann og avløp
Eiendommen har adkomst via kommunal vei.
Eiendommen er tilknyttet kommunalt ledningsnett via private stikkledninger. Utvendig avløpsledning er fra 2004/2005 jf. tilstandsrapporten. Eier er selv ansvarlig for private stikkledninger til boligen.
Regulerings-og arealplaner
Eiendommen ligger i et uregulert område men er avsatt til boligbebyggelse, bevaring av kulturmiljø og miljøkvalitet, estetikk, natur, landskap samt grønnstruktur ved kommuneplanens arealdel for Drammen kommune 2025-2037 datert 18.06.2025. Nordlig del av eiendommen ligger også i området for kommunedelplan for Fv. 319 Svelvikveien, datert 21.06.2016, der den er avsatt til boligformål. Utsnitt av planer med tilhørende bestemmelser kan fås ved henvendelse til megler.
Eiendommen er registrert innenfor et kulturmiljøområde med høy verneverdi. Boligbygningen på eiendommen er også et lokalt registrert kulturminne av middels bevaringsverdiklasse C. Verneklasse C (middels verneverdi) er kulturminner som hver for seg ikke er spesielt interessante eller verdifulle, men som er viktige for å helheten i verneverdig miljø selv om de er ombygde. Dette kan medføre begrensninger eller/og retningslinjer for byggetekniske endringer av boligen fra kommunen eller fylket.
Eiendommen er innenfor et enkeltminne område. Enkeltminner er kulturminner som hører naturlig sammen, innenfor én og samme lokalitet.
Det er igangsatt planarbeid med Kommuneplanens arealdel for Drammen kommune 2027-2039. Forsalget tilrettelegger for at det skal bygges boliger, promenader/arealer mot fjorden og noe næring/tilhørende infrastruktur. Foreløpig status for planen er at den er igangsatt og det ble kunngjort oppstart av planarbeidet i 2025, se kommunens hjemmeside for mer info. Se vedlagt reguleringsplan i salgsoppgaven. Tidshorisont og endelig utforming av prosjektet er pt. ikke klart, det må påregnes støy o.l. fra byggeprosjektet under utbyggingen (med forbehold om at planen blir vedtatt).
Naboeiendommen gnr. 112/bnr. 464 er privateid, og er per dags dato ubebygd og består av fjell/kratt. Iht. kommuneplanen datert 18.06.2025 er området avsatt til boligbebyggelse. Selger har ikke mottatt nabovarsel eller kjenner til eventuelle utbyggingsplaner for eiendommen.
Økonomi
Økonomi
Boligens kostnader
Kommunale avgifter (vann og avløp): kr 7.192,- pr. år (3 terminer), fakturert på eiendommen i 2025. Avgiftene vil variere etter forbruket i boligen.
Renovasjonskostnader: kr 5.201,- pr. år (2 terminer). Type renovasjonsordning: standard, 2026.
Det betales ikke faste felleskostnader i sameiet. Det gjøres heller ikke avsetninger til felles vedlikehold. Leilighetene har felles bygningsforsikring, og faktura deles 50/50 mellom seksjonene ved forfall. Kostnadener pt. ca. 5000,- pr. år.
Det må påregnes kostnader til strøm og nettleie, dette vil variere avhengig av strøm-/nettselskap.
Selger har ikke opplyst om forbruk av strøm eller øvrige kostnader ved bruk av eiendommen.
Det må påregnes kostnader til innboforsikring og tv/internett.
Ovenstående er basert på nåværende eier/husstands senere års forbruk/utgifter. Dette vil variere avhengig av antall beboere, ønsket innetemperatur, egne fordelsavtaler, kanalvalg, hastighet på bredbånd m.m.
Formuesverdi
Formuesverdi for 2024 var kr 880 378,- ifølge Skatteetaten. Beløpet forutsetter at eier bor fast i boligen (primærbolig).
Ved eventuell øvrig bruk av eiendommen (f.eks. fritidsbolig, pendlerbolig, utleieobjekt) var formuesverdien for 2024 kr 3 521 512,-.
Fra 2026 har Stortinget vedtatt en oppdatert modell for beregning av formuesverdi for primærbolig, så avvik kan forekomme.
For mer informasjon se skatteetaten.no.
Omkostninger
2 790 000,00 Prisantydning
Omkostninger
69 750,00 Dokumentavgift til staten (2,5% av kjøpesum)
9 950,00 Gjensidige Boligkjøperpakke (valgfri)
545,00 Tinglysing panterettsdokument
545,00 Tinglysing skjøte
--------------------------------------------------------
80 790,00 Omkostninger totalt
--------------------------------------------------------
2 870 790,00 Totalpris inkl. omkostninger
--------------------------------------------------------
Totalpris inkl. omkostninger forutsetter kjøp til prisantydning.
Det tas forbehold om endringer i avgifter og gebyrer.
Tilbud om lånefinansiering
Megler formidler gjerne kontakt med rådgiver hos vår samarbeidspartner BN Bank. De har konkurransedyktige betingelser samt rask og løsningsorientert behandling av din lånesøknad. Krogsveen mottar et honorar dersom lån opprettes.
Betalingsbetingelser
Kjøpesum inkludert omkostninger, samt pantedokument tilknyttet eventuelt lån, skal være disponibelt hos megler 2 virkedager før overtagelsen.
Annen viktig informasjon
Annen viktig informasjon
Eier
Britt Helen Haugsmyr og Nikolai Vabø Tachkanov
Informasjon om sameiet
Eiendommen er seksjonert og leiligheten er tilknyttet et sameie.
Sameiet består av 2 leiligheter.
Sameiet har ikke forretningsfører eller styre, og det føres ikke regnskap eller budsjett.
Det er kun felles bygningsforsikring som er fast utgift i sameiet, utover dette er det vedlikeholdskostnader etter avtale.
Dersom det mottas felles regninger til sameiet vil kostnader bli fordelt etter nærmere regler angitt av sameiet, vanligvis etter sameiebrøk.
Megler har ikke funnet vedtekter for sameiet, av den grunn finnes det ikke dokumentasjon over sameiets fordelingsnøkkel av eventuelle kostnader.
Seksjonseieren disponerer fritt over egen seksjon med de begrensninger som følger av sameieforholdet og eierseksjonsloven. Seksjonseieren kan fritt selge, pantsette og leie ut sin egen seksjon.
Ingen kan kjøpe eller på annen måte erverve flere enn to boligseksjoner i sameiet i henhold til lov om eierseksjoner. Dette gjelder ikke for kjøp og erverv av fritidsboliger, erverv ved ekspropriasjon, arv eller forskudd på arv til livsarving eller en kreditors erverv for å redde en fordring som er sikret med pant i en seksjon.
Sameiets bygningsmasse er fullverdiforsikret i Gjensidige. Denne avtalen er tegnet i selgers navn og sameierne må sammen besørge ny bygningsforsikring.
Overtakelse
Etter nærmere avtale.
Boligselgerforsikring
Selger har i forbindelse med salget tegnet boligselgerforsikring levert av Gjensidige.
Boligselgerforsikringen dekker selgers ansvar etter avhendingsloven begrenset oppad til kr 14 millioner. Dersom kjøper oppdager forhold ved eiendommen som hen mener utgjør en mangel ved eiendommen, vil Gjensidige behandle reklamasjonen på vegne av selger. Forsikringsvilkår kan fås ved henvendelse til megler.
Vedlagt salgsoppgaven følger selgers egenerklæringsskjema og tilstandsrapport. Interessenter må sette seg inn i dokumentene før bud inngis.
Boligkjøperforsikring
Innen kontraktsmøtet må kjøper ta stilling til om det ønskes å bestille Boligkjøperpakken gjennom Gjensidige. I denne gunstige pakken er boligen ferdig forsikret og inkluderer rettshjelpsforsikring, også kalt Boligkjøperforsikring. Rettshjelpsforsikring gir trygghet og tilgang på profesjonell juridisk hjelp dersom det oppdages uventede feil eller mangler det første året etter overtagelse. Forsikringsselskapet behandler i så fall ethvert mangelskrav kjøper måtte ha overfor selger.
Boligkjøperpakken inkluderer bygningsforsikring for hus og hytte, innboforsikring, flytteforsikring og dobbel rentedekning - i situasjoner hvor kjøper ikke får solgt nåværende primærbolig.
Kjøper mottar ingen særskilt faktura for Boligkjøperpakken da kostnaden det første året legges til kjøpesummen for boligen. Det gjøres oppmerksom på Krogsveen mottar et honorar for denne formidlingen.
Produktark for Boligkjøperpakken ligger vedlagt i salgsoppgaven.
Dersom ikke boligkjøperpakke ønskes kan kun rettshjelpsforsikring, også kalt boligkjøperforsikring, tegnes særskilt via megler. Rettshjelpsforsikringen varer i 5 år fra overtagelse og leveres gjennom Gjensidige. Ta kontakt med megler for ytterligere informasjon.
Selskap og privatpersoner som driver med kjøp/salg/utvikling som ledd i egen næringsvirksomhet kan ikke tegne boligkjøperpakke eller rettshjelpsforsikring.
Budgivning
Forbrukerinformasjon om budgivning er vedlagt denne salgsoppgaven og er også på vår hjemmeside Krogsveen.no. Alle bud og budforhøyelser må inngis skriftlig. I tillegg må legitimasjon være fremlagt sammen med signatur fra budgiver.
Vi oppfordrer til å gi bud elektronisk via GI BUD-knappen på eiendommens hjemmeside på Krogsveen.no. Da vil samtlige vilkår bli oppfylt.
Eventuelle forhøyelser eller endringer av budet kan bekreftes pr SMS eller på e-post. Vi oppfordrer alltid til å kontakte megler pr. telefon i tillegg da forsinkelser i SMS og e-post kan forekomme.
For at budene skal kunne bli behandlet og videreformidlet skriftlig til alle involverte parter, må alle bud ha en tilstrekkelig lang akseptfrist, jf. eiendomsmeglingsforskriften § 6-3.
Selger må også skriftlig akseptere budet før aksept kan formidles til budgiver. Akseptfrist bør derfor være på minimum 30 minutter, og budforhøyelser må derfor skje i god tid før fristens utløp.
Bud i forbrukerforhold kan uansett ikke settes med kortere frist enn kl. 12.00 første virkedag etter siste annonserte visning. I tillegg kan ikke budet ha forbehold om at det skal holdes hemmelig ovenfor øvrige interessenter. Megler har iht lov om eiendomsmegling ikke anledning til å videreformidle disse budene, og de vil dermed heller ikke bli journalført.
Etter at eiendommen er solgt vil kjøper og selger få tilsendt budjournal. Øvrige budgivere kan få utlevert kopi av budjournalen i anonymisert form.
Hvitvaskingsreglene
I henhold til lov om hvitvasking og terrorfinansiering har megler plikt til å gjennomføre kontrolltiltak overfor kunder, herunder fullmektiger. Dette innebærer bl.a. å bekrefte kunders og reelle rettighetshaveres identitet på bakgrunn av fremvist gyldig legitimasjon eller på annen godkjent måte, samt å innhente opplysninger om kundeforholdets formål og tilsiktede art.
Dersom slike kundetiltak ikke kan gjennomføres, kan megler ikke etablere kundeforholdet eller utføre transaksjonen.
Hvis kjøper ikke bidrar til gjennomføring av kundekontrollen og dette fører til at transaksjonen blir forsinket eller ikke kan gjennomføres, vil dette ansees som mislighold av avtalen og gi selger rettigheter etter avhendingslova kapittel 5. I tilfeller der selger ikke bidrar til gjennomføring av løpende kundekontroll underveis i oppdraget, er det selger som misligholder sine forpliktelser etter avtalen og gi kjøper rettigheter etter avhendingslovens kapittel 4. Partene er selv ansvarlige for eventuelle kostnader og ansvar dette kan medføre. Eiendomsmegleren eller eiendomsmeglingsforetaket kan ikke holdes ansvarlig for de konsekvenser dette vil kunne få for partene eller andre som har interesser i eiendomshandelen.
Kjøper oppfordres til å innbetale kjøpesummen som ikke kommer fra låneinstitusjon i én samlet innbetaling fra egen konto i norsk bank. Megler har plikt til å melde fra til Økokrim om eiendomshandler som fremstår som mistenkelige. Melding sendes Økokrim uten at partene varsles.
Personopplysningsloven
I henhold til personopplysningsloven gjør vi oppmerksom på at interessenter kan bli registrert for videre oppfølging.
Lovanvendelse
Generelle bestemmelser
Salgsoppgaven er basert på de opplysningene selger har gitt til megler, den bygningssakyndiges tilstandsrapport, samt opplysninger innhentet fra kommunen, Kartverket og andre tilgjengelige kilder. Det er viktig at kjøper setter seg grundig inn i alle salgsdokumentene, herunder salgsoppgave, tilstandsrapport og selgers egenerklæring. Kjøper anses kjent med forhold som er tydelig beskrevet i salgsdokumentene, og slike forhold kan ikke påberopes som mangler. Dette gjelder uavhengig av om kjøper har lest dokumentene. Alle interessenter oppfordres til å undersøke eiendommen nøye, gjerne sammen med fagkyndig før bud inngis. Kjøper som velger å kjøpe usett kan ikke gjøre gjeldende som mangel noe han burde blitt kjent med ved undersøkelsen.
Dersom det er behov for avklaringer, anbefaler vi at interessenter rådfører seg med eiendomsmegler eller egne rådgivere før det legges inn bud.
En bolig som har blitt brukt i en viss tid, har vanligvis blitt utsatt for slitasje og skader kan ha oppstått. Slik bruksslitasje må kjøper regne med, og det kan avdekkes enkelte forhold etter overtakelse som nødvendiggjør utbedringer. Normal slitasje og skader som nødvendiggjør utbedring, er innenfor hva kjøper må forvente og vil ikke utgjøre en mangel.
Kjøper og selgers rettigheter og plikter reguleres av avtalen mellom partene, samt informasjonen som har vært tilgjengelig for kjøperen i forbindelse med handelen. Avtalen utfylles av avhendingsloven, og det gjelder ulike avtalevilkår avhengig av om kjøper er forbrukerkjøper eller ikke. Dette er nærmere beskrevet nedenfor.
På grunn av ulike avtalevilkår kan selger vurdere bud fra en som ikke er forbruker, ulikt fra en forbrukers bud. Dersom kjøper ikke er forbruker, er selger sitt mulige mangelsansvar begrenset fordi eiendommen selges "som den er". Selger kan ikke ta «som den er»- forbehold overfor en forbrukerkjøper. Selv et lavere bud fra en som ikke er forbruker kan foretrekkes fordi begrensningen i mulig mangelsansvar kan ha egenverdi for selger. Selger står fritt til å forkaste eller akseptere ethvert bud, og er for eksempel ikke forpliktet til å akseptere høyeste bud.
Budgiver skal i budskjema avgi egenerklæring om budgiver er forbruker eller næringsdrivende/ person som hovedsakelig handler som ledd i næringsvirksomhet. Budgivere får informasjon dersom andre bud er inngitt av en som ikke er forbruker.
Forbrukerkjøp - definisjon
Med forbrukerkjøp menes kjøp av eiendom når kjøperen er en fysisk person som ikke hovedsakelig handler som ledd i næringsvirksomhet.
Forbruker – avtalevilkår
Eiendommen har en mangel dersom den ikke er i samsvar med kravene som følger av avtalen, eller det foreligger brudd på bestemmelsene i avhendingsloven §§ 3-2 til 3-8. Hvis eiendommen ikke er i samsvar med det kjøperen må kunne forvente ut ifra alder, type og synlig tilstand, kan det være grunnlag for mangelskrav. Det samme gjelder hvis det er holdt tilbake eller gitt uriktige opplysninger om eiendommen. Dette gjelder likevel bare dersom man kan gå ut ifra at det virket inn på avtalen at opplysningen ikke ble gitt eller at mangelskravet ikke blir rettet i tide på en tydelig måte.
Boligen kan ha en mangel etter avhendingsloven § 3-3 andre ledd, dersom det er avvik mellom opplyst og faktisk innvendig areal, forutsatt at avviket er på 2% eller mer og minimum 1 kvm.
Ved beregning av et eventuelt prisavslag eller erstatning må kjøper selv dekke tap/kostnader opptil et beløp på kr 10 000 (egenandel).
Ikke-forbruker (næringsdrivende) – definisjon
Hvis kjøper er en juridisk person, eller en fysisk person som hovedsakelig handler som ledd i næringsvirksomhet, vil kjøpet ikke anses som et forbrukerkjøp.
Ikke-forbruker – avtalevilkår
Eiendommen har en mangel dersom den ikke er i samsvar med kravene som følger av avtalen.
Eiendommen selges «som den er», og selgers ansvar utover det konkret avtalte er da begrenset etter avhendingsloven § 3-9, første ledd andre setning.
Avhendingsloven § 3-3 andre ledd fravikes, og hvorvidt boligens arealsvikt utgjør en mangel vurderes etter avhendingsloven § 3-8.
Informasjon om kjøpers undersøkelsesplikt, herunder oppfordringen om å undersøke eiendommen nøye, gjelder også for kjøpere som ikke anses som forbrukere.
Det forutsettes at hjemmel overføres til kjøper. Hvis kjøper ikke ønsker hjemmelsoverføring av eiendommen, må det tas forbehold om dette i budet.
Meglers vederlag
Meglers vederlag betales av selger og er avtalt til:
Fastpris: 45 000,-
Vederlag:
Kontroll av hjemmel og heftelser kr 2 900,00
Markedsføringspakke kr 27 400,00
Oppgjør kr 7 500,00
Tilrettelegging kr 17 000,00
Visninger pr stk 4000,- Første visning gratis
Utlegg:
Innhenting av offentlig opplysninger Drammen tegninger og RFD kr 2 833,00
Tinglysing sikring kr 545,00
Andre utgifter:
Boligselgerforsikring Gjensidige 4,58 promille
Fotopakke kr 4 500,-
Tilstandsrapport fra bygningssakkyndig 9700,-
Vi er opptatt av verdiskapning, og har knyttet til oss samarbeidspartnere som skal sikre våre kunder de beste produkter og tjenester;
• I forbindelse med forberedelse av salget, innhenter vi informasjon om eiendommen hovedsakelig fra vår samarbeidspartner Ambita.
• Gjensidige leverer boligselgerforsikring og tilbyr bygningsforsikring
• Boligkjøperforsikring leveres av Hiscox og med Sedgwick som skadebehandler, og er formidlet gjennom Gjensidige.
• BN bank tilbyr finansieringsløsninger
• Vår avdeling Krogsveen Pluss tilbyr flyttetjenester som utvask, visningsvask, lager, tømming og transport av flyttelass, i tillegg til å formidle kontakt med Flip for overflateoppussing.
• I forbindelse med overtagelse av eiendommen tilbyr Overo avtale om strøm, alarm og bredbånd.
• Krogsveen er, sammen med øvrige bransjeaktører, medeier i den digitale annonseringsplattformen Hjem som eies av Bomega AS.
Opplysninger om oppdraget
Oppdragsnummer 20-0105/25
Eiendomsmegler Krogsveen AS, avd. Drammen
Nedre Storgate 16, 3015, DRAMMEN
950 007 613
Oppdragets KR-kode KR20.25105
Dato
Sist oppdatert: 08. mai 2026 kl. 10:52
Dokumenter
Dokumenter
PDF – 1002 KB
PDF – 4 MB
PDF – 168 KB
PDF – 690 KB
PDF – 449 KB
PDF – 312 KB
PDF – 29 KB
PDF – 127 KB
PDF – 392 KB
Område
Legg til steder som er viktige for deg
Visning
For å delta på visning, ber vi om at du melder deg på. Da sikrer vi at du får nødvendig informasjon og at det er satt av tilstrekkelig med tid. Kontakt megler dersom annet tidspunkt ønskes. Husk å lese salgsoppgaven før visningen, så du stiller forberedt.
Ønsker du kun å bli holdt orientert, kan du fra eiendommens hjemmeside få varsel om solgtpris, eller kontakte megler.
Lurer du på noe?
Unngå doble boligrenter
Vi tilbyr gunstig forsikring.
Vurderer du utleie?
Få et tilbud fra Utleie KrogsveenHva koster lånet?
Sjekk estimert lånekostnadVil du varsles om lignende boliger?
Ved å lagre ditt boligsøk hos oss får du beskjed når vi har en bolig som ligner denne, før den legges ut på markedet!

























