Sørskogen 48
6 690 000 kr
133 m²
3 soverom
Komplett salgsoppgave

Konnerud
Innbydende og romslig enebolig med alt på ett plan. Solrik og flott uteplass. Balansert ventilasjon fra 2022. Garasje.
Prisantydning
6 690 000 krOmkostninger
188 240 krTotalpris
6 878 240 kr
Pris
Bruksareal
173 m²BRA-I (internt bruksareal)
133 m²BRA-E (eksternt bruksareal)
40 m²TBA (terrasse-balkongareal)
96 m²
Areal
Etasje
1Byggeår
1985Soverom
3 soveromBad
1 badTomteareal
573 m² (eiet)Type
Enebolig - FrittliggendeEierform
EietFasiliteter
Garasje/P-plass og Balkong/TerrasseÅrlig velavgift
600 kr
Nøkkelinfo
Unngå doble boligrenter
Vi tilbyr gunstig forsikring.
Vurderer du utleie?
Få et tilbud fra Utleie KrogsveenHva koster lånet?
Sjekk estimert lånekostnadBeskrivelse
Kort om eiendommen
Innhold og byggemåte
Innhold og byggemåte
Eiendommen
Sørskogen 48, 3032 DRAMMEN
Kommunenummer 3301, gårdsnummer 64, bruksnummer 225
Innhold
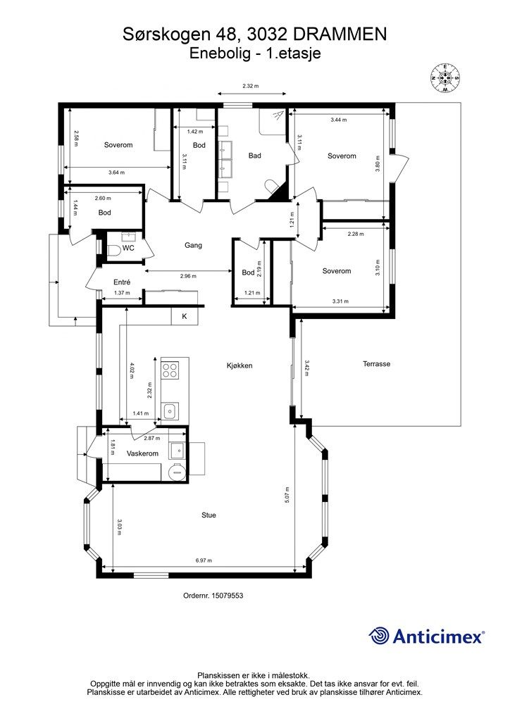
Totalt bruksareal BRA: 173 kvm.
BRA-i:
1. etasje:
133 kvm: Entré, toalettrom, gang, to boder, tre soverom, bad, kjøkken, vaskerom og stue.
BRA-e:
1. etasje:
4 kvm: Bod.
Garasje - 1. etasje:
27 kvm: Garasje og bod.
Drivhus - 1. etasje:
9 kvm: Drivhus.
TBA (terrasse- og balkongareal)
1. etasje:
96 kvm: Terrasse.
Drivhus har et totalt gulvareal (GUA) på 11,2 kvm, men grunnet skråtak/lav takhøyde er kun 9 kvm av arealet måleverdig som bruksareal. De delene av arealene som har lav himlingshøyde (ALH) utgjør 2,2 kvm.
De oppgitte arealer er hentet fra rapport med befaringsdato 16.03.2026 utført av Anticimex AS v/Bent Gunnerud. Arealene er beregnet og rom er definert etter dagens faktiske bruk, uavhengig av hva som er godkjent av bygningsmyndighetene.
Byggemåte
Selger har innhentet en tilstandsrapport av boligen/eiendommen. Dersom det er registrert avvik, er disse klassifisert med tilstandsgrader (TGIU, TG2 og/eller TG3). Kjøper overtar ansvaret for de opplysninger som fremkommer av salgsdokumentasjonen, og kan ikke gjøre gjeldende som mangel noe som burde vært kjent eller som ikke kan anses å ha betydning for avtalen.
Bygningen er i henhold til tilstandsrapporten en enebolig på ett plan, oppført i 1985. Byggemåten er trekonstruksjon på en grunnmur av lettklinkerblokker og mur-/betongkonstruksjon, med gulv mot grunn av betong konstruert som støpt plate på mark. Etasjeskillere er av trekonstruksjoner. Yttervegger er i trekonstruksjon med utvendig stående trekledning. Yttertaket har en valmtaksform av trekonstruksjon, tekket med takstein og med undertak av duk. Taket vurderes å være lagt om etter byggeår, men er fra ukjent årstall. Boligen har vinduer og terrasse-/balkongdører med karmer/rammer av tre med to- og tre-lags glass fra 2016, 2021, 2025, byggeår og ukjente årstall. Ytterdøren har profilert flate og glassfelt, og de innvendige dørene er profilerte.
Garasje bygget i 1989. Garasjen er i trekonstruksjon med gulv mot grunn av betong. Yttervegger med utvendig stående trekledning. Yttertak med valmtaksform belagt med takstein. Garasjeport i metall med elektrisk portåpner.
Drivhus bygget i 2022. Drivhuset er en metall- og glasskonstruksjon.
Elektrisk anlegg: Sikringsskap er plassert i bod ved inngangspartiet, og anlegget er sikret med automatsikringer. Eier informerer om at det har vært problemer med varmegang i varmefolie i stue, men at dette er utbedret av fagkyndige. Det mangler samsvarserklæring for arbeider utført i sikringskap og på soverom. Varmtvannsbereder er koblet med stikkontakt. Det anbefales at beredere med effekt over 1500W kobles med fast tilkobling i stedet for stikkontakt, for å redusere risikoen for varmgang.
Branntekniske forhold: Boligen har røykvarslere. Slukkeutstyr er nytt i 2026 (nytt etter befaring av takstmann).
Det gjøres spesielt oppmerksom på at følgende bygningsdeler er gitt Tilstandsgrad 3 (TG3) — Store eller alvorlige avvik:
Våtrom - Vaskerom
- Helhetsvurdering: Det er valgt å vurdere våtrommet (og tilhørende bygningsdeler) med en samlet helhetsvurdering. Følgende hovedmomenter er lagt til grunn for vurderingen: Gulvet er tilnærmet flatt og har ikke tilstrekkelig fall mot sluk. Vanntett sjikt har en alder som erfaringsmessig tilsier at fremtidig funksjon er svært usikker (gjelder for produkter/løsninger etablert før år 2000). Det er en åpning i gulvbelegg ved ytterdør. Sluk under innredning er ikke lett tilgjengelig for rengjøring. Våtrommet har kun naturlig ventilasjon. På grunn av våtrommets utforming og våtsonens plassering mot peis er det ikke praktisk mulig å gjennomføre hulltaking og fuktmåling i et område som regelmessig utsettes for bruksvann. Det ble utført et overflatesøk med fuktindikator på utvalgte steder på gulv, og instrumentet viser utslag som ikke helt kan utelukke fukt under belegg. Belegg har løsnet fra underlag ved vask. Det foreligger lite informasjon om arbeidet som er gjort i våtrommet.
Følgende bygningsdeler er gitt Tilstandsgrad 2 (TG2) — Avvik som kan kreve tiltak:
Våtrom - Bad
- Fallforhold rundt sluk: Gulvet er tilnærmet flatt og har ikke tilstrekkelig fall mot sluk. Lokalfallet i sluksonen er mindre enn hva som anbefales.
- Vanntett sjikt / membran i gulv og vegger: Vanntett sjikt har en alder som tilsier at fremtidig funksjon er usikker. Bygningsdelen er skjult, så den faktiske tilstanden og dagens tettefunksjon er ukjent. Det registreres åpning rundt avløpsrøret til servanten og tettesjiktet i veggen.
- Tettesjiktets tilslutning til sluk: Selv om våtrommet er oppgradert, vurderes det til at sluket ikke skiftet. Grunnet plassering av dusjkabinett er det ikke mulig å foreta en fullgod undersøkelse av sluket.
- Avløp (inkl. sluk): Sluk har en alder som tilsier at fremtidig funksjon er usikker. Bygningsdelen er skjult, så den faktiske tilstanden er ukjent.
- Slukets tilkomstmulighet for rengjøring: Sluk under dusjkabinett er ikke lett tilgjengelig for rengjøring.
- Sanitærutstyr og innredning: Drenering fra innebygget toalettsisterne er ikke registrert.
- Fagmessig utførelse: Det foreligger lite informasjon om arbeidet som er gjort i våtrommet. Manglende dokumentasjon på utførte arbeider som membransystem og utførelser.
Toalettrom
- Vannrør: Det bør etableres automatisk lekkasjestopper for å begrense eventuelle lekkasjer fra vanninstallasjoner.
- Sanitærutstyr og innredning: Det er ikke registrert dreneringsspalte eller lignende åpninger fra den innebygde toalettsisternen.
Tekniske anlegg
- Vannrør (utover det som nevnes under andre sjekkpunkter): Boligens vannrør av kobber (og tilhørende komponenter) har en alder som tilsier at fremtidig funksjon er usikker. Bygningsdelen er skjult, så den faktiske tilstanden er ukjent.
- Innvendig stakeluke: Innvendig stakeluke er ikke etablert.
- Avløprør (utover det som nevnes under andre sjekkpunkter): Boligens avløpsrør (og tilhørende komponenter) har en alder som tilsier at fremtidig funksjon er usikker. Bygningsdelen er skjult, så den faktiske tilstanden er ukjent.
Loft - uinnredet / kaldt loft
- Inspeksjonsmulighet: Deler av kaldtloftet lot seg ikke undersøke grunnet redusert tilkomstmulighet.
- Synlige overflater (taktro, vegger, gulv, o.l): Det registreres fuktmerker i undertak. Fuktinnholdet i treverket kunne ikke måles grunnet redusert tilkomstmulighet.
- Ventilasjon, oppbygning og materialbruk: Luftespaltene mellom taksperrene er i hovedsak tettet med isolasjon, noe som reduserer luftingen.
Yttervegger inkl. fasader
- Overflatebehandling: Det er stedvis slitasje på ytterkledningens overflatebehandling.
- Ytterkledning (fasademateriale, vannbord, utvendig listverk, o.l.): Ytterkledningens materialer viser stedvise tegn til begynnende nedbrytning og elde. Vurderingen er begrenset til det som er synlig fra bakkenivå, med den begrensing dette innebærer. Underkant kledning og har kort avstand til trapp, vannbrett/beslag ol. Søyle ved inngangsparti står nær skifer.
- Lufting av ytterkledning: Det er vurdert å være begrenset spalte for lufting og drenering bak ytterkledningen.
Vinduer og ytterdører
- Vinduer og omramming: Enkelte vinduer har en alder der fremtidig funksjon vurderes som usikker. Det gjøres oppmerksom på at enkelte vinduer i boligen er skiftet i nyere tid, og at ovennevnte forhold derfor ikke gjelder alle vinduer.
Yttertak
- Inspeksjonsmulighet: Vurderingene av yttertaket er kun gjort fra toppen av en stige og bakkeplan med den begrensningen dette innebærer.
- Takkonstruksjon: Ventilasjonen av takkonstruksjonen vurderes til å være utilstrekkelig (må ses i sammenheng med observasjoner gjort fra innsiden).
- Undertak (inkluderer sløyfer, lekter og innfestninger): Se kommentarer i punktet over og under punktet "Loft uinnredet / kaldt loft".
- Skorsteiner (over tak): Fotbeslaget rundt skorsteinen viser tegn til slitasje og elde.
Grunnmur, fundament
- Grunnmur og fundament: Avskalling av murpuss observeres på grunnmuren mot terreng. Store deler av grunnmur er dekket av terrasse, trapper ol. og ikke tilgjengelig for undersøkelser.
Drenering
- Helhetsvurdering: Det er valgt å vurdere dreneringen med en samlet helhetsvurdering. Følgende hovedmomenter er lagt til grunn for vurderingen: Drenering har en alder som tilsier at fremtidig funksjon er usikker. Stedvis lite terrengfall vekk fra grunnmuren. Det vurderes at grunnmuren ikke er beskyttet med utvendig fuktsperre.
Stikkledninger og tanker
- Utvendige vann- og avløpsledninger: Utvendige vann- og avløpsledninger har en alder som tilsier at fremtidig funksjon er usikker. Bygningsdelen er skjult, så den faktiske tilstanden er ukjent.
Andre byggverk (garasje)
- Innvendige forhold: Innvendige flater viser tegn til slitasje og elde. Gulv har et fall som leder vann inn i garasjen. Selger har etablert to dreneringshull og opplyser at dette fungerer med tanke på bortledning av smeltevann.
Følgende bygningsdeler er ikke undersøkt (TGIU):
Tekniske anlegg
- Gassinstallasjoner (forenklet vurdering): Ikke undersøkt på befaringstidspunktet. Krever spisskompetanse. Ifølge huseier er det en pågående serviceavtale på anlegget, og det har blitt gjennomført årlig kontroll. Dokumentasjon er ikke fremlagt.
Terrasse / platting
- Konstruksjon og fundamenter: Fundamentene er skjult under terrasse var ikke tilgjengelige for undersøkelser. Noe som gjorde at utførelsen/tilstanden ikke lot seg kontrollere.
Tilstandsrapporten er inntatt i salgsoppgaven. Rapporten inneholder informasjon om eventuelle avvik og konsekvensen av disse. Dersom det er registrert avvik med TG3, har den bygningssakkyndige i tillegg gitt et anslag på hva det vil koste å utbedre disse. Ettersom kjøper regnes å være kjent med forhold som tydelig fremgår av tilstandsrapporten, oppfordres du til å sette deg grundig inn i rapporten i sin helhet.
Selger beskriver også i egenerklæringsskjema:
Det er utført arbeid på bad i 2021, hvor baderomsinnredning ble skiftet og det ble satt inn dusjkabinett. I 2021 ble det byttet to verandadører, ytterdør med vindusfelt, ytterdør til sportsbod og dør til garasjebod. Høsten 2025 ble det byttet trelags glass i fire vinduer i stuen og ett i garasjen. Det ble også montert ny automatisk garasjeport i 2021. I 2024 ble det boret to hull for drenering av garasjegulvet. Selger opplyser at varmefolien under stuegulvet ble utbedret da parketten ble skiftet, etter at det ble oppdaget svimerker på grunn av feilkobling. Det er utført diverse arbeid på det elektriske anlegget i 2021 , inkludert nytt sikringsskap, jording, reparasjon av gasspeis, montering av balansert ventilasjon, og bytte til LED-lys og dimmere. I 2022 ble det installert balansert ventilasjon i hele boligen, og avløp fra driftsenheten ble koblet til avløpet for badet. Gasspeisens styringsenhet og gasstilførsel er utbedret. Terrassearealet er betydelig utvidet, og det er satt opp et drivhus.
Standard
Løsøre og tilbehør
Hvitevarer på kjøkkenet medfølger i handelen, dette gjelder integrert oppvaskmaskin, integrert platetopp, integrert mikrobølgeovn, integrert stekeovn og frittstående side-by-side kjøleskap.
Videre vises det til liste fra Norges Eiendomsmeglerforbund angående løsøre og tilbehør. Produkter og installasjoner som medfølger overdras uten noen form for garantier, utover eventuell gjenværende leverandørgaranti.
Oppvarming
Boligen har balansert ventilasjon med varmegjenvinning. Elektrisk oppvarming med varmefolie i stue samt gulvvarme på kjøkken, bad, toalettrom og entré. Boligen har gasspeis i stue med utvendig skap for gassbeholdere.
Dersom beboelsesrom ikke har vegg- eller fastmonterte varmekilder ved visning, følger dette heller ikke med.
Ferdigattest/brukstillatelse
Det foreligger ferdigattest for oppføring av enebolig datert 19.04.1988. I tillegg er det tilhørende godkjente byggetegninger datert 06.06.1985. Opprinnelig byggemeldt luftebalkong er fjernet.
Det ble utstedt godkjente byggetegninger for oppføring av carport med tilliggende utvendig bod datert 01.11.985, senere ble dette bygget omgjort til garasje (inkl. tilliggende utvendig bod) med godkjente byggetegninger datert 29.05.1987. Tiltaket ble ikke ferdigstilt med ferdigattest.
Det gjøres oppmerksom at det ikke lenger utstedes ferdigattest på tiltak det er søkt om før 1998 jf. plan- og bygningsloven §21-10. Kommunen vil ikke kreve ferdigattest for disse tiltakene og vil avvise eventuelle søknader. Bestemmelsen innebærer ikke at tiltak med manglende søknad blir lovlige, men at man ikke trenger å avslutte gamle byggesaker. Normalt sett kreves ferdigattest for alle søknadspliktige tiltak som gjøres etter plan - og bygningsloven.
Det er oppført drivhus (i 2022), terrasse og gjerde utenfor regulert byggegrense. Megler anfører at det ikke foreligger dokumentasjon på dispensasjon/søknad til kommunen vedrørende de utførte tiltakene. Konsekvensene av videre bruk av de ikke omsøkte tiltakene vil kunne medføre at kommunen starter ulovlighetsoppfølging. Dette kan innebære pålegg om opphør av bruk og retting, tvangsmulkt og/eller overtredelsesgebyr. Kjøper overtar risiko og ansvaret for eventuelle pålegg fra kommunen samt kostnader forbundet med dette.
Kjøper overtar eiendommen slik den framstår på visning.
Tinglyste heftelser og rettigheter
Eiendommen overdras fri for pengeheftelser.
Kommunen har legalpant i eiendommen for forfalte krav på eiendomsskatt og kommunale avgifter/gebyrer.
Dagboknummer: 6344
Tinglysningsdato: 24.06.1988
Servitutten omhandler: Eiendommen gnr. 64/bnr. 408 er en felles adkomstveg, som overdras uten vederlag. Overdragelsen skjer til eierne av gnr. 64/bnr. 225, 360, 361, 362, 363 og 364.
Eiendommen har andel i et realsameie
Dagboknummer: 913076
Andel i: Gnr. 64 og bnr. 408
Ideell andel: 1/6
Tomten til realsameiet består av felles stikkvei.
Andelen vil følge eiendommen.
Servituttene vil følge eiendommen. Kjøpers bank vil få prioritet etter ovennevnte heftelser og servitutter.
Eventuell adgang til utleie
Eiendommen har ikke separat utleieenhet. Det vil normalt være anledning til utleie av hele eiendommen eller enkeltrom, såfremt utleiearealet er bygningsmessig godkjent for varig opphold og har forsvarlige radonnivåer.
Energimerking
Komplett energiattest inkludert oppvarmingskarakter fås ved henvendelse til megler eller lastes ned fra www.krogsveen.no.
Beliggenhet og tomteforhold
Beliggenhet og tomteforhold
Beliggenhet
Eiendommen ligger i et attraktivt og barnevennlig område. Beliggende i en privat blindvei, uten gjennomgangstrafikk og generelt svært lite trafikk. Kort gangavstand til felles lekeplass (eies av velforeningen). Nærhet til flotte markaområder med merkede stier, lysløyper og turveier. Konnerud har et godt utbygget nett av gang- og sykkelstier i umiddelbar nærhet av eiendommen. Ca. 5 minutters kjøring til Konnerud sentrum, et godt utvalg av servicetilbud og Konnerudsenteret, som er bydelens naturlige samlingssted for handel.
Konnerud har en rekke fritids- og sportstilbud, med blant annet idrettsanlegg og flotte turterreng innover marka. Gode fritidstilbud både sommer og vinter. Drammens største kunstgressanlegg for fotball, lysløype fra Konnerud stadion, Stordammen med fine bademuligheter og Skoger golfbane er noe av det Konnerud har å tilby. Konnerud IL er et av Norges største idrettslag og er aktive i flere idretter med tilhørende idrettsanlegg. Flott langrennsarena hvor det har vært World Cup arrangement med tilhørende standard, med bla. kunstsnø og milevis med skiløyper.
Kort gangavstand til bussholdeplass langs Jarlsbergveien, bussforbindelser med avganger til Drammen sentrum, se www.brakar.no for rutetider. Det er ca. 15 minutters kjøring fra eiendommen til Drammen togstasjon, hvor toget tar deg til Oslo på ca. 35 minutter, se www.vy.no for avganger. Fra Drammen togstasjon er det generelt god kommunikasjon mot Kongsberg, Oslo og Sandefjord.
Adkomst
Det vil bli skiltet med Krogsveen visningsskilt ved fellesvisninger. Se kart i nettannonse eller Google Maps for nærmere veibeskrivelse. Velkommen til visning!
Barnehager, skoler og fritid
Godt sammensatt tilbud av private og offentlige barnehager.
Barnehager: Jordbrekkskogen barnehage (0,6 km), Espira Gåserud barnehage (1,7 km), Svensedammen barnehage (1,7 km).
Skoler: Vestbygda barneskole (1,2 km) og Svensedammen ungdomsskole (1,8 km).
Drammen kommune har tre private barne- og ungdomsskoler, Drammen Realfagsskole Heltberg, Norlights Montessoriskole Drammen og Rosendal skole (Mjøndalen).
Det ligger flere videregående skoler i Drammen og Lier, samt Universitetet i Sørøst-Norge som har campus på Papirbredden i Drammen, for mer informasjon se www.usn.no.
Dersom skole- og barnehagetilbud er av betydning for kjøpet, ber vi om at det rettes en særskilt henvendelse til kommunen for oppdatert informasjon.
Beskrivelse av tomt
Eiertomt på 573,3 kvm. Tomten er tilnærmet flat og er pent opparbeidet med plenarealer samt diverse beplantninger. Gårdsplassen er belagt med belegningsstein, i tillegg er det et lite område som er gruset.
Del av opparbeidet hageareal, terrasse, gjerde, drivhus og bed/skråning mot sydvendt gangvei eies av gnr. 64/bnr. 45 (privateid), se kartutsnitt for tomtegrenser. Kjøper påtar seg risikoen for fortsatt bruk og fremtidig bruk samt eventuelle pålegg fra grunneier.
Parkering
Parkering i frittstående garasje med elektrisk portåpner (garasjeport skiftet i 2021).
I tillegg er det biloppstillingsplasser på eiendommens gårdsplass, som er belagt med belegningsstein.
Vei, vann og avløp
Eiendommen har adkomst via privat vei med felles vedlikeholdsansvar.
Stikkvei fra hovedveien i Sørskogen eies av Sørskogen Velforening, videre har eiendommen adkomst fra felles stikkvei (eies i fellesskap av realsameie - gnr. 64/bnr. 408).
Eiendommen er tilknyttet kommunalt ledningsnett via private stikkledninger. Eier er selv ansvarlig for private stikkledninger til boligen.
Regulerings-og arealplaner
Eiendommen er regulert til konsentrert småhusbebyggelse (474,1 m²), offentlig friområde (99,08 m²) og felles avkjørsel (0,06 m²) i henhold til reguleringsplan «Reguleringsplan for Jordbrekkskogen, Felt E», datert 29.11.1984, med tilhørende reguleringsbestemmelser.
Eiendommen omfattes av «Kommuneplanens arealdel for Drammen kommune 2025-2037», vedtatt 18.06.2025. Hele eiendommen er i planen avsatt til boligbebyggelse med krav til vannforsyning, avløp, vei og annen transport.
Iht. reguleringsplanen er deler av garasje, liten del av boligen, terrasse, drivhus og gjerde oppført utenfor den regulerte byggegrensen. En byggegrense er en grense som definerer hvor man kan bygge på en tomt. Det gjøres oppmerksom på at det ikke kan forventes fremtidig etablering/oppføring utenfor byggegrensen.
Det foreligger en igangsatt planlegging av ny kommuneplan for Drammen kommune 2027-2039, se kommunens hjemmeside for mer info.
Utsnitt av plan med tilhørende bestemmelser kan fås ved henvendelse til megler.
Økonomi
Økonomi
Kommunale utgifter
Kommunale avgifter (vann og avløp): kr 14.410,- pr. år (3 terminer), fakturert på eiendommen i 2025. Avgiftene vil variere etter forbruket i boligen.
Renovasjonskostnader: kr 5.201,- pr. år (2 terminer). Type renovasjonsordning: Standard renovasjon, 2026.
Det opplyses om at Drammen kommune har varslet om en vesentlig fremtidig økning av kommunale avgifter.
Eiendommen betaler for snøbrøyting av felles adkomstvei, kostnaden fordeles på 4 eiendommer. Andel av kostnaden er på ca. kr 2.500,- pr. år.
Eiendommen er tilknyttet felles avløpskum (i felles adkomstvei), det må påregnes eventuelle kostnader til vedlikehold (trenger ettersyn ca. hvert 10. år).
Det må påregnes kostnader til strøm og nettleie, dette vil variere avhengig av strøm-/nettselskap. Nåværende eier har et strømforbruk på ca. 19.383 kWh pr. år.
For denne boligen er det inngått avtale om Norgespris i stedet for strømstøtte, avtalen på kr 50 øre inkl. mva følger eiendommen og har en bindingstid frem til 31.12.2026. Nettleie, avgifter og påslag fra kraftleverandøren kommer i tillegg. Les mer om Norgespris her: https://www.regjeringen.no/no/aktuelt/legg-fram-lov-om-norgespris-pa-straum-og-fjernvarme/id3102642/
Boligen har en årlig forsikringspremie via Tryg på ca. kr 12.000,- pr. år.
Boligen er tilknyttet Viken Fiber Altibox som leverandør av fiber og har kostet ca. kr 1.200,- pr. mnd avhengig av hastighet på nettet.
Det er en pågående serviceavtale på ventilasjonsanlegget, ny eier må påregne videreføring av avtalen.
Det må påregnes kostnader til innboforsikring.
Ovenstående er basert på nåværende eier/husstands senere års forbruk/utgifter. Dette vil variere avhengig av antall beboere, ønsket innetemperatur, egne fordelsavtaler, kanalvalg, hastighet på bredbånd m.m.
Formuesverdi
Formuesverdi for 2024 var kr 1 254 867,- ifølge Skatteetaten. Beløpet forutsetter at eier bor fast i boligen (primærbolig).
Ved eventuell øvrig bruk av eiendommen (f.eks. fritidsbolig, pendlerbolig, utleieobjekt) var formuesverdien for 2024 kr 5 019 466,-.
Fra 2026 har Stortinget vedtatt en oppdatert modell for beregning av formuesverdi for primærbolig, så avvik kan forekomme.
For mer informasjon se skatteetaten.no.
Omkostninger
6 690 000,00 Prisantydning
Omkostninger
167 250,00 Dokumentavgift til staten (2,5% av kjøpesum)
19 900,00 Gjensidige Boligkjøperpakke* (valgfritt)
545,00 Tinglysing panterettsdokument
545,00 Tinglysing skjøte
--------------------------------------------------------
168 340,00 (Omkostninger totalt (uten Gjensidige Boligkjøperpakke))
188 240,00 Omkostninger totalt (med Gjensidige Boligkjøperpakke))
--------------------------------------------------------
6 858 340,00 Totalpris inkl. omkostninger
6 878 240,00 Totalpris inkl. omkostninger (med Gjensidige Boligkjøperpakke)
--------------------------------------------------------
Totalpris inkl. omkostninger forutsetter kjøp til prisantydning.
Det tas forbehold om endringer i avgifter og gebyrer.
Tilbud om lånefinansiering
Megler formidler gjerne kontakt med rådgiver hos vår samarbeidspartner BN Bank. De har konkurransedyktige betingelser samt rask og løsningsorientert behandling av din lånesøknad. Krogsveen mottar et honorar dersom lån opprettes.
Betalingsbetingelser
Kjøpesum inkludert omkostninger, samt pantedokument tilknyttet eventuelt lån, skal være disponibelt hos megler 2 virkedager før overtagelsen.
Annen viktig informasjon
Annen viktig informasjon
Eier
Eivind Rossen og Anne Helene Gulseth
Konsesjon
Da realsameiets eiendom er over 2 mål er den i utgangspunktet underlagt konsesjonslovgivning, og kjøper må ved kontrakt undertegne egenerklæring om konsesjonsfrihet. Denne erklæringen må godkjennes fra kommunen før eiendommen kan overskjøtes til kjøper.
Overtakelse
Etter nærmere avtale.
Velforening
Boligen er tilknyttet Sørskogen Velforening.
Dette koster ca. kr 600,- pr. år (2025).
Boligselgerforsikring
Selger har i forbindelse med salget tegnet boligselgerforsikring levert av Gjensidige.
Boligselgerforsikringen dekker selgers ansvar etter avhendingsloven begrenset oppad til kr 14 millioner. Dersom kjøper oppdager forhold ved eiendommen som hen mener utgjør en mangel ved eiendommen, vil Gjensidige behandle reklamasjonen på vegne av selger. Forsikringsvilkår kan fås ved henvendelse til megler.
Vedlagt salgsoppgaven følger selgers egenerklæringsskjema og tilstandsrapport. Interessenter må sette seg inn i dokumentene før bud inngis.
Boligkjøperforsikring
Innen kontraktsmøtet må kjøper ta stilling til om det ønskes å bestille Boligkjøperpakken gjennom Gjensidige. I denne gunstige pakken er boligen ferdig forsikret og inkluderer rettshjelpsforsikring, også kalt Boligkjøperforsikring. Rettshjelpsforsikring gir trygghet og tilgang på profesjonell juridisk hjelp dersom det oppdages uventede feil eller mangler det første året etter overtagelse. Forsikringsselskapet behandler i så fall ethvert mangelskrav kjøper måtte ha overfor selger.
Boligkjøperpakken inkluderer bygningsforsikring for hus og hytte, innboforsikring, flytteforsikring og dobbel rentedekning - i situasjoner hvor kjøper ikke får solgt nåværende primærbolig.
Kjøper mottar ingen særskilt faktura for Boligkjøperpakken da kostnaden det første året legges til kjøpesummen for boligen. Det gjøres oppmerksom på Krogsveen mottar et honorar for denne formidlingen.
Produktark for Boligkjøperpakken ligger vedlagt i salgsoppgaven.
Dersom ikke boligkjøperpakke ønskes kan kun rettshjelpsforsikring, også kalt boligkjøperforsikring, tegnes særskilt via megler. Rettshjelpsforsikringen varer i 5 år fra overtagelse og leveres gjennom Gjensidige. Ta kontakt med megler for ytterligere informasjon.
Selskap og privatpersoner som driver med kjøp/salg/utvikling som ledd i egen næringsvirksomhet kan ikke tegne boligkjøperpakke eller rettshjelpsforsikring.
Budgivning
Forbrukerinformasjon om budgivning er vedlagt denne salgsoppgaven og er også på vår hjemmeside Krogsveen.no. Alle bud og budforhøyelser må inngis skriftlig. I tillegg må legitimasjon være fremlagt sammen med signatur fra budgiver.
Vi oppfordrer til å gi bud elektronisk via GI BUD-knappen på eiendommens hjemmeside på Krogsveen.no. Da vil samtlige vilkår bli oppfylt.
Eventuelle forhøyelser eller endringer av budet kan bekreftes pr SMS eller på e-post. Vi oppfordrer alltid til å kontakte megler pr. telefon i tillegg da forsinkelser i SMS og e-post kan forekomme.
For at budene skal kunne bli behandlet og videreformidlet skriftlig til alle involverte parter, må alle bud ha en tilstrekkelig lang akseptfrist, jf. eiendomsmeglingsforskriften § 6-3.
Selger må også skriftlig akseptere budet før aksept kan formidles til budgiver. Akseptfrist bør derfor være på minimum 30 minutter, og budforhøyelser må derfor skje i god tid før fristens utløp.
Bud i forbrukerforhold kan uansett ikke settes med kortere frist enn kl. 12.00 første virkedag etter siste annonserte visning. I tillegg kan ikke budet ha forbehold om at det skal holdes hemmelig ovenfor øvrige interessenter. Megler har iht lov om eiendomsmegling ikke anledning til å videreformidle disse budene, og de vil dermed heller ikke bli journalført.
Etter at eiendommen er solgt vil kjøper og selger få tilsendt budjournal. Øvrige budgivere kan få utlevert kopi av budjournalen i anonymisert form.
Hvitvaskingsreglene
I henhold til lov om hvitvasking og terrorfinansiering har megler plikt til å gjennomføre kontrolltiltak overfor kunder, herunder fullmektiger. Dette innebærer bl.a. å bekrefte kunders og reelle rettighetshaveres identitet på bakgrunn av fremvist gyldig legitimasjon eller på annen godkjent måte, samt å innhente opplysninger om kundeforholdets formål og tilsiktede art.
Dersom slike kundetiltak ikke kan gjennomføres, kan megler ikke etablere kundeforholdet eller utføre transaksjonen.
Hvis kjøper ikke bidrar til gjennomføring av kundekontrollen og dette fører til at transaksjonen blir forsinket eller ikke kan gjennomføres, vil dette ansees som mislighold av avtalen og gi selger rettigheter etter avhendingslova kapittel 5. I tilfeller der selger ikke bidrar til gjennomføring av løpende kundekontroll underveis i oppdraget, er det selger som misligholder sine forpliktelser etter avtalen og gi kjøper rettigheter etter avhendingslovens kapittel 4. Partene er selv ansvarlige for eventuelle kostnader og ansvar dette kan medføre. Eiendomsmegleren eller eiendomsmeglingsforetaket kan ikke holdes ansvarlig for de konsekvenser dette vil kunne få for partene eller andre som har interesser i eiendomshandelen.
Kjøper oppfordres til å innbetale kjøpesummen som ikke kommer fra låneinstitusjon i én samlet innbetaling fra egen konto i norsk bank. Megler har plikt til å melde fra til Økokrim om eiendomshandler som fremstår som mistenkelige. Melding sendes Økokrim uten at partene varsles.
Personopplysningsloven
I henhold til personopplysningsloven gjør vi oppmerksom på at interessenter kan bli registrert for videre oppfølging.
Lovanvendelse
Generelle bestemmelser
Salgsoppgaven er basert på de opplysningene selger har gitt til megler, den bygningssakyndiges tilstandsrapport, samt opplysninger innhentet fra kommunen, Kartverket og andre tilgjengelige kilder. Det er viktig at kjøper setter seg grundig inn i alle salgsdokumentene, herunder salgsoppgave, tilstandsrapport og selgers egenerklæring. Kjøper anses kjent med forhold som er tydelig beskrevet i salgsdokumentene, og slike forhold kan ikke påberopes som mangler. Dette gjelder uavhengig av om kjøper har lest dokumentene. Alle interessenter oppfordres til å undersøke eiendommen nøye, gjerne sammen med fagkyndig før bud inngis. Kjøper som velger å kjøpe usett kan ikke gjøre gjeldende som mangel noe han burde blitt kjent med ved undersøkelsen.
Dersom det er behov for avklaringer, anbefaler vi at interessenter rådfører seg med eiendomsmegler eller egne rådgivere før det legges inn bud.
En bolig som har blitt brukt i en viss tid, har vanligvis blitt utsatt for slitasje og skader kan ha oppstått. Slik bruksslitasje må kjøper regne med, og det kan avdekkes enkelte forhold etter overtakelse som nødvendiggjør utbedringer. Normal slitasje og skader som nødvendiggjør utbedring, er innenfor hva kjøper må forvente og vil ikke utgjøre en mangel.
Kjøper og selgers rettigheter og plikter reguleres av avtalen mellom partene, samt informasjonen som har vært tilgjengelig for kjøperen i forbindelse med handelen. Avtalen utfylles av avhendingsloven, og det gjelder ulike avtalevilkår avhengig av om kjøper er forbrukerkjøper eller ikke. Dette er nærmere beskrevet nedenfor.
På grunn av ulike avtalevilkår kan selger vurdere bud fra en som ikke er forbruker, ulikt fra en forbrukers bud. Dersom kjøper ikke er forbruker, er selger sitt mulige mangelsansvar begrenset fordi eiendommen selges "som den er". Selger kan ikke ta «som den er»- forbehold overfor en forbrukerkjøper. Selv et lavere bud fra en som ikke er forbruker kan foretrekkes fordi begrensningen i mulig mangelsansvar kan ha egenverdi for selger. Selger står fritt til å forkaste eller akseptere ethvert bud, og er for eksempel ikke forpliktet til å akseptere høyeste bud.
Budgiver skal i budskjema avgi egenerklæring om budgiver er forbruker eller næringsdrivende/ person som hovedsakelig handler som ledd i næringsvirksomhet. Budgivere får informasjon dersom andre bud er inngitt av en som ikke er forbruker.
Forbrukerkjøp - definisjon
Med forbrukerkjøp menes kjøp av eiendom når kjøperen er en fysisk person som ikke hovedsakelig handler som ledd i næringsvirksomhet.
Forbruker – avtalevilkår
Eiendommen har en mangel dersom den ikke er i samsvar med kravene som følger av avtalen, eller det foreligger brudd på bestemmelsene i avhendingsloven §§ 3-2 til 3-8. Hvis eiendommen ikke er i samsvar med det kjøperen må kunne forvente ut ifra alder, type og synlig tilstand, kan det være grunnlag for mangelskrav. Det samme gjelder hvis det er holdt tilbake eller gitt uriktige opplysninger om eiendommen. Dette gjelder likevel bare dersom man kan gå ut ifra at det virket inn på avtalen at opplysningen ikke ble gitt eller at mangelskravet ikke blir rettet i tide på en tydelig måte.
Boligen kan ha en mangel etter avhendingsloven § 3-3 andre ledd, dersom det er avvik mellom opplyst og faktisk innvendig areal, forutsatt at avviket er på 2% eller mer og minimum 1 kvm.
Ved beregning av et eventuelt prisavslag eller erstatning må kjøper selv dekke tap/kostnader opptil et beløp på kr 10 000 (egenandel).
Ikke-forbruker (næringsdrivende) – definisjon
Hvis kjøper er en juridisk person, eller en fysisk person som hovedsakelig handler som ledd i næringsvirksomhet, vil kjøpet ikke anses som et forbrukerkjøp.
Ikke-forbruker – avtalevilkår
Eiendommen har en mangel dersom den ikke er i samsvar med kravene som følger av avtalen.
Eiendommen selges «som den er», og selgers ansvar utover det konkret avtalte er da begrenset etter avhendingsloven § 3-9, første ledd andre setning.
Avhendingsloven § 3-3 andre ledd fravikes, og hvorvidt boligens arealsvikt utgjør en mangel vurderes etter avhendingsloven § 3-8.
Informasjon om kjøpers undersøkelsesplikt, herunder oppfordringen om å undersøke eiendommen nøye, gjelder også for kjøpere som ikke anses som forbrukere.
Det forutsettes at hjemmel overføres til kjøper. Hvis kjøper ikke ønsker hjemmelsoverføring av eiendommen, må det tas forbehold om dette i budet.
Meglers vederlag
Meglers vederlag betales av selger og er avtalt til:
Vederlag: 0,90 % av salgssummen
Minimumsprovisjon er kr 50 000,00
Vederlag:
Kontroll av hjemmel og heftelser kr 3 900,00
Kunderabatt SELGER rådgivning Inspo kr -2 750,00
Markedsføringspakke ink målstyrt digital markedsføring, trykte salgsoppgaver og rådgivningstime med stylist (verdi kr 3.000) kr 29 900,00
Oppgjør kr 8 900,00
Tilrettelegging kr 19 900,00
Visninger kr 4.000,- pr stk. En visning er inkludert. kr 0,00
Utlegg:
Innhenting av off. oppl. Drammen kommune inkl. tegninger og RFD kr 2 833,00
Tinglysing sikring kr 545,00
Andre utgifter:
Boligfotografering Dag- og Kveldsbilder kr 9 000,00
Boligstyling/rådgivning Inspo kr 2 750,00
Tilstandsrapport Enebolig - faktura til megler kr 20 625,00
Valgfritt, men anbefales: Boligselgerforsikring Gjensidige Eiet - 5.71 kr 37 686,00
Vi er opptatt av verdiskapning, og har knyttet til oss samarbeidspartnere som skal sikre våre kunder de beste produkter og tjenester;
• I forbindelse med forberedelse av salget, innhenter vi informasjon om eiendommen hovedsakelig fra vår samarbeidspartner Ambita.
• Gjensidige leverer boligselgerforsikring og tilbyr bygningsforsikring
• Boligkjøperforsikring leveres av Hiscox og med Sedgwick som skadebehandler, og er formidlet gjennom Gjensidige.
• BN bank tilbyr finansieringsløsninger
• Vår avdeling Krogsveen Pluss tilbyr flyttetjenester som utvask, visningsvask, lager, tømming og transport av flyttelass, i tillegg til å formidle kontakt med Flip for overflateoppussing.
• I forbindelse med overtagelse av eiendommen tilbyr Overo avtale om strøm, alarm og bredbånd.
• Krogsveen er, sammen med øvrige bransjeaktører, medeier i den digitale annonseringsplattformen Hjem som eies av Bomega AS.
Opplysninger om oppdraget
Oppdragsnummer 20-0041/26
Eiendomsmegler Krogsveen AS, avd. Drammen
Nedre Storgate 16, 3015, DRAMMEN
950 007 613
Oppdragets KR-kode KR20.2641
Dato
Sist oppdatert: 17. april 2026 kl. 20:40
Dokumenter
Dokumenter
PDF – 1013 KB
PDF – 4 MB
PDF – 169 KB
PDF – 4 MB
PDF – 312 KB
PDF – 29 KB
PDF – 127 KB
PDF – 392 KB
Område
Legg til steder som er viktige for deg
Visning
For å delta på visning, ber vi om at du melder deg på. Da sikrer vi at du får nødvendig informasjon og at det er satt av tilstrekkelig med tid. Kontakt megler dersom annet tidspunkt ønskes. Husk å lese salgsoppgaven før visningen, så du stiller forberedt.
Ønsker du kun å bli holdt orientert, kan du fra eiendommens hjemmeside få varsel om solgtpris, eller kontakte megler.
Lurer du på noe?
Unngå doble boligrenter
Vi tilbyr gunstig forsikring.
Vurderer du utleie?
Få et tilbud fra Utleie KrogsveenHva koster lånet?
Sjekk estimert lånekostnadVil du varsles om lignende boliger?
Ved å lagre ditt boligsøk hos oss får du beskjed når vi har en bolig som ligner denne, før den legges ut på markedet!











































