Sofienberggata 49A
5 290 000 kr
44 m²
1 soverom
Komplett salgsoppgave
Grünerløkka
Klassisk og usjenert 2R eierleilighet m/ balkong | God takhøyde & peis | Ettertraktet beliggenhet | TV/internett inkl.
Prisantydning
5 290 000 krAndel fellesgjeld
22 515 krOmkostninger
143 840 krTotalpris
5 456 355 kr
Pris
Bruksareal
51 m²BRA-I (internt bruksareal)
44 m²BRA-E (eksternt bruksareal)
7 m²TBA (terrasse-balkongareal)
3 m²
Areal
Etasje
4Byggeår
1887Soverom
1 soveromBad
1 badType
EierleilighetEierform
EierseksjonFasiliteter
Balkong/TerrasseFellesutgifter
4 112 krEnergimerke
Oransje E
Nøkkelinfo
Unngå doble boligrenter
Vi tilbyr gunstig forsikring.
Vurderer du utleie?
Få et tilbud fra Utleie KrogsveenHva koster lånet?
Sjekk estimert lånekostnadBeskrivelse
Kort om eiendommen
Innhold og byggemåte
Innhold og byggemåte
Eiendommen
Sofienberggata 49A, 0558 OSLO
Kommunenummer 301, gårdsnummer 228, bruksnummer 390, seksjonsnummer 14, ideell andel 1/1
Innhold
Totalt bruksareal BRA: 51 kvm
BRA-i:
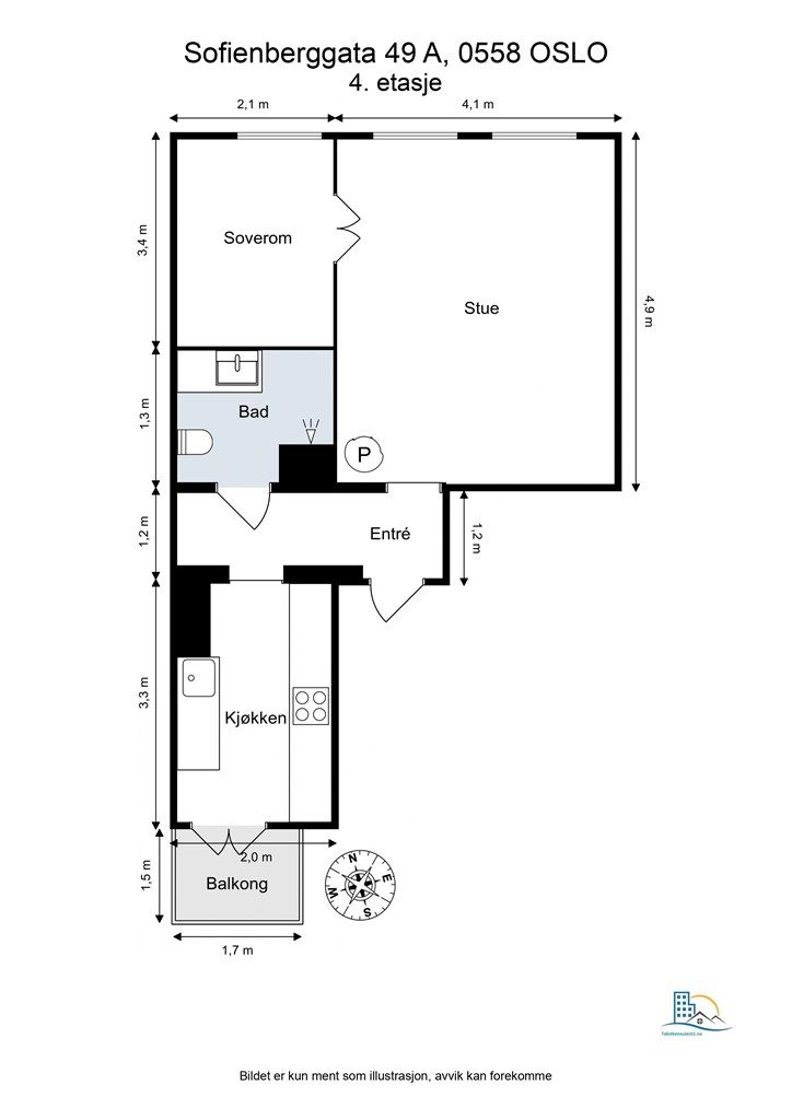
4. etasje 44 kvm: Entré, kjøkken, bad, soverom og stue.
BRA-e:
Loft 3 kvm: Loftsbod.
Kjeller 4 kvm: Kjellerbod.
Terrasse- og balkongareal (TBA):
4. etasje 3 kvm: Sydvendt balkong.
Deler av fellesarealene benyttes som boder som disponeres eksklusivt av denne seksjonen.
Vedlagte plantegninger er ikke målbare. De oppgitte arealer er hentet fra rapport med befaringsdato 22.01.2026 utført av Takstkonsulent1 AS v/Marcus Pettersen.
Det er avvik fra godkjente tegninger der badet er utvidet noe utover dagens soverom. Dagens soverom er noe smalere enn på godkjente byggetegninger. Se punkt om ferdigattest for nærmere informasjon.
Byggemåte
Selger har fått utarbeidet en tilstandsrapport, dvs. en teknisk gjennomgang av boligen hvor eventuelle avvik, risiko for kjøper og prisoverslag for hva som bør gjøres av oppgradering, er skissert. Se særskilt TGIU (tilstandsgrad ikke undersøkt), samt TG2 og TG3 som viser hva som er boligens normale slitasje, alder og type, eller som bør/må utbedres. Rapporten og selgers egenerklæring er en del av salgsoppgaven og må leses nøye før bud inngis. Kjøper overtar ansvaret for de opplysninger som fremkommer av salgsdokumentasjonen, og kan ikke gjøre gjeldende som mangel noe som burde vært kjent eller som ikke kan anses å ha betydning for avtalen.
Bygningen er iht. tilstandsrapport en bygård bygget i 1887. Bygningen er antatt fundamentert med granitt/naturstein/tegl til stedlige masser, med grunnmur av naturstein/tegl. Yttervegger er oppført med murverk med pussede og malte fasader, og etasjeskillere er av trebjelkelag, antatt isolert med stubbloftsleire. Taket er en saltak-konstruksjon som er antatt tekket med asfalttakbelegg/folie. Leilighetens vinduer har 3-lags isolerglass produsert i 1985. Entrédøren er lyd- og brannklassifisert, og balkongdøren har 2-lags isolerglass. Innvendig er det en formpresset dør til badet og en profilert 2-fløyet dør fra stue til soverom. Badet ble totaloppusset i 2016.
Tilstandsgrad 2
- Etasjeskiller: Målt høydeforskjell på mellom 10 - 20 mm innenfor en lengde på 2 meter (målt gjennom entré).
- Det registreres at nedre del av dør til bad har svellemerker.
- Det er ikke påvist tilfredsstillende avrenning eller annen kompenserende løsning fra varmtvannstank. Det er helelr ikke påvist tilfredsstillende el-tilkobling ihht. forskrift.
- Det er gitt TG 2 grunnet alder og/eller slitasje på vinduer, balkongdør,
Tilstandsgrad ikke undersøkt
- Mursteinspipe. Peisovn. Pipe og ildsted er begrenset, visuelt kontrollert av takstmannen. Dette anbefales gjort av brann-/feievesen før bruk.
- Det er pga bygningsmessige hindringer ikke fysisk mulig å foreta hulltaking i vegg bak våtsone. TGIU gitt ut ifra manglende mulighet for hulltaking.
Utvidet kontroll av elektrisk anlegg gjort av fagperson anbefales.
Ovennevnte er kun et utdrag fra rapporten. Se supplerende tekst i tilstandsrapporten for mer informasjon. For øvrige tilstandsgrader og tilstandsgrader grunnet høy alder og evt. slitasje, så henvises det til rapporten. Kjøper overtar ansvar og risiko for dette.
Standard
Velkommen til en klassisk og innbydende 2-roms selveierleilighet med god planløsning og generøs takhøyde på opp til 2,82 m. Leiligheten inneholder stue, separat kjøkken med utgang til balkong, et romslig soverom, pent flislagt bad, samt en innbydende entré.
Nærmere innhold:
Entré
Velkommen inn! Leilighetens entré er lys og innbydende og gir et meget godt førsteinntrykk av boligen. Entréen knytter boligens rom fint sammen.
Stue
Lys og romslig stue med god plass til en hyggelig sofagruppe med tilhørende salongbord og TV-sjenk. Det er også god plass til å innrede med en spisegruppe der venner og familie kan inviteres på middager. I stuen er det en herlig peisovn som sørger for behagelig temperatur året rundt, i tillegg til en koselig atmosfære.
Kjøkken
Leilighetens kjøkken er holdt i en praktisk separat løsning der du får en fin sone for matlagingen. Kjøkkenet har en moderne IKEA kjøkkeninnredning med glatte fronter og laminat benkeplate med nedfelt vaskekum. Over benkeplaten er det fliser og belysning. Kjøkkenet er utstyrt med integrert platetopp, stekeovn, oppvaskmaskin og kjøl/fryseskap. Avtrekk er montert over kokeplass. En varmtvannsbereder på ca. 120 liter er plassert i kjøkkeninnredningen.
Balkong
Fra kjøkkenet kommer du ut til leilighetens sydvendte balkong på ca. 3 kvm. Her kan du enkelt innrede med en hyggelig sittegruppe der morgenkaffen kan nytes på årets varme dager. Balkongen vender mot en frodig bakgård.
Bad
Badet ble renovert i 2016 og er pent flislagt på gulv og vegger. Elektrisk varme i gulvet sørger for en behagelig start på dagen. Innredningen består av et vegghengt klosett, servant plassert på en flislagt hylleløsning, innfelt speil og et dusjhjørne. En elektrisk styrt vifte sørger for ventilasjon. Det er etablert opplegg for vaskemaskin like utenfor badet, og Waterguard er montert.
Soverom
Leilighetens soverom er av god størrelse og kan enkelt innredes med både dobbeltseng og tilhørende møblement. Det er også god plass til ønsket oppbevaringsmøblement.
Løsøre og tilbehør
Vi viser til liste fra Norges Eiendomsmeglerforbund som gjelder fra 01.01.2020 angående løsøre og tilbehør.
- Skostativ og belysning medfølger ikke.
Oppvarming
Boligen varmes opp med elektrisitet. Det er elektrisk gulvvarme på badet, samt peisovn.
Dersom beboelsesrom ikke har vegg- eller fastmonterte varmekilder ved visning følger dette heller ikke med.
Ferdigattest/brukstillatelse
Eiendommen har vært brukt til boligformål siden 1887.
Kommunen opplyser at det ikke foreligger ferdigattest eller midlertidig brukstillatelse for eiendommen. Det finnes av den grunn ikke dokumentasjon over eiendommens lovlighet. I kommunens arkiver finnes det en bygningsanmeldelse datert 13.06.1886. Dokumentet er ikke attestert, men det er ikke unormalt at dette mangler på dokumenter fra denne perioden. Bygningsanmeldelsen kan fås ved henvendelse til megler.
Det foreligger ferdigattest for innredning av bad datert 25.11.1987, ferdigattest for utskifting av vinduer, dører og omlegging av tak datert 29.05.1989, ferdigattest balkonger datert 07.11.2012, samt ferdigattest for rehabilitering av fire skorsteiner datert 11.10.2021. Disse kan fås ved henvendelse til megler.
Det gjøres oppmerksom på at det ikke lenger utstedes ferdigattest på tiltak det er søkt om før 1998 jf. plan- og bygningsloven § 21-10. Kommunen vil ikke kreve ferdigattest for disse tiltakene og vil avvise eventuelle søknader. Bestemmelsen innebærer ikke at tiltak med manglende søknad blir lovlige, men at man ikke trenger å avslutte gamle byggesaker. Normalt sett kreves ferdigattest for alle søknadspliktige tiltak som gjøres etter plan- og bygningsloven.
Det er avvik fra godkjente tegninger der badet er utvidet noe utover dagens soverom. Dagens soverom er noe smalere enn på godkjente byggetegninger. Tiltakene er ikke søknadspliktige.
Kjøper overtar eiendommen slik den fremstår på visning.
Tinglyste heftelser og rettigheter
Utover andel fellesgjeld overdras leiligheten fri for pengeheftelser.
Det er tinglyst 3 servitutter på sameiets eiendom. Disse omhandler blant annet bestemmelser om gjerde, erklæring med vedtak fra Oslo kommune, samt en erklæring med bestemmelser om bruksrett av eiendommen.
Servituttene vil følge eiendommen. Kjøpers bank vil få prioritet etter ovennevnte heftelser og servitutter.
Eiendommen har tinglyst følgende rettigheter:
- Bestemmelser om bruk av gårdsrom. Rettighet hefter i: KNR: 0301 GNR: 228 BNR: 589 FNR:0 SNR: 1-25, dagboknr 8503, tinglyst 13.02.2001.
- Bestemmelser om adkomstrett og uteareal. Rettighet hefter i: KNR: 0301 GNR: 228 BNR: 450, dagboknr 27001, tinglyst 25.04.2002.
Eventuell adgang til utleie
Leiligheten kan leies ut såfremt leiligheten har forsvarlige radonverdier. Leietaker må følge sameiets vedtekter og ordensregler på lik linje som eier.
Beliggenhet og tomteforhold
Beliggenhet og tomteforhold
Beliggenhet
Leiligheten har en populær beliggenhet sentralt på Grünerløkka, like i nærheten av Sofienbergparken. I nabolaget rundt leiligheten finner du alt du trenger av fasiliteter. Området rundt leiligheten er fullt av koselige spiseplasser, antikvitetsbutikker, barer og kafeer. Ved å ta deg en liten rusletur og nyte området, vil du oppdage flere lokale godbiter, og plutselig har du oppdaget din nye favorittplass. Det er akkurat dette som gjør området så spennende og opplevelsesrikt. Av lokale godbiter kan Perla, Vespa og Humla nevnes. Det kan også nevnes Apostrophe restaurant med få minutters gange fra leiligheten som er en del av Lofthus samvirkelag. Andre severdigheter som og er verdt å nevne er; Schous kulturstasjon, Ringen kino, Dansens Hus og Riksscenen, alt kun innen kort gåavstand. Mathallen på Vulkan ligger også innen rekkevidde, som er en innendørs mathall med kaféer, spisesteder og spesialbutikker med produkter fra mindre norske matprodusenter.
Flotte parker finnes også rett i nærheten, bl.a. Sofienbergparken som du omtrent finner rett utenfor døren. Spaserer du oppover vil du komme til trehusidyllen på Rodeløkka, spaserer du motsatt retning av Grünerløkka kommer du frem til Botaniske Hage og videre bortover til Tøyen. Hyggelige Ola Narr kan friste med skihopp for de minste på vinterstid, eller lek og avslapping på sommerstid. Det er heller ikke lang vei til fine turstier langs Akerselva.
Spaserer du nedover vil du komme til Jernbanetorget og Karl Johan på knappe 15 minutter. De daglige innkjøpene får du gjort unna hos Kiwi, Joker og Rema 1000 som er rett i nærheten. Området er også kjent for sitt mangfold av mindre og spennende forretninger med blant annet frukt og grønt. For den treningsglade finnes flere treningssentre i umiddelbar nærhet; Sats, Evo og Fitness 24. Dælenenga idrettsanlegg med kunstgressbane og ishall, samt Fagerheimen Tennisklubb ligger rett i nærheten.
Her er det enkelt å bo, med og uten bil. Svært godt kollektivtilbud med både trikkeholdeplass og bussholdeplass rett utenfor. Trikk- og busslinjene i nærområdet gjør det enkelt å komme seg både på kryss og tvers gjennom byen.
På denne adressen finner du alt du trenger i umiddelbar nærhet, rolig, bynært og stor mulighet for å Grünerløkka-livet fullt ut.
Adkomst
Det vil bli skiltet med Krogsveen visningsskilt ved fellesvisninger.
Barnehager, skoler og fritid
Informasjon om tilhørende skolekretser er hentet fra Prognosesenteret som dataleverandør, og tilhørigheten kan årlig endres av kommunen. Dersom skole- og barnehagetilbud er av betydning for kjøpet, ber vi om at det rettes en særskilt henvendelse til bydelsadministrasjonen for oppdatert informasjon.
Beskrivelse av tomt
Eiertomt på 455 kvm tilhørende sameiet. Tomten er fellesareal. Bygården har en nydelig grønn oase av en bakgård, som er pent opparbeidet med plen, beplantninger og hellelagte internveier. Her kan venner og naboer møtes til hyggelig sammenkomst og nye de varme sommerdagene!
Parkering
Det er innført beboerparkering i dette området (indre by). Dette betyr at du kan parkere fritt døgnet rundt på parkeringsplassene regulert til beboerparkering i området rundt din bolig for kun kr. 3.850- pr. år for fossile biler, dieselbil, hybridbil, ladbar hybrid.
Har du el-bil så betaler du kr. 1.300,- pr år, hydrogenbil og el-varebil er gratis.
Motorsykkel og moped kr 1.925,- pr år.
El-motorsykkel og el-moped kr 650,- pr år.
Se Oslo kommune sine nettsider for mer informasjon og priser for ytre by.
Vei, vann og avløp
Eiendommen har adkomst via kommunal vei.
Eiendommen er tilknyttet kommunalt ledningsnett via private stikkledninger.
Borettslaget er ansvarlig for private stikkledninger til bygningen.
Regulerings-og arealplaner
Eiendommen er regulert til bolig med tilhørende anlegg i henhold til reguleringsplan S-2255 datert 28.07.1977 med senere endringer i henhold til S-2937 datert 01.10.1987.
Planen er helt eller delvis opphevet som følge av bystyrets vedtak 23.09.2015 sak 262 gjennom ny "Kommuneplan 2015 - Oslo mot 2030 - Smart, trygg og grønn." Området blir berørt av endringer i reguleringsplan for Oslo Sentrum og indre sone i Oslo kommune som følge av dette. Denne planen får betydning for en rekke vedtatte reguleringsplaner i Oslo. Henviser til kommunens nettsider for ytterligere informasjon: https://www.oslo.kommune.no/politikk-og-administrasjon/politikk/kommuneplan/.
Utdrag av planer iht. saksinnsyn på Plan- og bygningsetatens hjemmeside:
Saksnummer 2025/09222 - Byggesak. Sofienberggata 37 - bruksendring til permanent barnehage, ombygging og rehabilitering - Sjokoladefabrikken barnehage. Det ble gitt brukstillatelse i 2023. Tiltaket har ikke enda fått ferdigattest.
Saksnummer 2025/08322 - Byggesak. Sofienberggata 42 - 44 og Sars' gate 32 - 34 - Bruksendring av 2. etasje til boliger, fasadeendringer og mer. Det ble sendt søknad om igangsettingstillatelse 04.12.2025.
Saksnummer 2025/07524 - Byggesak. Trondheimsveien 64 - oppføring av balkonger. Det ble sendt søknad om rammetillatelse 03.07.2025 og plan og bygningsetaten svarte med behov for tilleggsdokumentasjon og anmodning om omprosjektering 07.01.2026.
Saksnummer 202555692: Trondheimsveien 61 - Forhåndskonferanse - Oppføring av bolig og næringsbygg. Saken er en omprosjektering av et tidligere søkt tiltak (saksnummer 202310697) på tomten som fikk endelig avslag fra plan og bygningsetaten i 2024 etter behandling hos Statsforvalteren. Årsakene til det opprinnelige avslaget var blant annet høyder, utforming og estetisk karakter til bygget. Det nye tiltaket som byggherre nå har presentert for plan og bygningsetaten forsøker å svare på tilbakemeldingene fra det tidligere, avslåtte prosjektet. Det ble gjennomført en forhåndskonferanse 14.10.2025, men det har ikke vært ny utvikling i saken siden dette møtet.
Opplistingen er ikke uttømmende og interessenter oppfordres til å sette seg inn i relevante reguleringsplaner. Dette kan gjøres via Oslo kommune planinnsyn. Utsnitt av plan med tilhørende bestemmelser kan fås ved henvendelse til megler.
Økonomi
Økonomi
Boligens kostnader
Fellesutgiftene er kr 4 112,- pr. mnd. og inkluderer: TV, internett, kommunale avgifter, trappevask, vaktmester, drift og vedlikehold etc.
Fellesutgiftene justeres normalt en til to ganger årlig i forhold til sameiets faktiske utgifter.
Felleskostnader fordeles slik:
Renter og avdrag 574,-
Felleskostnader 3 538,-
Nåværende eier har et strømforbruk som tilsvarer ca. kr 12 000,- pr. år. / 5 000 kwh. pr. år.
Boligen er tilknyttet Telia (10/10 hastighet) som leverandør av kabel-tv og internett der avgiften er inkludert i felleskostnader. Tv-tuner/dekoder medfølger ikke.
Utgiftene er basert på nåværende eiers forbruk. Kjøper må selv tegne innboforsikring.
Formuesverdi
Ved hjelp av skatteetatens boligkalkulator er boligens formuesverdi beregnet til kr. 1 152 321,- for fjoråret når boligen benyttes som primærbolig.
Formuesverdien er en gitt prosent av den beregnede markedsverdien. Beregnet markedsverdi er basert på Statistisk sentralbyrå (SSB) sine opplysninger om omsatte boliger. I beregningen tas det hensyn til boligens beliggenhet, areal, byggeår og boligtype.
Det er eier av boligen som fastsetter formuesverdien, jf. skatteforvaltningsloven § 9-1 første ledd, men skattemyndighetene kan kontrollere at verdien er satt riktig.
Formuesverdi skal ikke overstige:
Primærbolig: 25 % av beregnet eller dokumentert markedsverdi opp til kr. 10 000 000, og deretter 70 % av den overskytende markedsverdi.
Sekundærbolig: 100 % av beregnet eller dokumentert markedsverdi.
Formuesverdier som overstiger disse grensene, kan kreves nedjustert av eier.
Fra 2026 har Stortinget vedtatt en oppdatert modell for beregning av formuesverdi for primærbolig, så avvik kan forekomme.
For mer informasjon se skatteetaten.no
Opplysninger om fellesgjeld
Andel formue er kr 12 755,- pr. 31.12.2024
Andel fellesgjeld er kr 22 515,- pr. 07.12.2025
Sameiets felles lån:
#1
Långiver: Dnb Bank ASA
Lånenummer: 1636.44.44145
Rest lånebeløp: 0.00
Innfrielsedato: 06.03.2031 Rente type: 6.95%
#2
Långiver: Dnb Bank ASA
Lånenummer: 1212.58.54638
Rest lånebeløp: 0.00
Innfrielsedato: 01.03.2033 Rente type: 7.35%
Omkostninger
5 290 000,00 Prisantydning
22 515,00 Andel av fellesgjeld
--------------------------------------------------------
5 312 515,00 Pris inkl. fellesgjeld
Omkostninger
132 800,00 Dokumentavgift til staten (2,5% av kjøpesum)
9 950,00 Gjensidige Boligkjøperpakke (valgfri)
545,00 Tinglysing panterettsdokument
545,00 Tinglysing skjøte
--------------------------------------------------------
143 840,00 Omkostninger totalt
--------------------------------------------------------
5 456 355,00 Totalpris inkl. omkostninger
--------------------------------------------------------
Dersom sameiet har fellesgjeld, vil leilighetens andel av fellesgjelden komme i tillegg til kjøpesummen. Denne gjelden skal ikke innbetales i oppgjøret, men følger leiligheten.
Totalpris inkl. omkostninger forutsetter kjøp til prisantydning.
Det tas forbehold om endringer i avgifter og gebyrer.
Tilbud om lånefinansiering
Megler formidler gjerne kontakt med rådgiver hos vår samarbeidspartner BN Bank. De har konkurransedyktige betingelser samt rask og løsningsorientert behandling av din lånesøknad. Krogsveen mottar et honorar dersom lån opprettes.
Betalingsbetingelser
Kjøpesum inkludert omkostninger, samt pantedokument tilknyttet eventuelt lån, skal være disponibelt hos megler 2 virkedager før overtagelsen.
Annen viktig informasjon
Annen viktig informasjon
Eier
Jenny Elisabet Andersson og Karl Alexander Karlsson
Informasjon om sameiet
Eiendommen er seksjonert, og leiligheten er tilknyttet Sameiet Sofienberggata 49, med sameiebrøk 60/1170.
Sameiet består av 17 boligseksjoner.
Forretningsfører er Norian Regnskap AS, tlf. 22 91 14 86.
Dugnad må påregnes.
Dyrehold er tillatt.
Foretatt påkostninger de senere år:
- I 2019 fikk sameiet malt nedre del av fasade både på gate og bakgårdside samt vasket og ordnet i bakgården. Da ble også alle utelamper over inngangsdørene og portrom/hovedport byttet og løv fjernet fra takrennene.
- Rehabilitering av piper i 2021.
- I 2022/23 ble det kjøpt inn nye utemøbler til bakgård.
Vi gjør videre oppmerksom på at det iht. eierseksjonsloven ikke er anledning å erverve mer enn 2 seksjoner i sameiet, her teller også eierskap via. firma, nærstående og familie. Kjøper har risikoen for at overskjøting på denne bakgrunn kan nektes av Statens Kartverk. I så fall vil kjøper uansett være forpliktet til å gjennomføre handelen, og oppgjør til selger vil finne sted tross manglende overskjøting.
Konferer med megler for mer informasjon.
Dokumenter for sameiet og kopi av seksjonsbegjæringen kan fås ved henvendelse til megler.
Overtakelse
Etter nærmere avtale.
Boligselgerforsikring
****
Boligkjøperforsikring
Innen kontraktsmøtet må kjøper ta stilling til om det ønskes å bestille Boligkjøperpakken gjennom Gjensidige. I denne gunstige pakken er boligen ferdig forsikret og inkluderer rettshjelpsforsikring, også kalt Boligkjøperforsikring. Rettshjelpsforsikring gir trygghet og tilgang på profesjonell juridisk hjelp dersom det oppdages uventede feil eller mangler det første året etter overtagelse. Forsikringsselskapet behandler i så fall ethvert mangelskrav kjøper måtte ha overfor selger.
Boligkjøperpakken inkluderer bygningsforsikring for hus og hytte, innboforsikring, flytteforsikring og dobbel rentedekning - i situasjoner hvor kjøper ikke får solgt nåværende primærbolig.
Kjøper mottar ingen særskilt faktura for Boligkjøperpakken da kostnaden det første året legges til kjøpesummen for boligen. Det gjøres oppmerksom på Krogsveen mottar et honorar for denne formidlingen.
Produktark for Boligkjøperpakken ligger vedlagt i salgsoppgaven.
Dersom ikke boligkjøperpakke ønskes kan kun rettshjelpsforsikring, også kalt boligkjøperforsikring, tegnes særskilt via megler. Rettshjelpsforsikringen varer i 5 år fra overtagelse og leveres gjennom Gjensidige. Ta kontakt med megler for ytterligere informasjon.
Selskap og privatpersoner som driver med kjøp/salg/utvikling som ledd i egen næringsvirksomhet kan ikke tegne boligkjøperpakke eller rettshjelpsforsikring.
Budgivning
Forbrukerinformasjon om budgivning er vedlagt denne salgsoppgaven og er også på vår hjemmeside Krogsveen.no. Alle bud og budforhøyelser må inngis skriftlig. I tillegg må legitimasjon være fremlagt sammen med signatur fra budgiver.
Vi oppfordrer til å gi bud elektronisk via GI BUD-knappen på eiendommens hjemmeside på Krogsveen.no. Da vil samtlige vilkår bli oppfylt.
Eventuelle forhøyelser eller endringer av budet kan bekreftes pr SMS eller på e-post. Vi oppfordrer alltid til å kontakte megler pr. telefon i tillegg da forsinkelser i SMS og e-post kan forekomme.
For at budene skal kunne bli behandlet og videreformidlet skriftlig til alle involverte parter, må alle bud ha en tilstrekkelig lang akseptfrist, jf. eiendomsmeglingsforskriften § 6-3.
Selger må også skriftlig akseptere budet før aksept kan formidles til budgiver. Akseptfrist bør derfor være på minimum 30 minutter, og budforhøyelser må derfor skje i god tid før fristens utløp.
Bud i forbrukerforhold kan uansett ikke settes med kortere frist enn kl. 12.00 første virkedag etter siste annonserte visning. I tillegg kan ikke budet ha forbehold om at det skal holdes hemmelig ovenfor øvrige interessenter. Megler har iht lov om eiendomsmegling ikke anledning til å videreformidle disse budene, og de vil dermed heller ikke bli journalført.
Etter at eiendommen er solgt vil kjøper og selger få tilsendt budjournal. Øvrige budgivere kan få utlevert kopi av budjournalen i anonymisert form.
Hvitvaskingsreglene
I henhold til lov om hvitvasking og terrorfinansiering har megler plikt til å gjennomføre kontrolltiltak overfor kunder, herunder fullmektiger. Dette innebærer bl.a. å bekrefte kunders og reelle rettighetshaveres identitet på bakgrunn av fremvist gyldig legitimasjon eller på annen godkjent måte, samt å innhente opplysninger om kundeforholdets formål og tilsiktede art.
Dersom slike kundetiltak ikke kan gjennomføres, kan megler ikke etablere kundeforholdet eller utføre transaksjonen.
Hvis kjøper ikke bidrar til gjennomføring av kundekontrollen og dette fører til at transaksjonen blir forsinket eller ikke kan gjennomføres, vil dette ansees som mislighold av avtalen og gi selger rettigheter etter avhendingslova kapittel 5. I tilfeller der selger ikke bidrar til gjennomføring av løpende kundekontroll underveis i oppdraget, er det selger som misligholder sine forpliktelser etter avtalen og gi kjøper rettigheter etter avhendingslovens kapittel 4. Partene er selv ansvarlige for eventuelle kostnader og ansvar dette kan medføre. Eiendomsmegleren eller eiendomsmeglingsforetaket kan ikke holdes ansvarlig for de konsekvenser dette vil kunne få for partene eller andre som har interesser i eiendomshandelen.
Kjøper oppfordres til å innbetale kjøpesummen som ikke kommer fra låneinstitusjon i én samlet innbetaling fra egen konto i norsk bank. Megler har plikt til å melde fra til Økokrim om eiendomshandler som fremstår som mistenkelige. Melding sendes Økokrim uten at partene varsles.
Personopplysningsloven
I henhold til personopplysningsloven gjør vi oppmerksom på at interessenter kan bli registrert for videre oppfølging.
Lovanvendelse
Generelle bestemmelser
Salgsoppgaven er basert på de opplysningene selger har gitt til megler, den bygningssakyndiges tilstandsrapport, samt opplysninger innhentet fra kommunen, Kartverket og andre tilgjengelige kilder. Det er viktig at kjøper setter seg grundig inn i alle salgsdokumentene, herunder salgsoppgave, tilstandsrapport og selgers egenerklæring. Kjøper anses kjent med forhold som er tydelig beskrevet i salgsdokumentene, og slike forhold kan ikke påberopes som mangler. Dette gjelder uavhengig av om kjøper har lest dokumentene. Alle interessenter oppfordres til å undersøke eiendommen nøye, gjerne sammen med fagkyndig før bud inngis. Kjøper som velger å kjøpe usett kan ikke gjøre gjeldende som mangel noe han burde blitt kjent med ved undersøkelsen.
Dersom det er behov for avklaringer, anbefaler vi at interessenter rådfører seg med eiendomsmegler eller egne rådgivere før det legges inn bud.
En bolig som har blitt brukt i en viss tid, har vanligvis blitt utsatt for slitasje og skader kan ha oppstått. Slik bruksslitasje må kjøper regne med, og det kan avdekkes enkelte forhold etter overtakelse som nødvendiggjør utbedringer. Normal slitasje og skader som nødvendiggjør utbedring, er innenfor hva kjøper må forvente og vil ikke utgjøre en mangel.
Kjøper og selgers rettigheter og plikter reguleres av avtalen mellom partene, samt informasjonen som har vært tilgjengelig for kjøperen i forbindelse med handelen. Avtalen utfylles av avhendingsloven, og det gjelder ulike avtalevilkår avhengig av om kjøper er forbrukerkjøper eller ikke. Dette er nærmere beskrevet nedenfor.
På grunn av ulike avtalevilkår kan selger vurdere bud fra en som ikke er forbruker, ulikt fra en forbrukers bud. Dersom kjøper ikke er forbruker, er selger sitt mulige mangelsansvar begrenset fordi eiendommen selges "som den er". Selger kan ikke ta «som den er»- forbehold overfor en forbrukerkjøper. Selv et lavere bud fra en som ikke er forbruker kan foretrekkes fordi begrensningen i mulig mangelsansvar kan ha egenverdi for selger. Selger står fritt til å forkaste eller akseptere ethvert bud, og er for eksempel ikke forpliktet til å akseptere høyeste bud.
Budgiver skal i budskjema avgi egenerklæring om budgiver er forbruker eller næringsdrivende/ person som hovedsakelig handler som ledd i næringsvirksomhet. Budgivere får informasjon dersom andre bud er inngitt av en som ikke er forbruker.
Forbrukerkjøp - definisjon
Med forbrukerkjøp menes kjøp av eiendom når kjøperen er en fysisk person som ikke hovedsakelig handler som ledd i næringsvirksomhet.
Forbruker – avtalevilkår
Eiendommen har en mangel dersom den ikke er i samsvar med kravene som følger av avtalen, eller det foreligger brudd på bestemmelsene i avhendingsloven §§ 3-2 til 3-8. Hvis eiendommen ikke er i samsvar med det kjøperen må kunne forvente ut ifra alder, type og synlig tilstand, kan det være grunnlag for mangelskrav. Det samme gjelder hvis det er holdt tilbake eller gitt uriktige opplysninger om eiendommen. Dette gjelder likevel bare dersom man kan gå ut ifra at det virket inn på avtalen at opplysningen ikke ble gitt eller at mangelskravet ikke blir rettet i tide på en tydelig måte.
Boligen kan ha en mangel etter avhendingsloven § 3-3 andre ledd, dersom det er avvik mellom opplyst og faktisk innvendig areal, forutsatt at avviket er på 2% eller mer og minimum 1 kvm.
Ved beregning av et eventuelt prisavslag eller erstatning må kjøper selv dekke tap/kostnader opptil et beløp på kr 10 000 (egenandel).
Ikke-forbruker (næringsdrivende) – definisjon
Hvis kjøper er en juridisk person, eller en fysisk person som hovedsakelig handler som ledd i næringsvirksomhet, vil kjøpet ikke anses som et forbrukerkjøp.
Ikke-forbruker – avtalevilkår
Eiendommen har en mangel dersom den ikke er i samsvar med kravene som følger av avtalen.
Eiendommen selges «som den er», og selgers ansvar utover det konkret avtalte er da begrenset etter avhendingsloven § 3-9, første ledd andre setning.
Avhendingsloven § 3-3 andre ledd fravikes, og hvorvidt boligens arealsvikt utgjør en mangel vurderes etter avhendingsloven § 3-8.
Informasjon om kjøpers undersøkelsesplikt, herunder oppfordringen om å undersøke eiendommen nøye, gjelder også for kjøpere som ikke anses som forbrukere.
Det forutsettes at hjemmel overføres til kjøper. Hvis kjøper ikke ønsker hjemmelsoverføring av eiendommen, må det tas forbehold om dette i budet.
Meglers vederlag
Meglers vederlag betales av selger og er avtalt til:
Vederlag: 1,00 % av salgssummen inkl. eventuell fellesgjeld. Minimumsprovisjon er kr 50 000,00
Vederlag:
Kontroll av hjemmel og heftelser kr 2 900,00
Markedsføringspakke kr 28 250,00
Oppgjør kr 7 500,00
Tilrettelegging kr 19 900,00
Visninger a 4 000,- 2 stk gratis og gratis privatvisninger
Utlegg:
Eierskiftegebyr forretningsfører - NORIAN kr 6 570,00
Innhenting av informasjon forretningsfører kr 6 658,00
Tinglysing sikring kr 545,00
Andre utgifter:
Boligselgerforsikring Gjensidige Snr - regnes av prisantydning kr 25 190,00
Foto kr 4 500,00
Tilstandsrapport fra bygningssakkyndig - faktura til kunde kr 9 000,00
Vi er opptatt av verdiskapning, og har knyttet til oss samarbeidspartnere som skal sikre våre kunder de beste produkter og tjenester;
• I forbindelse med forberedelse av salget, innhenter vi informasjon om eiendommen hovedsakelig fra vår samarbeidspartner Amibita.
• Gjensidige leverer boligselgerforsikring og tilbyr bygningsforsikring
• Boligkjøperforsikring leveres av Hiscox og med Sedgwick som skadebehandler, og er formidlet gjennom Gjensidige.
• BN bank tilbyr finansieringsløsninger
• Vår avdeling Krogsveen Pluss tilbyr flyttetjenester som utvask, visningsvask, lager, tømming og transport av flyttelass, i tillegg til å formidle kontakt med Flip for overflateoppussing.
• I forbindelse med overtagelse av eiendommen tilbyr Overo avtale om strøm, alarm og bredbånd.
• Krogsveen er, sammen med øvrige bransjeaktører, medeier i Bomega AS som tilbyr den digitale annonseringsplattformen Hjem.
Opplysninger om oppdraget
Oppdragsnummer 37-0523/25
Eiendomsmegler Krogsveen AS, avd. Hasle
Valle View, Innspurten 11D, 0663, OSLO
950007613
Oppdragets KR-kode KR37.25523
Dato
Sist oppdatert: 27. april 2026 kl. 14:13
Dokumenter
Dokumenter
PDF – 140 KB
PDF – 962 KB
PDF – 530 KB
PDF – 5 MB
PDF – 1 MB
PDF – 312 KB
PDF – 29 KB
PDF – 127 KB
PDF – 392 KB
Område
Legg til steder som er viktige for deg
Visning
Det er ingen planlagte visninger. Meld deg på for å avtale en tid som passer.
Lurer du på noe?
Unngå doble boligrenter
Vi tilbyr gunstig forsikring.
Vurderer du utleie?
Få et tilbud fra Utleie KrogsveenHva koster lånet?
Sjekk estimert lånekostnadVil du varsles om lignende boliger?
Ved å lagre ditt boligsøk hos oss får du beskjed når vi har en bolig som ligner denne, før den legges ut på markedet!




