Kampeveien 58
8 950 000 kr
288 m²
4 soverom
Solgt

UNIK IDYLL I LOMMEDALEN
Drømmested innerst i Lommedalen. Stille, fredelig, sol og nabo til beitende hester. Stor tomt på nesten 3 mål -Oppussing
Prisantydning
8 950 000 krOmkostninger
244 740 krTotalpris
9 194 740 kr
Pris
Bruksareal
288 m²BRA-I (internt bruksareal)
288 m²TBA (terrasse-balkongareal)
48 m²
Areal
Byggeår
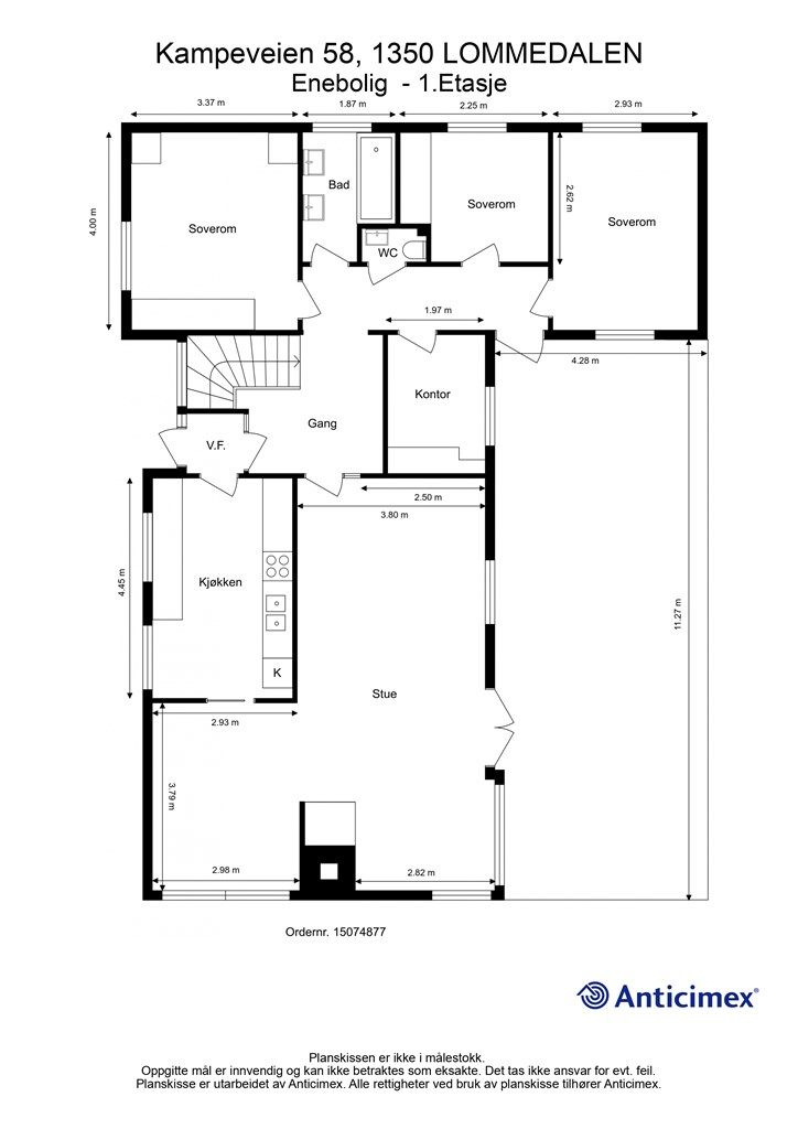
1967Soverom
4 soveromBad
2 badTomteareal
2 705 m² (eiet)Type
Enebolig - FrittliggendeEierform
EietFasiliteter
Garasje/P-plass og Balkong/TerrasseEnergimerke
Rød G
Nøkkelinfo
Unngå doble boligrenter
Vi tilbyr gunstig forsikring.
Vurderer du utleie?
Få et tilbud fra Utleie KrogsveenHva koster lånet?
Sjekk estimert lånekostnadBeskrivelse
Kort om eiendommen
Velkommen til Kampeveien 58
Fredfullt beliggende oppussingsobjekt innerst i Lommedalen, omgitt av naturskjønn skog og turmuligheter året rundt. Boligen har kjeller med vaskerom, dusjrom, badstue, fyrrom og 6 boder, samt hovedetasje med 3 soverom, kontor, bad, separat toalett, stue og kjøkken i åpen løsning med utgang til solrik terrasse på 48 kvm. Tomten på 2,7 mål gir rikelig plass til hage, lek og uteaktiviteter. Nær marka for ski, sykkel og turer, samt golf, ridning, alpint og idrettsanlegg. Kort vei til butikker, kafeer og offentlig kommunikasjon med gode bussmuligheter mot Oslo og Sandvika.
Et oppussingsobjekt med stort potensial for familien som ønsker å skape sin drømmebolig i naturskjønne omgivelser.
Område
Legg til steder som er viktige for deg
På flyttefot? Tenk kjøp og salg samtidig.
Få din egen rådgiver gjennom hele kjøps- og salgsprosessen. Det starter med en verdivurdering.
Unngå doble boligrenter
Vi tilbyr gunstig forsikring.
Vurderer du utleie?
Få et tilbud fra Utleie KrogsveenHva koster lånet?
Sjekk estimert lånekostnadVil du varsles om lignende boliger?
Ved å lagre ditt boligsøk hos oss får du beskjed når vi har en bolig som ligner denne, før den legges ut på markedet!

