Trosvikvegen 61
1 800 000 kr
124 m²
3 soverom
Komplett salgsoppgave
Brevik
Enebolig med mange bruksområder i idylliske Brevik.
Prisantydning
1 800 000 krOmkostninger
65 900 krTotalpris
1 865 900 kr
Pris
Bruksareal
124 m²BRA-I (internt bruksareal)
124 m²TBA (terrasse-balkongareal)
14 m²
Areal
Byggeår
1836Soverom
3 soveromBad
1 badTomteareal
120 m² (festet)Type
Enebolig - FrittliggendeEierform
EietEnergimerke
Oransje G
Nøkkelinfo
Unngå doble boligrenter
Vi tilbyr gunstig forsikring.
Vurderer du utleie?
Få et tilbud fra Utleie KrogsveenHva koster lånet?
Sjekk estimert lånekostnadBeskrivelse
Kort om eiendommen
Innhold og byggemåte
Innhold og byggemåte
Eiendommen
Trosvikvegen 61, 3950 BREVIK
Kommunenummer 4001, gårdsnummer 80, bruksnummer 102, ideell andel 1/1
Innhold
BRA-i:
Enebolig.:
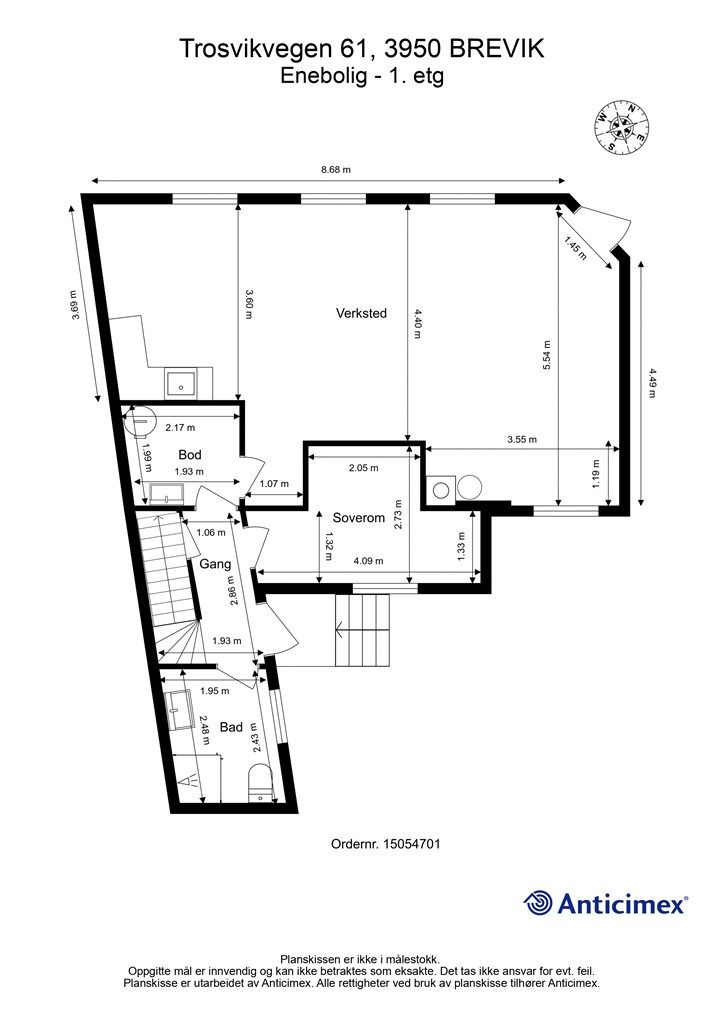
1. etasje 72 kvm: Gang, bad, bod, soverom, wc og verksted/lagerrom.
2. etasje 52 kvm: To soverom, to ganger, stue og kjøkken.
Terrasse/balkongareal:
2. etasje 14 kvm: Terrasse.
Vedlagte plantegninger er ikke målbare. De oppgitte arealer er hentet fra rapport datert 12.04.2024 utført av Anticimex Sandefjord. Arealene er beregnet og rom er definert etter dagens faktiske bruk, uavhengig av hva som er godkjent av bygningsmyndighetene.
Kommentar til areal:
- 2. etasje har et totalt gulvareal (GUA) på 65 kvm, men grunnet lav takhøyde er kun 52 kvm av arealet måleverdig som bruksareal. De delene av arealet som har for lav takhøyde (ALH) utgjør 13 kvm.
- Det gjøres oppmerksom på at arealoppmålingen og planskisse kan avvike noe fra det faktiske forholdene grunnet bygningens skjevheter.
Byggemåte
Selger har fått utarbeidet en tilstandsrapport, dvs. en teknisk gjennomgang av boligen hvor eventuelle avvik, risiko for kjøper og prisoverslag for hva som bør gjøres av oppgradering, er skissert. Se særskilt TGIU (tilstandsgrad ikke undersøkt), samt TG2 og TG3 som viser hva som er avvik fra boligens normale slitasje, alder og type, eller som bør/må utbedres. Rapporten og selgers egenerklæring er en del av salgsoppgaven og må leses nøye før bud inngis. Kjøper overtar ansvaret for de opplysninger som fremkommer av salgsdokumentasjonen, og kan ikke gjøre gjeldende som mangel noe som burde vært kjent eller som ikke kan anses å ha betydning for avtalen.
Bygningen er iht. tilstandsrapporten oppført på grunnmur av naturstein og betong. Yttervegger av trekonstruksjon med stående kledning. Etasjeskiller av trebjelkelag. Saltak tekket med teglstein. Vinduer med 2-lags isolerglass og noen koblede vinduer fra ulike årstall. Les for øvrig mer om byggemåte og den tekniske tilstanden i rapporten.
Boligen er en eldre bolig med oppgraderingsbehov og har i den forbindelse flere forhold som har fått TG2 i tilstandsrapporten. Les nøye gjennom rapporten for utfyllende informasjon om avvikene.
Det gjøres spesielt oppmerksom på at badet ikke tilfredsstiller krav til våtrom og en rekke forhold er nevnt i rapporten. Det er påvist fukt i krypkjelleren, med råteskader og vanninnsig i tillegg til at det er registrert treskadeinsekter i større omfang samt manglende sikring mot gnagere. Himlingen i krypkjelleren er tildekket med isolasjon og er derfor ikke tilgjengelig for inspeksjon. En side av pipe er tildekket i kott ved soverom i 2. etasje, noe som er bemerket ved feier tilsyn. Utvendig fasade bærer preg av høy slitasjegrad og råteskader på kledning. Enkelte vinduer bærer preg av høy slitasjegrad. Utvendig trapp og forstøtningsmur har store skjevheter og deformasjoner. Alle forannevnte avvik har fått TG3 i tilstandsrapporten.
Det gjøres og spesielt oppmerksom på at avløpsrørene er skjult og eventuell stakeluke er ikke lokalisert. Selger informerer om at ventilasjonsanlegget i verkstedet ikke her vært i bruk under hennes eiertid og det er derfor usikker tilstand på denne. Fundamenter er delvis naturgitt skjult, og det er for øvrig ingen sikre og dokumenterte opplysninger om type fundamenter som huset har. Byggegrunnens beskaffenhet er ukjent. De forannevnte avvikene har fått TGIU i tilstandsrapporten.
Se supplerende tekst i tilstandsrapporten for utfyllende informasjon om alle ovennevnte avvik. Kjøper overtar ansvar og risiko for dette. Tilstandsrapporten ble oppdatert 28.04.2025
Standard
Boligen har enkel standard og oppgraderingsbehov. Gulvene har heltrebord og belegg. Vegger med panel og malte plater. Himlinger med malte plater og panel. Kjøkkeninnredning med ventilator, profilerte fronter og laminert benkeplate med nedfelt vaskekum. Badet, som for øvrig er svært enkelt har toalett, servant og dusjkabinett. Det er og et eget toalettrom med toalett og servant.
Løsøre og tilbehør
Vi viser til liste fra Norges Eiendomsmeglerforbund som gjelder fra 01.01.2020 angående løsøre og tilbehør.
Oppvarming
Varmekabler i gulv på verkstedet. Vedovner plassert i både verksted og stue i 2. etasje. Varmepumpe i begge etasjer. Ellers elektrisk oppvarming. Det er ventilasjonsanlegg i verkstedet som ikke er benyttet på flere år og det vites derfor ikke om det fungerer. Dersom beboelsesrom ikke har vegg- eller fastmonterte varmekilder ved visning, følger dette heller ikke med.
Ferdigattest/brukstillatelse
Eiendommen har vært brukt til boligformål siden 1836.
Kommunen opplyser at det ikke foreligger ferdigattest eller midlertidig brukstillatelse for eiendommen. Kommunen opplyser at det ikke var krav til ferdigattest eller midlertidig brukstillatelse på den tiden eiendommen ble oppført.
Kommunen har oversendt byggetegninger datert 11.04.1951, men de er av svært dårlig kvalitet og kan nesten ikke leses.
Det gjøres oppmerksom på at det ikke lenger utstedes ferdigattest på tiltak det er søkt om før 1998 jf. plan- og bygningsloven § 21-10. Kommunen vil ikke kreve ferdigattest for disse tiltakene og vil avvise eventuelle søknader. Bestemmelsen innebærer ikke at tiltak med manglende søknad blir lovlige, men at man ikke trenger å avslutte gamle byggesaker. Normalt sett kreves ferdigattest for alle søknadspliktige tiltak som gjøres etter plan- og bygningsloven.
Kjøper overtar eiendommen slik den fremstår på visning med risiko og ansvaret for eventuelle pålegg fra kommunen og kostnader forbundet med dette.
Tinglyste heftelser og rettigheter
Eiendommen overdras fri for pengeheftelser med unntak av:
Festekontrakt med forkjøpsrett for grunneier, tinglyst 03.04.1941 med dokumentnr: 900275
Festekontrakten finnes ikke i offentlige arkiver.
Heftelsen vil følge eiendommen. Kjøpers bank vil få pant etter ovennevnte heftelse.
Eventuell adgang til utleie
Eiendommen har ikke separat utleieenhet. Det vil normalt være anledning til utleie av hele eiendommen eller enkeltrom, såfremt utleiearealet er bygningsmessig godkjent for varig opphold og har forsvarlige radonnivåer.
Diverse
Vi er opptatt av verdiskapning, og har knyttet til oss samarbeidspartnere som skal sikre våre kunder de beste produkter og tjenester;
• Gjensidige leverer boligselgerforsikring og tilbyr bygningsforsikring
• Boligkjøperforsikring leveres av Hiscox og med Sedgwick som skadebehandler, og er formidlet gjennom Gjensidige.
• BN bank tilbyr finansieringsløsninger
• Vår avdeling Krogsveen Pluss tilbyr flyttetjenester som utvask, visningsvask, lager, tømming og transport av flyttelass, i tillegg til å formidle kontakt med Flip for overflateoppussing.
• I forbindelse med overtagelse av eiendommen tilbyr Overo avtale om strøm, alarm og bredbånd.
• Krogsveen er, sammen med øvrige bransjeaktører, medeier i den digitale annonseringsplattformen Hjem.
Beliggenhet og tomteforhold
Beliggenhet og tomteforhold
Beliggenhet
Boligen ligger sentralt i Breviks bykjerne, med smale gater og gamle trehus som skaper en unik atmosfære. Brevik er en typisk sommer by som blomstrer opp med restauranter, flere folk i gatene og langs bryggene og på badeplassen. Her finnes dagligvarebutikk, frisører, sportsbutikk og gallerier. På oversiden av byen ligger en Ås med nyere bebyggelse, moderne barneskole, barnehage og idrettsplass med med blant annet skøytebane, tuftepark, padelbane og sandvolleyballbane. Videre finnes det fine turområder i skog og mark eller langs kyststien. Det er gangavstand over Breviksbrua til Stathelle med kjøpesenter og alle sentrumsfasiliteter. Det er kort avstand til busstopp med gode forbindelser til Porsgrunn.
Adkomst
Fra Porsgrunn: Ta til høyre rett før Breviksbrua og følg veien ned mot Brevik. Ta til venstre inn i Steensgate etter fergeleiet. Hvis du følge veien til enden smaler den og er egentlig bare en gang vei over til Trosvikveien. Boligen ligger på venstre side enden her. Boligen vil være merket med salgsplakat fra Krogsveen. Det vil bli skiltet med Krogsveen visningsskilt ved fellesvisninger.
Barnehager, skoler og fritid
Brevik oppvekstsenter har barneskole og barnehage som ligger ca. 550 meter fra boligen. På Sandøya som har fergeforbindelse med Brevik er det også Montessori skole og barnehage. Fergeleiet ligger bare et par hundre meter fra boligen. Ungdomskolen på Heistad ligger ca. 4 km. mot Porsgrunn med skolebussforbindelse. Busstopp ligger også i kort avstand fra boligen.
Informasjon om tilhørende skolekretser er hentet fra Prognosesenteret som dataleverandør, og tilhørigheten kan årlig endres av kommunen. Dersom skole- og barnehagetilbud er av betydning for kjøpet, ber vi om at det rettes en særskilt henvendelse til kommunen for oppdatert informasjon.
Beskrivelse av tomt
Festet tomt på 120 kvm. Tomten består i hovedsak av bygningsmassen med unntak av et lite hageområde ved inngangsparti. Hagen er inngjerdet med et hvitt stakittgjerde og er opparbeidet med en gangsti av steinheller.
Regulering av feste
Festeavgiften har vært på kr. 192,- siden 2014 og vil bli regulert i mai 2024 og beregnes til ca. kr. 265,- pr. år. Regulering av festeavgiften skjer hvert 10 år og den reguleres etter konsumprisindeks.
Grunneier, Porsgrunn Kommune, har forkjøpsrett til eiendommen ved salg. Frist for å benytte forkjøpsretten er senest 2 måneder etter at grunneier har mottatt skriftlig beskjed om at eiendommen er solgt. Melding vil bli sendt til grunneier straks etter salget. Grunneier har allerede antydet at det ikke er aktuelt å benytte forkjøpsretten.
Tomten kan kan ifølge kommunen innløses for 25 ganger årlig oppjustert leie.
Festeavgiften er gammel og den har ikke vært mulig å oppdrive fra Statens karvers sin side. Festetiden er trolig evigvarende.
Kopi av lov om tomtefeste kan fåes ved henvendelse til megler.
Kontakt megler for nærmere informasjon.
Parkering
Gateparkering etter områdets bestemmelser. Det har vært avtalt mellom naboene at en plass mot dette huset brukes av eier her, uten at denne plassen kan garanteres for videre og den ligger på kommunal grunn.
Vei, vann og avløp
Eiendommen har adkomst via kommunal vei.
Eiendommen er tilknyttet kommunalt ledningsnett via private stikkledninger. Eier er selv ansvarlig for private stikkledninger til boligen.
Regulerings-og arealplaner
Eiendommen er regulert til bevaring kulturmiljø og boligbebyggelse i henhold til reguleringsplan Brevik med indre havn og deler av øya datert 13.09.2012 med tilhørende reguleringsbestemmelser sist revidert 28.11.2022.
Eiendommen ligger i et område som i kommuneplan datert 13.06.2019 er avsatt til: Bevaring kulturmiljø, boligbebyggelse-nåværende og byggegrenser, utbyggingsvolum og funksjonskrav.
Utsnitt av plan med tilhørende bestemmelser kan fås ved henvendelse til megler.
Eiendommen er verneverdig klasse B og SEFRAK-registrert. Dette kan medføre at større endringer av bygningen må godkjennes av kommunen eller fylket før igangsetting.
Kontakt megler for mer informasjon.
Økonomi
Økonomi
Kommunale utgifter
Kommunale avgifter er kr. 18.576,- for inneværende år. I dette inngår gebyr for vann, avløp, renovasjon, eiendomsskatt og feiing/tilsyn.
Nåværende eier har et strømforbruk som tilsvarer ca. kr 23.000,- pr. år.
I selgers husstand har det bodd 1 person, men det er også verksted som er varmet opp.
Boligen har en årlig forsikringspremie på kr 6.444,-.
Boligen er tilknyttet Telenor som leverandør av kabel-tv og har avgift på kr 1.248,- pr. mnd.
Utgiftene er basert på nåværende eiers forbruk og avtaler.
Formuesverdi
Formuesverdi for 2022 var kr. 479.329,- ifølge skatteetaten. Beløpet forutsetter at eier bor fast i boligen (primærbolig).
Ved eventuell øvrig bruk av eiendommen (f.eks. fritidsbolig, pendlerbolig, utleieobjekt) var formuesverdien for 2022 kr. 1.821.451,-.
Formuesverdien justeres normalt årlig. Se skatteetaten.no for mer informasjon om fastsettelse av formuesverdien.
Omkostninger
1 800 000,00 Prisantydning
Omkostninger
45 000,00 Dokumentavgift til staten (2,5% av kjøpesum)
500,00 Tinglysing panterettsdokument
500,00 Tinglysing skjøte
19 900,00 Tryg Boligkjøperpakke - Enebolig (valgfri)
--------------------------------------------------------
65 900,00 Omkostninger totalt
--------------------------------------------------------
1 865 900,00 Totalpris inkl. omkostninger
--------------------------------------------------------
Totalpris inkl. omkostninger forutsetter kjøp til prisantydning.
Det tas forbehold om endringer i avgifter og gebyrer.
Tilbud om lånefinansiering
Megler formidler gjerne kontakt med rådgiver hos vår samarbeidspartner BN Bank. De har konkurransedyktige betingelser samt rask og løsningsorientert behandling av din lånesøknad. Krogsveen mottar et honorar for denne formidlingen.
Betalingsbetingelser
Kjøpesum inkludert omkostninger, samt pantedokument tilknyttet eventuelt lån, skal være disponibelt hos megler 2 virkedager før overtagelsen.
Annen viktig informasjon
Annen viktig informasjon
Eier
Marilyn Ann Owens
Konsesjon
Eiendommen er ikke konsesjonspliktig, men det er boplikt i Brevik kommune. For at eiendommen skal kunne overskjøtes må kjøper derfor signere på egenerklæring om konsesjonsfrihet.
Overtakelse
Etter nærmere avtale.
Boligselgerforsikring
Selger har i forbindelse med salget tegnet boligselgerforsikring levert av Gjensidige.
Boligselgerforsikringen dekker selgers ansvar etter avhendingsloven begrenset oppad til kr 14 millioner. Dersom kjøper oppdager forhold ved eiendommen som hen mener utgjør en mangel ved eiendommen, vil Gjensidige behandle reklamasjonen på vegne av selger. Forsikringsvilkår kan fås ved henvendelse til megler.
Vedlagt salgsoppgaven følger selgers egenerklæringsskjema og tilstandsrapport. Interessenter må sette seg inn i dokumentene før bud inngis.
Boligkjøperforsikring
Innen kontraktsmøtet må kjøper ta stilling til om det ønskes å bestille Boligkjøperpakken gjennom Gjensidige. I denne gunstige pakken er boligen ferdig forsikret og inkluderer rettshjelpsforsikring, også kalt Boligkjøperforsikring. Rettshjelpsforsikring gir trygghet og tilgang på profesjonell juridisk hjelp dersom det oppdages uventede feil eller mangler det første året etter overtagelse. Forsikringsselskapet behandler i så fall ethvert mangelskrav kjøper måtte ha overfor selger.
Boligkjøperpakken inkluderer bygningsforsikring for hus og hytte, innboforsikring, flytteforsikring og dobbel rentedekning - i situasjoner hvor kjøper ikke får solgt nåværende primærbolig.
Kjøper mottar ingen særskilt faktura for Boligkjøperpakken da kostnaden det første året legges til kjøpesummen for boligen. Det gjøres oppmerksom på Krogsveen mottar et honorar for denne formidlingen.
Produktark for Boligkjøperpakken ligger vedlagt i salgsoppgaven.
Dersom ikke boligkjøperpakke ønskes kan kun rettshjelpsforsikring, også kalt boligkjøperforsikring, tegnes særskilt via megler. Rettshjelpsforsikringen varer i 5 år fra overtagelse og leveres gjennom Gjensidige. Ta kontakt med megler for ytterligere informasjon.
Selskap og privatpersoner som driver med kjøp/salg/utvikling som ledd i egen næringsvirksomhet kan ikke tegne boligkjøperpakke eller rettshjelpsforsikring.
Budgivning
Forbrukerinformasjon om budgivning er vedlagt denne salgsoppgaven og er også på vår hjemmeside Krogsveen.no. Alle bud og budforhøyelser må inngis skriftlig. I tillegg må legitimasjon være fremlagt sammen med signatur fra budgiver.
Vi oppfordrer til å gi bud elektronisk via GI BUD-knappen på eiendommens hjemmeside på Krogsveen.no. Da vil samtlige vilkår bli oppfylt.
Eventuelle forhøyelser eller endringer av budet kan bekreftes pr SMS eller på e-post. Vi oppfordrer alltid til å kontakte megler pr. telefon i tillegg da forsinkelser i SMS og e-post kan forekomme.
For at budene skal kunne bli behandlet og videreformidlet skriftlig til alle involverte parter, må alle bud ha en tilstrekkelig lang akseptfrist, jf. eiendomsmeglingsforskriften § 6-3.
Selger må også skriftlig akseptere budet før aksept kan formidles til budgiver. Akseptfrist bør derfor være på minimum 30 minutter, og budforhøyelser må derfor skje i god tid før fristens utløp.
Bud i forbrukerforhold kan uansett ikke settes med kortere frist enn kl. 12.00 første virkedag etter siste annonserte visning. I tillegg kan ikke budet ha forbehold om at det skal holdes hemmelig ovenfor øvrige interessenter. Megler har iht lov om eiendomsmegling ikke anledning til å videreformidle disse budene, og de vil dermed heller ikke bli journalført.
Etter at eiendommen er solgt vil kjøper og selger få tilsendt budjournal. Øvrige budgivere kan få utlevert kopi av budjournalen i anonymisert form.
Hvitvaskingsreglene
I henhold til lov om hvitvasking og terrorfinansiering har megler plikt til å gjennomføre kontrolltiltak overfor kunder, herunder fullmektiger. Dette innebærer bl.a. å bekrefte kunders og reelle rettighetshaveres identitet på bakgrunn av fremvist gyldig legitimasjon eller på annen godkjent måte, samt å innhente opplysninger om kundeforholdets formål og tilsiktede art.
Dersom slike kundetiltak ikke kan gjennomføres, kan megler ikke etablere kundeforholdet eller utføre transaksjonen.
Hvis kjøper ikke bidrar til gjennomføring av kundekontrollen og dette fører til at transaksjonen blir forsinket eller ikke kan gjennomføres, vil dette ansees som mislighold av avtalen og gi selger rettigheter etter avhendingslova kapittel 5. I tilfeller der selger ikke bidrar til gjennomføring av løpende kundekontroll underveis i oppdraget, er det selger som misligholder sine forpliktelser etter avtalen og gi kjøper rettigheter etter avhendingslovens kapittel 4. Partene er selv ansvarlige for eventuelle kostnader og ansvar dette kan medføre. Eiendomsmegleren eller eiendomsmeglingsforetaket kan ikke holdes ansvarlig for de konsekvenser dette vil kunne få for partene eller andre som har interesser i eiendomshandelen.
Kjøper oppfordres til å innbetale kjøpesummen som ikke kommer fra låneinstitusjon i én samlet innbetaling fra egen konto i norsk bank. Megler har plikt til å melde fra til Økokrim om eiendomshandler som fremstår som mistenkelige. Melding sendes Økokrim uten at partene varsles.
Personopplysningsloven
I henhold til personopplysningsloven gjør vi oppmerksom på at interessenter kan bli registrert for videre oppfølging.
Lovanvendelse
Generelle bestemmelser
Salgsoppgaven er basert på de opplysningene selger har gitt til megler, den bygningssakyndiges tilstandsrapport, samt opplysninger innhentet fra kommunen, Kartverket og andre tilgjengelige kilder. Det er viktig at kjøper setter seg grundig inn i alle salgsdokumentene, herunder salgsoppgave, tilstandsrapport og selgers egenerklæring. Kjøper anses kjent med forhold som er tydelig beskrevet i salgsdokumentene, og slike forhold kan ikke påberopes som mangler. Dette gjelder uavhengig av om kjøper har lest dokumentene. Alle interessenter oppfordres til å undersøke eiendommen nøye, gjerne sammen med fagkyndig før bud inngis. Kjøper som velger å kjøpe usett kan ikke gjøre gjeldende som mangel noe han burde blitt kjent med ved undersøkelsen.
Dersom det er behov for avklaringer, anbefaler vi at interessenter rådfører seg med eiendomsmegler eller egne rådgivere før det legges inn bud.
En bolig som har blitt brukt i en viss tid, har vanligvis blitt utsatt for slitasje og skader kan ha oppstått. Slik bruksslitasje må kjøper regne med, og det kan avdekkes enkelte forhold etter overtakelse som nødvendiggjør utbedringer. Normal slitasje og skader som nødvendiggjør utbedring, er innenfor hva kjøper må forvente og vil ikke utgjøre en mangel.
Kjøper og selgers rettigheter og plikter reguleres av avtalen mellom partene, samt informasjonen som har vært tilgjengelig for kjøperen i forbindelse med handelen. Avtalen utfylles av avhendingsloven, og det gjelder ulike avtalevilkår avhengig av om kjøper er forbrukerkjøper eller ikke. Dette er nærmere beskrevet nedenfor.
På grunn av ulike avtalevilkår kan selger vurdere bud fra en som ikke er forbruker, ulikt fra en forbrukers bud. Dersom kjøper ikke er forbruker, er selger sitt mulige mangelsansvar begrenset fordi eiendommen selges "som den er". Selger kan ikke ta «som den er»- forbehold overfor en forbrukerkjøper. Selv et lavere bud fra en som ikke er forbruker kan foretrekkes fordi begrensningen i mulig mangelsansvar kan ha egenverdi for selger. Selger står fritt til å forkaste eller akseptere ethvert bud, og er for eksempel ikke forpliktet til å akseptere høyeste bud.
Budgiver skal i budskjema avgi egenerklæring om budgiver er forbruker eller næringsdrivende/ person som hovedsakelig handler som ledd i næringsvirksomhet. Budgivere får informasjon dersom andre bud er inngitt av en som ikke er forbruker.
Forbrukerkjøp - definisjon
Med forbrukerkjøp menes kjøp av eiendom når kjøperen er en fysisk person som ikke hovedsakelig handler som ledd i næringsvirksomhet.
Forbruker – avtalevilkår
Eiendommen har en mangel dersom den ikke er i samsvar med kravene som følger av avtalen, eller det foreligger brudd på bestemmelsene i avhendingsloven §§ 3-2 til 3-8. Hvis eiendommen ikke er i samsvar med det kjøperen må kunne forvente ut ifra alder, type og synlig tilstand, kan det være grunnlag for mangelskrav. Det samme gjelder hvis det er holdt tilbake eller gitt uriktige opplysninger om eiendommen. Dette gjelder likevel bare dersom man kan gå ut ifra at det virket inn på avtalen at opplysningen ikke ble gitt eller at mangelskravet ikke blir rettet i tide på en tydelig måte.
Boligen kan ha en mangel etter avhendingsloven § 3-3 andre ledd, dersom det er avvik mellom opplyst og faktisk innvendig areal, forutsatt at avviket er på 2% eller mer og minimum 1 kvm.
Ved beregning av et eventuelt prisavslag eller erstatning må kjøper selv dekke tap/kostnader opptil et beløp på kr 10 000 (egenandel).
Ikke-forbruker (næringsdrivende) – definisjon
Hvis kjøper er en juridisk person, eller en fysisk person som hovedsakelig handler som ledd i næringsvirksomhet, vil kjøpet ikke anses som et forbrukerkjøp.
Ikke-forbruker – avtalevilkår
Eiendommen har en mangel dersom den ikke er i samsvar med kravene som følger av avtalen.
Eiendommen selges «som den er», og selgers ansvar utover det konkret avtalte er da begrenset etter avhendingsloven § 3-9, første ledd andre setning.
Avhendingsloven § 3-3 andre ledd fravikes, og hvorvidt boligens arealsvikt utgjør en mangel vurderes etter avhendingsloven § 3-8.
Informasjon om kjøpers undersøkelsesplikt, herunder oppfordringen om å undersøke eiendommen nøye, gjelder også for kjøpere som ikke anses som forbrukere.
Det forutsettes at hjemmel overføres til kjøper. Hvis kjøper ikke ønsker hjemmelsoverføring av eiendommen, må det tas forbehold om dette i budet.
Rett til fritt å velge megler
Valg av eiendomsmeglingsforetak skal være frivillig. Eiendomsmeglingsforetak kan ikke inngå oppdrag om eiendomsmegling dersom inngåelsen av oppdraget er satt som vilkår i avtale om annet enn eiendomsmegling, f.eks. tilbud om lån eller andre banktjenester, jf. Lov om eiendomsmegling § 6-3 (3)
Meglers vederlag
Meglers vederlag betales av selger og er avtalt til:
Vederlag: 3,125 % av salgssummen.
Vederlag
Kontroll av hjemmel og heftelser kr 2 900,-
Markedsføringspakke kr 24 950,-
Oppgjør kr 7 500,-
Tilrettelegging kr 17 000,-
Utlegg
Innhenting av offentlig opplysninger Porsgrunn inkl tegninger kr 2 394,-
Tinglysing sikring kr 500,-
Andre utgifter
Boligselgerforsikring Gjensidige inkl. tilstandsrapport Anticimex kr 25 210,- (Forutsatt salg til prisantydning)
Foto - inkl. drone kr 4 550,-
Opplysninger om oppdraget
Oppdragsnummer 28-0029/24
Eiendomsmegler Krogsveen AS, avd. Bamble og Porsgrunn
Strandgata 22, 3960, STATHELLE
950 007 613
Oppdragets KR-kode KR28.2429
Dato
Sist oppdatert: 09. september 2025 kl. 13:38
Dokumenter
Dokumenter
PDF – 229 KB
PDF – 316 KB
PDF – 316 KB
PDF – 987 KB
PDF – 987 KB
PDF – 312 KB
PDF – 29 KB
PDF – 127 KB
PDF – 392 KB
Område
Legg til steder som er viktige for deg
Visning
For å delta på visning, ber vi om at du melder deg på. Da sikrer vi at du får nødvendig informasjon og at det er satt av tilstrekkelig med tid. Kontakt megler dersom annet tidspunkt ønskes. Husk å lese salgsoppgaven før visningen, så du stiller forberedt.
Ønsker du kun å bli holdt orientert, kan du fra eiendommens hjemmeside få varsel om solgtpris, eller kontakte megler.
Lurer du på noe?
Unngå doble boligrenter
Vi tilbyr gunstig forsikring.
Vurderer du utleie?
Få et tilbud fra Utleie KrogsveenHva koster lånet?
Sjekk estimert lånekostnadVil du varsles om lignende boliger?
Ved å lagre ditt boligsøk hos oss får du beskjed når vi har en bolig som ligner denne, før den legges ut på markedet!




