Holmestrandsveien 16B
3 690 000 kr
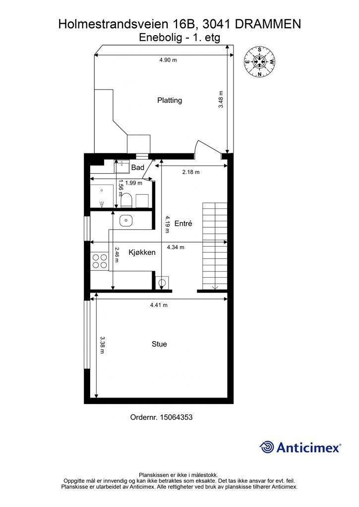
63 m²
2 soverom
Solgt

Presenteres av
Christopher SandRundtom
Sentralt og stilfullt byhus med skjermet bakgård. Gode solforhold. To biloppstillingsplasser. El-bil lader
Prisantydning
3 690 000 krOmkostninger
113 240 krTotalpris
3 803 240 kr
Pris
Bruksareal
73 m²BRA-I (internt bruksareal)
63 m²BRA-E (eksternt bruksareal)
10 m²TBA (terrasse-balkongareal)
17 m²
Areal
Etasje
2Byggeår
1917Soverom
2 soveromBad
1 badType
Enebolig - FrittliggendeEierform
EierseksjonFasiliteter
Garasje/P-plass og Balkong/TerrasseEnergimerke
Oransje G
Nøkkelinfo
Unngå doble boligrenter
Vi tilbyr gunstig forsikring.
Vurderer du utleie?
Få et tilbud fra Utleie KrogsveenHva koster lånet?
Sjekk estimert lånekostnadBeskrivelse
Kort om eiendommen
Holmestrandsveien 16B
Meget sentral enebolig på to plan, med skjermet bakgård og idyllisk uteplass med sydvent platting. Boligen fra 1917 har bevart sin sjarm og vakre detaljer fra tidligere tider, samtidig som den er oppdatert med moderne løsninger.
Gode solforhold
Plass til to biler i felles gruset gårdsplass. Montert el-bil lader i 2022
God planløsning med gjennomgående god standard
Luft til luft varmepumpe
Terrasseplatting på 17 kvm
Lyst og pent kjøkken fra 2016
Uthus/bod på ca. 10kvm med god lagringsplass
Fasaden på nord- og vestsiden av huset ble fornyet og pusset i 2024
Gangavstand til dagligvare og bussforbindelser
Kort vei til sentrum
Velkommen til visning!
Område
Legg til steder som er viktige for deg
På flyttefot? Tenk kjøp og salg samtidig.
Få din egen rådgiver gjennom hele kjøps- og salgsprosessen. Det starter med en verdivurdering.
Unngå doble boligrenter
Vi tilbyr gunstig forsikring.
Vurderer du utleie?
Få et tilbud fra Utleie KrogsveenHva koster lånet?
Sjekk estimert lånekostnadVil du varsles om lignende boliger?
Ved å lagre ditt boligsøk hos oss får du beskjed når vi har en bolig som ligner denne, før den legges ut på markedet!
På flyttefot? Slik gjør vi det enklere for deg
Skreddersydd flyttepakke
Vi fikser håndverkere, vask, pakking, lagring og transport, og legger ut for utgiftene underveis.
Hjelp med både kjøp og salg
Hos oss har du din egen rådgiver gjennom hele kjøps- og salgsprosessen.
Hjelp til finansiering
Vårt samarbeid med BN Bank sikrer deg rask og løsningsorientert hjelp, til konkurransedyktige betingelser.

