Torvteigen 14
2 650 000 kr
95 m²
2 soverom
Solgt

Larsgården
Bud mottatt! Moderne 3-roms leilighet med veranda og garasjeplass. Renovert i 2024/2025
Prisantydning
2 650 000 krAndel fellesgjeld
617 581 krOmkostninger
19 252 krTotalpris
3 286 833 kr
Pris
Bruksareal
101,3 m²BRA-I (internt bruksareal)
95 m²BRA-E (eksternt bruksareal)
6,3 m²TBA (terrasse-balkongareal)
15 m²
Areal
Etasje
2Byggeår
1985Soverom
2 soveromBad
1 badType
AndelsleilighetEierform
AndelFasiliteter
Garasje/P-plass og Balkong/TerrasseFellesutgifter
7 097 krEnergimerke
Rød F
Nøkkelinfo
Unngå doble boligrenter
Vi tilbyr gunstig forsikring.
Vurderer du utleie?
Få et tilbud fra Utleie KrogsveenHva koster lånet?
Sjekk estimert lånekostnadBeskrivelse
Kort om eiendommen
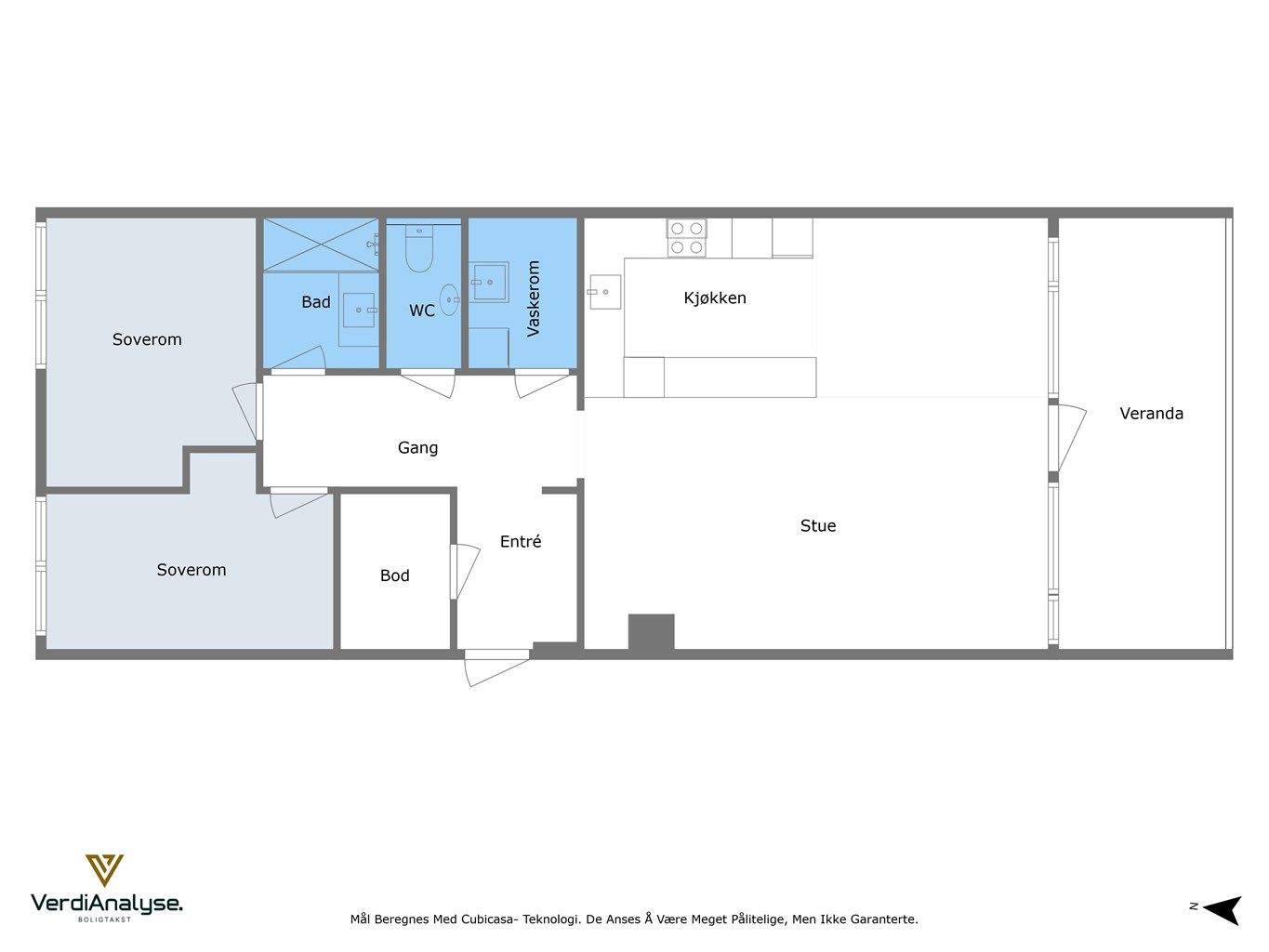
Velkommen til Torvteigen 14 i Ålesund. En moderne og oppgradert 3-roms leilighet med gjennomgående god standard og attraktiv beliggenhet. Leiligheten ble renovert i 2024/2025 (Bad 2011) og fremstår med tidsriktige materialvalg og lyse overflater.
Her får du:
* Nytt Norema-kjøkken (2025) med integrerte hvitevarer (ukjent alder)
* Romslig stue med utgang til veranda på ca. 15 kvm
* To lyse soverom
* To ekstra boder og egen biloppstillingsplass i felles garasjeanlegg med bilvaskeplass
Beliggenheten er tilbaketrukket og familievennlig, men samtidig sentral med kort vei til barnehage, skole, dagligvare, idrettstilbud og flotte turområder som Akslafjellet og Borgundgavlen.
Område
Legg til steder som er viktige for deg
På flyttefot? Tenk kjøp og salg samtidig.
Få din egen rådgiver gjennom hele kjøps- og salgsprosessen. Det starter med en verdivurdering.
Unngå doble boligrenter
Vi tilbyr gunstig forsikring.
Vurderer du utleie?
Få et tilbud fra Utleie KrogsveenHva koster lånet?
Sjekk estimert lånekostnadVil du varsles om lignende boliger?
Ved å lagre ditt boligsøk hos oss får du beskjed når vi har en bolig som ligner denne, før den legges ut på markedet!

