Grønsundveien 60
9 500 000 kr
159 m²
3 soverom
Solgt

Presenteres av
Mats LundSjelden mulighet! Meget romslig og innholdsrik leilighet med vinterhage, to terrasser og garasje!
Prisantydning
9 500 000 krOmkostninger
248 540 krTotalpris
9 748 540 kr
Pris
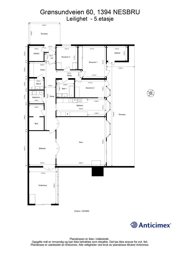
Bruksareal
201 m²BRA-I (internt bruksareal)
159 m²BRA-E (eksternt bruksareal)
4 m²TBA (terrasse-balkongareal)
68 m²
Areal
Etasje
5Byggeår
1970Soverom
3 soveromType
EierleilighetEierform
EierseksjonFasiliteter
Balkong/TerrasseFellesutgifter
3 333 krEnergimerke
Oransje F
Nøkkelinfo
Unngå doble boligrenter
Vi tilbyr gunstig forsikring.
Vurderer du utleie?
Få et tilbud fra Utleie KrogsveenHva koster lånet?
Sjekk estimert lånekostnadBeskrivelse
Område
Legg til steder som er viktige for deg
På flyttefot? Tenk kjøp og salg samtidig.
Få din egen rådgiver gjennom hele kjøps- og salgsprosessen. Det starter med en verdivurdering.
Unngå doble boligrenter
Vi tilbyr gunstig forsikring.
Vurderer du utleie?
Få et tilbud fra Utleie KrogsveenHva koster lånet?
Sjekk estimert lånekostnadVil du varsles om lignende boliger?
Ved å lagre ditt boligsøk hos oss får du beskjed når vi har en bolig som ligner denne, før den legges ut på markedet!
På flyttefot? Slik gjør vi det enklere for deg
Skreddersydd flyttepakke
Vi fikser håndverkere, vask, pakking, lagring og transport, og legger ut for utgiftene underveis.
Hjelp med både kjøp og salg
Hos oss har du din egen rådgiver gjennom hele kjøps- og salgsprosessen.
Hjelp til finansiering
Vårt samarbeid med BN Bank sikrer deg rask og løsningsorientert hjelp, til konkurransedyktige betingelser.
