Selvbyggerveien 113
11 580 000 kr
124 m²
3 soverom
Solgt

Presenteres av
Hanne PettersenÅrvoll/Tonsenhagen
LYCKLIGA GATAN! Sjarmerende enderekkehus omkranset av frodig hage - Fantastisk beliggenhet - Garasje m/EL og hems
Prisantydning
11 580 000 krAndel fellesgjeld
385 253 krOmkostninger
18 978 krTotalpris
11 984 231 kr
Pris
Bruksareal
145 m²BRA-I (internt bruksareal)
124 m²BRA-E (eksternt bruksareal)
21 m²
Areal
Byggeår
1952Soverom
3 soveromBad
1 badType
RekkehusEierform
AndelFasiliteter
Garasje/P-plass og Balkong/TerrasseFellesutgifter
6 536 krEnergimerke
Rød G
Nøkkelinfo
Unngå doble boligrenter
Vi tilbyr gunstig forsikring.
Vurderer du utleie?
Få et tilbud fra Utleie KrogsveenHva koster lånet?
Sjekk estimert lånekostnadBeskrivelse
Kort om eiendommen
Sletta borettslag er Tonsenhagens svar på Bakkebygrenda.
Beliggende i markagrensen, omringet av store grøntareal med fotballbaner, lekeparker, skiløyper, slalåmbakke, skøytebane og badedam.
Her løper og sykler barn på bilfrie veier mellom rekkehusene - ren barndomsidyll.
Enderekkehuset vender mot ett enormt, fredet grøntareal.
Tiltalende og sjeldent enderekkehus med meget god beliggenhet mot friareal.
Denne boligen må virkelig oppleves!
Utgang til idyllisk hage med gress, frukttrær og bærbusker
Meget gode solforhold
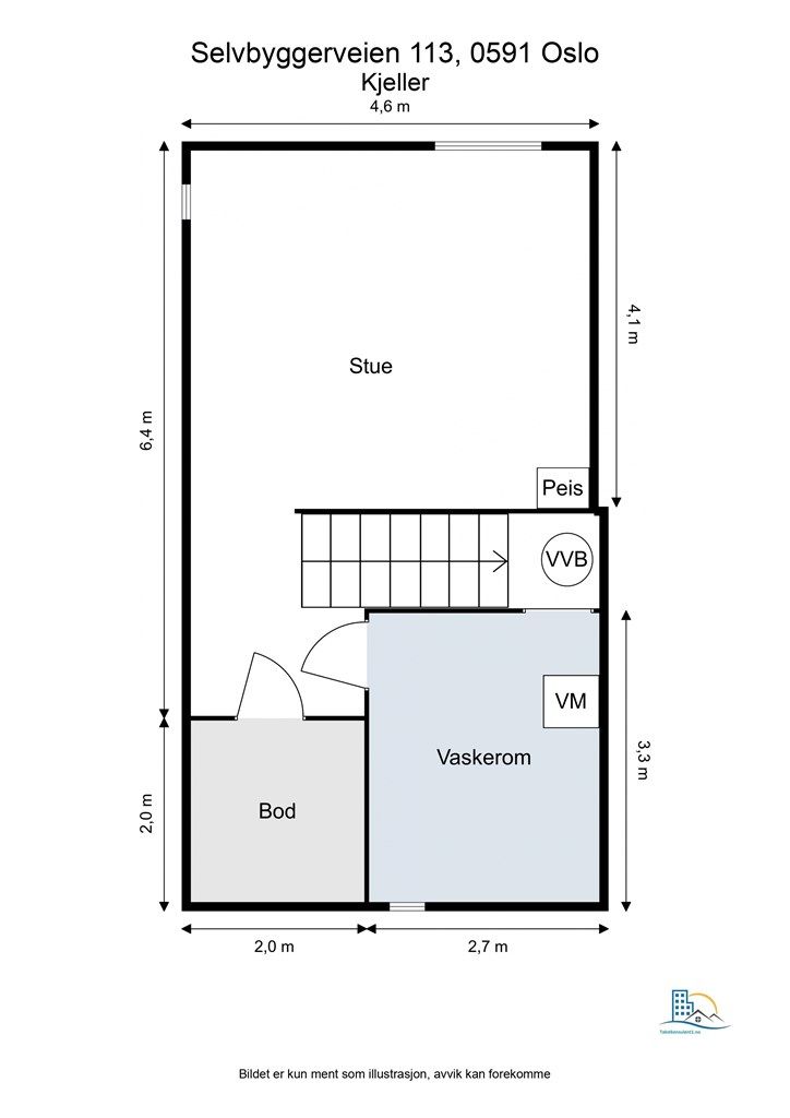
Peis
3 luftige soverom
Kjellerstue (ikke varig oppholdsrom)
Utvendig bod på 4 kvm med inngang fra hagen
Garasje med elbillader på 17 kvm + hems på 8 kvm
Forkjøpsretten er forhåndsutlyst
Område
Legg til steder som er viktige for deg
På flyttefot? Tenk kjøp og salg samtidig.
Få din egen rådgiver gjennom hele kjøps- og salgsprosessen. Det starter med en verdivurdering.
Unngå doble boligrenter
Vi tilbyr gunstig forsikring.
Vurderer du utleie?
Få et tilbud fra Utleie KrogsveenHva koster lånet?
Sjekk estimert lånekostnadVil du varsles om lignende boliger?
Ved å lagre ditt boligsøk hos oss får du beskjed når vi har en bolig som ligner denne, før den legges ut på markedet!
På flyttefot? Slik gjør vi det enklere for deg
Skreddersydd flyttepakke
Vi fikser håndverkere, vask, pakking, lagring og transport, og legger ut for utgiftene underveis.
Hjelp med både kjøp og salg
Hos oss har du din egen rådgiver gjennom hele kjøps- og salgsprosessen.
Hjelp til finansiering
Vårt samarbeid med BN Bank sikrer deg rask og løsningsorientert hjelp, til konkurransedyktige betingelser.

