Tiurveien 24
5 950 000 kr
175 m²
3 soverom
Solgt

Presenteres av
Simen Ruud Hallermoen/Konnerud
Innbydende halvpart av vertikaldelt bolig. Flott utsikt & skjermet hage. Bad 2017 og kjøkken 2021. 2 carportplasser.
Prisantydning
5 950 000 krOmkostninger
169 740 krTotalpris
6 119 740 kr
Pris
Bruksareal
183 m²BRA-I (internt bruksareal)
175 m²BRA-E (eksternt bruksareal)
8 m²TBA (terrasse-balkongareal)
35 m²
Areal
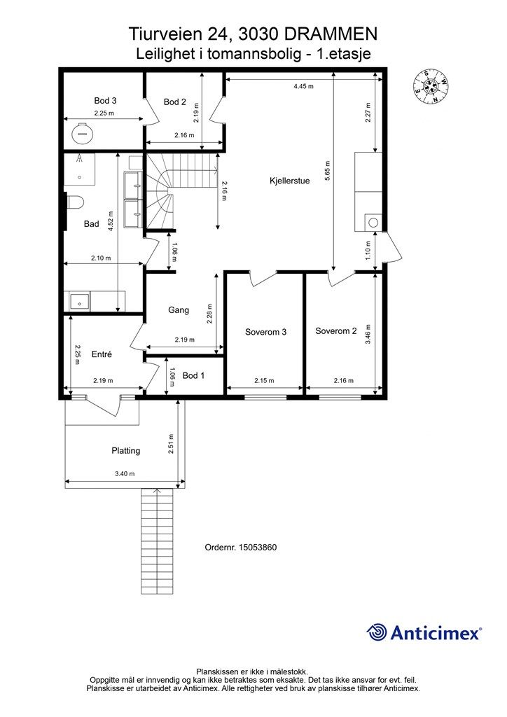
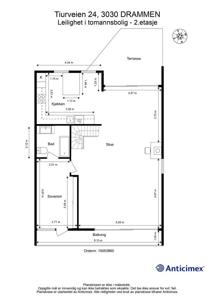
Etasje
2Byggeår
1974Soverom
3 soveromBad
2 badTomteareal
612 m² (eiet)Type
Halvpart vertikaldelt boligEierform
EietFasiliteter
Garasje/P-plass og Balkong/TerrasseEnergimerke
Gul F
Nøkkelinfo
Unngå doble boligrenter
Vi tilbyr gunstig forsikring.
Vurderer du utleie?
Få et tilbud fra Utleie KrogsveenHva koster lånet?
Sjekk estimert lånekostnadBeskrivelse
Kort om eiendommen
Innbydende og pen halvpart av vertikaldelt 2-mannsbolig med 2 etasjer.
Lys og luftig stue med peisovn fra 2015 samt varmepumpe fra 2017
Moderne og delikat kjøkken fra 2021 med praktisk kjøkkenhalvøy
Flislagt bad i 2. etasje med fliser fra 2008, badekar og gulvvarme
Stilrent bad fra 2017 i 1. etasje med vaskeromsdel, regnfallsdusj og gulvvarme
Ny innmat inkl. overspenningsvern i sikringsskap i 2021
Overbygget nordvendt balkong på ca. 9 kvm med nydelig vidstrakt utsikt fra høyden
Delvis overbygget sydvendt terrasse på ca. 17 kvm og skjermede grøntarealer bak boligen
2 parkeringsplasser i felles carport (el-billader fra 2020)
Eiendommen ligger i et attraktivt og barnevennlig boligområde med kort og trygg vei til barneskole og barnehage
Område
Legg til steder som er viktige for deg
På flyttefot? Tenk kjøp og salg samtidig.
Få din egen rådgiver gjennom hele kjøps- og salgsprosessen. Det starter med en verdivurdering.
Unngå doble boligrenter
Vi tilbyr gunstig forsikring.
Vurderer du utleie?
Få et tilbud fra Utleie KrogsveenHva koster lånet?
Sjekk estimert lånekostnadVil du varsles om lignende boliger?
Ved å lagre ditt boligsøk hos oss får du beskjed når vi har en bolig som ligner denne, før den legges ut på markedet!
På flyttefot? Slik gjør vi det enklere for deg
Skreddersydd flyttepakke
Vi fikser håndverkere, vask, pakking, lagring og transport, og legger ut for utgiftene underveis.
Hjelp med både kjøp og salg
Hos oss har du din egen rådgiver gjennom hele kjøps- og salgsprosessen.
Hjelp til finansiering
Vårt samarbeid med BN Bank sikrer deg rask og løsningsorientert hjelp, til konkurransedyktige betingelser.

