Levretoppen 20
6 000 000 kr
133 m²
3 soverom
Solgt
GJETTUM
Enderekkehus med 3(4) soverom-Oppussingsbehov-Hage & store fellesarealer-Garasjeplass - Noen minutters gange til T-bane
Prisantydning
6 000 000 krAndel fellesgjeld
250 000 krOmkostninger
167 290 krTotalpris
6 417 290 kr
Pris
Bruksareal
148 m²BRA-I (internt bruksareal)
133 m²BRA-E (eksternt bruksareal)
15 m²TBA (terrasse-balkongareal)
4 m²
Areal
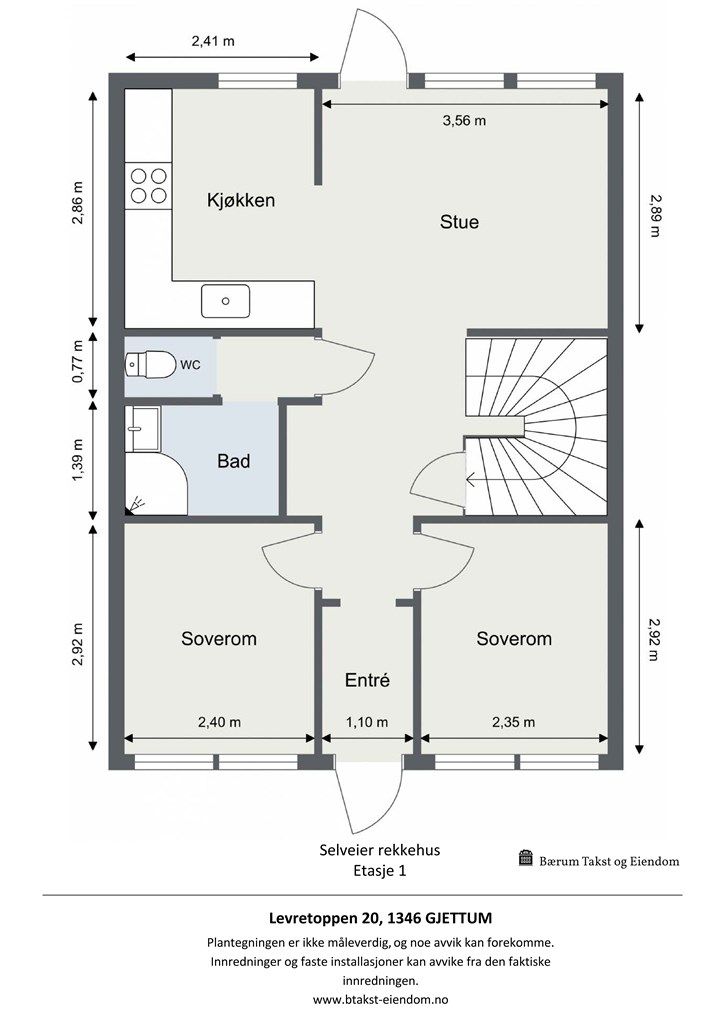
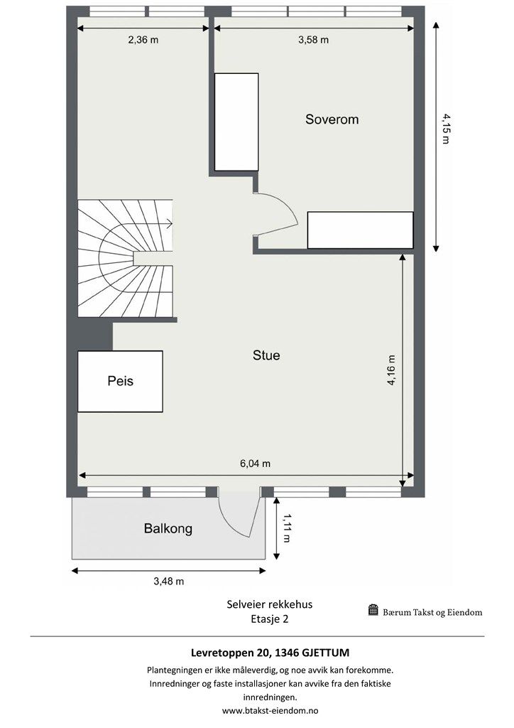
Etasje
3Byggeår
1960Soverom
3 soveromBad
1 badType
RekkehusEierform
EierseksjonFasiliteter
Garasje/P-plass og Balkong/TerrasseFellesutgifter
1 000 krEnergimerke
Rød G
Nøkkelinfo
Unngå doble boligrenter
Vi tilbyr gunstig forsikring.
Vurderer du utleie?
Få et tilbud fra Utleie KrogsveenHva koster lånet?
Sjekk estimert lånekostnadBeskrivelse
Kort om eiendommen
Velkommen til Levretoppen 20, presentert av Eiendomsmegler Kristoffer Stormfelt - Lyst og innholdsrikt enderekkehus over tre plan med oppussingsbehov, beliggende i et attraktivt og barnevennlig område på Gjettum. Praktisk planløsning med stue i andre etasje. Svært gode solforhold og tilgang til stort, velstelt fellesområde. Kort vei til marka, Kolsåstoppen, skoler, barnehager og kollektivtransport. Det er godt med bodplass og eget vaskerom. Bolig med stort potensial i et populært område.
-Enderekkehus med oppussingsbehov over 3 plan
-Gavlvegg er ettersiolert utvendig
-Kjøkken er nytt i 2024/25
-Mulighet for et fjerde soverom
-Svært gode solforhold med flott utsikt
-Garasjeplass med mulighet for el ladning
-Kort vei til t-bane og Bærum sykehus
Område
Legg til steder som er viktige for deg
Meglere

Kristoffer Stormfelt
Daglig leder/Eiendomsmegler

Marius Stormfelt
Eiendomsmegler/Fagansvarlig
Ansvarlig megler Kristoffer Stormfelt
På flyttefot? Tenk kjøp og salg samtidig.
Få din egen rådgiver gjennom hele kjøps- og salgsprosessen. Det starter med en verdivurdering.
Unngå doble boligrenter
Vi tilbyr gunstig forsikring.
Vurderer du utleie?
Få et tilbud fra Utleie KrogsveenHva koster lånet?
Sjekk estimert lånekostnadVil du varsles om lignende boliger?
Ved å lagre ditt boligsøk hos oss får du beskjed når vi har en bolig som ligner denne, før den legges ut på markedet!
På flyttefot? Slik gjør vi det enklere for deg
Skreddersydd flyttepakke
Vi fikser håndverkere, vask, pakking, lagring og transport, og legger ut for utgiftene underveis.
Hjelp med både kjøp og salg
Hos oss har du din egen rådgiver gjennom hele kjøps- og salgsprosessen.
Hjelp til finansiering
Vårt samarbeid med BN Bank sikrer deg rask og løsningsorientert hjelp, til konkurransedyktige betingelser.


