Idrettsveien 62
6 750 000 kr
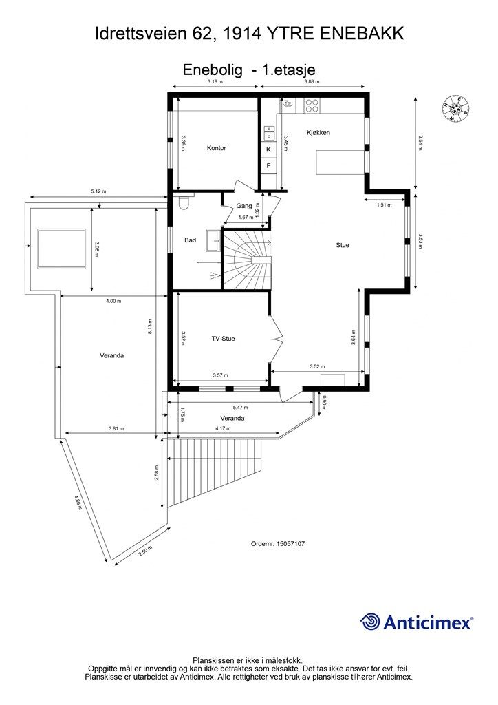
151 m²
5 soverom
Solgt

Presenteres av
Henrik SkalstadYtre Enebakk
Moderne enebolig med attraktiv og barnevennlig beliggenhet I Nyetablerte store uteplasser I Dobbelgarasje
Prisantydning
6 750 000 krOmkostninger
189 740 krTotalpris
6 939 740 kr
Pris
Bruksareal
194 m²BRA-I (internt bruksareal)
151 m²BRA-E (eksternt bruksareal)
43 m²TBA (terrasse-balkongareal)
84 m²
Areal
Byggeår
2012Soverom
5 soveromBad
2 badTomteareal
578 m² (eiet)Type
Enebolig - FrittliggendeEierform
EietFasiliteter
Garasje/P-plass og Balkong/TerrasseÅrlig velavgift
2 100 krEnergimerke
Rød C
Nøkkelinfo
Unngå doble boligrenter
Vi tilbyr gunstig forsikring.
Vurderer du utleie?
Få et tilbud fra Utleie KrogsveenHva koster lånet?
Sjekk estimert lånekostnadBeskrivelse
Kort om eiendommen
Velkommen til Idrettsveien 62!
- Lekker enebolig over to plan
- Ypperlig familiebolig med god planløsning
- Svært gode solforhold med flere solrike uteplasser.
- Dobbelgarasje. Garasjen er i dag innrredet som treningsrom
- Attraktivt og barnevennlig område
- Kort vei til barnehager og barne- og ungdomsskole
- Flott 18-hulls golfbane ligger mellom Mjær og Våg
- Umiddelbar nærhet til Østmarka med flott turterreng
- Flere fine badeplasser i område
- Ca. 20 minutter med bil til Ski sentrum med alt av servicetilbud
Område
Legg til steder som er viktige for deg
På flyttefot? Tenk kjøp og salg samtidig.
Få din egen rådgiver gjennom hele kjøps- og salgsprosessen. Det starter med en verdivurdering.
Unngå doble boligrenter
Vi tilbyr gunstig forsikring.
Vurderer du utleie?
Få et tilbud fra Utleie KrogsveenHva koster lånet?
Sjekk estimert lånekostnadVil du varsles om lignende boliger?
Ved å lagre ditt boligsøk hos oss får du beskjed når vi har en bolig som ligner denne, før den legges ut på markedet!
På flyttefot? Slik gjør vi det enklere for deg
Skreddersydd flyttepakke
Vi fikser håndverkere, vask, pakking, lagring og transport, og legger ut for utgiftene underveis.
Hjelp med både kjøp og salg
Hos oss har du din egen rådgiver gjennom hele kjøps- og salgsprosessen.
Hjelp til finansiering
Vårt samarbeid med BN Bank sikrer deg rask og løsningsorientert hjelp, til konkurransedyktige betingelser.

