Østreheimsveien 23A
11 380 000 kr
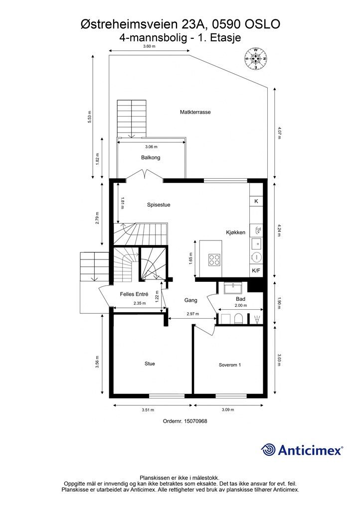
128 m²
4 soverom
Solgt

Presenteres av
Hanne PettersenÅRVOLL
SJELDEN ANLEDNING - Nydelig del av 4-mannsbolig over to plan med høy standard - Balkong og hage - 4 sov - 1,5 bad
Prisantydning
11 380 000 krAndel fellesgjeld
312 500 krOmkostninger
303 340 krTotalpris
11 995 840 kr
Pris
Bruksareal
128 m²BRA-I (internt bruksareal)
128 m²TBA (terrasse-balkongareal)
36 m²
Areal
Byggeår
1952Soverom
4 soveromBad
2 badType
EierleilighetEierform
EierseksjonFasiliteter
Balkong/TerrasseFellesutgifter
5 500 krEnergimerke
Gul F
Nøkkelinfo
Unngå doble boligrenter
Vi tilbyr gunstig forsikring.
Vurderer du utleie?
Få et tilbud fra Utleie KrogsveenHva koster lånet?
Sjekk estimert lånekostnadBeskrivelse
Kort om eiendommen
Dette er din mulighet for å skaffe deg en av områdets flotteste familieboliger!
Boligen går over to etasjer og byr på 4 gode soverom, 2 stuer og 1,5 baderom. Boligen er fullspekket med smarte løsninger, her er ingenting overlatt til tilfeldighetene!
Frodig, gressbelagt hage omkranset av grønn tett hekk - en skikkelig hagedrøm med balkong og markterrasse. Hagen har meget gode solforhold, ikke minst: her er det plass til trampoline!
Setter du pris på umiddelbar nærhet til marka og enkel adkomst til sentrum? Da er denne boligen et fantastisk alternativ! - her snakker vi hverdagsidyll året rundt!
Oppusset mellom 2023-2025
Parkering med elbillader og mulighet for egen garasje*
Allsidig planløsning med mulighet for etablering av hybel!
Område
Legg til steder som er viktige for deg
På flyttefot? Tenk kjøp og salg samtidig.
Få din egen rådgiver gjennom hele kjøps- og salgsprosessen. Det starter med en verdivurdering.
Unngå doble boligrenter
Vi tilbyr gunstig forsikring.
Vurderer du utleie?
Få et tilbud fra Utleie KrogsveenHva koster lånet?
Sjekk estimert lånekostnadVil du varsles om lignende boliger?
Ved å lagre ditt boligsøk hos oss får du beskjed når vi har en bolig som ligner denne, før den legges ut på markedet!
På flyttefot? Slik gjør vi det enklere for deg
Skreddersydd flyttepakke
Vi fikser håndverkere, vask, pakking, lagring og transport, og legger ut for utgiftene underveis.
Hjelp med både kjøp og salg
Hos oss har du din egen rådgiver gjennom hele kjøps- og salgsprosessen.
Hjelp til finansiering
Vårt samarbeid med BN Bank sikrer deg rask og løsningsorientert hjelp, til konkurransedyktige betingelser.

