Langgata 102C
4 790 000 kr
133 m²
4 soverom
Solgt

Sandnes sentrum
BUD FORELIGGER - Nyoppusset/renovert flott leilighet, 4 soverom, romslig bad/vaskerom, gjeste wc, stor terrasse m.m
Prisantydning
4 790 000 krOmkostninger
130 790 krTotalpris
4 920 790 kr
Pris
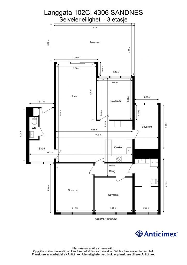
Bruksareal
141 m²BRA-I (internt bruksareal)
133 m²BRA-E (eksternt bruksareal)
8 m²TBA (terrasse-balkongareal)
31 m²
Areal
Etasje
3Byggeår
1980Soverom
4 soveromBad
1 badType
EierleilighetEierform
EierseksjonFasiliteter
Garasje/P-plass, Heis og Balkong/TerrasseFellesutgifter
3 980 krEnergimerke
Rød D
Nøkkelinfo
Unngå doble boligrenter
Vi tilbyr gunstig forsikring.
Vurderer du utleie?
Få et tilbud fra Utleie KrogsveenHva koster lånet?
Sjekk estimert lånekostnadBeskrivelse
Kort om eiendommen
En lekker og stilren leilighet, med store oppgraderinger slik at den fremstår både moderne og innflytningsklar.
Oppgraderinger er utført i 2024/2025 og inkluderer blant annet:
- Nye gulv + oppgraderte overflater i alle rom
- Nytt kjøkken med integrerte hvitevarer, samt godt med skap/benkeplass + nytt rør / elektrisk opplegg.
- Nytt romslig bad / vaskerom, med fliser på gulv, vegghengt wc, innredning med helstøpt servant + speil med integrert lys+
- Alt nytt inkl. sluk/membran/rør i rør system m.m.
- Nytt el.anlegg.
- Nytt vegghengt wc, innredning og speil med integrert belysning på gjeste wc.
- Oppgradert og totalrenovert elektrisk anlegg i leiligheten og ny belysning.
- Ny romslig terrasse på ca. 31 kvm med ettermiddag/kveldssol.
- Biloppstillingsplass og bod i fellesareal.
Område
Legg til steder som er viktige for deg
På flyttefot? Tenk kjøp og salg samtidig.
Få din egen rådgiver gjennom hele kjøps- og salgsprosessen. Det starter med en verdivurdering.
Unngå doble boligrenter
Vi tilbyr gunstig forsikring.
Vurderer du utleie?
Få et tilbud fra Utleie KrogsveenHva koster lånet?
Sjekk estimert lånekostnadVil du varsles om lignende boliger?
Ved å lagre ditt boligsøk hos oss får du beskjed når vi har en bolig som ligner denne, før den legges ut på markedet!

