Skiveien 198A
4 790 000 kr
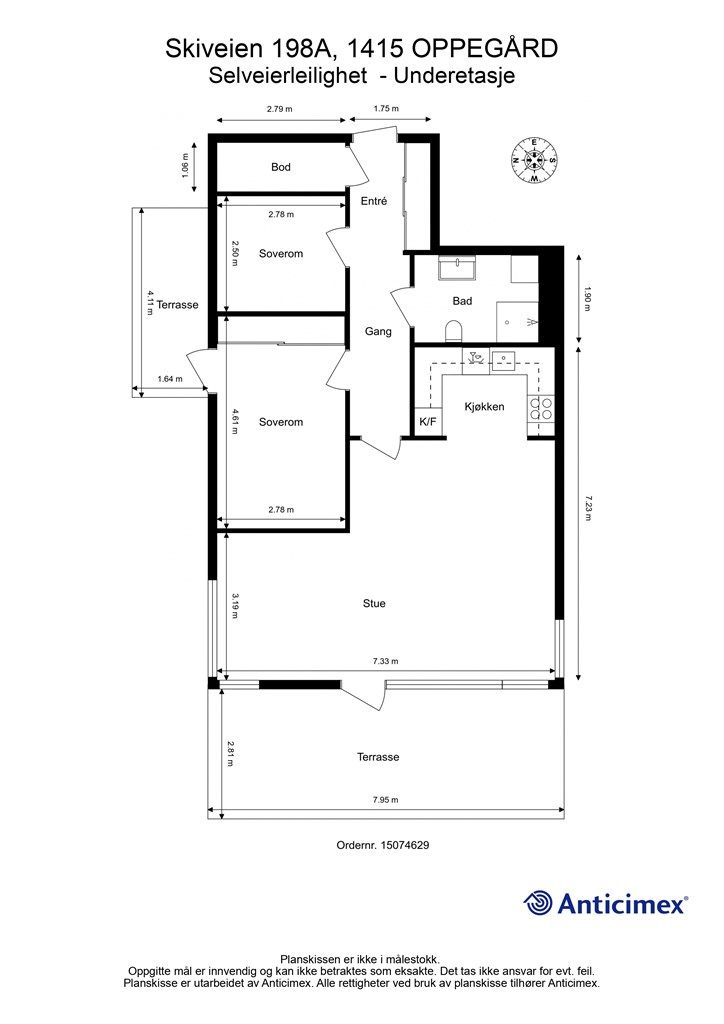
80 m²
2 soverom
Solgt

Presenteres av
Marius ElstadOppegård
Moderne 3-roms hjørneleilighet fra 2016 | 2 fine uteplasser | Garasjeplass | Heis | Barnevennlig | Sentralt
Prisantydning
4 790 000 krAndel fellesgjeld
21 736 krOmkostninger
131 310 krTotalpris
4 943 046 kr
Pris
Bruksareal
84 m²BRA-I (internt bruksareal)
80 m²BRA-E (eksternt bruksareal)
4 m²TBA (terrasse-balkongareal)
29 m²
Areal
Etasje
-1Byggeår
2016Soverom
2 soveromBad
1 badType
EierleilighetEierform
EierseksjonFasiliteter
Garasje/P-plass, Heis og Balkong/TerrasseFellesutgifter
4 088 krEnergimerke
Rød C
Nøkkelinfo
Unngå doble boligrenter
Vi tilbyr gunstig forsikring.
Vurderer du utleie?
Få et tilbud fra Utleie KrogsveenHva koster lånet?
Sjekk estimert lånekostnadBeskrivelse
Kort om eiendommen
Velkommen til Skiveien 198A!
- Lys og romslig leilighet på bakkeplan med gjennomgående god standard.
- Vestvendt markterrasse på stuesiden (22 kvm) og nordvendt markterrasse med egen utgang fra hovedsoverom (7 kvm)
- Vannbåren gulvvarme og balansert ventilasjon
- Mulighet for 3 soverom
- Garasjeplass med mulighet for lader og heis i bygget
- Vaktmestertjeneste som foretar gressklipping, snømåking mm.
- Tilgang til felles takterrasse og festlokale i nabobygget
- Kort gangavstand til bussholdeplass og togstasjon med gode forbindelser til Oslo og Ski
- Kort vei til Greverud og Oppegård nærsenter, barnehager, skoler, Tussetjern, golfbane, m.m.
- Flotte tur- og rekreasjonsmuligheter i området
- Leiligheten er innflyttingsklar med mulighet for rask overtakelse
Område
Legg til steder som er viktige for deg
På flyttefot? Tenk kjøp og salg samtidig.
Få din egen rådgiver gjennom hele kjøps- og salgsprosessen. Det starter med en verdivurdering.
Unngå doble boligrenter
Vi tilbyr gunstig forsikring.
Vurderer du utleie?
Få et tilbud fra Utleie KrogsveenHva koster lånet?
Sjekk estimert lånekostnadVil du varsles om lignende boliger?
Ved å lagre ditt boligsøk hos oss får du beskjed når vi har en bolig som ligner denne, før den legges ut på markedet!
På flyttefot? Slik gjør vi det enklere for deg
Skreddersydd flyttepakke
Vi fikser håndverkere, vask, pakking, lagring og transport, og legger ut for utgiftene underveis.
Hjelp med både kjøp og salg
Hos oss har du din egen rådgiver gjennom hele kjøps- og salgsprosessen.
Hjelp til finansiering
Vårt samarbeid med BN Bank sikrer deg rask og løsningsorientert hjelp, til konkurransedyktige betingelser.

