Dugnadsveien 13
4 480 000 kr
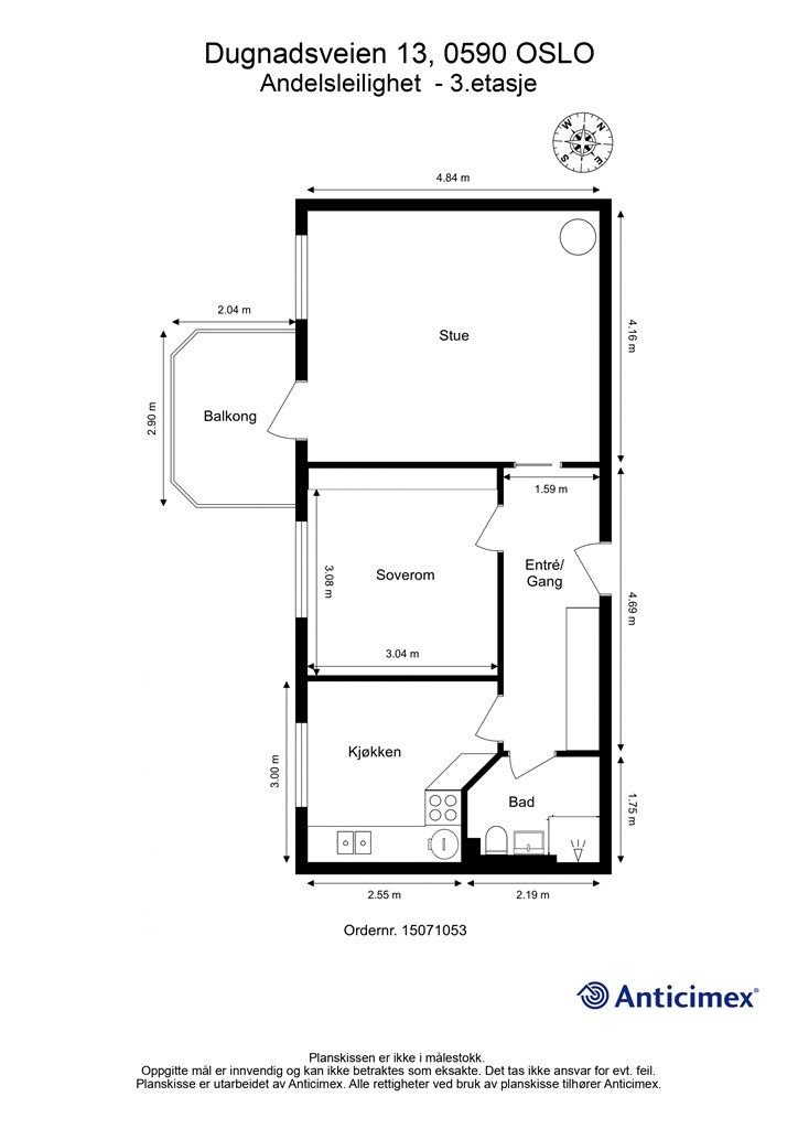
54 m²
1 soverom
Solgt

Presenteres av
Jan Robert OttesenTONSENHAGEN
Lys, luftig og romslig 2-roms toppleilighet med solrik balkong og flott utsikt. Peis. Bør sees!
Prisantydning
4 480 000 krAndel fellesgjeld
24 731 krOmkostninger
18 978 krTotalpris
4 523 709 kr
Pris
Bruksareal
65 m²BRA-I (internt bruksareal)
54 m²BRA-E (eksternt bruksareal)
11 m²TBA (terrasse-balkongareal)
6 m²
Areal
Etasje
3Byggeår
1952Soverom
1 soveromBad
1 badType
AndelsleilighetEierform
AndelFasiliteter
Balkong/TerrasseFellesutgifter
3 407 krEnergimerke
Rød F
Nøkkelinfo
Unngå doble boligrenter
Vi tilbyr gunstig forsikring.
Vurderer du utleie?
Få et tilbud fra Utleie KrogsveenHva koster lånet?
Sjekk estimert lånekostnadBeskrivelse
Kort om eiendommen
Øverst på Årvoll, helt inntil markagrensen, ligger blindveien Dugnadsveien. Lia borettslag er et meget populært borettslag på Tonsenhagen og beliggenheten er alle friluftslivsfolks drøm. Her starter skiløyper og sykkelstier rett utenfor døren og byr på uendelige naturopplevelser. Med badekåpen på kan du gå på sti opp til Isdammen for et kveldsbad.
Solrik balkong med sol fra ca. kl. 11 til solnedgang på sommerstid
Separat kjøkken med stilfull innredning og koselig spiseplass
Varmende peisovn
Kjøkken oppgradert i 2023
Loft- og kjellerbod på hhv. 11 kvm gulvareal og 5 kvm
Utvendig hunde-/sykkelvask
Lav fellesgjeld, ingen. dok.avgift
Hyggelig og veldrevet borettslag
Område
Legg til steder som er viktige for deg
På flyttefot? Tenk kjøp og salg samtidig.
Få din egen rådgiver gjennom hele kjøps- og salgsprosessen. Det starter med en verdivurdering.
Unngå doble boligrenter
Vi tilbyr gunstig forsikring.
Vurderer du utleie?
Få et tilbud fra Utleie KrogsveenHva koster lånet?
Sjekk estimert lånekostnadVil du varsles om lignende boliger?
Ved å lagre ditt boligsøk hos oss får du beskjed når vi har en bolig som ligner denne, før den legges ut på markedet!
På flyttefot? Slik gjør vi det enklere for deg
Skreddersydd flyttepakke
Vi fikser håndverkere, vask, pakking, lagring og transport, og legger ut for utgiftene underveis.
Hjelp med både kjøp og salg
Hos oss har du din egen rådgiver gjennom hele kjøps- og salgsprosessen.
Hjelp til finansiering
Vårt samarbeid med BN Bank sikrer deg rask og løsningsorientert hjelp, til konkurransedyktige betingelser.

