Høgdaveien 42E
14 600 000 kr
212 m²
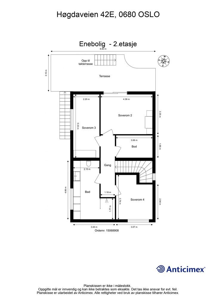
4 soverom
Solgt
Abildsø
Nyere og moderne enebolig fra 2020. Skjermet beliggenhet. Takterrasse og separat del i underetasjen.
Prisantydning
14 600 000 krOmkostninger
385 990 krTotalpris
14 985 990 kr
Pris
Bruksareal
212 m²BRA-I (internt bruksareal)
212 m²TBA (terrasse-balkongareal)
91 m²
Areal
Byggeår
2020Soverom
4 soveromBad
3 badTomteareal
658 m² (eiet)Type
Enebolig - FrittliggendeEierform
EietEnergimerke
Oransje B
Nøkkelinfo
Unngå doble boligrenter
Vi tilbyr gunstig forsikring.
Vurderer du utleie?
Få et tilbud fra Utleie KrogsveenHva koster lånet?
Sjekk estimert lånekostnadBeskrivelse
Kort om eiendommen
Velkommen til denne arkitekttegnede eneboligen (tegnet av Frogner arkitekter) som ligger på Abildsø, innerst i blindvei. Smarte løsninger, tilbaketrukket beliggenhet og uten innsyn. Bygget etter TEK 17, gjør at det er godt inneklima via balanserte ventilasjonsanlegget med varmegjenvinning og at boligen er energivennlig. Egen inngang i underetasjen til (hybel-ikke godkjent) og integrert garasje. Romslig takterrasse med, muligens Abildsøs beste utsikt. Beliggenheten gir kort avstand til skoler, barnehager, T-bane og buss, samt nærhet til både marka og Østensjøvannet, noe som gjør dette området ideelt for de som ønsker å bo landlig, men samtidig sentralt.
Høgdaveien er en rolig gate med mange barnefamilier og lite trafikk.
Område
Legg til steder som er viktige for deg
På flyttefot? Tenk kjøp og salg samtidig.
Få din egen rådgiver gjennom hele kjøps- og salgsprosessen. Det starter med en verdivurdering.
Unngå doble boligrenter
Vi tilbyr gunstig forsikring.
Vurderer du utleie?
Få et tilbud fra Utleie KrogsveenHva koster lånet?
Sjekk estimert lånekostnadVil du varsles om lignende boliger?
Ved å lagre ditt boligsøk hos oss får du beskjed når vi har en bolig som ligner denne, før den legges ut på markedet!




