Kunnskapsveien 42I
5 390 000 kr
129 m²
3 soverom
Solgt

Spikkestad
Nyere pent og smakfullt rekkehus fra 2014 - Flere terrasser deriblant flott takterrasse - Fleksibel overtagelse
Prisantydning
5 390 000 krOmkostninger
155 740 krTotalpris
5 545 740 kr
Pris
Bruksareal
134 m²BRA-I (internt bruksareal)
129 m²BRA-E (eksternt bruksareal)
5 m²TBA (terrasse-balkongareal)
33 m²
Areal
Byggeår
2014Soverom
3 soveromBad
2 badTomteareal
118 m² (eiet)Type
RekkehusEierform
EietFasiliteter
Balkong/TerrasseÅrlig velavgift
12 000 krEnergimerke
Oransje B
Nøkkelinfo
Unngå doble boligrenter
Vi tilbyr gunstig forsikring.
Vurderer du utleie?
Få et tilbud fra Utleie KrogsveenHva koster lånet?
Sjekk estimert lånekostnadBeskrivelse
Kort om eiendommen
Velkommen til Kunnskapsveien 42 I
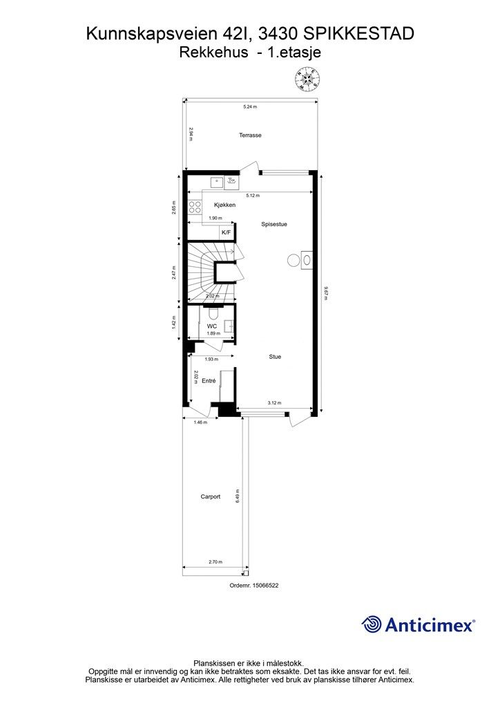
Nyere pent og smakfullt rekkehus beliggende meget sentralt og solrikt til på Spikkestad. Kort vei til skoler, barnehage, butikker, tog- og buss stasjon samt marka med flott ski og turterreng.
Her har du alt du trenger innen få minutters gange for et praktisk og hyggelig hverdagsliv. En romslig familiebolig hvor man kan flytte rett inn
- 2 stuer og 3 sov - Mulighet for 4 sov
- 2 bad, wc og eget vaskerom
- Parkering for 2 biler ved boligen, hvorav en i carport - El.bil lader
- Flott solrikt beliggende takterrasse samt terrasse/uteplass på begge sider i 1.etg
- Pent kjøkken med integrerte hvitevarer
- Boligen er malt opp i lyse og fine farger, godt med downlights og flere praktiske skyvegarderober
- Utvendige elektriske screens på alle vinduer
Område
Legg til steder som er viktige for deg
På flyttefot? Tenk kjøp og salg samtidig.
Få din egen rådgiver gjennom hele kjøps- og salgsprosessen. Det starter med en verdivurdering.
Unngå doble boligrenter
Vi tilbyr gunstig forsikring.
Vurderer du utleie?
Få et tilbud fra Utleie KrogsveenHva koster lånet?
Sjekk estimert lånekostnadVil du varsles om lignende boliger?
Ved å lagre ditt boligsøk hos oss får du beskjed når vi har en bolig som ligner denne, før den legges ut på markedet!

