Lille Årosstubben 2
6 150 000 kr
251 m²
4 soverom
Solgt

Åros
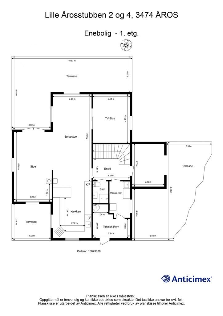
Stor og innholdsrik enebolig - 4 soverom - 3 stuer - Utleid separat hytte på del av tomten
Prisantydning
6 150 000 krOmkostninger
174 740 krTotalpris
6 324 740 kr
Pris
Bruksareal
251 m²BRA-I (internt bruksareal)
251 m²TBA (terrasse-balkongareal)
120 m²
Areal
Byggeår
2006Soverom
4 soveromBad
2 badTomteareal
1 117 m² (eiet)Type
Enebolig - FrittliggendeEierform
EietFasiliteter
Balkong/TerrasseEnergimerke
Oransje D
Nøkkelinfo
Unngå doble boligrenter
Vi tilbyr gunstig forsikring.
Vurderer du utleie?
Få et tilbud fra Utleie KrogsveenHva koster lånet?
Sjekk estimert lånekostnadBeskrivelse
Kort om eiendommen
Velkommen til Lille Årosstubben 2 og 4!
Stor og fin familiebolig med god planløsning og en solrik og skjermet hage med bærbusker og frukttrær! Her får du 4 soverom, stue/spisestue og 2 tv-stuer, samt stort kjøkken med integrerte hvitevarer. Boligen ligger i idylliske Åros med kort vei dagligvarebutikk og en rekke andre service tilbud. Om sommeren er det flere muligheter får bading i fjorden, samt fantastiske skiterreng om vinteren i marka!
- Nytt yttertak fra 2024/25
- Vannbåren varme i alle rom i 1.et og elektriske varmekabler på bad
- Nytt gulv i stue og kjøkken samt stue 2.etg
- Gode solforhold
- Pent kjøkken med integrerte hvitevarer
- Nytt gulv i stuer og kjøkken i 1. etasje, samt på loftstue
- 2 bad + vaskerom
- Egen hytte på del av tomten som pt er utleid
- Pent opparbeidet hage
Område
Legg til steder som er viktige for deg
På flyttefot? Tenk kjøp og salg samtidig.
Få din egen rådgiver gjennom hele kjøps- og salgsprosessen. Det starter med en verdivurdering.
Unngå doble boligrenter
Vi tilbyr gunstig forsikring.
Vurderer du utleie?
Få et tilbud fra Utleie KrogsveenHva koster lånet?
Sjekk estimert lånekostnadVil du varsles om lignende boliger?
Ved å lagre ditt boligsøk hos oss får du beskjed når vi har en bolig som ligner denne, før den legges ut på markedet!

