Maridalsveien 162D
5 790 000 kr
52 m²
2 soverom
Solgt
Sagene
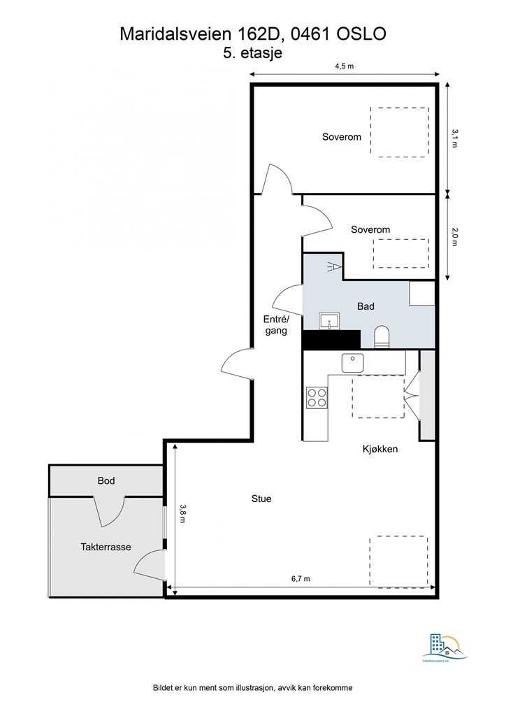
Strøken 3R loftsleilighet. 65 kvm gulvareal. Nytt bad 2024. Vestvendt takterrasse m/ rå utsikt. Hems. VV ink. IN-ordning
Prisantydning
5 790 000 krAndel fellesgjeld
212 966 krOmkostninger
19 021 krTotalpris
6 021 987 kr
Pris
Bruksareal
57 m²BRA-I (internt bruksareal)
52 m²BRA-E (eksternt bruksareal)
5 m²TBA (terrasse-balkongareal)
7 m²
Areal
Etasje
5Byggeår
1890Soverom
2 soveromBad
1 badType
AndelsleilighetEierform
AndelFellesutgifter
6 933 krEnergimerke
Rød G
Nøkkelinfo
Unngå doble boligrenter
Vi tilbyr gunstig forsikring.
Vurderer du utleie?
Få et tilbud fra Utleie KrogsveenHva koster lånet?
Sjekk estimert lånekostnadBeskrivelse
Kort om eiendommen
Tom Martinsen v/ Krogsveen har gleden av å presentere Maridalsveien 162D! En fantastisk loftsleilighet med 65 kvm gulvareal i tillegg til hems og vestvendt takterrasse på 7 kvm. Det er god takhøyde i alle rom og leiligheten oppleves luftig. I tillegg har boligen fine, naturlige lysforhold og flott utsyn gjennom store vindusflater. Leiligheten holder god standard og gir et helhetlig og unikt uttrykk.
Rolig nabolag med fine parker, koselige kafeer og restauranter, og "alt" innen gangavstand. Kort vei til Torshov, Grünerløkka, Nydalen og sentrum, samt gode kollektivruter til hele byen.
Kvaliteter:
Usjenert og solrik takterrasse på 7 kvm med utsikt til Holmenkollen
Arealeffektiv planløsning
Delikat bad fra 2024
Generøs takhøyde
Store vindusflater
Velkommen!
Område
Legg til steder som er viktige for deg
På flyttefot? Tenk kjøp og salg samtidig.
Få din egen rådgiver gjennom hele kjøps- og salgsprosessen. Det starter med en verdivurdering.
Unngå doble boligrenter
Vi tilbyr gunstig forsikring.
Vurderer du utleie?
Få et tilbud fra Utleie KrogsveenHva koster lånet?
Sjekk estimert lånekostnadVil du varsles om lignende boliger?
Ved å lagre ditt boligsøk hos oss får du beskjed når vi har en bolig som ligner denne, før den legges ut på markedet!
På flyttefot? Slik gjør vi det enklere for deg
Skreddersydd flyttepakke
Vi fikser håndverkere, vask, pakking, lagring og transport, og legger ut for utgiftene underveis.
Hjelp med både kjøp og salg
Hos oss har du din egen rådgiver gjennom hele kjøps- og salgsprosessen.
Hjelp til finansiering
Vårt samarbeid med BN Bank sikrer deg rask og løsningsorientert hjelp, til konkurransedyktige betingelser.




