Aspelundveien 13B
14 500 000 kr
156 m²
4 soverom
Solgt

Jar
SOLGT - Visning avlyst! Arkitekttegnet familiebolig med perfekt og gjennomført planløsning! Stor, solrik og skjermet hage. Jar skolekrets!
Prisantydning
14 500 000 krOmkostninger
373 540 krTotalpris
14 873 540 kr
Pris
Bruksareal
162 m²BRA-I (internt bruksareal)
156 m²BRA-E (eksternt bruksareal)
6 m²TBA (terrasse-balkongareal)
67 m²
Areal
Etasje
2Byggeår
2016Soverom
4 soveromBad
2 badType
Halvpart vertikaldelt boligEierform
EierseksjonFasiliteter
Garasje/P-plass og Balkong/Terrasse
Nøkkelinfo
Unngå doble boligrenter
Vi tilbyr gunstig forsikring.
Vurderer du utleie?
Få et tilbud fra Utleie KrogsveenHva koster lånet?
Sjekk estimert lånekostnadBeskrivelse
Kort om eiendommen
En flott, arkitekttegnet del av tomannsbolig beliggende i et attraktivt og rolig boligområde. Boligen ligger i en blindvei, i et veletablert villaområde og passer ypperlig for dere som ønsker å bo sentralt, men samtidig usjenert, med gangavstand til barnehager, skoler, buss, tog, gode handlemuligheter og ikke minst nærhet til flotte turområder. Skole, barnehage og nærbutikk er i umiddelbar nærhet.
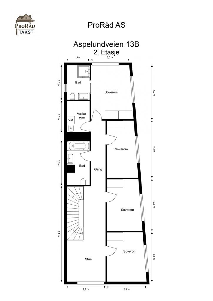
Denne familieboligen fra 2016 oppleves lys og luftig, med gode kvaliteter. Her får du to innholdsrike etasjer med en gjennomtenkt planløsning, som blant annet inkluderer en stor og lys stue med åpen kjøkkenløsning, en solrik terrasse på hele 57 kvm ved stuen, samt fire gode soverom på samme plan, hvorav hovedsoverommet har eget bad. Totalt inneholder boligen to bad og et praktisk vaskerom.
Område
Legg til steder som er viktige for deg
På flyttefot? Tenk kjøp og salg samtidig.
Få din egen rådgiver gjennom hele kjøps- og salgsprosessen. Det starter med en verdivurdering.
Unngå doble boligrenter
Vi tilbyr gunstig forsikring.
Vurderer du utleie?
Få et tilbud fra Utleie KrogsveenHva koster lånet?
Sjekk estimert lånekostnadVil du varsles om lignende boliger?
Ved å lagre ditt boligsøk hos oss får du beskjed når vi har en bolig som ligner denne, før den legges ut på markedet!

