Høvlerigata 10
2 500 000 kr
79 m²
2 soverom
Solgt

Årnes sentrum - Romslig 3-roms m/garasje og heis. Stor balkong, kveldssol og utsikt til Glomma. Felles v.v./fyring,
Prisantydning
2 500 000 krAndel fellesgjeld
1 206 676 krOmkostninger
11 040 krTotalpris
3 717 716 kr
Pris
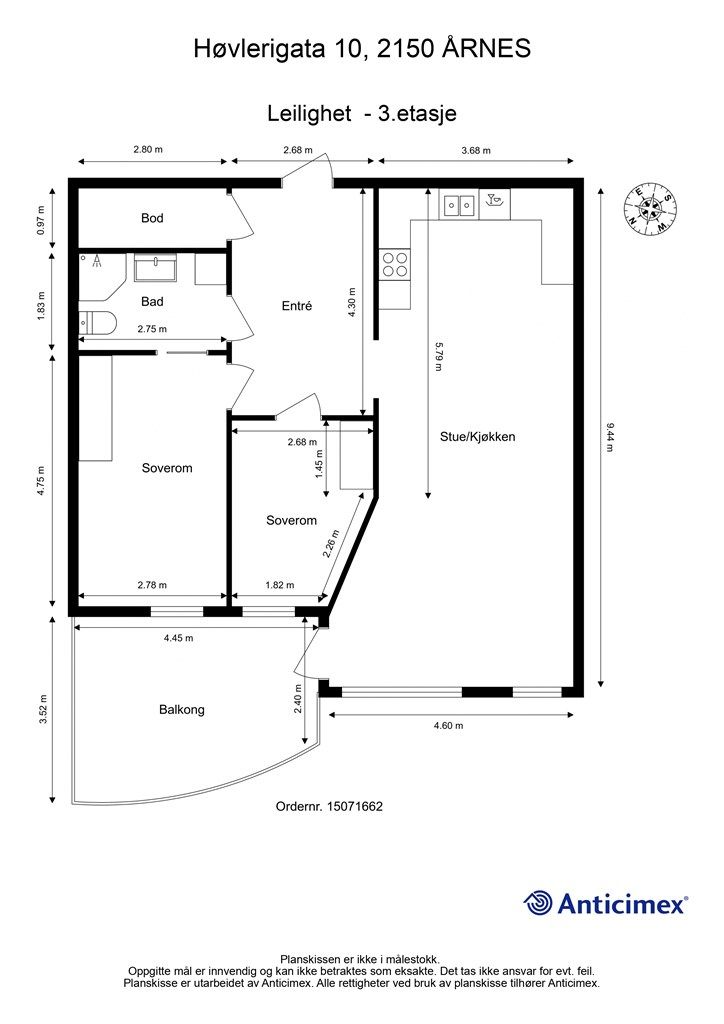
Bruksareal
83 m²BRA-I (internt bruksareal)
79 m²BRA-E (eksternt bruksareal)
4 m²TBA (terrasse-balkongareal)
13 m²
Areal
Etasje
3Byggeår
2007Soverom
2 soveromBad
1 badType
EierleilighetEierform
AndelFasiliteter
Garasje/P-plass, Heis og Balkong/TerrasseFellesutgifter
13 550 krEnergimerke
Grønn D
Nøkkelinfo
Unngå doble boligrenter
Vi tilbyr gunstig forsikring.
Vurderer du utleie?
Få et tilbud fra Utleie KrogsveenHva koster lånet?
Sjekk estimert lånekostnadBeskrivelse
Kort om eiendommen
Høvlerigata 10 er en romslig og praktisk 3-roms andelsleilighet i byggets tredje etasje, med heisadkomst. Leiligheten har nordvestvendte vinduer og utgang fra stue til en trivelig, overbygd balkong med kveldssol og utsikt mot Glomma. Beliggende svært sentralt på Årnes, med ca. 5 minutters gange til Alti Årnes og umiddelbar tilgang til togstasjonen. Planløsningen er god, med åpen stue- og kjøkkenløsning, to soverom mot balkongsiden, flislagt bad med opplegg for vaskemaskin, samt entré med bod/garderoberom. Boligen fremstår med nøytrale fargevalg og har parkettgulv. Garasjeplass og bod i kjeller, felles fyring/varmtvann.
Velkommen til visning!
Område
Legg til steder som er viktige for deg
På flyttefot? Tenk kjøp og salg samtidig.
Få din egen rådgiver gjennom hele kjøps- og salgsprosessen. Det starter med en verdivurdering.
Unngå doble boligrenter
Vi tilbyr gunstig forsikring.
Vurderer du utleie?
Få et tilbud fra Utleie KrogsveenHva koster lånet?
Sjekk estimert lånekostnadVil du varsles om lignende boliger?
Ved å lagre ditt boligsøk hos oss får du beskjed når vi har en bolig som ligner denne, før den legges ut på markedet!

