Trolldalsvegen 17
6 490 000 kr
186 m²
5 soverom
Solgt

Åsgreina
Moderne og tiltalende enebolig med funkispreg og høy standard | Tre bad og fem soverom | Barnevennlig beliggenhet |
Prisantydning
6 490 000 krOmkostninger
183 240 krTotalpris
6 673 240 kr
Pris
Bruksareal
194 m²BRA-I (internt bruksareal)
186 m²BRA-E (eksternt bruksareal)
8 m²TBA (terrasse-balkongareal)
54 m²
Areal
Etasje
2Byggeår
2017Soverom
5 soveromBad
3 badTomteareal
684 m² (eiet)Type
Enebolig - FrittliggendeEierform
EietFasiliteter
Balkong/TerrasseÅrlig velavgift
450 krEnergimerke
Oransje C
Nøkkelinfo
Unngå doble boligrenter
Vi tilbyr gunstig forsikring.
Vurderer du utleie?
Få et tilbud fra Utleie KrogsveenHva koster lånet?
Sjekk estimert lånekostnadBeskrivelse
Kort om eiendommen
Barnevennlig og rolig beliggenhet i Åsgreina i Nannestad kommune.
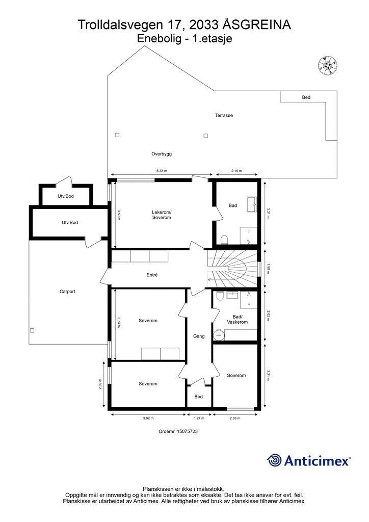
Funkisinspirert og moderne enebolig fra 2017 over 2. plan med gjennomgående høy standard og mange gode løsninger. Familievennlig og innholdsrik planløsning med kjøkken og stue i åpen løsning, spisestue, tre bad, og fem soverom. Et av sommerommene er innredet som lekerom for de minste og fungerer ypperlig som en tv-stue med montert prosjektor og lerret. Boligen preges av en åpen løsning, meget god takhøyde i stuen helt opp til 376 cm, mye naturlig lys og god romfølelse. Fra spisestuen er det utang til veranda på 30 kvm. som blir en naturlig forlengelse av stuen på sommertid. Videre er uteområdet pent opparbeidet, terrasse på 54 kvm. og god plass til barnelek.
Parkering i carport med direkte inngang til boligen.
Område
Legg til steder som er viktige for deg
På flyttefot? Tenk kjøp og salg samtidig.
Få din egen rådgiver gjennom hele kjøps- og salgsprosessen. Det starter med en verdivurdering.
Unngå doble boligrenter
Vi tilbyr gunstig forsikring.
Vurderer du utleie?
Få et tilbud fra Utleie KrogsveenHva koster lånet?
Sjekk estimert lånekostnadVil du varsles om lignende boliger?
Ved å lagre ditt boligsøk hos oss får du beskjed når vi har en bolig som ligner denne, før den legges ut på markedet!

