Furuheimvegen 25
4 450 000 kr
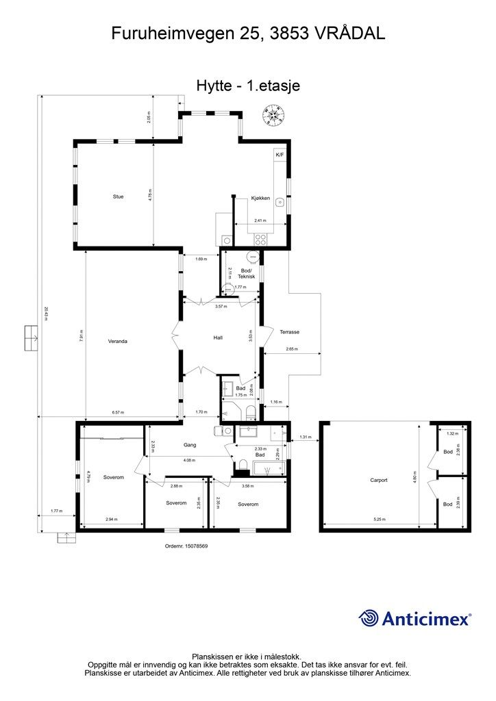
125 m²
3 soverom
Komplett salgsoppgave

Furuheim
Frittliggende hytte med fantastisk utsikt | Sydvestvendt terrasseområde | Carport m/utebod | God planløsning
Prisantydning
4 450 000 krOmkostninger
132 240 krTotalpris
4 582 240 kr
Pris
Bruksareal
132 m²BRA-I (internt bruksareal)
125 m²BRA-E (eksternt bruksareal)
7 m²TBA (terrasse-balkongareal)
99 m²
Areal
Etasje
1Byggeår
2011Soverom
3 soveromBad
2 badTomteareal
1 358 m² (eiet)Type
Fritidseiendom på fjelletEierform
EietEnergimerke
Lysegrønn C
Nøkkelinfo
Vurderer du utleie?
Få et tilbud fra Utleie KrogsveenHva koster lånet?
Sjekk estimert lånekostnadBeskrivelse
Kort om eiendommen
Krogsveen v/Vindum ønsker velkommen ti Furuheimvegen 25!
* Frittliggende hytte med alt på en flate
* Praktisk romløsning med separate soner for oppholdsrom og soverom, og med god plass
* Hytten har en god hyttestandard og er meget velholdt - 1 eier!
* Det er innredet med stor hall, 2 bad, bod/teknisk rom, 3 soverom, tv-stue og stue/kjøkken i delvis åpen løsning. Stuen er stor, lys og med god plass til både salong, spisestue og go'stoler - her er rom for hele familien og gjester!
* Nydelig terrasse med optimale solforhold og flott utsikt
* Carport med bod for god lagring og snøfri bil
* Tomten er lettholdt med stor gårdsplass hvor det er god plass til parkering
* Kort vei til flotte turområder, Vrådal sentrum, Nisser og Vrådal Panorama og Golf - noe for enhver smak!
Innhold og byggemåte
Innhold og byggemåte
Eiendommen
Furuheimvegen 25, 3853 VRÅDAL
Kommunenummer 4028, gårdsnummer 14, bruksnummer 355, ideell andel 1/1
Innhold
Totalt bruksareal BRA: 132 kvm
BRA-i:
1. etasje 125 kvm: Hall, gang, bod/teknisk rom, stue, kjøkken, to bad og tre soverom.
BRA-e:
1. etasje 7 kvm: To boder.
Åpent areal:
1. etasje 99 kvm: Terrasse: 15 kvm. Veranda: 84 kvm.
Vedlagte plantegninger er ikke målbare. De oppgitte arealer er hentet fra rapport med befaringsdato 02.02.2026, utført av Anticimex Sandefjord AS.
Byggemåte
Selger har fått utarbeidet en tilstandsrapport, dvs. en teknisk gjennomgang av boligen hvor eventuelle avvik, risiko for kjøper og prisoverslag for hva som bør gjøres av oppgradering, er skissert. Se særskilt TGIU (tilstandsgrad ikke undersøkt), samt TG2 og TG3 som viser hva som er boligens normale slitasje, alder og type, hva som er avvik fra dette og hva som bør/må utbedres. Rapporten og selgers egenerklæring er en del av salgsoppgaven og må leses nøye før bud inngis. Kjøper overtar ansvaret for de opplysninger som fremkommer av salgsdokumentasjonen, og kan ikke gjøre gjeldende som mangel noe som burde vært kjent eller som ikke kan anses å ha betydning for avtalen.
Bygningen er iht. tilstandsrapporten oppført i 2010 på støpt gulv mot grunn. Yttervegger og tak i trekonstruksjoner. Utvendige fasader med stående trekledning. Vinduer i 2-lags glass fra byggeår. Ytterdører i tre med glassfelt fra byggeår. Tak med saltaksform tekket med torv. Les for øvrig mer om byggemåte og den tekniske tilstanden i rapporten.
Sammendrag av boligens tilstandsgrad:
TG1 : 65 % | TG2 : 22 % | TG3 : 0 % | TGIU : 13 %
Utover normal elde og slitasje gjøres det spesielt oppmerksom på:
TG 2:
* Bad mot syd: Vinduets plassering i våtsone er uegnet. Lokalfall er vurdert til å være mindre enn anbefalt. Videre bruk av kabinett forutsettes. Ikke tilfredsstillende nivåforskjell døråpning topp - sluk. Manglende membranoppkant ved dørterskel. Tilluftsspalte er ikke etablert. Drenering fra innebygget sisterne er ikke registrert.
* Bad mot nord: Underkant veggplater er ikke montert iht. monteringsanvisning- Det er ikke fuget mellom baderomsplater og bunnprofil. Lokalfall er vurdert til å være mindre enn anbefalt. Videre bruk av kabinett forutsettes. Ikke tilfredsstillende nivåforskjell døråpning topp - sluk. Manglende membranoppkant ved dørterskel. Tilluftsspalte er ikke etablert.
* Bomlyd under enkelte gulvfliser i hall.
* Utettheter i dampsperre/plast mot kald sone ved loftsluke. Lort etter gnagere.
* Stedvis manglende musesperre bak kledning/ i ytterhjørner.
* Råteskader i mønekryss mot sydvest.
* Taket er ikke inspisert pga is og snø.
Selger opplyser at hytten sist er beiset i 2025.
Se supplerende tekst i tilstandsrapporten om forholdene. Kjøper overtar ansvar og risiko for dette.
Standard
Hytten er oppført i 2011 og har hatt kun én eier. Den er svært godt vedlikeholdt, og eier har opparbeidet flotte uteområder som innbyr til rolige og late feriedager i naturskjønne omgivelser.
Hytten er praktisk utformet på ett plan og har en gjennomtenkt og funksjonell planløsning, hvor soveromsavdeling og oppholdsrom er adskilt i hver sin fløy.
Man ønskes velkommen inn i en romslig og lys hall med varmekabler i gulvet og god plass til oppheng av yttertøy. Fra hallen er det direkte utgang til et sydvestvendt terrasseområde med svært gode solforhold.
Hallen gir også direkte adkomst til ett av hyttens to bad. Dette badet er innredet med våtromsplater på vegger og flislagt gulv med varmekabler, og inneholder toalett, servant med innredning og dusjkabinett. I tilknytning ligger et teknisk rom med opplegg for vaskemaskin samt 300 liters varmtvannstank.
Videre kommer man inn i soveromsavdelingen, som består av tre soverom, bad og en egen tv-stue. Det er totalt åtte sengeplasser fordelt på soverommene, og hovedsoverommet har god skapplass. Rommene har tregulv samt hvitmalt panel på vegger og i tak, noe som gir et lyst og trivelig uttrykk. Tv-stuen er en praktisk løsning for familiens yngre medlemmer eller for dem som ønsker en egen sone for avslapning og tv-titting. Her er det også vedovn.
Badet i denne avdelingen er romslig og delikat flislagt på vegger og gulv, med varmekabler i gulvet. Badet er innredet med både badekar og dusjkabinett, vegghengt toalett samt servant med innredning.
I stue- og kjøkkenavdelingen møtes man av et stort, åpent og innbydende rom med åpen himling og rikelig med naturlig lys. Dette er et ideelt oppholdsrom med god plass til både sofagruppe, spisestue og gode lenestoler – et sosialt samlingspunkt for hele familien. Peisovn i stuen gir ekstra hygge, og den flotte utsikten kan nytes både fra innsiden og ute på terrassen.
Kjøkkenet er delikat og smakfullt innredet med mørkegrå profilerte fronter og integrerte hvitevarer. Alle hvitevarer medfølger, og oppvaskmaskin samt kjøle/fryseskap er ca 1 år gammelt øvrige er eldre og bruksslitasje må påregnes. Kjøkkenet er godt tilrettelagt med rikelig benkeplass og god oppbevaringsplass, og ligger delvis skjermet fra stuen – et praktisk og funksjonelt arbeidskjøkken.
Eiendommen har carport med tilhørende bod, noe som gir enkel parkering vinterstid og gode oppbevaringsmuligheter for fritidsutstyr. Uteområdet er svært pent opparbeidet med stor terrasse og optimale solforhold fra tidlig morgen til sen kveld. Terrassen er delvis overbygget slik at man har en lun plass hvor sol og utsikt kan nytes uten innsyn. Det er montert varmelamper i overbygget, slik at utesesongen forlenges betraktelig.
Hytten ligger høyt i terrenget med flott utsikt mot omkringliggende områder. Det er friområde foran eiendommen, slik at man ikke får noen tett på seg. Velkommen til Furuheimvegen 25!
Løsøre og tilbehør
Vi viser til liste fra Norges Eiendomsmeglerforbund som gjelder fra 01.01.2020 angående løsøre og tilbehør.
Hytten kan selges delvis møblert med unntak av noe møbler, løsøre og personlige eiendeler.
Oppvarming
Peis med innsats i stuen og vedovn i tv-stue/soveromsgang.
Feier bemerker: Feiing 20.06.2024 utført begge skorsteinene. Tilsyn 20.06.2024 utført. Ingen avvik eller anmerkninger ved sist tilsyn.
Gulvvarme på begge badene, i entréen og i teknisk rom.
Ellers elektrisk med panelovner. Dersom beboelsesrom ikke har vegg- eller fastmonterte varmekilder ved visning, følger dette heller ikke med.
Ferdigattest/brukstillatelse
Det foreligger ferdigattest på "Fritidsbustad", datert 20.10.2011. Denne kan fås ved henvendelse til megler.
Tinglyste heftelser og rettigheter
Eiendommen overdras fri for pengeheftelser.
Det er ingen tinglyste servitutter på eiendommen.
Eventuell adgang til utleie
Fritidseiendommen har ikke separat utleiedel. Det vil normalt være anledning til utleie av hele eiendommen eller enkeltrom, såfremt utleiearealet er bygningsmessig godkjent for varig opphold.
Beliggenhet og tomteforhold
Beliggenhet og tomteforhold
Beliggenhet
Hytta ligger sentralt til i natur- og aktivitetsparadiset Vrådal i Kviteseid kommune. Vrådal ligger ved de idylliske innsjøene Nisser og Vråvatn, vest i Norges flotteste fylke - Telemark.
Det beste med Vrådal som hyttedestinasjon er at det er et sted man virkelig kan aktivisere seg hele året!
Det er gangavstand til Straand hotell og sentrum med fasiliteter som koselig kafè, dagligvareforretning m.m.
Straand Sommerland er et familievennlig akivitetsområde som lokker til seg både turister, hyttefolk og fastboende. Ved Straand nedre camping er det en stor hoppepute til glede for barna.
Det er heller ikke langt til alpin senteret, som er populært med sine 18 nedfarter. Fine oppkjørte skiløyper. Ved skisenteret er det en stor lekeplass med hoppepute, husker, lekestue og klatrestativ samt skatepark.
Fra hytta har man utsikt til Hægefjell som er et yndet turmål for fotturister - i tillegg kommer det klatrere fra hele verden for å kose seg i den flere hundre meter høye blankskurte granitt veggen på sydsiden av fjellet.
Videre er Roholtfjellet og Åhomnuten populære turmål. Vrådal tilbyr mange aktiviteter for hele familien. Hva med en kanotur eller en sykkeltur langs idylliske grusveier? Et besøk på golfbanen eller en tur med M/S Fram? Veteranbåten M/S Fram seiler på slusecruise på innsjøen Nisser. Den ligger ved Straand Brygge, rett ved hotellet. Skiturer, preparerte langrennsløyper, bærsanking - mulighetene er mange og varierte.
Strendene ved Nisser er som skapt for de minste. Det er fin, hvit sand og langgrunt. Ta med familien på piknik til grillplassen på en av øyene og server grillede pølser, hamburgere osv.
En ekte helårsdestinasjon med deilige, varme somre og snørike vintre.
Innsjøen Nisser byr på «utallige» øyer, strender og svaberg. Perfekt for bading, båtliv, padling, fiske, camping med mer. Perfekt utgangspunkt for fjellturer, med Hægefjell (1021 moh.), Roholtfjell (1005 moh.) og Venelifjell (905 moh.) i umiddelbar nærhet til hytta. Vrådal Alpin kun 6 min kjøring unna.
Selger er en ivrig fjellvandrer og padler, og mener Vrådal tilbyr det beste av alt
Adkomst
Fra Vrådal kjører man mot Kviteseid. Furuheimvegen er blant de første veiene på høyre hånd, etter avkjøringen til Vrådal sentrum.
Følg Furuheimvegen oppover i fjellet til nr 25. Hytten er skiltet med Krogsveen Til salgs skilt.
Beskrivelse av tomt
Eiertomt på 1 357 kvm.
Stor og flott tomt beliggende høyt og fritt i terrenget med nydelig utsikt over Nisser, Vrådal og fjellkjedene.
Eiendommen ligger sydvestvendt og nyter optimale solforhold.
Tomten er skrånende med naturlig vegetasjon og gruset innkjøring og gårdsplass.
I fremkant av hytten er det friarealer og sånn sett har man en uforstyrret utsikt og intet innsyn!
Parkering
Parkering i carport og på gruset gårdsplass.
Vei, vann og avløp
Eiendommen har adkomst via privat vei med felles vedlikeholdsansvar.
Eiendommen er tilknyttet kommunalt ledningsnett via private stikkledninger. Eier er selv ansvarlig for private stikkledninger til boligen.
Regulerings-og arealplaner
Eiendommen er regulert til "Frittliggjande fritidsbusetnad" i henhold til reguleringsplankart datert 19.1.2026 med tilhørende reguleringsbestemmelser "Furuheim Hyttegrend" sist revidert 1.6.2024.
Utsnitt av plan med tilhørende bestemmelser kan fås ved henvendelse til megler.
Området er under utbygging og det er ledige tomter i området.
Økonomi
Økonomi
Kommunale utgifter
Kommunale avgifter er kr 14 396,- for inneværende år. I dette inngår gebyr for vann, avløp, renovasjon og feiing/tilsyn.
Brannvesenet er pålagt å føre tilsyn med, og å feie pipeløp i alle fritidseiendommer. Det vil kunne medføre kostnader for kjøper til utbedring av evt. fremtidige pålegg og anmerkninger.
Nåværende eier har et strømforbruk som tilsvarer ca. 16 000,- kr pr år. Det er ikke tegnet Norgespris.
Hytta har en årlig forsikringspremie på kr 4500,-.
Velavgift er kr XXX pr. år. Valgfritt.
Hytta har privat brøyting på ca kr 4.500,- pr år.
Hytta er tilknyttet Parabol. Tv-tuner/dekoder medfølger.
Utgiftene er basert på nåværende eiers forbruk og avtaler.
Formuesverdi
Formuesverdi for 2024 var kr 618.750,- ifølge selgers skattemelding.
Omkostninger
4 450 000,00 Prisantydning
Omkostninger
111 250,00 Dokumentavgift til staten (2,5% av kjøpesum)
19 900,00 Gjensidige Boligkjøperpakke (valgfri)
545,00 Tinglysing panterettsdokument
545,00 Tinglysing skjøte
--------------------------------------------------------
132 240,00 Omkostninger totalt
--------------------------------------------------------
4 582 240,00 Totalpris inkl. omkostninger
--------------------------------------------------------
Totalpris inkl. omkostninger forutsetter kjøp til prisantydning.
Det tas forbehold om endringer i avgifter og gebyrer.
Tilbud om lånefinansiering
Megler formidler gjerne kontakt med rådgiver hos vår samarbeidspartner BN Bank. De har konkurransedyktige betingelser samt rask og løsningsorientert behandling av din lånesøknad. Krogsveen mottar et honorar dersom lån opprettes.
Betalingsbetingelser
Kjøpesum inkludert omkostninger, samt pantedokument tilknyttet eventuelt lån, skal være disponibelt hos megler 2 virkedager før overtagelsen.
Annen viktig informasjon
Annen viktig informasjon
Eier
Marit Lea Haugene og Reidar Haugene
Konsesjon
Eiendommen er ikke konsesjonspliktig, men det er boplikt i Kviteseid kommune. For at eiendommen skal kunne overskjøtes må kjøper signere på egenerklæring om konsesjonsfrihet om at boplikten ikke gjelder for denne eiendommen.
Overtakelse
Etter nærmere avtale.
Boligselgerforsikring
Selger har i forbindelse med salget tegnet boligselgerforsikring levert av Gjensidige.
Boligselgerforsikringen dekker selgers ansvar etter avhendingsloven begrenset oppad til kr 14 millioner. Dersom kjøper oppdager forhold ved eiendommen som hen mener utgjør en mangel ved eiendommen, vil Gjensidige behandle reklamasjonen på vegne av selger. Forsikringsvilkår kan fås ved henvendelse til megler.
Vedlagt salgsoppgaven følger selgers egenerklæringsskjema og tilstandsrapport. Interessenter må sette seg inn i dokumentene før bud inngis.
Boligkjøperforsikring
Innen kontraktsmøtet må kjøper ta stilling til om det ønskes å bestille Boligkjøperpakken gjennom Gjensidige. I denne gunstige pakken er boligen ferdig forsikret og inkluderer rettshjelpsforsikring, også kalt Boligkjøperforsikring. Rettshjelpsforsikring gir trygghet og tilgang på profesjonell juridisk hjelp dersom det oppdages uventede feil eller mangler det første året etter overtagelse. Forsikringsselskapet behandler i så fall ethvert mangelskrav kjøper måtte ha overfor selger.
Boligkjøperpakken inkluderer bygningsforsikring for hus og hytte, innboforsikring, flytteforsikring og dobbel rentedekning - i situasjoner hvor kjøper ikke får solgt nåværende primærbolig.
Kjøper mottar ingen særskilt faktura for Boligkjøperpakken da kostnaden det første året legges til kjøpesummen for boligen. Det gjøres oppmerksom på Krogsveen mottar et honorar for denne formidlingen.
Produktark for Boligkjøperpakken ligger vedlagt i salgsoppgaven.
Dersom ikke boligkjøperpakke ønskes kan kun rettshjelpsforsikring, også kalt boligkjøperforsikring, tegnes særskilt via megler. Rettshjelpsforsikringen varer i 5 år fra overtagelse og leveres gjennom Gjensidige. Ta kontakt med megler for ytterligere informasjon.
Selskap og privatpersoner som driver med kjøp/salg/utvikling som ledd i egen næringsvirksomhet kan ikke tegne boligkjøperpakke eller rettshjelpsforsikring.
Budgivning
Forbrukerinformasjon om budgivning er vedlagt denne salgsoppgaven og er også på vår hjemmeside Krogsveen.no. Alle bud og budforhøyelser må inngis skriftlig. I tillegg må legitimasjon være fremlagt sammen med signatur fra budgiver.
Vi oppfordrer til å gi bud elektronisk via GI BUD-knappen på eiendommens hjemmeside på Krogsveen.no. Da vil samtlige vilkår bli oppfylt.
Eventuelle forhøyelser eller endringer av budet kan bekreftes pr SMS eller på e-post. Vi oppfordrer alltid til å kontakte megler pr. telefon i tillegg da forsinkelser i SMS og e-post kan forekomme.
For at budene skal kunne bli behandlet og videreformidlet skriftlig til alle involverte parter, må alle bud ha en tilstrekkelig lang akseptfrist, jf. eiendomsmeglingsforskriften § 6-3.
Selger må også skriftlig akseptere budet før aksept kan formidles til budgiver. Akseptfrist bør derfor være på minimum 30 minutter, og budforhøyelser må derfor skje i god tid før fristens utløp.
Bud i forbrukerforhold kan uansett ikke settes med kortere frist enn kl. 12.00 første virkedag etter siste annonserte visning. I tillegg kan ikke budet ha forbehold om at det skal holdes hemmelig ovenfor øvrige interessenter. Megler har iht lov om eiendomsmegling ikke anledning til å videreformidle disse budene, og de vil dermed heller ikke bli journalført.
Etter at eiendommen er solgt vil kjøper og selger få tilsendt budjournal. Øvrige budgivere kan få utlevert kopi av budjournalen i anonymisert form.
Hvitvaskingsreglene
I henhold til lov om hvitvasking og terrorfinansiering har megler plikt til å gjennomføre kontrolltiltak overfor kunder, herunder fullmektiger. Dette innebærer bl.a. å bekrefte kunders og reelle rettighetshaveres identitet på bakgrunn av fremvist gyldig legitimasjon eller på annen godkjent måte, samt å innhente opplysninger om kundeforholdets formål og tilsiktede art.
Dersom slike kundetiltak ikke kan gjennomføres, kan megler ikke etablere kundeforholdet eller utføre transaksjonen.
Hvis kjøper ikke bidrar til gjennomføring av kundekontrollen og dette fører til at transaksjonen blir forsinket eller ikke kan gjennomføres, vil dette ansees som mislighold av avtalen og gi selger rettigheter etter avhendingslova kapittel 5. I tilfeller der selger ikke bidrar til gjennomføring av løpende kundekontroll underveis i oppdraget, er det selger som misligholder sine forpliktelser etter avtalen og gi kjøper rettigheter etter avhendingslovens kapittel 4. Partene er selv ansvarlige for eventuelle kostnader og ansvar dette kan medføre. Eiendomsmegleren eller eiendomsmeglingsforetaket kan ikke holdes ansvarlig for de konsekvenser dette vil kunne få for partene eller andre som har interesser i eiendomshandelen.
Kjøper oppfordres til å innbetale kjøpesummen som ikke kommer fra låneinstitusjon i én samlet innbetaling fra egen konto i norsk bank. Megler har plikt til å melde fra til Økokrim om eiendomshandler som fremstår som mistenkelige. Melding sendes Økokrim uten at partene varsles.
Personopplysningsloven
I henhold til personopplysningsloven gjør vi oppmerksom på at interessenter kan bli registrert for videre oppfølging.
Lovanvendelse
Generelle bestemmelser
Salgsoppgaven er basert på de opplysningene selger har gitt til megler, den bygningssakyndiges tilstandsrapport, samt opplysninger innhentet fra kommunen, Kartverket og andre tilgjengelige kilder. Det er viktig at kjøper setter seg grundig inn i alle salgsdokumentene, herunder salgsoppgave, tilstandsrapport og selgers egenerklæring. Kjøper anses kjent med forhold som er tydelig beskrevet i salgsdokumentene, og slike forhold kan ikke påberopes som mangler. Dette gjelder uavhengig av om kjøper har lest dokumentene. Alle interessenter oppfordres til å undersøke eiendommen nøye, gjerne sammen med fagkyndig før bud inngis. Kjøper som velger å kjøpe usett kan ikke gjøre gjeldende som mangel noe han burde blitt kjent med ved undersøkelsen.
Dersom det er behov for avklaringer, anbefaler vi at interessenter rådfører seg med eiendomsmegler eller egne rådgivere før det legges inn bud.
En bolig som har blitt brukt i en viss tid, har vanligvis blitt utsatt for slitasje og skader kan ha oppstått. Slik bruksslitasje må kjøper regne med, og det kan avdekkes enkelte forhold etter overtakelse som nødvendiggjør utbedringer. Normal slitasje og skader som nødvendiggjør utbedring, er innenfor hva kjøper må forvente og vil ikke utgjøre en mangel.
Kjøper og selgers rettigheter og plikter reguleres av avtalen mellom partene, samt informasjonen som har vært tilgjengelig for kjøperen i forbindelse med handelen. Avtalen utfylles av avhendingsloven, og det gjelder ulike avtalevilkår avhengig av om kjøper er forbrukerkjøper eller ikke. Dette er nærmere beskrevet nedenfor.
På grunn av ulike avtalevilkår kan selger vurdere bud fra en som ikke er forbruker, ulikt fra en forbrukers bud. Dersom kjøper ikke er forbruker, er selger sitt mulige mangelsansvar begrenset fordi eiendommen selges "som den er". Selger kan ikke ta «som den er»- forbehold overfor en forbrukerkjøper. Selv et lavere bud fra en som ikke er forbruker kan foretrekkes fordi begrensningen i mulig mangelsansvar kan ha egenverdi for selger. Selger står fritt til å forkaste eller akseptere ethvert bud, og er for eksempel ikke forpliktet til å akseptere høyeste bud.
Budgiver skal i budskjema avgi egenerklæring om budgiver er forbruker eller næringsdrivende/ person som hovedsakelig handler som ledd i næringsvirksomhet. Budgivere får informasjon dersom andre bud er inngitt av en som ikke er forbruker.
Forbrukerkjøp - definisjon
Med forbrukerkjøp menes kjøp av eiendom når kjøperen er en fysisk person som ikke hovedsakelig handler som ledd i næringsvirksomhet.
Forbruker – avtalevilkår
Eiendommen har en mangel dersom den ikke er i samsvar med kravene som følger av avtalen, eller det foreligger brudd på bestemmelsene i avhendingsloven §§ 3-2 til 3-8. Hvis eiendommen ikke er i samsvar med det kjøperen må kunne forvente ut ifra alder, type og synlig tilstand, kan det være grunnlag for mangelskrav. Det samme gjelder hvis det er holdt tilbake eller gitt uriktige opplysninger om eiendommen. Dette gjelder likevel bare dersom man kan gå ut ifra at det virket inn på avtalen at opplysningen ikke ble gitt eller at mangelskravet ikke blir rettet i tide på en tydelig måte.
Boligen kan ha en mangel etter avhendingsloven § 3-3 andre ledd, dersom det er avvik mellom opplyst og faktisk innvendig areal, forutsatt at avviket er på 2% eller mer og minimum 1 kvm.
Ved beregning av et eventuelt prisavslag eller erstatning må kjøper selv dekke tap/kostnader opptil et beløp på kr 10 000 (egenandel).
Ikke-forbruker (næringsdrivende) – definisjon
Hvis kjøper er en juridisk person, eller en fysisk person som hovedsakelig handler som ledd i næringsvirksomhet, vil kjøpet ikke anses som et forbrukerkjøp.
Ikke-forbruker – avtalevilkår
Eiendommen har en mangel dersom den ikke er i samsvar med kravene som følger av avtalen.
Eiendommen selges «som den er», og selgers ansvar utover det konkret avtalte er da begrenset etter avhendingsloven § 3-9, første ledd andre setning.
Avhendingsloven § 3-3 andre ledd fravikes, og hvorvidt boligens arealsvikt utgjør en mangel vurderes etter avhendingsloven § 3-8.
Informasjon om kjøpers undersøkelsesplikt, herunder oppfordringen om å undersøke eiendommen nøye, gjelder også for kjøpere som ikke anses som forbrukere.
Det forutsettes at hjemmel overføres til kjøper. Hvis kjøper ikke ønsker hjemmelsoverføring av eiendommen, må det tas forbehold om dette i budet.
Meglers vederlag
Meglers vederlag betales av selger og er avtalt til:
Vederlag: 1,50 % av salgssummen inkl. eventuell fellesgjeld. Minimumsprovisjon er kr 48 000,00
Vederlag:
Fotopakke inkl drone kr 5 200,00
Kontroll av hjemmel og heftelser kr 3 900,00
Markedsføringspakke Fritid kr 29 900,00
Oppgjør kr 8 900,00
Tilrettelegging kr 19 900,00
Visninger pr stk / Overtagelse kr 2 900,00
Utlegg:
Innhenting av offentlig opplysninger Kviteseid kr 2 200,00
Tinglysing sikring kr 545,00
Andre utgifter:
AX tilstandsrapport Hytte under 150 kvm kr 17 500,00
Boligselgerforsikring Gjensidige Tomt/Fritid regnes av prisant. kr 28 079,50
Vi er opptatt av verdiskapning, og har knyttet til oss samarbeidspartnere som skal sikre våre kunder de beste produkter og tjenester;
• I forbindelse med forberedelse av salget, innhenter vi informasjon om eiendommen hovedsakelig fra vår samarbeidspartner Amibita.
• Gjensidige leverer boligselgerforsikring og tilbyr bygningsforsikring
• Boligkjøperforsikring leveres av Hiscox og med Sedgwick som skadebehandler, og er formidlet gjennom Gjensidige.
• BN bank tilbyr finansieringsløsninger
• Vår avdeling Krogsveen Pluss tilbyr flyttetjenester som utvask, visningsvask, lager, tømming og transport av flyttelass, i tillegg til å formidle kontakt med Flip for overflateoppussing.
• I forbindelse med overtagelse av eiendommen tilbyr Overo avtale om strøm, alarm og bredbånd.
• Krogsveen er, sammen med øvrige bransjeaktører, medeier i Bomega AS som tilbyr den digitale annonseringsplattformen Hjem.
Opplysninger om oppdraget
Oppdragsnummer 22-0021/26
Eiendomsmegler Krogsveen AS, avd. Sandefjord
Jernbanealléen 13, 3210, SANDEFJORD
950 007 613
Oppdragets KR-kode KR22.2621
Dato
Sist oppdatert: 29. mai 2026 kl. 15:30
Dokumenter
Dokumenter
PDF – 1004 KB
PDF – 422 KB
PDF – 167 KB
PDF – 312 KB
PDF – 29 KB
PDF – 127 KB
PDF – 392 KB
Område
Legg til steder som er viktige for deg
Visning
For å delta på visning, ber vi om at du melder deg på. Da sikrer vi at du får nødvendig informasjon og at det er satt av tilstrekkelig med tid. Kontakt megler dersom annet tidspunkt ønskes. Husk å lese salgsoppgaven før visningen, så du stiller forberedt. NB. Visning utgår dersom det ikke er noen påmeldte.
Ta kontakt med megler for avtale om privatvisning.
Ønsker du kun å bli holdt orientert, kan du fra eiendommens hjemmeside få varsel om solgtpris, eller kontakte megler.
Lurer du på noe?
Vurderer du utleie?
Få et tilbud fra Utleie KrogsveenHva koster lånet?
Sjekk estimert lånekostnadVil du varsles om lignende boliger?
Ved å lagre ditt boligsøk hos oss får du beskjed når vi har en bolig som ligner denne, før den legges ut på markedet!






















































