Sandekra 22
4 350 000 kr
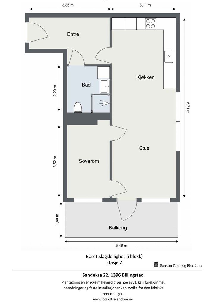
48 m²
1 soverom
Solgt
Splitter ny 2-roms med solrik balkong. God intern beliggenhet. Vannbåren gulvvarme. Lave felleskost. Leilighet ferdigstilt juni 2025.
Prisantydning
4 350 000 krOmkostninger
119 790 krTotalpris
4 469 790 kr
Pris
Bruksareal
48 m²BRA-I (internt bruksareal)
48 m²TBA (terrasse-balkongareal)
10 m²
Areal
Etasje
2Byggeår
2025Soverom
1 soveromBad
1 badType
EierleilighetEierform
EierseksjonFasiliteter
Heis og Balkong/TerrasseFellesutgifter
2 000 krEnergimerke
Grønn B
Nøkkelinfo
Unngå doble boligrenter
Vi tilbyr gunstig forsikring.
Vurderer du utleie?
Få et tilbud fra Utleie KrogsveenHva koster lånet?
Sjekk estimert lånekostnadBeskrivelse
Kort om eiendommen
Velkommen til Sandekra 22 presentert av Eiendomsmegler Marius Stormfelt v/Krogsveen!
Her får du en splitter ny 2-roms leilighet i byggets andre etasje, oppført i 2025. Leiligheten har vannbåren gulvvarme, lave felleskostnader og tilstandsgrad 1 (TG1) på alle punkter. Bygget har heis, og leiligheten har en solrik beliggenhet med kort gangavstand til både buss og tog. Det medfølger også en praktisk bod i kjeller. Et ideelt førstegangskjøp!
-Nytt bygg fra 2025
-Lave felleskostnader
-Vannbåren gulvvarme
-Perfekt førstegangskjøp
-God intern beliggenhet
-Gode solforhold
-Balkong på 10 kvm
-Utbyggergaranti
-Kort vei til buss og tog
-Nærhet til "alt" av fasiliteter.
Meglere

Marius Stormfelt
Eiendomsmegler/Fagansvarlig

Kristoffer Stormfelt
Daglig leder/Eiendomsmegler
Ansvarlig megler Marius Stormfelt
På flyttefot? Tenk kjøp og salg samtidig.
Få din egen rådgiver gjennom hele kjøps- og salgsprosessen. Det starter med en verdivurdering.
Unngå doble boligrenter
Vi tilbyr gunstig forsikring.
Vurderer du utleie?
Få et tilbud fra Utleie KrogsveenHva koster lånet?
Sjekk estimert lånekostnadVil du varsles om lignende boliger?
Ved å lagre ditt boligsøk hos oss får du beskjed når vi har en bolig som ligner denne, før den legges ut på markedet!
På flyttefot? Slik gjør vi det enklere for deg
Skreddersydd flyttepakke
Vi fikser håndverkere, vask, pakking, lagring og transport, og legger ut for utgiftene underveis.
Hjelp med både kjøp og salg
Hos oss har du din egen rådgiver gjennom hele kjøps- og salgsprosessen.
Hjelp til finansiering
Vårt samarbeid med BN Bank sikrer deg rask og løsningsorientert hjelp, til konkurransedyktige betingelser.


