Keiser Wilhelms gate 64
2 900 000 kr
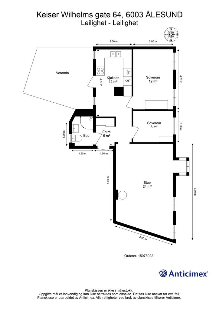
64 m²
2 soverom
Solgt

Ålesund sentrum
BUD MOTTATT! Tiltalende og lys eierleilighet med terrasse på 17 m2 | 2 soverom | Nydelig utsikt |Sentralt v/bybadet
Prisantydning
2 900 000 krOmkostninger
83 540 krTotalpris
2 983 540 kr
Pris
Bruksareal
66 m²BRA-I (internt bruksareal)
64 m²BRA-E (eksternt bruksareal)
2 m²TBA (terrasse-balkongareal)
17 m²
Areal
Etasje
2Byggeår
1907Soverom
2 soveromBad
1 badType
EierleilighetEierform
EierseksjonFasiliteter
Balkong/TerrasseFellesutgifter
2 087 krEnergimerke
Rød F
Nøkkelinfo
Unngå doble boligrenter
Vi tilbyr gunstig forsikring.
Vurderer du utleie?
Få et tilbud fra Utleie KrogsveenHva koster lånet?
Sjekk estimert lånekostnadBeskrivelse
Kort om eiendommen
Flott eierleilighet med store vinduer og gode lysforhold. Terrasse på 17 m2. Sentral beliggenhet like ved Bybadet
* Praktfull utsikt mot Sunnmørsalpene og Borgundfjorden
* Flott en-stavs eikegulv fra 2022
* Gode garderobeløsninger
* Peisovn i stue
* God takhøyde
* Oppgradert kjøkken
Velkommen til visning - husk påmelding!
Område
Legg til steder som er viktige for deg
På flyttefot? Tenk kjøp og salg samtidig.
Få din egen rådgiver gjennom hele kjøps- og salgsprosessen. Det starter med en verdivurdering.
Unngå doble boligrenter
Vi tilbyr gunstig forsikring.
Vurderer du utleie?
Få et tilbud fra Utleie KrogsveenHva koster lånet?
Sjekk estimert lånekostnadVil du varsles om lignende boliger?
Ved å lagre ditt boligsøk hos oss får du beskjed når vi har en bolig som ligner denne, før den legges ut på markedet!

