Nyveien 18 og 20
6 490 000 kr
514 m²
9 soverom
Solgt

Stadsbygd
Herskapelig eiendom beliggende i et naturskjønt område | To eneboliger og garasje | Flotte solforhold og nydelig utsikt
Prisantydning
6 490 000 krOmkostninger
183 240 krTotalpris
6 673 240 kr
Pris
Bruksareal
620 m²BRA-I (internt bruksareal)
514 m²BRA-E (eksternt bruksareal)
106 m²TBA (terrasse-balkongareal)
90 m²
Areal
Byggeår
1948Soverom
9 soveromBad
3 badTomteareal
2 124 m² (eiet)Type
Enebolig - FrittliggendeEierform
EietFasiliteter
Garasje/P-plass og Balkong/TerrasseEnergimerke
Gul G
Nøkkelinfo
Unngå doble boligrenter
Vi tilbyr gunstig forsikring.
Vurderer du utleie?
Få et tilbud fra Utleie KrogsveenHva koster lånet?
Sjekk estimert lånekostnadBeskrivelse
Kort om eiendommen
Velkommen til Nyveien 18/20, og denne fantastiske eiendommen beliggende i idylliske områder i Stadsbygd! Her bor du omkranset av et vakkert naturlandskap med fantastisk utsikt. Det er kort vei til en rekke servicetilbud. Det er også svært gode turområder i området.
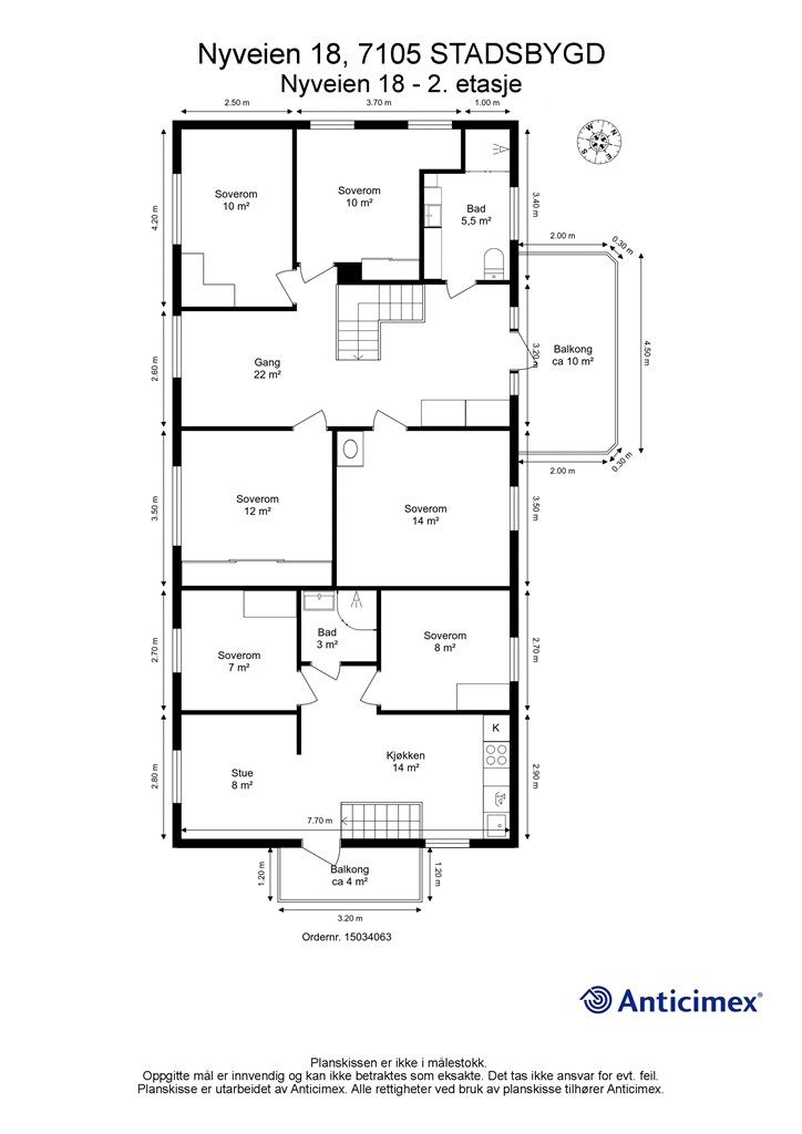
Eiendommen består av to eneboliger og en dobbeltgarasje. I dag er eiendommen delvis utleid med gode leieinntekter. Nyveien 18 består av to etasjer pluss kjeller og loft, og en del av boligen er i dag innredet som utleieleilighet med egen inngang. Boligen holder en god standard og er godt vedlikeholdt. Nyveien 20 er i dag utleid og består av to etasjer. Boligen inneholder blant annet kjøkken, to stuer, tre soverom og stor påbygd sportsbod. Eiendommen har et svært pent uteområde med store plenareal og beplantninger.

Område
Legg til steder som er viktige for deg
På flyttefot? Tenk kjøp og salg samtidig.
Få din egen rådgiver gjennom hele kjøps- og salgsprosessen. Det starter med en verdivurdering.
Unngå doble boligrenter
Vi tilbyr gunstig forsikring.
Vurderer du utleie?
Få et tilbud fra Utleie KrogsveenHva koster lånet?
Sjekk estimert lånekostnadVil du varsles om lignende boliger?
Ved å lagre ditt boligsøk hos oss får du beskjed når vi har en bolig som ligner denne, før den legges ut på markedet!

