Rubintunet 42
4 290 000 kr
102 m²
3 soverom
Komplett salgsoppgave
Begby
Familieorientert og praktisk rekkehus fra 2016. Romslig altan og terrasse. 2 biloppstillingsplasser. Skole i nabolaget.
Prisantydning
4 290 000 krOmkostninger
128 240 krTotalpris
4 418 240 kr
Pris
Bruksareal
108 m²BRA-I (internt bruksareal)
102 m²BRA-E (eksternt bruksareal)
6 m²TBA (terrasse-balkongareal)
37 m²
Areal
Etasje
2Byggeår
2016Soverom
3 soveromBad
1 badType
RekkehusEierform
EierseksjonÅrlig velavgift
2 200 krEnergimerke
Oransje B
Nøkkelinfo
Unngå doble boligrenter
Vi tilbyr gunstig forsikring.
Vurderer du utleie?
Få et tilbud fra Utleie KrogsveenHva koster lånet?
Sjekk estimert lånekostnadBeskrivelse
Kort om eiendommen
- Smart og familievennlig romløsning med tre soverom
- Meget gode lysforhold og opptil 2,7 meter himlingshøyde i andre etasje
- Stilfullt og bruksvennlig kjøkken
- Bad, toalettrom og teknisk rom/vaskerom
- Alle hvitevarer medfølger, vaskesøyle inkludert
- Gulvvarme i hele første etasje og toalettrom
- Luft-luft varmepumpe i ett soverom, peis i stuen
- Romslige utearealer på altan og terrasse - sol dagen gjennom
- To biloppstillingsplasser rett foran inngangsdøren
- Romslig sportsbod på 6 kvm ved inngangspartiet
- Barnevennlig nærmiljø med umiddelbar nærhet til barnehage, skole og idrettsanlegg
Innhold og byggemåte
Innhold og byggemåte
Eiendommen
Rubintunet 42, 1639 GAMLE FREDRIKSTAD
Kommunenummer 3107, gårdsnummer 601, bruksnummer 502, seksjonsnummer 2, ideell andel 1/1
Innhold
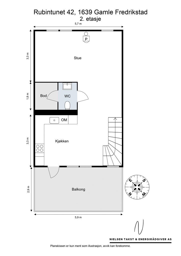
Totalt bruksareal BRA: 108 kvm
BRA-i:
Rekkehus :
1. etasje - 51 kvm: Entré, bad, vaskerom og 3 soverom
2. etasje - 51 kvm: Toalettrom, bod, kjøkken og stue
BRA-e:
Rekkehus :
1. etasje - 6 kvm: Utebod
Åpent areal:
Rekkehus :
1. etasje - 20 kvm: Terrasse
2. etasje - 17 kvm: Balkong
Boligen disponerer en utvendig og en innvendig bod. Boden er tinglyst som en tilleggsdel til seksjonen.
Vedlagte plantegninger er ikke målbare. De oppgitte arealer er hentet fra rapport med befaringsdato 17.03.2026 utført av Takstkonsulent1 AS. Arealene er beregnet og rom er definert etter dagens faktiske bruk, uavhengig av hva som er godkjent av bygningsmyndighetene.
Se punkt ferdigattest.
Byggemåte
Selger har innhentet en tilstandsrapport av boligen/eiendommen. Av rapporten fremgår det at flere bygningsdeler har fått tilstandsgrad ikke undersøkt/ikke tilgjengelig for undersøkelse (TG IU), 2 (TG2) og/eller 3 (TG3). Rapporten beskriver også avvik på undersøkte bygningsdeler uten tilstandsgrad. Kjøper overtar ansvaret for de opplysninger som fremkommer av salgsdokumentasjonen, og kan ikke gjøre gjeldende som mangel noe som burde vært kjent eller som ikke kan anses å ha betydning for avtalen.
Bygningen er iht. tilstandsrapporten oppført i tre. Rekkehus oppført i 2016. Bygningen er oppført på ringmur av betong. Etasjeskille av trebjelkelag. Yttervegger antas oppført med konstruksjonsvirke av tre, utvendig kledd med liggende kledning. Takkonstruksjon med sperrer av tre, pulttaksform, tekket med pappshingel e.l (ikke besiktiget). Les for øvrig mer om byggemåte og den tekniske tilstanden i rapporten.
Det gjøres spesielt oppmerksom på:
Det er gitt Tilstandsgrad 2 (TG2- avvik som kan krever tiltak) på følgende:
Utvendig > Vinduer:
Det ble registrert flere vinduer hvor tettingen mellom karm og tetningslist har glipper. Det bør utbedres tetting mellom karm og tetningslist på de aktuelle vinduene for å hindre trekk, varmetap og risiko for fuktinntrengning i konstruksjonen. Manglende tetting kan føre til redusert komfort og økte oppvarmingskostnader, samt mulig skade på omkringliggende materialer over tid.
Utvendig > Balkonger, terrasser og rom under balkonger:
Det er værslitt/oppsprukket trevirke/trepaneler. Værslitt og oppsprukket trevirke bør utbedres eller skiftes ut for å forhindre ytterligere forringelse og redusere risikoen for råteskader og svekket bæreevne. Dette vil bidra til å opprettholde konstruksjonens sikkerhet og levetid.
Innvendig > Baderomsdør:
Det vil normalt være noe bruksslitasje på overflatene. Dette anses som mindre avvik. Synlig fuktsvelling i bunn av toalettdør. Bør vurderes utskifting på sikt.
Tekniske installasjoner > Ventilasjon:
Balansert ventilasjon. Ventilasjonskanaler er begrenset visuelt kontrollert i forbindelse med rapporten. Hvis riktig tilstand på kanaler skal kartlegges, kan dette gjøres ved hjelp av TV-kontroll. Det anbefales å følge leverandørens anvisninger for serviceintervall. Det ble ikke fremlagt dokumentasjon på serviceintervaller på befaringsdagen.
Tekniske installasjoner > Andre VVS-installasjoner:
Luft-til-luft varmepumpe plasser på soverom i 1. etasje. Det ble ikke fremlagt dokumentasjon på serviceintervaller på befaringsdagen. Dokumentasjon på utført service bør framskaffes, slik at avviket kan lukkes.
Toalettrom 2.etasje > Overflater og konstruksjon:
Det er ikke påvist tilfredsstillende løsning for å synliggjøre lekkasje fra innebygget sisterne. Uten dreneringsløsning/lekkasjesikring kan lekkasjer pågå over lang tid uten å bli oppdaget. Dette kan føre til omfattende fuktskader i omkringliggende byggematerialer.
Kjøkken > Overflater og innredning:
Det ble registrert fuktsvelling på nærliggende innredning til oppvaskmaskin. Ingen strakstiltak nødvendig. Overvåk konstruksjonen jevnlig, ved forverring bør det utføres tiltak.
Bad 1. etasje > Overflater vegger og himling:
Himling med malte plater. Vegger med fliser. Det er påvist at flisfuger har riss/sprekker. Overvåk konstruksjonen jevnlig, ved forverring bør det utføres tiltak.
Bad 1. etasje > Overflater Gulv:
Det registreres bom i flisene på gulv i dusjsonen. Selv om bom eller hullyd ikke alltid er et umiddelbart problem, bør det overvåkes nøye før eventuell utvikling i sprekker i flisfuger e.l. oppstår. Dette må en foreta tiltak for, for å begrense utviklingen. Videre bruk av lukket dusjkabinett anbefales.
Bad 1. etasje > Sanitærutstyr og innredning:
Det er påvisst riss/sprekker i utstyr på våtrommet. Det er ikke behov for utbedringstiltak. Overvåk konstruksjonen jevnlig, ved forverring bør det utføres tiltak. Til tross for avviket i fall/høydeforskjell til sluk, vil gulvet fortsatt kunne lede vann mot sluket, men med redusert effektivitet. Dette kan potensielt øke risikoen for vannansamling i enkelte områder av badet.
Vaskerom 1.etasje > Overflater gulv:
Det er påvist at høydeforskjell fra topp slukrist til gulv/synlig topp membran ved dørterskel er mindre enn 25 mm. Til tross for avviket i fall/høydeforskjell til sluk, vil gulvet fortsatt kunne lede vann mot sluket, men med redusert effektivitet. Dette kan potensielt øke risikoen for vannansamling i enkelte områder av badet.
Tilstandsrapporten er inntatt i salgsoppgaven. Rapporten inneholder informasjon om avvikene og konsekvensen av disse. For avvik som er gitt TG3 har den bygningssakkyndige i tillegg gitt et anslag på hva det vil koste å utbedre disse avvikene. Ettersom kjøper regnes å være kjent med forhold som tydelig fremgår av tilstandsrapporten, oppfordres du til å sette deg grundig inn i rapporten i sin helhet.
Se supplerende tekst i tilstandsrapporten om rommet/badet/bygningsdelen/skjevheten/sluket/fuktigheten etc. Kjøper overtar ansvar og risiko for dette.
Standard
Boligen ble oppført med moderne standard. Så vel innvendige overflater som faste innredninger og installasjoner i boligen er fra byggeåret og i god stand i forhold til alder og brukstid. Malerarbeid er utført i flere rom gjennom påfølgende år.
Det interne bruksarealet på 102 kvm. er effektivt disponert i en familievennlig planløsning som gir etasjene hvert sitt formål. Andre etasje er i praksis en eneste stor sosial sone bestående av stuen og kjøkkenet, samt et toalettrom som er praktisk å ha på samme plan.
I den gjennomgående sosiale sonen råder både gode lysforhold og en luftig romfølelse. Vinduer med store flater i begge ender slipper inn mye naturlig lys dagen gjennom. Himlingen er skrånende og over kjøkkenet hele over 2,7 meter høy. Et rikt antall innfelte spotter som kan dimmes besørger jevn og effektfull belysning.
Kjøkkenets innredning er en stilsikker løsning med mange oppbevaringsmuligheter , blant annet i doble overskap som utnytter den ekstra himlingshøyden. Hvitevarene på kjøkkenet medfølger, alle utenom frittstående fryseskap er integrert.
Boligens tre soverom er samlet på én flate i første etasje, noe som er spesielt praktisk mens barna er små. Både soverommene og etasjens øvrige rom har varmekabler i gulvet. Alle er av god størrelse til sine formål; hovedsoverommet på ca. 11 kvm., de øvrige to på ca. 8 og 7 kvm. De sistnevnte benyttes i dag som henholdsvis walk-in closet og kontor, men kan umiddelbart tas i bruk som barnerom om ønskelig. Ett er utstyrt med luft-luft varmepumpe.
Badet er i senere år oppgradert med nye dusjdører i tidsaktuelle sorte profiler. Sanitærutstyret for øvrig er i likhet med resten av badet fra byggeåret og inkluderer moderne møbler med oppbevaringsplass i både speilskap og hendige servantskuffer. Arealkrevende hvitevarer som vaskemaskin og tørketrommel har dedikert plass i teknisk rom, vis á vis badet. Begge medfølger.
Overflater og innredninger:
Gulv: Fliser i entré, teknisk rom/vaskerom, toalettrom og på bad, ellers laminat.
Innervegger: Fliser på bad, ellers glatte flater.
Himlinger: Glatte flater. Spotter innfelt i stue, kjøkken, entré og på bad.
Kjøkken: Skapinnredning med glatte hvite fronter. Laminerte grå benkeplater. Nedfelt dobbel stålvask med avrenningsbrett og ett-greps blandebatteri. Integrert platetopp, stekeovn, mikrobølgeovn og oppvaskmaskin. Ventilator i overskap.
Bad: Servantskap med glatte mørke fronter og heldekkende servant med ett-greps blandebatteri. Speilskap med overbelysning. Dusjhjørne med sidehengslede glassdører i sort profil og to-greps blandebatteri med hånddusj. Toalett montert på innbygget sisterne.
Løsøre og tilbehør
Kjøleskap, fryser, tørketrommel og vaskemaskin medfølger salg.
Vi viser til liste fra Norges Eiendomsmeglerforbund som gjelder fra 01.01.2020 angående løsøre og tilbehør.
Oppvarming
Boligen varmes opp av elektrisk oppvarming og vedovn. Elektrisk gulvvarme på bad.
Dersom beboelsesrom ikke har vegg- eller fastmonterte varmekilder ved visning, følger dette heller ikke med.
Ferdigattest/brukstillatelse
Det foreligger ferdigattest på Nybygg boliger - 2 bygninger med 3 boenheter hver, datert 01.08.2016. Denne kan fås ved henvendelse til megler.
Ferdigattesten omfatter ikke utvidelse av balkong.
Tinglyste heftelser og rettigheter
Eiendommen overdras fri for pengeheftelser.
Det er tinglyst to servitutter på sameiets eiendom. Disse omhandler blant annet seksjonering, bestemmelse om pliktig medlemskap i velforeninga, vann/kloakkledning og bestemmelse om gjerde, m.m den gang Fredrikstad kommune solgte ut disse tomtene for bebyggelse.
Servitutten vil følge eiendommen. Kjøpers bank vil få prioritet etter ovennevnte heftelser og servitutter.
Eventuell adgang til utleie
Leiligheten kan leies ut såfremt leiligheten har forsvarlige radonverdier. Leietaker må følge sameiets vedtekter og ordensregler på lik linje som eier.
Diverse
Vi er opptatt av verdiskapning, og har knyttet til oss samarbeidspartnere som skal sikre våre kunder de beste produkter og tjenester;
• I forbindelse med forberedelse av salget, innhenter vi informasjon om eiendommen hovedsakelig fra vår samarbeidspartner Amibita.
• Gjensidige leverer boligselgerforsikring og tilbyr bygningsforsikring
• Boligkjøperforsikring leveres av Hiscox og med Sedgwick som skadebehandler, og er formidlet gjennom Gjensidige.
• BN bank tilbyr finansieringsløsninger
• Vår avdeling Krogsveen Pluss tilbyr flyttetjenester som utvask, visningsvask, lager, tømming og transport av flyttelass, i tillegg til å formidle kontakt med Flip for overflateoppussing.
• I forbindelse med overtagelse av eiendommen tilbyr Overo avtale om strøm, alarm og bredbånd.
• Krogsveen er, sammen med øvrige bransjeaktører, medeier i Bomega AS som tilbyr den digitale annonseringsplattformen Hjem.
Beliggenhet og tomteforhold
Beliggenhet og tomteforhold
Beliggenhet
Begby er et ettertraktet boligområde, spesielt blant familier med barn i skolealder. Her er både barne- og ungdomsskole samt idrettsanlegg med tilhørende tilbud lett tilgjengelig i nærmiljøet, i tillegg eksisterer det også flere barnehager i området. I nabolaget finnes flere lekeplasser og løkker, i tillegg har også skolegården både lekeplasser, baner og ballbinge som representerer et aktivitetstilbud utenom skoletid.
Østsiden har en rekke fine turområder med tilsvarende mange muligheter for turer og utflukter. Lysløype er lett tilgjengelig fra nabolaget og velegnet blant annet for løping og sykling. Det samme er Glommastien som følger elven helt til sentrum av Sarpsborg.
18-hulls golfbane er også lett tilgjengelig i nærområdet. Sommerstid er friluftsbadet på Kongsten vel verdt gjentatte besøk, resten av året er det bademuligheter innendørs i svømmehall samme sted. Tar du turen ut i det vakre Torsneslandet finner du en mengde turstier samt idylliske bukter og viker.
Det finnes flere nærsentre på Østsiden som foruten store dagligvareforretninger også inneholder tilbud innenfor helse og personlig pleie. Nærmest er Begby Senter, der daglige innkjøp enkelt kan gjennomføres.
Nærheten til bykjernen innebærer enkel tilgang til alle byens fasiliteter, deriblant shoppingtilbud, spisesteder og kulturliv. Buss med hyppige avganger til sentrum og togstasjonen stopper i nabolaget. Alternativt kan du benytte deg av kommunens utmerkede fergetilbud som attpåtil er gratis. Gamlebyen fergeleie er innenfor sykkelavstand og har forbindelse til blant annet by-siden, Kråkerøy og helt til Gressvik og Ålekilen i Onsøy.
Adkomst
Veibeskrivelse Se Google maps - det er enkelt å finne frem i kartet.
Det vil bli skiltet med Krogsveen visningsskilt ved fellesvisninger.
Barnehager, skoler og fritid
Barnehager:
Begbyenga barnehage (1-5 år) 0.6 km
Bjørneklova barnehage (1-5 år) 0.7 km
Begby Doremi barnehage (0-5 år) 1.4 km
Skoler:
Begby barne- og ungdomsskole (1-10 kl.) 0.3 km
Kjølberg skole (1-7 kl.) 2 km
Borge skole (1-10 kl.) 2.5 km
Borge ungdomsskole (8-10 kl.) 2 km
Akademiet vgs. Fredrikstad 4.9 km
Hans Nielsen Hauge vgs
Informasjon om tilhørende skolekretser er hentet fra Prognosesenteret som dataleverandør, og tilhørigheten kan årlig endres av kommunen. Dersom skole- og barnehagetilbud er av betydning for kjøpet, ber vi om at det rettes en særskilt henvendelse til kommunen/bydelsadministrasjonen for oppdatert informasjon.
Beskrivelse av tomt
Eiertomt på 1 030 kvm som tilhører sameiet. Tomten er fellesareal.
Parkering
Parkering på egen tomt for 2 biler. Gjesteparkering på området.
Ingen ladepunkt per i dag. Det er montert et helt ordinært stikk 220v i gårdplass hvor bil kan lades.
Vei, vann og avløp
Eiendommen har adkomst via kommunal vei.
Eiendommen er tilknyttet kommunalt ledningsnett via private stikkledninger.
Regulerings-og arealplaner
Eiendommen er regulert til konsentrert småhusbebyggelse i henhold til reguleringsplan 520 Bråten Begby datert 09.11.2004 med tilhørende reguleringsbestemmelser.
Eiendommen omfattes også av kommuneplan Fredrikstad 2023-2035 datert 15.06.2023 med formål- og henssynssone: bebyggelse og anlegg.
Det foreligger et generelt pålegg for området fra Fredrikstad kommune vedrørende utkobling av taknedløp (dvs regnvann skal ikke belastes offentlige vann-og avløpsrør men føres/ledes ut i bakke).
Utsnitt av plan med tilhørende bestemmelser kan fås ved henvendelse til megler.
Økonomi
Økonomi
Kommunale utgifter
Kommunale avgifter er kr 17.413,- for inneværende år. I dette inngår gebyr for vann, avløp, renovasjon og feiing/tilsyn.
Eiendomsskatten er kr 4.920,- for inneværende år. Denne faktureres med de kommunale avgiftene.
Nåværende eier har et strømforbruk som tilsvarer ca. kr 23.000,- pr. år. / 14.000 kwh. pr. år.
Selger har avtalt Norgespris på strøm på eiendommen for perioden frem til 31.12.2026.
Les mer om Norgespris her: https://www.regjeringen.no/no/aktuelt/legg-fram-lov-om-norgespris-pa-straum-og-fjernvarme/id3102642/
Boligen har en årlig forsikringspremie på kr 8.800,-.
Boligen er tilknyttet Altibox som leverandør av kabel-tv og internett.
Utgiftene er basert på nåværende eiers forbruk og avtaler.
Formuesverdi
Ved hjelp av skatteetatens boligkalkulator er boligens formuesverdi beregnet til kr. 1.298.132,- for fjoråret når boligen benyttes som primærbolig.
Formuesverdien er en gitt prosent av den beregnede markedsverdien. Beregnet markedsverdi er basert på Statistisk sentralbyrå (SSB) sine opplysninger om omsatte boliger. I beregningen tas det hensyn til boligens beliggenhet, areal, byggeår og boligtype.
Det er eier av boligen som fastsetter formuesverdien, jf. skatteforvaltningsloven § 9-1 første ledd, men skattemyndighetene kan kontrollere at verdien er satt riktig.
Formuesverdi skal ikke overstige:
Primærbolig: 25 % av beregnet eller dokumentert markedsverdi opp til kr. 10 000 000, og deretter 70 % av den overskytende markedsverdi.
Sekundærbolig: 100 % av beregnet eller dokumentert markedsverdi.
Formuesverdier som overstiger disse grensene, kan kreves nedjustert av eier.
Fra 2026 har Stortinget vedtatt en oppdatert modell for beregning av formuesverdi for primærbolig, så avvik kan forekomme.
For mer informasjon se skatteetaten.no
Omkostninger
4 290 000,00 Prisantydning
Omkostninger
107 250,00 Dokumentavgift til staten (2,5% av kjøpesum)
19 900,00 Gjensidige Boligkjøperpakke (valgfri)
545,00 Tinglysing panterettsdokument
545,00 Tinglysing skjøte
--------------------------------------------------------
128 240,00 Omkostninger totalt
--------------------------------------------------------
4 418 240,00 Totalpris inkl. omkostninger
--------------------------------------------------------
Tilbud om lånefinansiering
Megler formidler gjerne kontakt med rådgiver hos vår samarbeidspartner BN Bank. De har konkurransedyktige betingelser samt rask og løsningsorientert behandling av din lånesøknad. Krogsveen mottar et honorar dersom lån opprettes.
Betalingsbetingelser
Kjøpesum inkludert omkostninger, samt pantedokument tilknyttet eventuelt lån, skal være disponibelt hos megler 2 virkedager før overtagelsen.
Annen viktig informasjon
Annen viktig informasjon
Eier
Bjørn Thomas Hermansen
Informasjon om forkjøpsrett
Eiendommen er seksjonert, og leiligheten er tilknyttet Rubintunet Vel, med sameiebrøk 1/6.
Forretningsfører er Solibo.
Dugnad må påregnes.
Dyrehold er tillatt.
Vi gjør videre oppmerksom på at det iht. eierseksjonsloven ikke er anledning å erverve mer enn 2 seksjoner i sameiet, her teller også eierskap via. firma, nærstående og familie. Kjøper har risikoen for at overskjøting på denne bakgrunn kan nektes av Statens Kartverk. I så fall vil kjøper uansett være forpliktet til å gjennomføre handelen, og oppgjør til selger vil finne sted tross manglende overskjøting. Konferer med megler for mer informasjon.
Kopi av seksjonsbegjæringen kan fås ved henvendelse til megler.
Overtakelse
Etter nærmere avtale.
Velforening
Boligen er tilknyttet Rubintunet Velforening. Årlig velavgift på kr. 2.200,- til brøyting og vedlikehold av fellesareal.
Boligselgerforsikring
Selger har i forbindelse med salget tegnet boligselgerforsikring levert av Gjensidige.
Boligselgerforsikringen dekker selgers ansvar etter avhendingsloven begrenset oppad til kr 14 millioner. Dersom kjøper oppdager forhold ved eiendommen som hen mener utgjør en mangel ved eiendommen, vil Gjensidige behandle reklamasjonen på vegne av selger. Forsikringsvilkår kan fås ved henvendelse til megler.
Vedlagt salgsoppgaven følger selgers egenerklæringsskjema og tilstandsrapport. Interessenter må sette seg inn i dokumentene før bud inngis.
Boligkjøperforsikring
Innen kontraktsmøtet må kjøper ta stilling til om det ønskes å bestille Boligkjøperpakken gjennom Gjensidige. I denne gunstige pakken er boligen ferdig forsikret og inkluderer rettshjelpsforsikring, også kalt Boligkjøperforsikring. Rettshjelpsforsikring gir trygghet og tilgang på profesjonell juridisk hjelp dersom det oppdages uventede feil eller mangler det første året etter overtagelse. Forsikringsselskapet behandler i så fall ethvert mangelskrav kjøper måtte ha overfor selger.
Boligkjøperpakken inkluderer bygningsforsikring for hus og hytte, innboforsikring, flytteforsikring og dobbel rentedekning - i situasjoner hvor kjøper ikke får solgt nåværende primærbolig.
Kjøper mottar ingen særskilt faktura for Boligkjøperpakken da kostnaden det første året legges til kjøpesummen for boligen. Det gjøres oppmerksom på Krogsveen mottar et honorar for denne formidlingen.
Produktark for Boligkjøperpakken ligger vedlagt i salgsoppgaven.
Dersom ikke boligkjøperpakke ønskes kan kun rettshjelpsforsikring, også kalt boligkjøperforsikring, tegnes særskilt via megler. Rettshjelpsforsikringen varer i 5 år fra overtagelse og leveres gjennom Gjensidige. Ta kontakt med megler for ytterligere informasjon.
Selskap og privatpersoner som driver med kjøp/salg/utvikling som ledd i egen næringsvirksomhet kan ikke tegne boligkjøperpakke eller rettshjelpsforsikring.
Budgivning
Forbrukerinformasjon om budgivning er vedlagt denne salgsoppgaven og er også på vår hjemmeside Krogsveen.no. Alle bud og budforhøyelser må inngis skriftlig. I tillegg må legitimasjon være fremlagt sammen med signatur fra budgiver.
Vi oppfordrer til å gi bud elektronisk via GI BUD-knappen på eiendommens hjemmeside på Krogsveen.no. Da vil samtlige vilkår bli oppfylt.
Eventuelle forhøyelser eller endringer av budet kan bekreftes pr SMS eller på e-post. Vi oppfordrer alltid til å kontakte megler pr. telefon i tillegg da forsinkelser i SMS og e-post kan forekomme.
For at budene skal kunne bli behandlet og videreformidlet skriftlig til alle involverte parter, må alle bud ha en tilstrekkelig lang akseptfrist, jf. eiendomsmeglingsforskriften § 6-3.
Selger må også skriftlig akseptere budet før aksept kan formidles til budgiver. Akseptfrist bør derfor være på minimum 30 minutter, og budforhøyelser må derfor skje i god tid før fristens utløp.
Bud i forbrukerforhold kan uansett ikke settes med kortere frist enn kl. 12.00 første virkedag etter siste annonserte visning. I tillegg kan ikke budet ha forbehold om at det skal holdes hemmelig ovenfor øvrige interessenter. Megler har iht lov om eiendomsmegling ikke anledning til å videreformidle disse budene, og de vil dermed heller ikke bli journalført.
Etter at eiendommen er solgt vil kjøper og selger få tilsendt budjournal. Øvrige budgivere kan få utlevert kopi av budjournalen i anonymisert form.
Hvitvaskingsreglene
I henhold til lov om hvitvasking og terrorfinansiering har megler plikt til å gjennomføre kontrolltiltak overfor kunder, herunder fullmektiger. Dette innebærer bl.a. å bekrefte kunders og reelle rettighetshaveres identitet på bakgrunn av fremvist gyldig legitimasjon eller på annen godkjent måte, samt å innhente opplysninger om kundeforholdets formål og tilsiktede art.
Dersom slike kundetiltak ikke kan gjennomføres, kan megler ikke etablere kundeforholdet eller utføre transaksjonen.
Hvis kjøper ikke bidrar til gjennomføring av kundekontrollen og dette fører til at transaksjonen blir forsinket eller ikke kan gjennomføres, vil dette ansees som mislighold av avtalen og gi selger rettigheter etter avhendingslova kapittel 5. I tilfeller der selger ikke bidrar til gjennomføring av løpende kundekontroll underveis i oppdraget, er det selger som misligholder sine forpliktelser etter avtalen og gi kjøper rettigheter etter avhendingslovens kapittel 4. Partene er selv ansvarlige for eventuelle kostnader og ansvar dette kan medføre. Eiendomsmegleren eller eiendomsmeglingsforetaket kan ikke holdes ansvarlig for de konsekvenser dette vil kunne få for partene eller andre som har interesser i eiendomshandelen.
Kjøper oppfordres til å innbetale kjøpesummen som ikke kommer fra låneinstitusjon i én samlet innbetaling fra egen konto i norsk bank. Megler har plikt til å melde fra til Økokrim om eiendomshandler som fremstår som mistenkelige. Melding sendes Økokrim uten at partene varsles.
Personopplysningsloven
I henhold til personopplysningsloven gjør vi oppmerksom på at interessenter kan bli registrert for videre oppfølging.
Lovanvendelse
Generelle bestemmelser
Salgsoppgaven er basert på de opplysningene selger har gitt til megler, den bygningssakyndiges tilstandsrapport, samt opplysninger innhentet fra kommunen, Kartverket og andre tilgjengelige kilder. Det er viktig at kjøper setter seg grundig inn i alle salgsdokumentene, herunder salgsoppgave, tilstandsrapport og selgers egenerklæring. Kjøper anses kjent med forhold som er tydelig beskrevet i salgsdokumentene, og slike forhold kan ikke påberopes som mangler. Dette gjelder uavhengig av om kjøper har lest dokumentene. Alle interessenter oppfordres til å undersøke eiendommen nøye, gjerne sammen med fagkyndig før bud inngis. Kjøper som velger å kjøpe usett kan ikke gjøre gjeldende som mangel noe han burde blitt kjent med ved undersøkelsen.
Dersom det er behov for avklaringer, anbefaler vi at interessenter rådfører seg med eiendomsmegler eller egne rådgivere før det legges inn bud.
En bolig som har blitt brukt i en viss tid, har vanligvis blitt utsatt for slitasje og skader kan ha oppstått. Slik bruksslitasje må kjøper regne med, og det kan avdekkes enkelte forhold etter overtakelse som nødvendiggjør utbedringer. Normal slitasje og skader som nødvendiggjør utbedring, er innenfor hva kjøper må forvente og vil ikke utgjøre en mangel.
Kjøper og selgers rettigheter og plikter reguleres av avtalen mellom partene, samt informasjonen som har vært tilgjengelig for kjøperen i forbindelse med handelen. Avtalen utfylles av avhendingsloven, og det gjelder ulike avtalevilkår avhengig av om kjøper er forbrukerkjøper eller ikke. Dette er nærmere beskrevet nedenfor.
På grunn av ulike avtalevilkår kan selger vurdere bud fra en som ikke er forbruker, ulikt fra en forbrukers bud. Dersom kjøper ikke er forbruker, er selger sitt mulige mangelsansvar begrenset fordi eiendommen selges "som den er". Selger kan ikke ta «som den er»- forbehold overfor en forbrukerkjøper. Selv et lavere bud fra en som ikke er forbruker kan foretrekkes fordi begrensningen i mulig mangelsansvar kan ha egenverdi for selger. Selger står fritt til å forkaste eller akseptere ethvert bud, og er for eksempel ikke forpliktet til å akseptere høyeste bud.
Budgiver skal i budskjema avgi egenerklæring om budgiver er forbruker eller næringsdrivende/ person som hovedsakelig handler som ledd i næringsvirksomhet. Budgivere får informasjon dersom andre bud er inngitt av en som ikke er forbruker.
Forbrukerkjøp - definisjon
Med forbrukerkjøp menes kjøp av eiendom når kjøperen er en fysisk person som ikke hovedsakelig handler som ledd i næringsvirksomhet.
Forbruker – avtalevilkår
Eiendommen har en mangel dersom den ikke er i samsvar med kravene som følger av avtalen, eller det foreligger brudd på bestemmelsene i avhendingsloven §§ 3-2 til 3-8. Hvis eiendommen ikke er i samsvar med det kjøperen må kunne forvente ut ifra alder, type og synlig tilstand, kan det være grunnlag for mangelskrav. Det samme gjelder hvis det er holdt tilbake eller gitt uriktige opplysninger om eiendommen. Dette gjelder likevel bare dersom man kan gå ut ifra at det virket inn på avtalen at opplysningen ikke ble gitt eller at mangelskravet ikke blir rettet i tide på en tydelig måte.
Boligen kan ha en mangel etter avhendingsloven § 3-3 andre ledd, dersom det er avvik mellom opplyst og faktisk innvendig areal, forutsatt at avviket er på 2% eller mer og minimum 1 kvm.
Ved beregning av et eventuelt prisavslag eller erstatning må kjøper selv dekke tap/kostnader opptil et beløp på kr 10 000 (egenandel).
Ikke-forbruker (næringsdrivende) – definisjon
Hvis kjøper er en juridisk person, eller en fysisk person som hovedsakelig handler som ledd i næringsvirksomhet, vil kjøpet ikke anses som et forbrukerkjøp.
Ikke-forbruker – avtalevilkår
Eiendommen har en mangel dersom den ikke er i samsvar med kravene som følger av avtalen.
Eiendommen selges «som den er», og selgers ansvar utover det konkret avtalte er da begrenset etter avhendingsloven § 3-9, første ledd andre setning.
Avhendingsloven § 3-3 andre ledd fravikes, og hvorvidt boligens arealsvikt utgjør en mangel vurderes etter avhendingsloven § 3-8.
Informasjon om kjøpers undersøkelsesplikt, herunder oppfordringen om å undersøke eiendommen nøye, gjelder også for kjøpere som ikke anses som forbrukere.
Det forutsettes at hjemmel overføres til kjøper. Hvis kjøper ikke ønsker hjemmelsoverføring av eiendommen, må det tas forbehold om dette i budet.
Meglers vederlag
Meglers vederlag betales av selger og er avtalt til:
Vederlag: 1,25 % av salgssummen inkl. eventuell fellesgjeld. Minimumsprovisjon er kr 50 000,00
Vederlag:
Etakst kr 3 900,00
Kontroll av hjemmel og heftelser kr 3 900,00
Kunderabatt SELGER; gjelder for avtalt: Etakst: (belastes megler) kr -3 900,00
Markedsføringspakke kr 29 900,00
Oppgjør kr 8 900,00
Tilrettelegging kr 19 900,00
Visninger pr stk 2.900,- (Første er gratis, belastes maks for 3 stk) kr 0,00
Utlegg:
Innhenting av offentlig opplysninger Fredrikstad - inkl tegning kr 4 684,00
Tinglysing sikring kr 545,00
Andre utgifter:
Boligselgerforsikring Gjensidige Snr - regnes av prisantydning kr 19 236,00
Foto PBF - dag kr 4 750,00
Rapport fra takstmann kr 16 000,00
Vi er opptatt av verdiskapning, og har knyttet til oss samarbeidspartnere som skal sikre våre kunder de beste produkter og tjenester;
• I forbindelse med forberedelse av salget, innhenter vi informasjon om eiendommen hovedsakelig fra vår samarbeidspartner Amibita.
• Gjensidige leverer boligselgerforsikring og tilbyr bygningsforsikring
• Boligkjøperforsikring leveres av Hiscox og med Sedgwick som skadebehandler, og er formidlet gjennom Gjensidige.
• BN bank tilbyr finansieringsløsninger
• Vår avdeling Krogsveen Pluss tilbyr flyttetjenester som utvask, visningsvask, lager, tømming og transport av flyttelass, i tillegg til å formidle kontakt med Flip for overflateoppussing.
• I forbindelse med overtagelse av eiendommen tilbyr Overo avtale om strøm, alarm og bredbånd.
• Krogsveen er, sammen med øvrige bransjeaktører, medeier i Bomega AS som tilbyr den digitale annonseringsplattformen Hjem.
Opplysninger om oppdraget
Oppdragsnummer 67-0047/26
Eiendomsmegler Krogsveen AS, avd. Fredrikstad og Sarpsborg
Dikeveien 14, 1661, ROLVSØY
950 007 613
Oppdragets KR-kode KR67.2647
Dato
Sist oppdatert: 01. april 2026 kl. 10:05
Dokumenter
Dokumenter
PDF – 911 KB
PDF – 680 KB
PDF – 25 MB
PDF – 312 KB
PDF – 29 KB
PDF – 127 KB
PDF – 392 KB
Område
Legg til steder som er viktige for deg
Visning
For å delta på visning, ber vi om at du melder deg på. Da sikrer vi at du får nødvendig informasjon og at det er satt av tilstrekkelig med tid. Kontakt megler dersom annet tidspunkt ønskes. Husk å lese salgsoppgaven før visningen, så du stiller forberedt. NB. Visning utgår dersom det ikke er noen påmeldte. Ønsker du kun å bli holdt orientert, kan du fra eiendommens hjemmeside få varsel om solgtpris, eller kontakte megler.
Lurer du på noe?
Unngå doble boligrenter
Vi tilbyr gunstig forsikring.
Vurderer du utleie?
Få et tilbud fra Utleie KrogsveenHva koster lånet?
Sjekk estimert lånekostnadVil du varsles om lignende boliger?
Ved å lagre ditt boligsøk hos oss får du beskjed når vi har en bolig som ligner denne, før den legges ut på markedet!




