Austråttryggen 14
5 990 000 kr
134 m²
3 soverom
Solgt

Austrått
Et flott enderekkehus i et attraktivt område - Solrikt uteområde - 3 soverom og 2 bad - Utsikt - Parkering i carport
Prisantydning
5 990 000 krOmkostninger
170 740 krTotalpris
6 160 740 kr
Pris
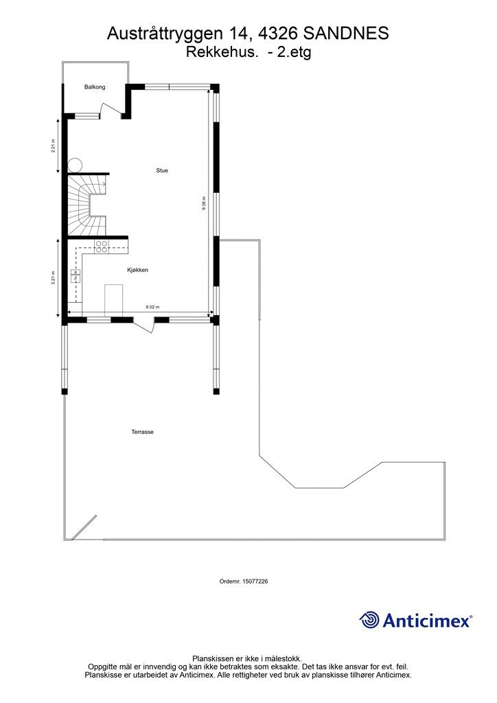
Bruksareal
141 m²BRA-I (internt bruksareal)
134 m²BRA-E (eksternt bruksareal)
7 m²TBA (terrasse-balkongareal)
110 m²
Areal
Etasje
3Byggeår
2012Soverom
3 soveromBad
2 badTomteareal
279 m² (eiet)Type
RekkehusEierform
EietÅrlig velavgift
1 750 krEnergimerke
Oransje C
Nøkkelinfo
Unngå doble boligrenter
Vi tilbyr gunstig forsikring.
Vurderer du utleie?
Få et tilbud fra Utleie KrogsveenHva koster lånet?
Sjekk estimert lånekostnadBeskrivelse
Kort om eiendommen
Dardan Shabi v/Krogsveen Sandnes har gleden av og presentere Austråttryggen 14.
Kort fortalt:
-Enderekkehus over 3 plan og god planløsning
-3 soverom og 2 bad
-God utsikt fra stue i 2. etasje og soverom i 3. etasje
-Solrikt og godt uteområde
-Parkering i carport med el-bil lader og sportsbod, samt biloppstillingsplass på egen tomt
-Nær barnehager, skoler, dagligvarebutikk, offentlig kommunikasjon og gangavstand til Sandnes sentrum
Velkommen til visning.
Område
Legg til steder som er viktige for deg
På flyttefot? Tenk kjøp og salg samtidig.
Få din egen rådgiver gjennom hele kjøps- og salgsprosessen. Det starter med en verdivurdering.
Unngå doble boligrenter
Vi tilbyr gunstig forsikring.
Vurderer du utleie?
Få et tilbud fra Utleie KrogsveenHva koster lånet?
Sjekk estimert lånekostnadVil du varsles om lignende boliger?
Ved å lagre ditt boligsøk hos oss får du beskjed når vi har en bolig som ligner denne, før den legges ut på markedet!

