Løvenstadvegen 12A
3 290 000 kr
72 m²
2 soverom
Komplett salgsoppgave
Løvenstad
Velholdt 3-roms leilighet med innglasset balkong, v.vann&fyring inkl |kort vei til skole, buss og turområder |Nær marka
Prisantydning
3 290 000 krAndel fellesgjeld
351 731 krOmkostninger
19 253 krTotalpris
3 660 984 kr
Pris
Bruksareal
87 m²BRA-I (internt bruksareal)
72 m²BRA-E (eksternt bruksareal)
4 m²
Areal
Etasje
3Byggeår
1964Soverom
2 soveromBad
1 badType
AndelsleilighetEierform
AndelFasiliteter
Balkong/TerrasseFellesutgifter
8 305 krEnergimerke
Grønn G
Nøkkelinfo
Unngå doble boligrenter
Vi tilbyr gunstig forsikring.
Vurderer du utleie?
Få et tilbud fra Utleie KrogsveenHva koster lånet?
Sjekk estimert lånekostnadBeskrivelse
Kort om eiendommen
Attraktiv og sentral beliggenhet på Løvenstad. Lys og praktisk 3-roms med innglasset balkong og utsikt.
Et ideelt hjem for deg som ønsker et praktisk og komfortabelt bomiljø med natur og byliv innen rekkevidde.
Leiligheten ligger i et populært og barnevennlig område på Løvenstad, med gangavstand til skole, barnehage, dagligvare, legesenter og bussholdeplass.
Området er rolig og familievennlig med kort vei til både flotte turområder, idrettsanlegg, svømmebasseng og nærmiljøaktiviteter.
Her bor du med nærhet til A-hus, Strømmen Storsenter (ca. 10 min. unna) og gode forbindelser til Lillestrøm og Oslo.
Borettslaget har store, velstelte grøntarealer med lekeplasser og gode solforhold.
Leiligheten har romslige rom, to soverom, innglasset balkong med utsikt og parkeringsplass.
Innhold og byggemåte
Innhold og byggemåte
Eiendommen
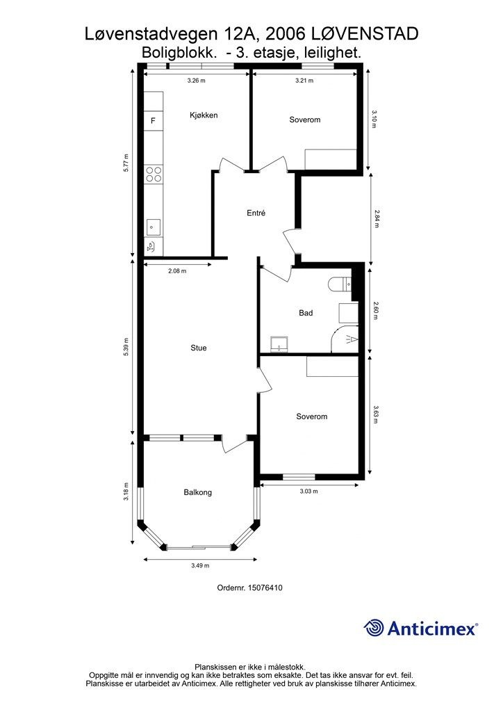
Løvenstadvegen 12A, 2006 LØVENSTAD
Kommunenummer 3224, gårdsnummer 106, bruksnummer 206, ideell andel 1/1
Andelsnummer 185, Løvenstad borettslag, organisasjonsnummer 953303787
Innhold
Totalt bruksareal BRA: 87 kvm
BRA-i:
3. etasje 72 kvm: Entré, bad, to soverom, stue og kjøkken
BRA-b:
3. etasje 11 kvm: Innglasset balkong
BRA-e:
-1. etasje 4 kvm: Bod
Vedlagte plantegninger er ikke målbare. De oppgitte arealer er hentet fra rapport med befaringsdato 08.10.2025 utført av Anticimex v/Owe Fagerlund Leret.
Byggemåte
Selger har fått utarbeidet en tilstandsrapport, dvs. en teknisk gjennomgang av boligen hvor eventuelle avvik, risiko for kjøper og prisoverslag for hva som bør gjøres av oppgradering, er skissert. Se særskilt TGIU (tilstandsgrad ikke undersøkt), samt TG2 og TG3 som viser hva som er boligens normale slitasje, alder og type, hva som er avvik fra dette og hva som bør/må utbedres. Rapporten og selgers egenerklæring er en del av salgsoppgaven og må leses nøye før bud inngis. Kjøper overtar ansvaret for de opplysninger som fremkommer av salgsdokumentasjonen, og kan ikke gjøre gjeldende som mangel noe som burde vært kjent eller som ikke kan anses å ha betydning for avtalen.
Bygningen er iht. tilstandsrapporten oppført i tre/mur/betong. Les for øvrig mer om byggemåte og den tekniske tilstanden i rapporten.
Det gjøres oppmerksom på at følgende er gitt TG2:
Bad:
- Ventilasjon
- Overflater gulv
- Fallforhold (gulv)
Kjøkken:
- Ventilasjon og avtrekk
- Vannrør
Øvrige rom - Overflater gulv
Tekniske anlegg, VVS anlegg - Varmesentral
Forenklet vurdering av det elektriske anlegget
Dører og vinduer
Se utfyllende tekst i rapporten.
Kjøper overtar ansvar og risiko for dette.
Standard
Leiligheten har en gjennomgående nøytral og pen standard med lyse overflater og gode planløsninger.
Boligen fremstår som velholdt og gir et godt utgangspunkt for videre tilpasning etter egen smak og behov.
Kjøkken
Kjøkkenet har innredning med glatte fronter og laminert benkeplate med nedsenket oppvaskkum og armatur.
Det er integrert stekeovn, innfelt oppvaskmaskin, innfelt kjøleskap og keramisk platetopp.
Løsningen gir et rent og moderne uttrykk med god arbeids- og oppbevaringsplass.
Bad
Badet ble rehabilitert i 2013 og fremstår som moderne og funksjonelt. Rommet er innredet med flislagt gulv med varme, flislagte vegger og malt himling med downlights.
Utstyrt med servant med armatur, dusjhjørne med dusjarmatur, vegghengt toalett med innebygget sisterne samt opplegg for vaskemaskin.
Soverom
Boligen har to soverom av god størrelse.
Begge rommene har plass til dobbeltseng og øvrig møblering, og er utstyrt med garderobeskap som gir gode oppbevaringsmuligheter.
Vegger er malt i lyse fargetoner som gir et rolig og behagelig inntrykk.
Øvrige rom
Gulvflater i oppholdsrom er belagt med parkett, mens entré har flislagt gulv.
Vegger er malt i lyse fargetoner.
Oppvarming skjer via radiatorer tilknyttet felles sentralfyringsanlegg, som gir jevn og behagelig varme i boligen.
Kun de integrerte hvitevarene på kjøkkenet medfølger. Kjøper må påregne normal slitasje som følge av alder og bruk.
Oppvarming
Leiligheten blir varmet opp via radiatorer tilkoblet felles fjernvarmeanlegg.
Varmekabler i gulv på bad.
Dersom beboelsesrom ikke har vegg- eller fastmonterte varmekilder ved visning, følger dette heller ikke med.
Selger har avtalt Norgespris på strøm på leiligheten for 2026 og denne er pt på kr 50 øre inkl mva.
Nettleie, avgifter og påslag fra kraftleverandøren kommer i tillegg. Ved fjernvarme vil det også komme kostnader i tillegg.
Denne avtalen vil følge eiendommen i den avtalte perioden.
Les mer om Norgespris her: https://www.regjeringen.no/no/aktuelt/legg-fram-lov-om-norgespris-pa-straum-og-fjernvarme/id3102642/
Ferdigattest/brukstillatelse
Det foreligger ferdigattest på boligblokk datert 13.10.1971, og på restaureringsarbeider inkl. nye balkonger datert 14.03.2005.
Disse kan fås ved henvendelse til megler.
Tinglyste heftelser og rettigheter
Utover andel fellesgjeld overdras leiligheten fri for pengeheftelser.
Borettslaget har legalpant for forfalte felleskostnader og andre krav som følger av borettslagsforholdet iht. burettslagsloven § 5-20. Pantet er begrenset oppad til 2G (G = folketrygdens grunnbeløp).
Det er tinglyst følgende servitutter på borettslagets eiendom.
Dagboknr 101109 , tinglyst 22.03.1966, type heftelse: Bestemmelse om bebyggelse
Dagboknr 6869, tinglyst 29.06.1990, type heftelse: Rett for Rælingen E-verk til vederlagsfritt å føre opp trafokiosk på d.e. nærmere beskrevet. Rett til vedlikehold m.v.
Servituttene vil følge eiendommen. Kjøpers bank vil få prioritet etter ovennevnte heftelser og servitutter.
Eventuell adgang til utleie
Andelseier kan ikke uten samtykke fra styret i borettslaget overlate bruken av boligen til andre. Med samtykke kan andelseier overlate boligen til andre i inntil tre år hvis andelseier har bodd i boligen i minst ett av de to siste år. Utleie i andre tilfeller kan godtas ved særlige grunner, jf. burettslagslova § 5-6. Utleie forutsetter at leiligheten har forsvarlige radonverdier. Se også borettslagets vedtekter og konferer megler ved spørsmål.
Diverse
Tilbud av produkter og tjenester fra våre samarbeidspartnere
Vi er opptatt av verdiskapning, og har knyttet til oss samarbeidspartnere som skal sikre våre kunder de beste produkter og tjenester;
• Gjensidige leverer boligselgerforsikring og tilbyr bygningsforsikring
• Boligkjøperforsikring leveres av Hiscox og med Sedgwick som skadebehandler, og er formidlet gjennom Gjensidige.
• BN bank tilbyr finansieringsløsninger
• Vår avdeling Krogsveen Pluss tilbyr flyttetjenester som utvask, visningsvask, lager, tømming og transport av flyttelass, i tillegg til å formidle kontakt med Flip for overflateoppussing.
• I forbindelse med overtagelse av eiendommen tilbyr Overo avtale om strøm, alarm og bredbånd.
• Krogsveen er, sammen med øvrige bransjeaktører, medeier i den digitale annonseringsplattformen Hjem som eies av Bomega AS.
Beliggenhet og tomteforhold
Beliggenhet og tomteforhold
Beliggenhet
Leiligheten har en sentral og attraktiv beliggenhet i et veletablert og barnevennlig boligområde på Løvenstad. Borettslaget har romslige og velstelte grøntområder med lekeplasser – ideelt for familier med barn.
Området har kort avstand til det meste man trenger i hverdagen, med gangavstand til barnehage, barne- og ungdomsskole samt gode tur- og friluftsområder som byr på rekreasjonsmuligheter året rundt.
Her finner man flotte stier, skiløyper, badeplasser og akebakker, i tillegg til fotballbane med kunstgress, ballbinge, idrettshall, svømmehall og skaterampe.
Løvenstad har en meget sentral beliggenhet med nærhet til både Lillestrøm, Strømmen og Lørenskog – alle med et bredt utvalg av servicetilbud, kjøpesentre, kultur- og fritidstilbud.
Offentlig kommunikasjon er godt ivaretatt, med bussholdeplass på Løvenstad ca. 300 meter fra boligen.
Fra Lillestrøm stasjon er det hyppige togavganger mot Oslo S med en reisetid på ca. 12 minutter, samt direkte togforbindelse til Gardermoen med tilsvarende reisetid.
Dette er et svært attraktivt og familievennlig område som kombinerer rolig bomiljø med sentral beliggenhet og enkel tilgang til både byliv og natur.
Barnehager, skoler og fritid
Løvenstad skole (1-7 kl.)
Rud skole (1-7 kl.)
Blystadlia skole (1-7 kl.)
Sandbekken ungdomsskole (8-10 kl.)
Strømmen videregående skole
Lørenskog videregående skole
Løvenstad barnehage (1-5 år)
Løvlia barnehage (1-5 år)
Kurland barnehage (1-5 år)
Informasjon om tilhørende skolekretser er hentet fra Prognosesenteret som dataleverandør, og tilhørigheten kan årlig endres av kommunen. Dersom skole- og barnehagetilbud er av betydning for kjøpet, ber vi om at det rettes en særskilt henvendelse til kommunen for oppdatert informasjon.
Beskrivelse av tomt
Eiertomt på 44 200 kvm som tilhører borettslaget.
Parkering
Hver andel disponerer én biloppstillingsplass. Andelen eier ikke plassen.
Det er lagt opp til ladepunkt ved alle biloppstillingsplasser.
For plasser med gammelt motorvarmeranlegg betales det en strømavgift for denne.
Avgiften betales inn med kr 35,- pr. måned. Strømmen er ikke tilgengelig i perioder hvor det ikke er behov for varme.
Bruken av anlegget er beskrevet i husordensreglene.
Borettslaget har avtale om parkeringskontroll med P-service.
Nummererte plasser for andelene er i utgangspunktet ikke underlagt kontroll.
Men på grunn av beliggenhet, er plasser ved Løvenstadtorget 17 likevel med i kontrollen.
Vei, vann og avløp
Eiendommen har adkomst via privat vei med felles vedlikeholdsansvar for Borettslaget.
Eiendommen er tilknyttet kommunalt ledningsnett via private stikkledninger.
Borettslaget er ansvarlig for private stikkledninger til bygningen.
Regulerings-og arealplaner
Løvenstad skal omformes og fornyes, for å legge til rette for en god tettstedsutvikling. Rælingen kommune har startet arbeidet med en områdereguleringsplan for Løvenstad.
Løvenstad er et av kommunens prioriterte vekstområder, og en del av bybåndet, som strekker seg mellom Oslo og Lillestrøm.
Innenfor prioriterte vekstområder skal det tilrettelegges for en høyere arealutnyttelse med en sterkere konsentrasjon av bolig- og arbeidsplassvekst.
Eiendommen er i ht. reguleringsplan Løvenstad bo- og omsorgssenter datert 11.11.1998 og senere revidert 11.02.2015, regulert til blokkbebyggelse.
Iht. kommuneplanen 2022-2033 er området avsatt til nåværende boligbebyggelse med tilhørende bestemmelser.
Utsnitt av planer med tilhørende bestemmelser kan fås ved henvendelse til megler.
Økonomi
Økonomi
Boligens kostnader
Felleskostnadene er kr 8 305,- pr. mnd. og inkluderer: motorvarmer, betjening fellesgjeld, tv/internett, trappevask, vaktmestertjeneste, varmtvann og fjernvarme, utvendig sommer- og vintervedlikehold samt vedlikehold av bygningsmasser og fellesarealer.
Felleskostnadene justeres normalt en til to ganger årlig i forhold til borettslagets faktiske utgifter og ble sist justert opp fra 1. januar 2026.
Felleskostnadene fordeles slik:
Renteutgifter kr 1 246,-
Avdrag kr 1 577,-
Driftsutgifter kr 5 447,-
Motorvarmer kr 35,-
Nåværende eier har et strømforbruk som tilsvarer ca. kr 6 000,- pr. år.
Boligen er tilknyttet kabel-tv/internett. Tv-tuner/dekoder medfølger ikke.
Utgiftene er basert på nåværende eiers forbruk. Kjøper må selv tegne innboforsikring.
Formuesverdi
Formuesverdi for 2023 var kr 880 700,- ifølge skatteetaten. Beløpet forutsetter at eier bor fast i boligen (primærbolig).
Ved eventuell øvrig bruk av eiendommen (f.eks. fritidsbolig, pendlerbolig, utleieobjekt) var formuesverdien for 2023 kr 3 522 800,-.
Formuesverdien justeres normalt årlig. Se skatteetaten.no for mer informasjon om fastsettelse av formuesverdien.
Opplysninger om fellesgjeld
Andel formue er kr 12 539,- pr. 31.12.2024
Andel fellesgjeld er kr 351 731,- pr. 13.01.2026
Total fellesgjeld for boligselskapet er kr 117 903 554,- pr. 30.09.2025 og lånevilkårene er:
Lån 1
Restgjeld: kr 21 129 056,-
Andel saldo: kr 62 031,-
Rentebetingelser: 3,13%
Lånets løpetid: 31.12.05 - 31.12.35
Lån 2
Restgjeld: kr 48 124 686,-
Andel saldo: kr 141 286,-
Rentebetingelser: 3,13%
Lånets løpetid: 31.12.05 - 31.12.35
Lån 3
Restgjeld: kr 31 829 963,-
Andel saldo: kr 93 447,-
Rentebetingelser: 5,60%
Lånets løpetid: 10.11.22 - 31.07.50
Lån 4
Restgjeld: kr 1 927 810,-
Andel saldo: kr 5 659,-
Rentebetingelser: 5,60%
Lånets løpetid: 30.06.23 - 31.10.50
Lån 5
Restgjeld: kr 14 892 039,-
Andel saldo: kr 43 720,-
Rentebetingelser: 5,55%
Lånets løpetid: 13.03.25 - 31.12.50
Borettslag har inngått avtale om fastrente på 3,126% i 10 år fra 01.07.22 på lån i Husbanken.
Det er søkt om lån ca. kr 31 000 000,- for vedlikeholdsprosjekt knyttet til rørfornying. Antatt oppstart feb/mars 2025 og trolig ferdigstilt sommer 2026. Det forventes en økning på fellesutgifter grunnet låneopptak.
Lånet utbetales i flere transaksjoner, hvor første ankom i mars 2025. Delvis utbetaling lån. Fullt lån blir på kr 31 000 000,- Borettslaget mottar kr 5 000 000,- pr kvartal, med unntak av siste kvartal som blir kr 6 000 000,-
Det må påregnes en økning i andel fellesgjeld på ca kr 30 - 35 000,- i løpet av 2026. Lånet er hensyntatt i dagens felleskostnader, og det er ikke forventet ytterligere økning til denne økningen av fellesgjelden.
Omkostninger
3 290 000,00 Prisantydning
351 731,00 Andel av fellesgjeld
--------------------------------------------------------
3 641 731,00 Pris inkl. fellesgjeld
Omkostninger
8 213,00 Gebyr forhåndsavklaring forkjøpsrett
9 950,00 Gjensidige Boligkjøperpakke (valgfri)
545,00 Tinglysing hjemmel
545,00 Tinglysing panterettsdokument
--------------------------------------------------------
19 253,00 Omkostninger totalt
--------------------------------------------------------
3 660 984,00 Totalpris inkl. omkostninger
--------------------------------------------------------
Dersom kjøper ikke er medlem av boligbyggelaget, må det påregnes en innmeldingsavgift og årlig medlemsgebyr pr. ny andelseier. Dette faktureres direkte fra boligbyggelaget.
Dersom borettslaget har fellesgjeld, vil leilighetens andel av fellesgjelden komme i tillegg til kjøpesummen. Denne gjelden skal ikke innbetales i oppgjøret, men følger leiligheten.
Det tas forbehold om endringer i avgifter og gebyrer.
Tilbud om lånefinansiering
Megler formidler gjerne kontakt med rådgiver hos Trøgstad Sparebank. De har konkurransedyktige betingelser samt rask og løsningsorientert behandling av din lånesøknad.
Betalingsbetingelser
Kjøpesum inkludert omkostninger, samt pantedokument tilknyttet eventuelt lån, skal være disponibelt hos megler 2 virkedager før overtagelsen.
Annen viktig informasjon
Annen viktig informasjon
Eier
Fariq Hasan Zadeh
Informasjon om borettslaget
Leiligheten er tilknyttet Løvenstad borettslag.
Borettslaget består av 363 leiligheter fordelt på 12 bygninger med adressene, Ragnhild Jølsens veg 38-44, Løvenstadvegen 2-10 og Løvenstadtorget 6-17. Borettslaget har 5 næringslokaler som er leid ut.
Forretningsfører er BORI BBL.
Dugnad må påregnes.
Det er tillatt å holde en hund eller utekatt med kontrakt.
Fellesvaskeri mot betaling
Foretatt påkostninger de senere år:
- Løpende vedlikehold
- Forsikringsskader
- Infrastruktur lading, oppgradering belysning og hovedtavler, drenering Løvenstadveien 2 og etablert vannmålere i blokkene.
- Det er utført reparasjon av tegl på gavlveggene i 2022.
- Vedlikeholds spyling: spyling rør, hovedstamme og grener ble utført høsten 2022.
- Våren 2023 ble alle elektroarbeidene i borettslaget sluttført.
- Det ble montert opp røykvarslere i alle lavblokkene og også satt inn pulverapparat våren 2023.
- Totalrehabilitering av utleiehybel, samt byttet gulv i selskapslokalet etter vannskader.
- Kontroll/bytte av brannslokningsapparater og røykvarslere.
Pågående arbeid:
Rørfornying i hele borettslaget er startet opp 2025. Planlagt ferdig 2026. Dette medfører en økning i fellesgjeld
Utover dette er det ikke planlagt nye og større prosjekter.
I forbindelse med kommunens arbeid med en områdereguleringsplan for Løvenstad, er det et ønske fra kommunen at borettslaget setter sammen en faggruppe bestående av 5 personer som kan ivareta borettslaget sine interesser i planarbeidet og delta i underveismøter med kommunen og innleid konsulent.
Kommunen har anskaffet konsulentbistand for å utarbeide en plan med oppstart april 2025.
Arbeidet vil pågå utover i 2025 og et forslag vil forhåpentligvis kunne legges frem til politiskbehandling tidlig i 2026.
I henhold til borettslagets vedtekter må kjøper godkjennes av styret som ny andelseier. Det er kjøpers ansvar at styregodkjenning blir gitt, men styret kan ikke nekte godkjenning uten saklig grunn. Iht. burettslagslova kan man bare eie én andel i borettslaget. Kun fysiske personer kan være andelseiere.
Øvrige andelseiere i borettslaget og eventuelt medlemmer av boligbyggelaget har forkjøpsrett. I henhold til burettslagslova tar dette inntil 20 dager å avklare fra melding om salget er gitt borettslaget. Dersom boligen tas på forkjøpsrett løses kjøper fra avtalen.
Borettslaget er tilknyttet Borettslagenes Sikringsordning AS som dekker manglende innbetaling av felleskostnader fra øvrige andelseiere. Avtalen om sikring er gyldig til avtalen sies opp av en av partene. Oppsigelsesfrist er 1 desember med gyldighet fra førstkommende årsskifte.
Dokumenter for borettslaget kan fås ved henvendelse til megler.
Overtakelse
Etter nærmere avtale. Overtakelse kan tidligst skje etter at forkjøpsretten for øvrige andelseiere i borettslaget og eventuelt medlemmer av boligbyggelaget er avklart, samt at styrets godkjennelse er avklart.
Boligselgerforsikring
Selger har i forbindelse med salget tegnet boligselgerforsikring levert av Gjensidige.
Boligselgerforsikringen dekker selgers ansvar etter avhendingsloven begrenset oppad til kr 14 millioner. Dersom kjøper oppdager forhold ved eiendommen som hen mener utgjør en mangel ved eiendommen, vil Gjensidige behandle reklamasjonen på vegne av selger. Forsikringsvilkår kan fås ved henvendelse til megler.
Vedlagt salgsoppgaven følger selgers egenerklæringsskjema og tilstandsrapport. Interessenter må sette seg inn i dokumentene før bud inngis.
Boligkjøperforsikring
Innen kontraktsmøtet må kjøper ta stilling til om det ønskes å bestille Boligkjøperpakken gjennom Gjensidige. I denne gunstige pakken er boligen ferdig forsikret og inkluderer rettshjelpsforsikring, også kalt Boligkjøperforsikring. Rettshjelpsforsikring gir trygghet og tilgang på profesjonell juridisk hjelp dersom det oppdages uventede feil eller mangler det første året etter overtagelse. Forsikringsselskapet behandler i så fall ethvert mangelskrav kjøper måtte ha overfor selger.
Boligkjøperpakken inkluderer bygningsforsikring for hus og hytte, innboforsikring, flytteforsikring og dobbel rentedekning - i situasjoner hvor kjøper ikke får solgt nåværende primærbolig.
Kjøper mottar ingen særskilt faktura for Boligkjøperpakken da kostnaden det første året legges til kjøpesummen for boligen. Det gjøres oppmerksom på Krogsveen mottar et honorar for denne formidlingen.
Produktark for Boligkjøperpakken ligger vedlagt i salgsoppgaven.
Dersom ikke boligkjøperpakke ønskes kan kun rettshjelpsforsikring, også kalt boligkjøperforsikring, tegnes særskilt via megler. Rettshjelpsforsikringen varer i 5 år fra overtagelse og leveres gjennom Gjensidige. Ta kontakt med megler for ytterligere informasjon.
Selskap og privatpersoner som driver med kjøp/salg/utvikling som ledd i egen næringsvirksomhet kan ikke tegne boligkjøperpakke eller rettshjelpsforsikring.
Budgivning
Forbrukerinformasjon om budgivning er vedlagt denne salgsoppgaven og er også på vår hjemmeside Krogsveen.no. Alle bud og budforhøyelser må inngis skriftlig. I tillegg må legitimasjon være fremlagt sammen med signatur fra budgiver.
Vi oppfordrer til å gi bud elektronisk via GI BUD-knappen på eiendommens hjemmeside på Krogsveen.no. Da vil samtlige vilkår bli oppfylt.
Eventuelle forhøyelser eller endringer av budet kan bekreftes pr SMS eller på e-post. Vi oppfordrer alltid til å kontakte megler pr. telefon i tillegg da forsinkelser i SMS og e-post kan forekomme.
For at budene skal kunne bli behandlet og videreformidlet skriftlig til alle involverte parter, må alle bud ha en tilstrekkelig lang akseptfrist, jf. eiendomsmeglingsforskriften § 6-3.
Selger må også skriftlig akseptere budet før aksept kan formidles til budgiver. Akseptfrist bør derfor være på minimum 30 minutter, og budforhøyelser må derfor skje i god tid før fristens utløp.
Bud i forbrukerforhold kan uansett ikke settes med kortere frist enn kl. 12.00 første virkedag etter siste annonserte visning. I tillegg kan ikke budet ha forbehold om at det skal holdes hemmelig ovenfor øvrige interessenter. Megler har iht lov om eiendomsmegling ikke anledning til å videreformidle disse budene, og de vil dermed heller ikke bli journalført.
Etter at eiendommen er solgt vil kjøper og selger få tilsendt budjournal. Øvrige budgivere kan få utlevert kopi av budjournalen i anonymisert form.
Hvitvaskingsreglene
I henhold til lov om hvitvasking og terrorfinansiering har megler plikt til å gjennomføre kontrolltiltak overfor kunder, herunder fullmektiger. Dette innebærer bl.a. å bekrefte kunders og reelle rettighetshaveres identitet på bakgrunn av fremvist gyldig legitimasjon eller på annen godkjent måte, samt å innhente opplysninger om kundeforholdets formål og tilsiktede art.
Dersom slike kundetiltak ikke kan gjennomføres, kan megler ikke etablere kundeforholdet eller utføre transaksjonen.
Hvis kjøper ikke bidrar til gjennomføring av kundekontrollen og dette fører til at transaksjonen blir forsinket eller ikke kan gjennomføres, vil dette ansees som mislighold av avtalen og gi selger rettigheter etter avhendingslova kapittel 5. I tilfeller der selger ikke bidrar til gjennomføring av løpende kundekontroll underveis i oppdraget, er det selger som misligholder sine forpliktelser etter avtalen og gi kjøper rettigheter etter avhendingslovens kapittel 4. Partene er selv ansvarlige for eventuelle kostnader og ansvar dette kan medføre. Eiendomsmegleren eller eiendomsmeglingsforetaket kan ikke holdes ansvarlig for de konsekvenser dette vil kunne få for partene eller andre som har interesser i eiendomshandelen.
Kjøper oppfordres til å innbetale kjøpesummen som ikke kommer fra låneinstitusjon i én samlet innbetaling fra egen konto i norsk bank. Megler har plikt til å melde fra til Økokrim om eiendomshandler som fremstår som mistenkelige. Melding sendes Økokrim uten at partene varsles.
Personopplysningsloven
I henhold til personopplysningsloven gjør vi oppmerksom på at interessenter kan bli registrert for videre oppfølging.
Lovanvendelse
Generelle bestemmelser
Salgsoppgaven er basert på de opplysningene selger har gitt til megler, den bygningssakyndiges tilstandsrapport, samt opplysninger innhentet fra kommunen, Kartverket og andre tilgjengelige kilder. Det er viktig at kjøper setter seg grundig inn i alle salgsdokumentene, herunder salgsoppgave, tilstandsrapport og selgers egenerklæring. Kjøper anses kjent med forhold som er tydelig beskrevet i salgsdokumentene, og slike forhold kan ikke påberopes som mangler. Dette gjelder uavhengig av om kjøper har lest dokumentene. Alle interessenter oppfordres til å undersøke eiendommen nøye, gjerne sammen med fagkyndig før bud inngis. Kjøper som velger å kjøpe usett kan ikke gjøre gjeldende som mangel noe han burde blitt kjent med ved undersøkelsen.
Dersom det er behov for avklaringer, anbefaler vi at interessenter rådfører seg med eiendomsmegler eller egne rådgivere før det legges inn bud.
En bolig som har blitt brukt i en viss tid, har vanligvis blitt utsatt for slitasje og skader kan ha oppstått. Slik bruksslitasje må kjøper regne med, og det kan avdekkes enkelte forhold etter overtakelse som nødvendiggjør utbedringer. Normal slitasje og skader som nødvendiggjør utbedring, er innenfor hva kjøper må forvente og vil ikke utgjøre en mangel.
Kjøper og selgers rettigheter og plikter reguleres av avtalen mellom partene, samt informasjonen som har vært tilgjengelig for kjøperen i forbindelse med handelen. Avtalen utfylles av avhendingsloven, og det gjelder ulike avtalevilkår avhengig av om kjøper er forbrukerkjøper eller ikke. Dette er nærmere beskrevet nedenfor.
På grunn av ulike avtalevilkår kan selger vurdere bud fra en som ikke er forbruker, ulikt fra en forbrukers bud. Dersom kjøper ikke er forbruker, er selger sitt mulige mangelsansvar begrenset fordi eiendommen selges "som den er". Selger kan ikke ta «som den er»- forbehold overfor en forbrukerkjøper. Selv et lavere bud fra en som ikke er forbruker kan foretrekkes fordi begrensningen i mulig mangelsansvar kan ha egenverdi for selger. Selger står fritt til å forkaste eller akseptere ethvert bud, og er for eksempel ikke forpliktet til å akseptere høyeste bud.
Budgiver skal i budskjema avgi egenerklæring om budgiver er forbruker eller næringsdrivende/ person som hovedsakelig handler som ledd i næringsvirksomhet. Budgivere får informasjon dersom andre bud er inngitt av en som ikke er forbruker.
Forbrukerkjøp - definisjon
Med forbrukerkjøp menes kjøp av eiendom når kjøperen er en fysisk person som ikke hovedsakelig handler som ledd i næringsvirksomhet.
Forbruker – avtalevilkår
Eiendommen har en mangel dersom den ikke er i samsvar med kravene som følger av avtalen, eller det foreligger brudd på bestemmelsene i avhendingsloven §§ 3-2 til 3-8. Hvis eiendommen ikke er i samsvar med det kjøperen må kunne forvente ut ifra alder, type og synlig tilstand, kan det være grunnlag for mangelskrav. Det samme gjelder hvis det er holdt tilbake eller gitt uriktige opplysninger om eiendommen. Dette gjelder likevel bare dersom man kan gå ut ifra at det virket inn på avtalen at opplysningen ikke ble gitt eller at mangelskravet ikke blir rettet i tide på en tydelig måte.
Boligen kan ha en mangel etter avhendingsloven § 3-3 andre ledd, dersom det er avvik mellom opplyst og faktisk innvendig areal, forutsatt at avviket er på 2% eller mer og minimum 1 kvm.
Ved beregning av et eventuelt prisavslag eller erstatning må kjøper selv dekke tap/kostnader opptil et beløp på kr 10 000 (egenandel).
Ikke-forbruker (næringsdrivende) – definisjon
Hvis kjøper er en juridisk person, eller en fysisk person som hovedsakelig handler som ledd i næringsvirksomhet, vil kjøpet ikke anses som et forbrukerkjøp.
Ikke-forbruker – avtalevilkår
Eiendommen har en mangel dersom den ikke er i samsvar med kravene som følger av avtalen.
Eiendommen selges «som den er», og selgers ansvar utover det konkret avtalte er da begrenset etter avhendingsloven § 3-9, første ledd andre setning.
Avhendingsloven § 3-3 andre ledd fravikes, og hvorvidt boligens arealsvikt utgjør en mangel vurderes etter avhendingsloven § 3-8.
Informasjon om kjøpers undersøkelsesplikt, herunder oppfordringen om å undersøke eiendommen nøye, gjelder også for kjøpere som ikke anses som forbrukere.
Det forutsettes at hjemmel overføres til kjøper. Hvis kjøper ikke ønsker hjemmelsoverføring av eiendommen, må det tas forbehold om dette i budet.
Meglers vederlag
Meglers vederlag betales av selger og er avtalt til:
Fastpris: 45 000,-
Vederlag
Forsidekarusellen og prospekt RB.no kr 2 000,-
Kontroll av hjemmel og heftelser kr 2 900,-
Kunderabatt: (belastes megler) kr -15 000,-
Markedsføringspakke kr 27 400,-
Oppgjør kr 7 500,-
Tilrettelegging kr 19 000,-
Visninger pr stk ( første gratis, deretter kr 3 900,- pr stk)
Utlegg
Eierskiftegebyr forretningsfører (selger) kr 6 570,-
Innhenting av informasjon forretningsfører kr 2 250,-
Innhenting av offentlig opplysninger kr 1 029,-
Tinglysing sikring kr 545,-
Andre utgifter
Foto kr 3 900,-
Tilstandsrapport fra bygningssakkyndig - faktura til kunde
Opplysninger om oppdraget
Oppdragsnummer 60-0335/25
Eiendomsmegler Krogsveen AS, avd. Lillestrøm
Adolph Tidemands gate 38, 2000, LILLESTRØM
950 007 613
Oppdragets KR-kode KR60.25335
Dato
Sist oppdatert: 13. januar 2026 kl. 15:45
Dokumenter
Dokumenter
PDF – 938 KB
PDF – 354 KB
PDF – 748 KB
PDF – 312 KB
PDF – 29 KB
PDF – 127 KB
PDF – 392 KB
Område
Legg til steder som er viktige for deg
Visning
Unngå doble boligrenter
Vi tilbyr gunstig forsikring.
Vurderer du utleie?
Få et tilbud fra Utleie KrogsveenHva koster lånet?
Sjekk estimert lånekostnadVil du varsles om lignende boliger?
Ved å lagre ditt boligsøk hos oss får du beskjed når vi har en bolig som ligner denne, før den legges ut på markedet!




