Kalaveien 76
4 690 000 kr
183 m²
4 soverom
Solgt
Klassisk moderne enebolig, oppgradert i senere år. Lekkert bad fra 2024. Stor tomt på nesten 1,5 mål med solfylt hage!
Prisantydning
4 690 000 krOmkostninger
138 240 krTotalpris
4 828 240 kr
Pris
Bruksareal
231 m²BRA-I (internt bruksareal)
183 m²BRA-E (eksternt bruksareal)
48 m²TBA (terrasse-balkongareal)
53 m²
Areal
Etasje
2Byggeår
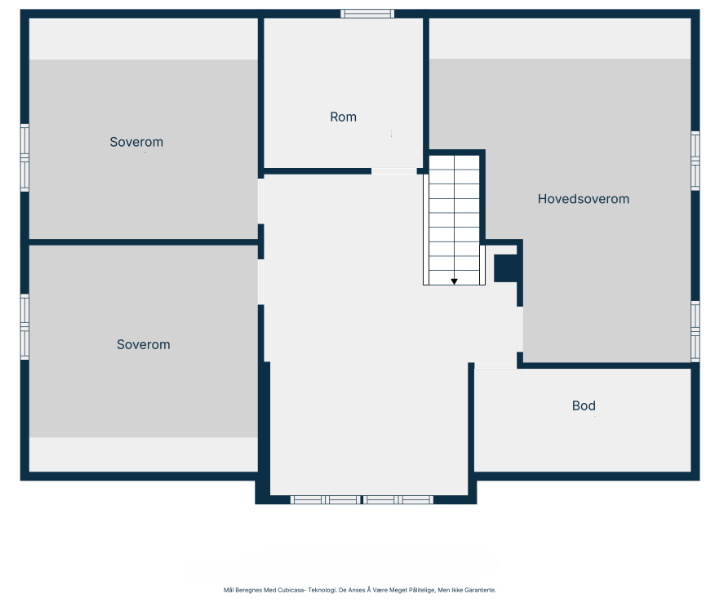
1895Soverom
4 soveromBad
1 badTomteareal
1 487 m² (eiet)Type
Enebolig - FrittliggendeEierform
EietEnergimerke
Oransje G
Nøkkelinfo
Unngå doble boligrenter
Vi tilbyr gunstig forsikring.
Vurderer du utleie?
Få et tilbud fra Utleie KrogsveenHva koster lånet?
Sjekk estimert lånekostnadBeskrivelse
Kort om eiendommen
Velkommen til en klassisk moderne enebolig på familievennlige Klavestadhaugen
- Tilbygget, ombygget og betydelig oppgradert gjennom 2000-tallet
- Overflater pusset opp og gulv skiftet ut i de fleste rom siden 2018
- Omfangsrik stue med luft-luft varmepumpe og delikat, ny vedovn
- Velholdt kjøkken, nylig modernisert
- Stort og lekkert bad, ferdigstilt tidlig i 2024 etter oppussing
- Fire soverom av gode størrelser på én flate i andre etasje
- Bod tilbygget garasje benyttes i dag som hagestue
- Eiet tomt på nesten 1,5 mål - blant de største i området
- Velstelt og solfylt hage, pent innrammet av tettvoksende hekk
- Barnehager, barne- og ungdomsskole samt nærbutikker lett tilgjengelig i området
- Enkel tilgang til badestrand og turområder
Område
Legg til steder som er viktige for deg
På flyttefot? Tenk kjøp og salg samtidig.
Få din egen rådgiver gjennom hele kjøps- og salgsprosessen. Det starter med en verdivurdering.
Unngå doble boligrenter
Vi tilbyr gunstig forsikring.
Vurderer du utleie?
Få et tilbud fra Utleie KrogsveenHva koster lånet?
Sjekk estimert lånekostnadVil du varsles om lignende boliger?
Ved å lagre ditt boligsøk hos oss får du beskjed når vi har en bolig som ligner denne, før den legges ut på markedet!
På flyttefot? Slik gjør vi det enklere for deg
Skreddersydd flyttepakke
Vi fikser håndverkere, vask, pakking, lagring og transport, og legger ut for utgiftene underveis.
Hjelp med både kjøp og salg
Hos oss har du din egen rådgiver gjennom hele kjøps- og salgsprosessen.
Hjelp til finansiering
Vårt samarbeid med BN Bank sikrer deg rask og løsningsorientert hjelp, til konkurransedyktige betingelser.




