Sætervegen 12A
6 300 000 kr
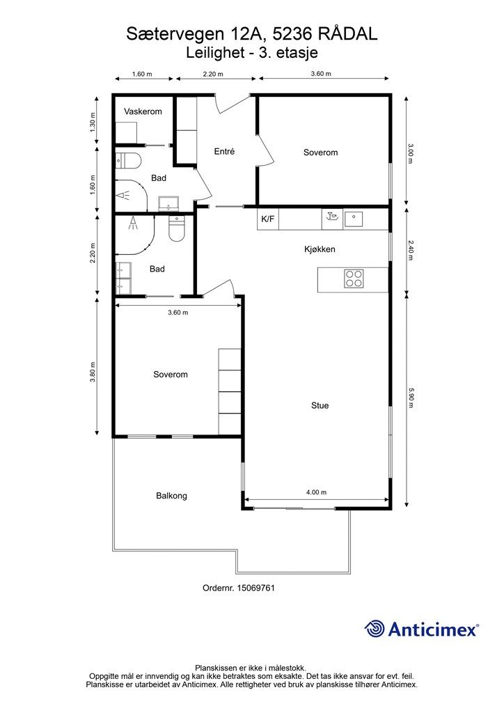
84 m²
2 soverom
Solgt

Presenteres av
Thomas HaugeSkjold
Ny(2022) toppleilighet på Skjold med 2 bad og 2 soverom. Heis, balkong og garasjeplass. Gangavstand til bybanen & butikk
Prisantydning
6 300 000 krOmkostninger
168 540 krTotalpris
6 468 540 kr
Pris
Bruksareal
89 m²BRA-I (internt bruksareal)
84 m²BRA-E (eksternt bruksareal)
5 m²TBA (terrasse-balkongareal)
17 m²
Areal
Etasje
3Byggeår
2022Soverom
2 soveromBad
2 badType
EierleilighetEierform
EierseksjonFasiliteter
Garasje/P-plass, Heis og Balkong/TerrasseFellesutgifter
2 902 krEnergimerke
Oransje B
Nøkkelinfo
Unngå doble boligrenter
Vi tilbyr gunstig forsikring.
Vurderer du utleie?
Få et tilbud fra Utleie KrogsveenHva koster lånet?
Sjekk estimert lånekostnadBeskrivelse
Kort om eiendommen
Velkommen til Sætervegen 12A! - Presentert av Thomas Hauge for Eiendomsmegler Krogsveen.
Eksklusivt sameie på Skjold ferdigstilt i 2022 - Alt TG1 og TGIU.
Kort fortalt:
Lekker leilighet med høy og fri hjørnebeliggenhet.
Perfekt planløsning med 2 soverom og 2 bad.
Balkong på 17 kvm med sol fra ca. 06-18 midtsommers. 2 motoriserte markiser fra Markisemannen.
Fast plass i garasje med heis rett opp til leiligheten.
Gangavstand til dagligvarebutikk(åpner ny butikk 2026) og bybanen.
Velkommen til visning, husk påmelding!
Område
Legg til steder som er viktige for deg
På flyttefot? Tenk kjøp og salg samtidig.
Få din egen rådgiver gjennom hele kjøps- og salgsprosessen. Det starter med en verdivurdering.
Unngå doble boligrenter
Vi tilbyr gunstig forsikring.
Vurderer du utleie?
Få et tilbud fra Utleie KrogsveenHva koster lånet?
Sjekk estimert lånekostnadVil du varsles om lignende boliger?
Ved å lagre ditt boligsøk hos oss får du beskjed når vi har en bolig som ligner denne, før den legges ut på markedet!
På flyttefot? Slik gjør vi det enklere for deg
Skreddersydd flyttepakke
Vi fikser håndverkere, vask, pakking, lagring og transport, og legger ut for utgiftene underveis.
Hjelp med både kjøp og salg
Hos oss har du din egen rådgiver gjennom hele kjøps- og salgsprosessen.
Hjelp til finansiering
Vårt samarbeid med BN Bank sikrer deg rask og løsningsorientert hjelp, til konkurransedyktige betingelser.

