Danvikgata 20B
2 490 000 kr
42 m²
1 soverom
Komplett salgsoppgave

Strømsø - Nybyen
Meget delikat 2-roms - Rolig og sentral beliggenhet - Balkong - Heis - Gangavstand til tog
Prisantydning
2 490 000 krAndel fellesgjeld
810 263 krOmkostninger
16 245 krTotalpris
3 316 508 kr
Pris
Bruksareal
46 m²BRA-I (internt bruksareal)
42 m²BRA-E (eksternt bruksareal)
4 m²TBA (terrasse-balkongareal)
5 m²
Areal
Etasje
2Byggeår
1968Soverom
1 soveromBad
1 badType
AksjeleilighetEierform
AksjeFasiliteter
Heis og Balkong/TerrasseFellesutgifter
8 340 krEnergimerke
Rød E
Nøkkelinfo
Unngå doble boligrenter
Vi tilbyr gunstig forsikring.
Vurderer du utleie?
Få et tilbud fra Utleie KrogsveenHva koster lånet?
Sjekk estimert lånekostnadBeskrivelse
Kort om eiendommen
Innhold og byggemåte
Innhold og byggemåte
Eiendommen
Danvikgata 20B, 3045 DRAMMEN
Kommunenummer 3301, gårdsnummer 110, bruksnummer 101, ideell andel 1/1
Aksjenummer 2, Danvikgata 20 AS, organisasjonsnummer 936306128
Innhold
BRA-i:
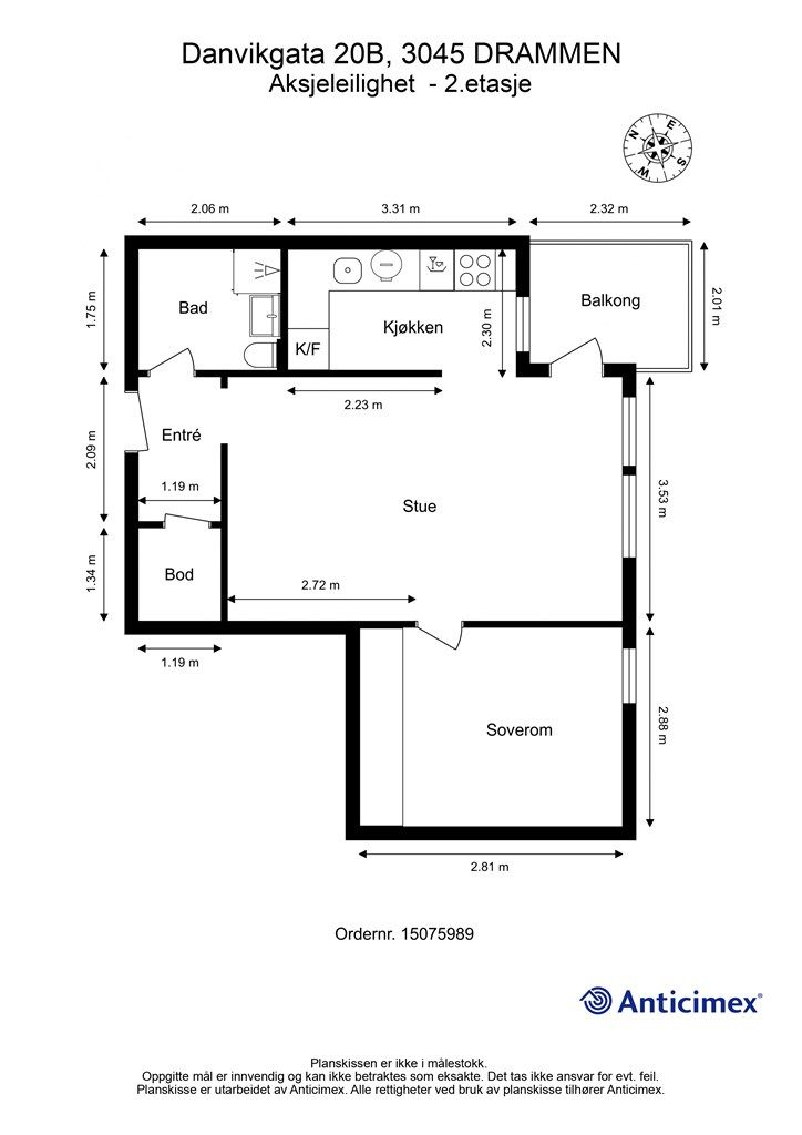
2. etasje 42 kvm: Entré, bad, bod, soverom og stue/kjøkken.
BRA-e:
2. etasje 4 kvm: Bod
Åpent areal:
2. etasje 5 kvm: Balkong
Leiligheten disponerer en bod på 4kvm i felles kjelleretasje. Det gjøres oppmerksom på at bodene er etablert i aksjelagets fellesareal, og at bodene således ikke eies av den enkelte aksjeeier. Dette medfører at aksjelaget i fellesskap beslutter bruken, og at man ikke selv har eierrett og rettsvern for bodene. Aksjelaget kan ved vedtak beslutte annet bruk av fellesarealet.
Vedlagte plantegninger er ikke målbare. De oppgitte arealer er hentet fra tilstandsrapport datert 29.09.2025, utført av Amund Kjeldsaas . Arealene er beregnet og rom er definert etter dagens faktiske bruk, uavhengig av hva som er godkjent av bygningsmyndighetene.
Byggemåte
Bygningen er iht. tilstandsrapport, oppført på grunnmur, etasjeskillere og bærende vegger i betong/murkonstruksjoner. Yttervegger forblendet med fasadeplater og teglstein. Leiligheten har slett entredør med kikkehull og brann/lydklassefisering B30/40db. Vinduer i 2-lags glass med karmer/rammer av tre og utvendig beslått med metall fra 2002. Balkongdør i 3-lags glass med karmer/rammer av tre utvending beslått med metall fra 2021. Les forøvrig mer om byggemåte og den tekniske tilstanden i rapporten.
Tilstandsrapporten og selgers egenerklæring er vedlagt salgsoppgaven. Interessenter må sette seg inn i dokumentene før bud inngis.
Standard
Bad:
Badet er fra 2011 (i følge selgers opplysninger). Flislagt gulv med gulvvarme og flislagte vegger. Malte flater i himling. Vegghengt servantinnredning med dør. Ovenpåliggende servant med ett-greps armatur. Speilskap med lys og stikkontakt over servant. Dusjkabinett med dusjarmatur. Gulvstående toalett. Det er felles vaskerom i kjelleren, som kun kan benyttes av beboere i aksjelaget.
Kjøkken:
Kjøkken fra ukjent årstall. Profilerte fronter. Integrert platetopp, stekeovn og oppvaskmaskin. Frittstående kjøle-/fryseskap. Benkeskapsbelysning og stikkontakter over kjøkkenbenk. Vegghengt ventilator over platetopp med kullfilter. Gulvflate belagt med laminatgulv. Malte veggflater og malte himlingsflater. Fliser mellom kjøkkenbenk og overskap.
Øvrige rom:
Gulvflater belagt med laminatgulv. Malte veggflater og malte himlingsflater. Garderobeskap på soverom.
Selger opplyser at det er sol på balkongen fra 11:00-18:00 (midtsommerstid).
Selger opplyser at det har vært utfordringer med grunnvann i kjelleren periodevis, som har ført til fukt i fellesareal der boligen disponerer en bod.
Selger har fått utarbeidet en tilstandsrapport for eiendommen, dvs. en teknisk gjennomgang av boligen hvor eventuelle avvik, risiko for kjøper og prisoverslag for hva som bør gjøres av oppgradering, er skissert. Se særskilt TGIU (tilstandsgrad ikke undersøkt), samt TG2 og TG3 som viser hva som er avvik fra boligens normale slitasje, alder og type, eller som bør/må utbedres. Rapporten og selgers egenerklæring er en del av salgsoppgaven og må leses nøye før bud inngis. Kjøper overtar ansvaret for de opplysninger som fremkommer av salgsdokumentasjonen, og kan ikke gjøre gjeldende som mangel noe som burde vært kjent eller som ikke kan anses å ha betydning for avtalen.
I rapporten fremkommer det som takstmannen mener kjøper må være særskilt oppmerksom på, dette gjelder blant annet (se utfyllende tekst i rapporten):
Følgende kontrollpunkter/forhold har blitt tildelt TG2:
Våtrom - Bad
- Vannrør: Vannrør av kobber er vurdert til å ha en alder som tilsier at anbefalt brukstid er passert. På bakgrunn av alderen er det grunn til å varsle om risiko for skjulte avvik, svekket funksjon, usikker restlevetid eller lignende forhold som utvikles over tid.
- Overflater gulv: Det registreres moderate tegn til bomlyd (tegn til hulrom) under enkelte gulvfliser. Eksakt årsak er ikke kjent. Tiltak vurderes ikke til å være nødvendig, men bør holdes under oppsikt.
- Membran, tettesjikt og overgang til sluk: Tettesjiktet har en alder som tilsier at restlevetiden er usikker. Rommets lekkasjesikkerhet kan derfor ikke verifiseres, eventuelt bør nytt tettesjikt etableres. Eldre sluk uten klemring. Dette kan medføre lekkasje i konstruksjonen. Sluk bør fornyes.
- Fallforhold (gulv): Nivåforskjell fra døråpning på topp overflate gulv og til hovedsluk er på tilfeldig sted målt til ca. 7 mm. Dette er vurdert til å ikke være tilfredsstillende mht lekkasjesikkerhet.
- Avløpsrør (ink. sluk): Selv om det er gjort oppgraderinger på våtrommet, er sluket ikke skiftet. Erfaringsmessig medfører dette økt fare for lekkasje rundt sluket.
Kjøkken
- Varmtvannsbereder: På bakgrunn av berederens alder er det grunn til å varsle om usikker restlevetid eller andre forhold som utvikles over tid. Det kan ikke utelukkes behov for reparasjon/utskiftning. Jevnlig ettersyn anbefales slik at eventuelle tiltak kan iverksettes ved behov. Varmtvannsbereder er plassert i rom uten sluk/overløp eller annen sikring mot fuktskader. Konsekvens kan være at det oppstår fuktskader hvis lekkasje fra varmtvannsbereder skulle oppstå. Tiltak anbefales.
- Vannrør: Vannrør av kobber er vurdert til å ha en alder som tilsier at anbefalt brukstid er passert. På bakgrunn av alderen er det grunn til å varsle om risiko for skjulte avvik, svekket funksjon, usikker restlevetid eller lignende forhold som utvikles over tid.
- Avløpsrør: Avløpsrør er vurdert til å ha en alder som tilsier at anbefalt brukstid er passert. På bakgrunn av alderen er det grunn til å varsle om risiko for skjulte avvik, svekket funksjon, usikker restlevetid eller lignende forhold som utvikles over tid.
Etasjeskiller - 2.etasje
- Skjevhetsmåling: Største målte avvik er målt i stue. Avviket er målt til 14 mm. Målingene er foretatt i en eldre bygning og bør ses i den sammenheng. Skjevheter er mer påregnelige i eldre bygninger enn i nye. Årsaken til skjevhetene er ikke vurdert.
Tekniske anlegg, VVS anlegg
- Vannrør: Vannrør av kobber er vurdert til å ha en alder som tilsier at anbefalt brukstid er passert. På bakgrunn av alderen er det grunn til å varsle om risiko for skjulte avvik, svekket funksjon, usikker restlevetid eller lignende forhold som utvikles over tid.
- Hovedstoppekran: Stoppekran er av eldre type. Anbefalt brukstid er passert. Oppfølging med jevnlig ettersyn anbefales slik at tiltak kan iverksettes ved behov.
- Avløpsrør: Avløpsrør er vurdert til å ha en alder som tilsier at anbefalt brukstid er passert. På bakgrunn av alderen er det grunn til å varsle om risiko for skjulte avvik, svekket funksjon, usikker restlevetid eller lignende forhold som utvikles over tid.
Elektrisk anlegg:
- Forenklet vurdering av det elektriske anlegget: Det er gjennomført en forenklet vurdering av det elektriske anlegget, uten at det er registrert åpenbare avvik. Med bakgrunn i at det ikke har vært utført el-tilsyn/utvidet el -kontroll av boligen i løpet av de siste fem år, anbefales det på et generelt grunnlag at dette gjennomføres.
Følgende kontrollpunkter/forhold har blitt tildelt TG3:
- Det er ingen punkter som har fått TG3
Følgende kontrollpunkter/forhold har blitt tildelt TGIU (tilstandsgrad ikke undersøkt):
Tekniske anlegg, VVS anlegg:
- Stakeluke - Avløpsrørene er skjult og eventuell stakeluke er ikke lokalisert.
Det anbefales ytterligere undersøkelser av disse punktene.
Se vedlagt tilstandsrapport for supplerende informasjon vedrørende boligens tilstand.
Løsøre og tilbehør
Hvitevarer på kjøkkenet medfølger i handelen, dette gjelder oppvaskmaskin og kjøleskap og stekeovn med platetopp.
Fastmontert lampe over stuebordet følger ikke med.
Videre vises det til liste fra Norges Eiendomsmeglerforbund angående løsøre og tilbehør. Produkter og installasjoner som medfølger overdras uten noen form for garantier, utover eventuell gjenværende leverandørgaranti.
Oppvarming
Elektriske varmekabler på bad, ellers basert på oppvarming med panelovner. Dersom beboelsesrom ikke har vegg- eller fastmonterte varmekilder ved visning følger dette heller ikke med.
Ferdigattest/brukstillatelse
Drammen kommune opplyser om at det ikke foreligger ferdigattest på eiendommen, men midlertidig brukstillatelse ble gitt for boligblokken datert 03.10.1969. I tillegg er det tilhørende godkjente byggetegninger datert 27.09.1967. Tiltaket er ikke avsluttet med ferdigattest.
Det er godkjente byggetegninger for oppføring av garasjer, datert 16.06.1986. Tiltaket er ikke avsluttet med midlertidig brukstillatelse eller ferdigattest.
Det gjøres oppmerksom at det ikke lenger utstedes ferdigattest på tiltak det er søkt om før 1998 jf. plan- og bygningsloven §21-10. Kommunen vil ikke kreve ferdigattest for disse tiltakene og vil avvise eventuelle søknader. Bestemmelsen innebærer ikke at tiltak med manglende søknad blir lovlige, men at man ikke trenger å avslutte gamle byggesaker. Normalt sett kreves ferdigattest for alle søknadspliktige tiltak som gjøres etter plan - og bygningsloven.
Det foreligger ferdigattest for oppføring av tilbygg med heis, datert 03.10.2013. i tillegg er det tilhørende godkjente byggetegninger datert 18.07.2012.
Det foreligger ferdigattest for fasadeendringer og reparasjon/utskifting av fasader, datert 17.03.2022. I tillegg er det tilhørende godkjente byggetegninger fra 2021.
Kjøper overtar eiendommen slik den framstår på visning
Tinglyste heftelser og rettigheter
Utover andel fellesgjeld overdras aksjene fri for pengeheftelser, med unntak av aksjelagets tinglyste panterett:
Aksjelaget har legalpant for forfalte felleskostnader og andre krav som følger av lagsforholdet iht. burettslagsloven § 5-20. Pantet er begrenset oppad til 2G (G = folketrygdens grunnbeløp).
Det er tinglyst 1 servitutt på aksjelagets eiendom. Denne omhandler blant annet bestemmelser om adkomst rett, diverse ledninger og trafostasjon/kiosk. Denne er ikke av direkte betydning for bruken av denne leiligheten.
Eventuell adgang til utleie
Aksjeeier kan ikke uten samtykke fra styret i aksjelaget overlate bruken av boligen til andre. Med samtykke kan aksjeeier overlate boligen til andre i inntil tre år hvis aksjeeier har bodd i boligen i minst ett av de to siste år. Utleie i andre tilfeller kan godtas ved særlige grunner. Utleie forutsetter at leiligheten har forsvarlige radonverdier.
Diverse
Tilbud av produkter og tjenester fra våre samarbeidspartnere
Vi er opptatt av verdiskapning, og har knyttet til oss samarbeidspartnere som skal sikre våre kunder de beste produkter og tjenester;
• Gjensidige leverer boligselgerforsikring og tilbyr bygningsforsikring
• Boligkjøperforsikring leveres av Hiscox og med Sedgwick som skadebehandler, og er formidlet gjennom Gjensidige.
• BN bank tilbyr finansieringsløsninger
• Vår avdeling Krogsveen Pluss tilbyr flyttetjenester som utvask, visningsvask, lager, tømming og transport av flyttelass, i tillegg til å formidle kontakt med Flip for overflateoppussing.
• I forbindelse med overtagelse av eiendommen tilbyr Overo avtale om strøm, alarm og bredbånd.
• Krogsveen er, sammen med øvrige bransjeaktører, medeier i den digitale annonseringsplattformen Hjem.
Energimerking
Komplett energiattest inkludert oppvarmingskarakter fås ved henvendelse til megler eller lastes ned fra www.krogsveen.no.
Beliggenhet og tomteforhold
Beliggenhet og tomteforhold
Beliggenhet
Attraktivt og meget sentralt beliggende i Nybyen på Strømsø med kort gangavstand til alt av butikker, servicetilbud, bibliotek, uteliv, kino, teater, treningssentre, museum og idrettstilbud. Fra eiendommen er det kun få meters gange før man er i Museumsparken. Her finnes flotte og usjenerte grønt- og rekreasjonsområder med hyggelige gangveier - i tillegg café i Lyche-paviljongen og sommeråpen japansk hage.
Kort vei til Union Brygge med treningssentre, butikker og serveringssteder, Papirbredden med Universitetet i Sørøst-Norge, Strømsø Torg samt Bragernes Torg.
Det er kun ca. 5 minutters gange til jernbanestasjonen med svært gode forbindelser mot Oslo-området og Kongsberg. 32 minutter med tog til Oslo. Flytoget har sin endestasjon i Drammen. Det gjøres oppmerksom på at regjeringen har vedtatt en nedleggelse av Flytoget fra og med 2028, hvor Vy vil overta trafikken på strekningene. God bussforbindelse i Konnerudgata og bussknutepunkt innen få minutters gange. Enkel adkomst til E-18. For mer detaljerte ruteopplysninger se www.brakar.no og www.vy.no.
Kort vei til fine turmuligheter i drammensmarka og alpinbakke i åsen (Haukåsbakken). Kort gangavstand til Marienlyst Idrettspark med fotballbaner, kunstisbane om vinteren, friidrettsbane, treningsstudio, Drammensbadet (helårsbad), og idrettshall.
Adkomst
Det vil bli skiltet med Krogsveen visningsskilt ved fellesvisninger. Se kart i nettannonse eller Google Maps for nærmere veibeskrivelse. Velkommen til visning!
Barnehager, skoler og fritid
Godt sammensatt tilbud av private og offentlige barnehager.
Barnehager: Lassebakken barnehage, Solstreif Rudolf Steiner barnehage og Danvik barnehage.
Kort vei til Danvik barneskole og Marienlyst ungdomsskole.
Drammen kommune har tre private barne- og ungdomsskoler, Drammen Realfagsskole Heltberg, Norlights Montessoriskole Drammen og Rosendal skole (Mjøndalen).
Det ligger flere videregående skoler i Drammen og Lier, samt Universitetet i Sørøst-Norge som har campus på Papirbredden i Drammen, for mer informasjon se www.usn.no.
Dersom skole- og barnehagetilbud er av betydning for kjøpet, ber vi om at det rettes en særskilt henvendelse til kommunen for oppdatert informasjon.
Beskrivelse av tomt
Eiet tomt på 1.868 kvm som tilhører aksjelaget. Asfalterte områder utenfor blokken.
Parkering
Parkering i aksjelagets bakgård, det er ingen faste parkeringsplasser. Det er vedtatt en prøveordning med parkeringsbevis i aksjelaget.
Det er innført boligsoneparkering i dette området, dette betyr at beboerne har fortrinnsrett på parkering på offentlige veier. Kostnaden for én bil er kr 3.912,- pr. år (pr. 01.01.2025). Det gjøres oppmerksom på at parkeringstillatelsen gir hverken rett til egen parkeringsplass eller garantert plass i sonen. Se Drammen kommune sin nettside for mer informasjon. https://www.drammen.kommune.no/tjenester/vei-trafikk-parkering/parkering/boligsoneparkering/
Vei, vann og avløp
Eiendommen har adkomst via kommunal vei.
Eiendommen er tilknyttet kommunalt ledningsnett via private stikkledninger. Aksjelaget er ansvarlig for private stikkledninger til bygningen.
Regulerings-og arealplaner
Eiendommen er regulert unyansert formål ved regulerings- og bebyggelsesplan av kvartalet: Marienlystgata-Danvikgata-Peder søbergsgate- Christen smithsgate datert 12.10.1965. En liten del av eiendommen er regulert til kjørevei ved Reguleringsplan for Marienlyst park datert 26.11.2002. Videre er eiendommen avsatt til boligbebyggelse med hensyn til miljøkvalitet, estetikk, natur, landskap og grønnstruktur i henhold til kommuneplanens arealdel for Drammen kommune 2025-2037 datert 18.06.2025. Utsnitt av plan med tilhørende bestemmelser kan fås ved henvendelse til megler.
I henhold til kommuneplanen er eiendommen innenfor et område med flomfare. Dette kan legge begrensninger for evt. utbygging, påbygg/tilbygg og andre terrenginngrep som på et generelt grunnlag er tillatt ifølge kommuneplanen.
Økonomi
Økonomi
Boligens kostnader
Felleskostnadene inkluderer bl.a. kommunale avgifter (vann og avløp), renovasjon, renter og avdrag på andel fellesgjeld, tv/internett grunnpakke, felles vedlikehold, felles driftskostnader, sommer-/vintervedlikehold, strøm i fellesarealer, forretningsførsel, revisjon- og administrasjonskostnader, styrehonorar, felles bygningsforsikring m.m.. Felleskostnadene justeres normalt en til to ganger årlig i forhold til aksjelagets faktiske utgifter. Det tas forbehold om at felleskostnadene kan justeres fortløpende pga. renteøkninger.
Felleskostnadene pr. mnd fordeles slik:
Grunnkostnad kr 8.340,-
Styret vurderer en gradvis justering av felleskostnader for å sikre tilstrekkelige midler til nødvendig vedlikehold, i forbindelse med utarbeidelse av vedlikeholdsplan.
Det må påregnes kostnader til strøm og nettleie, dette vil variere avhengig av strøm-/nettselskap. Nåværende eier har et strømforbruk på ca. 4416 kWh pr. 2024.
Boligen er tilknyttet Telia som leverandør av tv og internett, grunnpakke inngår i felleskostnadene. Selger har ikke benyttet tv/internett.
Det må påregnes kostnader til innboforsikring.
Ovenstående er basert på nåværende eier/husstands senere års forbruk/utgifter. Dette vil variere avhengig av antall beboere, ønsket innetemperatur, egne fordelsavtaler, kanalvalg, hastighet på bredbånd osv.
Formuesverdi
Formuesverdi for 2023 var kr 582.012,- skatteetaten. Beløpet forutsetter at eier bor fast i boligen (primærbolig).
Ved eventuell øvrig bruk av eiendommen (f.eks. fritidsbolig, pendlerbolig, utleieobjekt) var formuesverdien for 2023 kr 2.328.046,-
Formuesverdien justeres normalt årlig. Se skatteetaten.no for mer informasjon om fastsettelse av formuesverdien.
Opplysninger om fellesgjeld
Andel formue er kr 18.681,- pr. 31.12.2024
Andel fellesgjeld er kr 810.263,-,- pr. 22.09.2025
Total fellesgjeld for aksjelaget er kr 42.364.037,- og lånevilkårene er:
Lånenummer: 96660135127, BoligBanken ASA
Annuitetslån, 2 terminer per år.
Rentesats per 22.09.2025: 5.15% pa.
Antall terminer til innfrielse: 73
Saldo per 22.09.2025: 42 364 037
Andel av saldo: 810 263
Første termin: 31.12.2021
Første avdrag: 30.06.2022 (siste termin 31.12.2061)
Flytende rente
Det er ingen mulighet for individuell nedbetaling av fellesgjeld i dette aksjelaget.
Omkostninger
2 490 000,00 Prisantydning
810 263,00 Andel av fellesgjeld
--------------------------------------------------------
3 300 263,00 Pris inkl. fellesgjeld
Omkostninger
9 950,00 Gjensidige Boligkjøperpakke (valgfri)
2 875,00 Pantenoteringsgebyr til forretningsfører (aksje)
545,00 Tinglysing panterettsdokument
2 875,00 Transportgebyr til forretningsfører(aksje)
--------------------------------------------------------
16 245,00 Omkostninger totalt
--------------------------------------------------------
3 316 508,00 Totalpris inkl. omkostninger
--------------------------------------------------------
Dersom kjøper ikke er medlem av boligbyggelaget, må det påregnes en innmeldingsavgift og årlig medlemsgebyr pr. ny andelseier. Dette faktureres direkte fra boligbyggelaget.
Dersom aksjelaget har fellesgjeld, vil aksjens andel av fellesgjelden komme i tillegg til kjøpesummen. Denne gjelden skal ikke innbetales i oppgjøret, men følger aksjen.
Det tas forbehold om endringer i avgifter og gebyrer.
Tilbud om lånefinansiering
Megler formidler gjerne kontakt med rådgiver hos vår samarbeidspartner BN Bank. De har konkurransedyktige betingelser samt rask og løsningsorientert behandling av din lånesøknad. Krogsveen mottar et honorar for denne formidlingen.
Betalingsbetingelser
Kjøpesum inkludert omkostninger, samt pantedokument tilknyttet eventuelt lån, skal være disponibelt hos megler 2 virkedager før overtagelsen.
Annen viktig informasjon
Annen viktig informasjon
Eier
Signe Aarvik
Informasjon om aksjelaget
Leiligheten er tilknyttet Danvikgata 20 AS.
Aksjeboligmodellen innebærer at aksjelaget eier eiendommen, men aksjeeierne eier aksjer som gir leierett til en bestemt bolig.
Aksjelaget består av 53 leiligheter (1 næringslokale), fordelt på 1 bygning.
Forretningsfører er Nedre Buskerud Boligbyggelag, tlf. 32 21 15 00.
Aksjelagets årsregnskap for 2024 viser et overskudd på kr 191 924,-.
Disponible midler i borettslaget pr. 31.12.2024 kr 972.822,-.
Dugnader tilknyttet aksjelaget må påregnes.
Dyrehold er ikke tillatt iht. husordensreglene.
Det er ingen forkjøpsrett i aksjeselskapet.
Styret er av den oppfatning at det utførte løpende og periodiske vedlikeholdet er tilstrekkelig for å opprettholde den bokførte verdien på bygningsmassen.
Foretatte arbeid/påkostninger de senere år: Bygging av heis i 2013. Utbedring av ventilasjonsanlegg i 2012. Nytt og lukket avfallsrom. Nytt callinganlegg (med tilknytning til den enkelte aksjeeiers telefon) i 2014. Det har blitt utført et omfattende rehabiliteringsprosjekt for å fornye fasader og balkonger i perioden 2020-2022. Felle trær i bakgård og plante nye trær. Brannteknisk installasjoner er kontrollert og utbedret i 2021/2022. Telia har utbedret infrastrukturen for tv og internett i bygget i 2022/2023 og 2025. Service og vedlikehold av det elektriske anlegget i fellesarealer. Utskiftning av hovedkran pga. lekkasje i 2023. Kontroll og service av heis, samt utbedring av vannintrengning i heis (2024). Utskiftning av lensepumpe kjeller (2025)
Saker som har vært og er under arbeid iht. årsmelding 2024: Service på vaskemaskiner. Utbedring lekkasje takluker er under arbeid.
Planlagte arbeid/påkostninger: Det er vedtatt at styret utarbeider en vedlikeholdsplan som skisserer forventede vedlikeholdsbehov og tilhørende kostnader for de neste 5-10 årene, samt vurdere en gradvis justering av felleskostnader for å sikre tilstrekkelige midler til nødvendig vedlikehold. Generalforsamlingen har gitt styret fullmakt til å kontakte et egnet selskap for vurdering og utskiftning av tetningslister på dørene til leilighetene. Det er vedtatt at utskiftning av gamle rør skal legges inn under vedlikeholdsplanen, i forbindelse med dette må det bygges opp kapital for fremtidig vedlikehold (budsjetteres inn for 2026). Vedrørende oppgradering av porttelefonsystem skal styret innhente flere tilbud før endelig beslutning tas (dersom tiltaket innebærer en oppgradering utover ordinært vedlikehold, skal dette legges frem for vedtak på en ekstraordinær generalforsamling).
I henhold til aksjelagets vedtekter må kjøper godkjennes av styret som ny aksjeeier. Det er kjøpers ansvar at styregodkjenning blir gitt, men styret kan ikke nekte godkjenning uten saklig grunn.
Aksjelag har anledning til å være tilknyttet et sikringsfond som dekker eventuelt manglende innbetaling av husleie. Dette aksjelaget er ikke tilknyttet et slikt fond, noe som vil kunne medføre en risiko for økt husleie dersom andre aksjeeiere ikke betaler sin husleie. Aksjelaget har imidlertid legalpant i aksjene, og manglende betaling av husleie kan dermed tvangsinndrives av aksjelaget.
Aksjeslagets bygningsmasse er fullverdiforsikret i Gjensidige Forsikring ASA, polisenr.: 86434943.
Dokumenter vedrørende aksjelaget kan fås ved henvendelse til megler.
Overtakelse
Etter nærmere avtale. Overtakelse kan tidligst skje etter at styrets godkjennelse er avklart.
Boligselgerforsikring
Selger har i forbindelse med salget tegnet boligselgerforsikring levert av Gjensidige.
Boligselgerforsikringen dekker selgers ansvar etter avhendingsloven begrenset oppad til kr 14 millioner. Dersom kjøper oppdager forhold ved eiendommen som hen mener utgjør en mangel ved eiendommen, vil Gjensidige behandle reklamasjonen på vegne av selger. Forsikringsvilkår kan fås ved henvendelse til megler.
Vedlagt salgsoppgaven følger selgers egenerklæringsskjema og tilstandsrapport. Interessenter må sette seg inn i dokumentene før bud inngis.
Boligkjøperforsikring
Innen kontraktsmøtet må kjøper ta stilling til om det ønskes å bestille Boligkjøperpakken gjennom Gjensidige. I denne gunstige pakken er boligen ferdig forsikret og inkluderer rettshjelpsforsikring, også kalt Boligkjøperforsikring. Rettshjelpsforsikring gir trygghet og tilgang på profesjonell juridisk hjelp dersom det oppdages uventede feil eller mangler det første året etter overtagelse. Forsikringsselskapet behandler i så fall ethvert mangelskrav kjøper måtte ha overfor selger.
Boligkjøperpakken inkluderer bygningsforsikring for hus og hytte, innboforsikring, flytteforsikring og dobbel rentedekning - i situasjoner hvor kjøper ikke får solgt nåværende primærbolig.
Kjøper mottar ingen særskilt faktura for Boligkjøperpakken da kostnaden det første året legges til kjøpesummen for boligen. Det gjøres oppmerksom på Krogsveen mottar et honorar for denne formidlingen.
Produktark for Boligkjøperpakken ligger vedlagt i salgsoppgaven.
Dersom ikke boligkjøperpakke ønskes kan kun rettshjelpsforsikring, også kalt boligkjøperforsikring, tegnes særskilt via megler. Rettshjelpsforsikringen varer i 5 år fra overtagelse og leveres gjennom Gjensidige. Ta kontakt med megler for ytterligere informasjon.
Selskap og privatpersoner som driver med kjøp/salg/utvikling som ledd i egen næringsvirksomhet kan ikke tegne boligkjøperpakke eller rettshjelpsforsikring.
Budgivning
Forbrukerinformasjon om budgivning er vedlagt denne salgsoppgaven og er også på vår hjemmeside Krogsveen.no. Alle bud og budforhøyelser må inngis skriftlig. I tillegg må legitimasjon være fremlagt sammen med signatur fra budgiver.
Vi oppfordrer til å gi bud elektronisk via GI BUD-knappen på eiendommens hjemmeside på Krogsveen.no. Da vil samtlige vilkår bli oppfylt.
Eventuelle forhøyelser eller endringer av budet kan bekreftes pr SMS eller på e-post. Vi oppfordrer alltid til å kontakte megler pr. telefon i tillegg da forsinkelser i SMS og e-post kan forekomme.
For at budene skal kunne bli behandlet og videreformidlet skriftlig til alle involverte parter, må alle bud ha en tilstrekkelig lang akseptfrist, jf. eiendomsmeglingsforskriften § 6-3.
Selger må også skriftlig akseptere budet før aksept kan formidles til budgiver. Akseptfrist bør derfor være på minimum 30 minutter, og budforhøyelser må derfor skje i god tid før fristens utløp.
Bud i forbrukerforhold kan uansett ikke settes med kortere frist enn kl. 12.00 første virkedag etter siste annonserte visning. I tillegg kan ikke budet ha forbehold om at det skal holdes hemmelig ovenfor øvrige interessenter. Megler har iht lov om eiendomsmegling ikke anledning til å videreformidle disse budene, og de vil dermed heller ikke bli journalført.
Etter at eiendommen er solgt vil kjøper og selger få tilsendt budjournal. Øvrige budgivere kan få utlevert kopi av budjournalen i anonymisert form.
Hvitvaskingsreglene
I henhold til lov om hvitvasking og terrorfinansiering har megler plikt til å gjennomføre kontrolltiltak overfor kunder, herunder fullmektiger. Dette innebærer bl.a. å bekrefte kunders og reelle rettighetshaveres identitet på bakgrunn av fremvist gyldig legitimasjon eller på annen godkjent måte, samt å innhente opplysninger om kundeforholdets formål og tilsiktede art.
Dersom slike kundetiltak ikke kan gjennomføres, kan megler ikke etablere kundeforholdet eller utføre transaksjonen.
Hvis kjøper ikke bidrar til gjennomføring av kundekontrollen og dette fører til at transaksjonen blir forsinket eller ikke kan gjennomføres, vil dette ansees som mislighold av avtalen og gi selger rettigheter etter avhendingslova kapittel 5. I tilfeller der selger ikke bidrar til gjennomføring av løpende kundekontroll underveis i oppdraget, er det selger som misligholder sine forpliktelser etter avtalen og gi kjøper rettigheter etter avhendingslovens kapittel 4. Partene er selv ansvarlige for eventuelle kostnader og ansvar dette kan medføre. Eiendomsmegleren eller eiendomsmeglingsforetaket kan ikke holdes ansvarlig for de konsekvenser dette vil kunne få for partene eller andre som har interesser i eiendomshandelen.
Kjøper oppfordres til å innbetale kjøpesummen som ikke kommer fra låneinstitusjon i én samlet innbetaling fra egen konto i norsk bank. Megler har plikt til å melde fra til Økokrim om eiendomshandler som fremstår som mistenkelige. Melding sendes Økokrim uten at partene varsles.
Personopplysningsloven
I henhold til personopplysningsloven gjør vi oppmerksom på at interessenter kan bli registrert for videre oppfølging.
Lovanvendelse
Salg av aksjeleiligheter reguleres av kjøpsloven, men avhendingslovens bestemmelser legges til grunn så langt de passer.
Det forutsettes at aksjene transporteres til kjøper.
Generelle bestemmelser
Salgsoppgaven er basert på de opplysningene selger har gitt til megler, den bygningssakyndiges tilstandsrapport, samt opplysninger innhentet fra kommunen, Kartverket og andre tilgjengelige kilder. Det er viktig at kjøper setter seg grundig inn i alle salgsdokumentene, herunder salgsoppgave, tilstandsrapport og selgers egenerklæring. Kjøper anses kjent med forhold som er tydelig beskrevet i salgsdokumentene, og slike forhold kan ikke påberopes som mangler. Dette gjelder uavhengig av om kjøper har lest dokumentene. Alle interessenter oppfordres til å undersøke eiendommen nøye, gjerne sammen med fagkyndig før bud inngis. Kjøper som velger å kjøpe usett kan ikke gjøre gjeldende som mangel noe han burde blitt kjent med ved undersøkelsen.
Dersom det er behov for avklaringer, anbefaler vi at interessenter rådfører seg med eiendomsmegler eller egne rådgivere før det legges inn bud.
En bolig som har blitt brukt i en viss tid, har vanligvis blitt utsatt for slitasje og skader kan ha oppstått. Slik bruksslitasje må kjøper regne med, og det kan avdekkes enkelte forhold etter overtakelse som nødvendiggjør utbedringer. Normal slitasje og skader som nødvendiggjør utbedring, er innenfor hva kjøper må forvente og vil ikke utgjøre en mangel.
Kjøper og selgers rettigheter og plikter reguleres av avtalen mellom partene, samt informasjonen som har vært tilgjengelig for kjøperen i forbindelse med handelen. Avtalen utfylles av avhendingsloven, og det gjelder ulike avtalevilkår avhengig av om kjøper er forbrukerkjøper eller ikke. Dette er nærmere beskrevet nedenfor.
På grunn av ulike avtalevilkår kan selger vurdere bud fra en som ikke er forbruker, ulikt fra en forbrukers bud. Dersom kjøper ikke er forbruker, er selger sitt mulige mangelsansvar begrenset fordi eiendommen selges "som den er". Selger kan ikke ta «som den er» forbehold ovenfor en forbrukerkjøper. Selv et lavere bud fra en som ikke er forbruker kan foretrekkes fordi begrensningen i mulig mangelsansvar kan ha egenverdi for selger. Selger står fritt til å forkaste eller akseptere ethvert bud, og er for eksempel ikke forpliktet til å akseptere høyeste bud.
Budgiver skal i budskjema avgi egenerklæring om budgiver er forbruker eller næringsdrivende/ person som hovedsakelig handler som ledd i næringsvirksomhet. Budgivere får informasjon dersom andre bud er inngitt av en som ikke er forbruker.
Forbrukerkjøp - definisjon
Med forbrukerkjøp menes kjøp av eiendom når kjøperen er en fysisk person som ikke hovedsakelig handler som ledd i næringsvirksomhet.
Forbruker – avtalevilkår
Eiendommen har en mangel dersom den ikke er i samsvar med kravene som følger av avtalen, eller det foreligger brudd på bestemmelsene i avhendingsloven §§ 3-2 til 3-8. Hvis eiendommen ikke er i samsvar med det kjøperen må kunne forvente ut ifra alder, type og synlig tilstand, kan det være grunnlag for mangelskrav. Det samme gjelder hvis det er holdt tilbake eller gitt uriktige opplysninger om eiendommen. Dette gjelder likevel bare dersom man kan gå ut ifra at det virket inn på avtalen at opplysningen ikke ble gitt eller at mangelskravet ikke blir rettet i tide på en tydelig måte.
Boligen kan ha en mangel etter avhendingsloven § 3-3 andre ledd dersom det er avvik mellom opplyst og faktisk innvendig areal, forutsatt at avviket er på 2% eller mer og minimum 1 kvm.
Ved beregning av et eventuelt prisavslag eller erstatning må kjøper selv dekke tap/kostnader opptil et beløp på kr 10 000 (egenandel).
Ikke-forbruker (næringsdrivende) – definisjon
Hvis kjøper er en juridisk person, eller en fysisk person som hovedsakelig handler som ledd i næringsvirksomhet, vil kjøpet ikke anses som et forbrukerkjøp.
Ikke-forbruker – avtalevilkår
Eiendommen har en mangel dersom den ikke er i samsvar med kravene som følger av avtalen.
Eiendommen selges «som den er», og selgers ansvar utover det konkret avtalte er da begrenset etter avhendingsloven § 3-9, første ledd andre setning.
Avhendingsloven § 3-3 andre ledd fravikes, og hvorvidt boligens arealsvikt utgjør en mangel vurderes etter avhendingsloven § 3-8.
Informasjon om kjøpers undersøkelsesplikt, herunder oppfordringen om å undersøke eiendommen nøye, gjelder også for kjøpere som ikke anses som forbrukere.
Meglers vederlag
Meglers vederlag betales av selger og er avtalt til:
Fastpris: 40 000,-
Vederlag
Kontroll av hjemmel og heftelser kr 2 900
Markedsføringspakke kr 27 400
Oppgjør kr 7 500
Tilrettelegging kr 17 000
Visninger pr stk 3500,- Første visning gratis
Utlegg
Eierskiftegebyr kr 6 570
Innhenting av informasjon forretningsfører NBBO kr 4 947
Innhenting av off. oppl. Drammen kommune inkl. tegninger og RFD kr 2 833
Pantattest - Aksje kr 375
Pantesperregebyr til forretningsfører (aksje) kr 3 217
Tinglysing sikring kr 545
Andre utgifter
AX tilstandsrapport leilighet kr 10 750
Boligfotografering kr 4 500
Boligselgerforsikring Gjensidige Andel/Aksje regnes av prisant. ca: 6 700,- (valgfritt)
Opplysninger om oppdraget
Oppdragsnummer 20-0320/25
Eiendomsmegler Krogsveen AS, avd. Drammen
Nedre Storgate 16, 3015, DRAMMEN
950 007 613
Oppdragets KR-kode KR20.25320
Dato
Sist oppdatert: 02. februar 2026 kl. 11:18
Dokumenter
Dokumenter
PDF – 941 KB
PDF – 745 KB
PDF – 441 KB
PDF – 312 KB
PDF – 29 KB
PDF – 127 KB
PDF – 392 KB
Område
Legg til steder som er viktige for deg
Visning
For å delta på visning, ber vi om at du melder deg på. Da sikrer vi at du får nødvendig informasjon og at det er satt av tilstrekkelig med tid. Kontakt megler dersom annet tidspunkt ønskes. Husk å lese salgsoppgaven før visningen, så du stiller forberedt.
Ønsker du kun å bli holdt orientert, kan du fra eiendommens hjemmeside få varsel om solgtpris, eller kontakte megler.
Lurer du på noe?
Unngå doble boligrenter
Vi tilbyr gunstig forsikring.
Vurderer du utleie?
Få et tilbud fra Utleie KrogsveenHva koster lånet?
Sjekk estimert lånekostnadVil du varsles om lignende boliger?
Ved å lagre ditt boligsøk hos oss får du beskjed når vi har en bolig som ligner denne, før den legges ut på markedet!

