Vestre Onstadvei 17
9 750 000 kr
263 m²
7 soverom
Solgt

Presenteres av
Morten Solberg HelgerudLierskogen
Stor og pen enebolig med stor utleiedel/hel seksjonert tomannsbolig. Flott vidstrakt utsikt. Skjermet hage. Barnevennlig
Prisantydning
9 750 000 krOmkostninger
263 900 krTotalpris
10 013 900 kr
Pris
Bruksareal
284 m²BRA-I (internt bruksareal)
263 m²BRA-E (eksternt bruksareal)
21 m²TBA (terrasse-balkongareal)
81 m²
Areal
Etasje
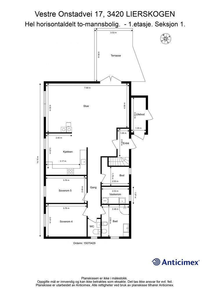
3Byggeår
2004Soverom
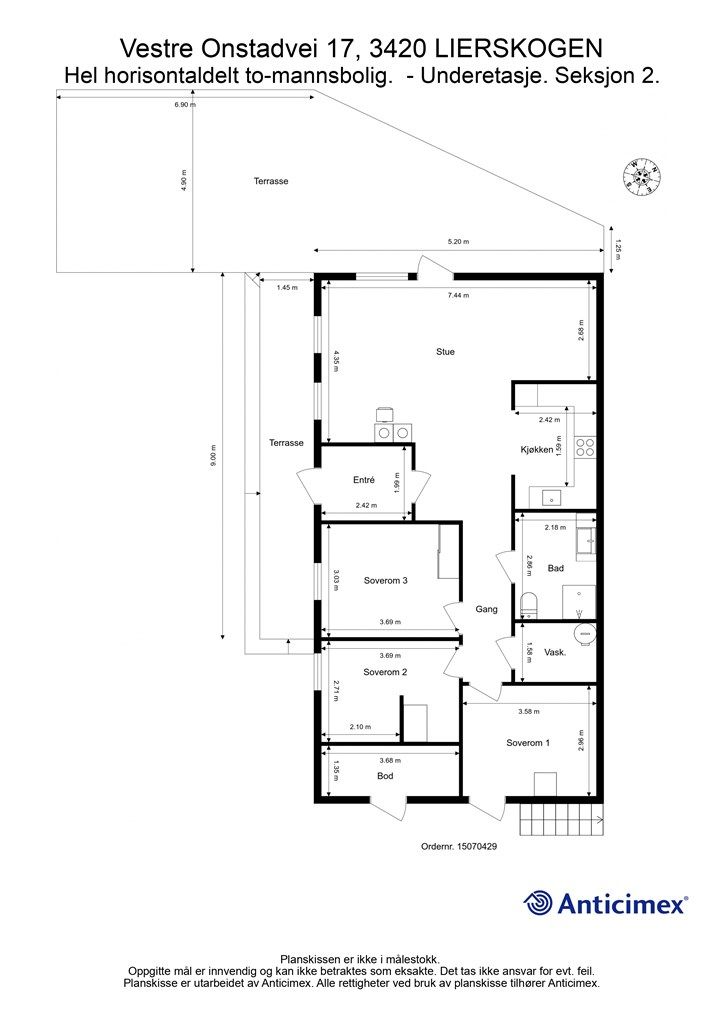
7 soveromBad
3 badType
Hel 2-mannsboligEierform
EierseksjonFasiliteter
Balkong/TerrasseEnergimerke
Rød C
Nøkkelinfo
Unngå doble boligrenter
Vi tilbyr gunstig forsikring.
Vurderer du utleie?
Få et tilbud fra Utleie KrogsveenHva koster lånet?
Sjekk estimert lånekostnadBeskrivelse
Kort om eiendommen
Stor og pen enebolig med stor utleiedel/hel seksjonert tomannsbolig.
Luftig stue med mye lysinnslipp, varmepumpe (2021) og peisovn
Ett bad i hver etasje, separat vaskerom og ekstra wc-rom i hoveddelen
Hyggelig loftstue med varmepumpe (2021) i hoveddelen
Stue med peisovn, bad og separat vaskerom i utleiedelen
Utført rens og impregnering av takstein samt fasadevask i 2025
Romslig gårdsplass med el-billader (2021) på husveggen
Svært solrike sydvestvendte uteplasser og skjermet hageområde
Beliggende i høyden på øvre del av feltet med fin vidstrakt utsikt
Eiendommen har en svært attraktiv og barnevennlig beliggenhet
Naturskjønne og rolige omgivelser med skog bak eiendommen
Gangavstand til turområder, barnehager, barneskole og idrettsanlegg
Område
Legg til steder som er viktige for deg
På flyttefot? Tenk kjøp og salg samtidig.
Få din egen rådgiver gjennom hele kjøps- og salgsprosessen. Det starter med en verdivurdering.
Unngå doble boligrenter
Vi tilbyr gunstig forsikring.
Vurderer du utleie?
Få et tilbud fra Utleie KrogsveenHva koster lånet?
Sjekk estimert lånekostnadVil du varsles om lignende boliger?
Ved å lagre ditt boligsøk hos oss får du beskjed når vi har en bolig som ligner denne, før den legges ut på markedet!
På flyttefot? Slik gjør vi det enklere for deg
Skreddersydd flyttepakke
Vi fikser håndverkere, vask, pakking, lagring og transport, og legger ut for utgiftene underveis.
Hjelp med både kjøp og salg
Hos oss har du din egen rådgiver gjennom hele kjøps- og salgsprosessen.
Hjelp til finansiering
Vårt samarbeid med BN Bank sikrer deg rask og løsningsorientert hjelp, til konkurransedyktige betingelser.

