Lillemilen 22
2 950 000 kr
74 m²
2 soverom
Komplett salgsoppgave

Hof
Lettstelt og moderne 3-roms eierleilighet i 1. etg. Egen, romslig hage. 2 p-plasser. Naturskjønt m/kort vei til sentrum.
Prisantydning
2 950 000 krOmkostninger
74 840 krTotalpris
3 024 840 kr
Pris
Bruksareal
78 m²BRA-I (internt bruksareal)
74 m²BRA-E (eksternt bruksareal)
4 m²TBA (terrasse-balkongareal)
31 m²
Areal
Etasje
1Byggeår
2020Soverom
2 soveromBad
1 badType
EierleilighetEierform
EierseksjonFasiliteter
Garasje/P-plass og Balkong/TerrasseFellesutgifter
1 756 krEnergimerke
Lysegrønn C
Nøkkelinfo
Vurderer du utleie?
Få et tilbud fra Utleie KrogsveenHva koster lånet?
Sjekk estimert lånekostnadBeskrivelse
Kort om eiendommen
Innhold og byggemåte
Innhold og byggemåte
Eiendommen
Lillemilen 22, 3090 HOF
Kommunenummer 3903, gårdsnummer 241, bruksnummer 207, seksjonsnummer 11, ideell andel 1/1
Innhold
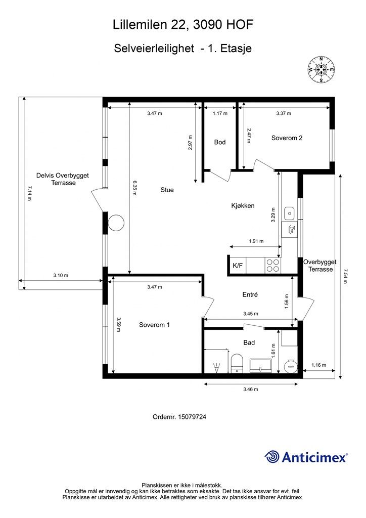
Totalt bruksareal BRA: 78 kvm
BRA-i:
1. etasje:
74 kvm: Entré, bad, stue, kjøkken, to soverom og bod.
BRA-e:
1. etasje:
4 kvm: Bod i frittstående bygg.
Terrasse- og balkongareal (TBA):
1. etasje:
31 kvm: To terrasser.
De oppgitte arealer er hentet fra rapport med befaringsdato 05.03.2026 utført av Anticimex AS v/Nils Magnus Graff Fossnes. Arealene er beregnet og rom er definert etter dagens faktiske bruk, uavhengig av hva som er godkjent av bygningsmyndighetene.
Byggemåte
Tilstandsrapporten er inntatt i salgsoppgaven. Rapporten inneholder informasjon om eventuelle avvik og konsekvensen av disse. Dersom det er registrert avvik med TG3, har den bygningssakkyndige i tillegg gitt et anslag på hva det vil koste å utbedre disse. Ettersom kjøper regnes å være kjent med forhold som tydelig fremgår av tilstandsrapporten, oppfordres du til å sette deg grundig inn i rapporten i sin helhet.
Bygningen er iht. tilstandsrapport oppført i 2020. Bygget er oppført med støpt gulv mot grunn, yttervegger av trekonstruksjoner med både liggende og stående trekledning, og etasjeskillere av trekonstruksjoner. Boligen har saltak i trekonstruksjon, tekket med takplater av metall. Vinduer har karmer og rammer av tre fra byggeår. Ytterdør er av tre fra byggeår, og det er en entrédør med sikkerhetslås, balkongdør med karmer av tre, og glatte innerdører.
Det gjøres spesielt oppmerksom på at følgende bygningsdeler er gitt Tilstandsgrad 3 (TG3) — Store eller alvorlige avvik:
Vinduer og ytterdører
- Ytterdører og omramming: Det ble registrert skade på karm til ytterdør. Låsekassen er meget løs.
Følgende bygningsdeler er gitt Tilstandsgrad 2 (TG2) — Avvik som kan kreve tiltak:
Våtrom - Bad
- Lekkasjesikkerhet: Fallforhold utenfor sluksonen vurderes ikke til å være tilstrekkelig for å lede eventuelt lekkasjevann til sluk, og det er ikke påvist at vanntett sjikt har tilstrekkelig oppkant ved dørterskel for å kompensere for dette.
Tekniske anlegg
- Innvendig stakeluke: Innvendig stakeluke er ikke påvist, og det er derfor ukjent om dette er etablert.
- Varmtvannsbereder: Varmtvannsberederen er delvis bygget inne, og kan derfor ikke undersøkes tilstrekkelig.
- Mekaniske ventilasjonsanlegg: Det er ikke kjent når ventilasjonsanlegget sist ble inspisert og gitt filterbytte. Display viser manglene service og feil på termostat.
Yttervegger inkl. fasader
- Lufting av ytterkledning: Det er vurdert å være begrenset spalte for lufting og drenering bak ytterkledningen.
Drenering
- Terrengfall fra grunnmur: Stedvis lite terrengfall vekk fra grunnmuren.
Følgende bygningsdeler er ikke undersøkt (TGIU):
Yttervegger inkl. fasader
- Gnagersikring: Det har ikke vært mulig å kontrollere om alle deler av ytterkledningen er sikret mot inntrekk av gnagere, ettersom det aktuelle inspeksjonsområdet stedvis er skjult av andre bygningsdeler. Det kan derfor ikke bekreftes om gnagersikringen er utført på korrekt måte.
Terrasse / platting (Inngangsparti og utgang fra stue)
- Konstruksjon og fundamenter: Fundamentene var ikke tilgjengelige for undersøkelser da disse er skjult under konstruksjonen, noe som gjorde at utførelsen/tilstanden ikke lot seg kontrollere.
Se vedlagt tilstandsrapport for supplerende informasjon vedrørende boligens tilstand.
Standard
Løsøre og tilbehør
Nåværende eier opplyser om at integrerte hvitevarer på kjøkkenet medfølger i handelen, dette gjelder oppvaskmaskin, platetopp, stekeovn og kjøle-/fryseskap.
Videre vises det til liste fra Norges Eiendomsmeglerforbund angående løsøre og tilbehør. Produkter og installasjoner som medfølger overdras uten noen form for garantier, utover eventuell gjenværende leverandørgaranti.
Oppvarming
Balansert ventilasjonsanlegg i leiligheten. Peisovn i stue. Gulvvarme på bad. Videre har boligen elektrisk oppvarming ved evt. panelovner.
Det har blitt foretatt en kontroll av pipe og ildsted i 2021, utført av Vestfold Interkommunale brannvesen IKS og alt er funnet i orden. Siste feiing ble utført den 21.12.2021.
Dersom det ikke er vegg- eller fastmonterte varmekilder i rom ved visning, følger dette heller ikke med.
Ferdigattest/brukstillatelse
Det foreligger ferdigattest på eiendommen datert 09.11.2023, som omfatter oppføring av Lillemilen 2-30 og Hamnehagen 27-41. I tillegg er det tilhørende godkjente byggetegninger fra 2018.
Kjøper overtar eiendommen slik den framstår på visning.
Tinglyste heftelser og rettigheter
Leiligheten overdras fri for pengeheftelser, med unntak av sameiets tinglyste panterett:
Sameiet har legalpant for krav mot sameieren som følger av sameieforholdet iht. eierseksjonsloven § 31. Pantet er begrenset oppad til 2G (G = folketrygdens grunnbeløp).
Tinglyst seksjoneringsbegjæring
Dagboknummer: 2662680
Tinglysningsdato: 29.06.2020
Omhandler seksjonering av eiendommen.
Seksjonsnummer 11, boligformål, sameiebrøk 74/2336.
Bod og carportplass er tinglyst som tilleggsdel til seksjonen.
Det er tinglyst 2 servitutter på sameiets eiendom. Disse omhandler blant annet bestemmelser om medlemskap i velforening/huseierforening, bruksrett på lekeplasser, gangrett/rett til sti m.m. Ingen av disse har direkte betydning for bruken av denne boligen.
Servituttene vil følge eiendommen. Kjøpers bank vil få prioritet etter ovennevnte heftelser og servitutter.
Eventuell adgang til utleie
Leiligheten kan leies ut såfremt leiligheten har forsvarlige radonverdier. Leietaker må følge sameiets vedtekter og ordensregler på lik linje som eier.
Diverse
Eiendommen selges som et tvangssalg og i henhold til Lov om tvangsfullbyrdelse og ikke etter avhendingslova. Dette innebærer vesentlig avvik fra et normalt salg ved at kjøper har en større risiko for eiendommens tekniske tilstand, og kjøper må være innforstått med at det kan være svært vanskelig å nå fram med en mangels klage etter kjøp av tvangssalgsbolig. Samtidig avviker tidsfrister for bud og rutiner for oppgjør fra et normalt salg.
Det vises for øvrig til "Orientering til kjøpere om tvangssalg ved medhjelper" som er vedlagt salgsoppgaven. Ta kontakt med megler dersom noe er uklart.
Energimerking
Komplett energiattest inkludert oppvarmingskarakter fås ved henvendelse til megler eller lastes ned fra www.krogsveen.no.
Beliggenhet og tomteforhold
Beliggenhet og tomteforhold
Beliggenhet
Hof er et koselig sted å bo, med alt du trenger i nærheten. Du kan gå til butikken, frisøren, bensinstasjonen og biblioteket på noen få minutter fra Prestegårdshagen. Sentrum er fullt av liv og sjarm, og du kan nyte naturen rundt deg. Her er det trygt og godt for både store og små.
Hof har flotte muligheter for friluftsliv og sport. Du kan bade, gå tur, sykle eller spille fotball i vakre omgivelser. Hof Idrettslag har mange tilbud for barn og voksne, som skihopp, klatring, turn og langrenn. Du kan også prøve golf på den fine banen i sentrum, eller fiske i et av de mange vannene i marka. Om vinteren er det flotte skiløyper og om sommeren er det merkede stier for turer til fots eller på sykkel.
Prestegårdshagen har en perfekt beliggenhet for deg som vil ha det beste av begge verdener. Du kan nå mange store byer på en time med bil, som Oslo, Drammen, Kongsberg, Hønefoss, Tønsberg, Sandefjord, Larvik og Skien. E-18 er lett tilgjengelig og tar deg raskt nordover eller sørover. Du kan også ta toget fra Sande stasjon, som har hyppige avganger til Oslo og Tønsberg.
Hof er et sted du vil trives i og Prestegårdshagen er et sted du vil kalle hjem.
Adkomst
Det vil bli skiltet med Krogsveen visningsskilt ved fellesvisninger. Se kart i nettannonse eller Google Maps for nærmere veibeskrivelse. Velkommen til visning!
Barnehager, skoler og fritid
Barnehager: Hof barnehage (1,5 km), Eidsfoss barnehage (6,5 km), Espira Sundbyfoss barnehage (6,1 km).
Skoler: Hof barne- og ungdomsskole (1,6 km).
Det ligger flere videregående skoler i Holmestrand og Sande.
Dersom skole- og barnehagetilbud er av betydning for kjøpet, ber vi om at det rettes en særskilt henvendelse til kommunen for oppdatert informasjon.
Beskrivelse av tomt
Eiet tomt på 451 kvm som tilhører denne seksjonen, tomten utgjør et stort hageområde, terrasse og en parkeringsplass. Se kartutsnitt for tomtegrenser.
Seksjonseier kan sette opp gjerde rundt egen hage dvs. tilleggsdel grunn som ikke er asfaltert eller belagt med belegningsstein, etter retningslinjer vedtatt av styret jf. husordensreglene.
Eiet tomt på 4390 kvm som tilhører sameiet. Tomten er opparbeidet med asfalterte veier, plenarealer og diverse beplantning. Til fellesarealene hører utearealer som gangveier, grøntanlegg, gårdsrom, oppholds-/lekearealer og sittegrupper. Sameiet har også, i fellesskap med andre eiendommer i Prestegårdshagen, rett til bruk av felles lekeplass og balløkke. Se kartutsnitt for tomtegrenser.
Parkering
Boligen har parkering i halvpart av dobbelcarport, i tillegg er det en ekstra utvendig parkeringsplass ved siden av carporten.
Både carporten og parkeringsplassen er tinglyst til seksjonen.
Vei, vann og avløp
Eiendommen har adkomst via privat vei med felles vedlikeholdsansvar for sameiet.
Eiendommen er tilknyttet kommunalt ledningsnett via private stikkledninger. Sameiet er ansvarlig for private stikkledninger til bygningen.
Regulerings-og arealplaner
Sameiets eiendom er regulert til boligbebyggelse - konsentrert småhusbebyggelse (9.584,26 kvm), i henhold til reguleringsplan «Reguleringsendring av detaljregulering for Prestegårdshagen» vedtatt 14.11.2018, med tilhørende reguleringsbestemmelser.
Sameiets eiendom omfattes av «Kommuneplanens arealdel for Holmestrand 2023 - 2035», vedtatt 19.06.2024. Arealbruken er i planen avsatt til boligbebyggelse - nåværende (9.584,26 kvm) og adkomstvei - nåværende.
Sameiets eiendom berøres av hensynssone for ras- og skredfare (359,41 kvm) i henhold til kommuneplanen. I medhold av kommuneplanens bestemmelser § 7.1.4 gjelder følgende: «Innenfor hensynssonen H310, fareområde ras/skredfare og aktsomhetsområde marin avsetning/marin leire, skal tilstrekkelig geoteknisk stabilitet for ethvert tiltak dokumenteres av geoteknisk fagkyndig, jf. Plan- og bygningslovens § 1-6".
Området er generelt under utvikling/utbygging. Det ligger flere ubebygde tomter i nærmiljøet. Det må påregnes støy o.l. fra byggeprosjektet under utbyggingen.
Utsnitt av plan med tilhørende bestemmelser kan fås ved henvendelse til megler.
Økonomi
Økonomi
Boligens kostnader
Felleskostnadene inkluderer bl.a. tv/internett grunnpakke, felles vedlikehold, felles driftskostnader, sommer-/vintervedlikehold, strøm i fellesarealer, forretningsførsel, revisjon- og administrasjonskostnader, styrehonorar, felles bygningsforsikring m.m.. Felleskostnadene justeres normalt en til to ganger årlig i forhold til sameiets faktiske utgifter.
Felleskostnadene pr. mnd fordeles slik:
Grunnkostnad kr 1.237,-
TV kr 519,-
Kommunale avgifter (vann og avløp): kr 4.381,- pr. år for vann og kr 5.967,- pr. år for avløp (12 terminer), årsgebyr for 2026. Avgiftene vil variere etter forbruket i boligen. Årsgebyr for vann og avløp er beregnet etter et årsforbruk på 42 m3.
Renovasjonskostnader: kr 2.914,- pr. år (12 terminer). Type renovasjonsordning: Renovasjon inkl. rabatt for fellesløsning, årsgebyr for 2026.
I tillegg påløper det kostnader for feiing av pipe og tilsyn fra feievesen.
Det må påregnes kostnader til strøm og nettleie, dette vil variere avhengig av strøm-/nettselskap.
Boligen er tilknyttet tv/internett, grunnpakke er inkludert i felleskostnadene.
Eier har ikke gitt megler opplysninger om øvrige løpende kostnader, megler har derfor ikke kjennskap til forbruk og utgifter som dagens eier har i forbindelse med bruk av boligen.
Det må påregnes kostnader til innboforsikring.
Ovenstående er basert på nåværende eier/husstands senere års forbruk/utgifter. Dette vil variere avhengig av antall beboere, ønsket innetemperatur, egne fordelsavtaler, kanalvalg, hastighet på bredbånd osv.
Formuesverdi
Formuesverdi for 2024 var kr 750 127,- ifølge Skatteetaten. Beløpet forutsetter at eier bor fast i boligen (primærbolig).
Ved eventuell øvrig bruk av eiendommen (f.eks. fritidsbolig, pendlerbolig, utleieobjekt) var formuesverdien for 2023 kr 3 000 508,-.
Fra 2026 har Stortinget vedtatt en oppdatert modell for beregning av formuesverdi for primærbolig, så avvik kan forekomme.
For mer informasjon se skatteetaten.no.
Eiendomsskatt
Eiendomsskatten utgjør kr 3.300,- pr år (2026).
Opplysninger om fellesgjeld
Andel formue er kr 21 829,- pr. 31.12.2025.
Andel fellesgjeld er kr 0,- pr. 20.02.2026.
Det er pr. 20.02.2026 ingen lån registrert på sameiet.
Omkostninger
2 950 000,00 Prisantydning
Omkostninger
73 750,00 Dokumentavgift til staten (2,5% av kjøpesum)
545,00 Tinglysing panterettsdokument
545,00 Tinglysing skjøte
--------------------------------------------------------
74 840,00 Omkostninger totalt
--------------------------------------------------------
3 024 840,00 Totalpris inkl. omkostninger
--------------------------------------------------------
Totalpris inkl. omkostninger forutsetter kjøp til prisantydning.
Det tas forbehold om endringer i avgifter og gebyrer.
Tilbud om lånefinansiering
Megler formidler gjerne kontakt med rådgiver hos vår samarbeidspartner BN Bank. De har konkurransedyktige betingelser samt rask og løsningsorientert behandling av din lånesøknad. Krogsveen mottar et honorar dersom lån opprettes.
Betalingsbetingelser
Kjøpesum inkludert omkostninger, samt pantedokument tilknyttet eventuelt lån, skal være disponibelt hos megler 2 virkedager før overtagelsen.
Annen viktig informasjon
Annen viktig informasjon
Selger
Vestfold tingrett og Ole Martin Færgestad Johansen
Informasjon om sameiet
Leiligheten er tilknyttet Lillemilen Eierseksjonssameie.
- Sameiet består av 23 boligseksjoner.
- Forretningsfører er NBBO.
- Sameiets årsregnskap for 2024 viser et overskudd på kr 224.449,-.
- Sameiet er forsikret i Gjensidige Forsikring ASA, med polisenummer 89916366.
Sameiet har, i fellesskap med andre eiendommer i Prestegårdshagen, rett til bruk av fellesområder som lekeplass og balløkke.
Som medlem av velforeningene for fellesområdene er medlemmene pliktige til å delta på eventuelle dugnader som styret innkaller til.
Følgende bestemmelser gjelder for snr. 11 og 12 iht. vedtektene:
Seksjonseierne har felles vedlikeholdsplikt med like stor del for det som er omfattet av pkt. 8.1 (ix) og som gjelder felles konstruksjoner. Dette omfatter bl.a. fasade, fundament, tak, felles bjelkelag, felles bærende veggkonstruksjoner og rør eller ledninger som er bygget inn i felles bærende konstruksjoner.
- Pkt. 8.1 (ix): Bygningskroppen (konstruksjonen) og øvrige konstruksjoner til egen Bruksenhet (herunder fasade, fundament, tak, bjelkelag, vegger, vinduer, ytterdører, balkongdører, balkong, terrasser, med mer)
Følgende bestemmelser gjelder for snr. 9, 10, 11 og 12 iht. vedtektene:
Snr. 9, 10, 11 og 12 har felles vedlikeholdsplikt med like stor del for trappehus mellom bygningskroppene.
Fra ordinært årsmøte 08.04.2025:
- Det ble vedtatt å åpne for muligheten til å søke om installasjon av varmepumpe.
- Forslag om at sameiet i fellesskap skulle betale for brøyting av private gårdsplasser i Hamnehagen ble nedstemt.
- Takstige og -sikring er fullført.
- Fasademaling av siste del av bygningsmassen er et pågående prosjekt i 2025.
Seksjonseieren disponerer fritt over egen seksjon med de begrensninger som følger av sameieforholdet og eierseksjonsloven. Seksjonseieren kan fritt selge, pantsette og leie ut sin egen seksjon. Sameiets styre skal underrettes skriftlig om alle overdragelser og leieforhold.
Ingen kan kjøpe eller på annen måte erverve flere enn to boligseksjoner i sameiet i henhold til lov om eierseksjoner. Dette gjelder ikke for kjøp og erverv av fritidsboliger, erverv ved ekspropriasjon, arv eller forskudd på arv til livsarving eller en kreditors erverv for å redde en fordring som er sikret med pant i en seksjon.
Dokumenter for sameiet kan fås ved henvendelse til megler.
Overtakelse
Etter gjeldende regelverk vedr. tvangssalg, konf. megler eller les info. på budskjemaet. Normalt vil eiendommen bli levert ryddet, tømt og rengjort, men dersom dette ikke blir gjort av dagens eier må kjøper selv gjøre dette.
Boligselgerforsikring
Det kan ikke tegnes boligselgerforsikring ved tvangssalg da kontraktspart er Tingretten og salget skjer etter reglene i tvangsfullbyrdelsesloven. Interessenter oppfordres til å sette seg inn i regelverket og lese salgsdokumentasjonen nøye før bud inngis. Det gjøres oppmerksom på at kjøpers muligheter for reklamasjon er redusert ved kjøp av bolig etter tvangsfullbyrdelsesloven.
Boligkjøperforsikring
Det gjøres oppmerksom på at det ikke er mulig å tegne Boligkjøperforsikring i forbindelsen med tvangssalg.
Budgivning
Det gjelder egne budregler for tvangssalg, og disse er beskrevet i «Orientering til kjøpere om tvangssalg ved medhjelper». Budgivere må sette seg inn i orienteringen før man inngir bud.
Alle bud og budforhøyelser må inngis skriftlig. I tillegg må budet være signert og legitimasjon må være fremlagt. På grunn av de spesielle reglene for tvangssalg er det dessverre ikke mulig å inngi bud elektronisk via Krogsveen.no. Eventuelle forhøyelser eller endringer på budet kan skje pr sms eller på e-post.
Kjøper vil som vanlig få tilsendt budjournal etter at eiendommen er solgt. Budgiver kan også få utlevert en kopi av budjournalen i anonymisert form.
Hvitvaskingsreglene
I henhold til lov om hvitvasking og terrorfinansiering har megler plikt til å gjennomføre kontrolltiltak overfor kunder, herunder fullmektiger. Dette innebærer bl.a. å bekrefte kunders og reelle rettighetshaveres identitet på bakgrunn av fremvist gyldig legitimasjon eller på annen godkjent måte, samt å innhente opplysninger om kundeforholdets formål og tilsiktede art.
Dersom slike kundetiltak ikke kan gjennomføres, kan megler ikke etablere kundeforholdet eller utføre transaksjonen.
Hvis kjøper ikke bidrar til gjennomføring av kundekontrollen og dette fører til at transaksjonen blir forsinket eller ikke kan gjennomføres, vil dette ansees som mislighold av avtalen og gi selger rettigheter etter avhendingslova kapittel 5. I tilfeller der selger ikke bidrar til gjennomføring av løpende kundekontroll underveis i oppdraget, er det selger som misligholder sine forpliktelser etter avtalen og gi kjøper rettigheter etter avhendingslovens kapittel 4. Partene er selv ansvarlige for eventuelle kostnader og ansvar dette kan medføre. Eiendomsmegleren eller eiendomsmeglingsforetaket kan ikke holdes ansvarlig for de konsekvenser dette vil kunne få for partene eller andre som har interesser i eiendomshandelen.
Kjøper oppfordres til å innbetale kjøpesummen som ikke kommer fra låneinstitusjon i én samlet innbetaling fra egen konto i norsk bank. Megler har plikt til å melde fra til Økokrim om eiendomshandler som fremstår som mistenkelige. Melding sendes Økokrim uten at partene varsles.
Personopplysningsloven
I henhold til personopplysningsloven gjør vi oppmerksom på at interessenter kan bli registrert for videre oppfølging.
Lovanvendelse
Salget av denne eiendommen er et tvangssalg gjennom medhjelper, og selges etter
Tvangsfullbyrdelsesloven kapittel 11.
Dette innebærer at kjøper har begrensede muligheter til å fremsette eventuelle mangelskrav.
Mangel kan foreligge hvis eiendommen ikke svarer til gitte opplysninger om vesentlige forhold, eller det er forsømt å gi opplysninger om vesentlige forhold som medhjelper måtte kjenne til, eller den er i vesentlig dårligere stand enn kjøperen hadde grunn til å regne med. Manglende/feil opplysninger må ha innvirket på kjøpet. Det vises til tvangsfullbyrdelseslovens §11-39 for nærmere informasjon og alle vilkår. Dersom eiendommen har mangler, kan det kreves prisavslag, men kjøpet kan ikke heves. Det kan også forekomme at boligen overleveres uten normal rydding og rengjøring, samt at nøkkelsett ikke er komplett. Omkostninger må i så tilfeller dekkes av kjøper.
Meglers vederlag
Meglers vederlag betales av oppdragsgiver og er avhengig av kjøpesummens størrelse, og beregnes i henhold til satser i Forskrift om tvangssalg ved medhjelper, kap. 3.
I tillegg mottar megler oppgjørshonorar kr 6.385,- samt dekning av følgende utlegg:
Vederlag:
TV - Kontroll hjemmel/heftelser kr 1 500,00
Andre utgifter:
TV - Diverse Innhenting av informasjon fra forretningsfører NBBO kr 5 195,00
TV - Diverse Innhenting av informasjon fra kommunen kr 3 363,00
TV - Porto rek.sendinger kr 240,00
Vi er opptatt av verdiskapning, og har knyttet til oss samarbeidspartnere som skal sikre våre kunder de beste produkter og tjenester;
• I forbindelse med forberedelse av salget, innhenter vi informasjon om eiendommen hovedsakelig fra vår samarbeidspartner Ambita.
• Gjensidige leverer boligselgerforsikring og tilbyr bygningsforsikring
• Boligkjøperforsikring leveres av Hiscox og med Sedgwick som skadebehandler, og er formidlet gjennom Gjensidige.
• BN bank tilbyr finansieringsløsninger
• Vår avdeling Krogsveen Pluss tilbyr flyttetjenester som utvask, visningsvask, lager, tømming og transport av flyttelass, i tillegg til å formidle kontakt med Flip for overflateoppussing.
• I forbindelse med overtagelse av eiendommen tilbyr Overo avtale om strøm, alarm og bredbånd.
• Krogsveen er, sammen med øvrige bransjeaktører, medeier i den digitale annonseringsplattformen Hjem som eies av Bomega AS.
Opplysninger om oppdraget
Oppdragsnummer 20-0059/26
Eiendomsmegler Krogsveen AS, avd. Drammen
Nedre Storgate 16, 3015, DRAMMEN
950 007 613
Oppdragets KR-kode KR20.2659
Dato
Sist oppdatert: 22. april 2026 kl. 22:04
Dokumenter
Dokumenter
PDF – 383 KB
PDF – 390 KB
PDF – 162 KB
PDF – 3 MB
Område
Legg til steder som er viktige for deg
Visning
Privatvisninger avholdes fortløpende. Meld deg på til visning ved å trykke på lenken visningspåmelding eller ved å kontakte megler på epost eller mobil 911 46 100.
Lurer du på noe?
Vurderer du utleie?
Få et tilbud fra Utleie KrogsveenHva koster lånet?
Sjekk estimert lånekostnad






























